观澜雅境官方售楼处-(2025苏州观澜雅境最新)-房价-户型-图文介绍
扫描到手机,新闻随时看
扫一扫,用手机看文章
更加方便分享给朋友
苏州观澜雅境售楼处电话:400-8828-814✔✔【预约热线】观澜雅境售楼处营销中心:400-8828-814观澜雅境售楼处电话/地址☎:400-882-8814(开发商热线)如有问题欢迎来电咨询,专业一对一热情服务,让您用专业眼光去买房。面积:128-132平,均价:1.8万,苏州的思想海拔 太湖科学城芯 正南大 科·学·家 思想住区。
One | Basic information
壹 | 基础信息
Mission Hills Yajing Sales Office Tel: 400-882-8814 Suzhou Mission Hills Yajing Sales Office Tel: 400-882-8814
观澜雅境售楼处电话:400-882-8814苏州中建观澜雅境售楼处电话:400-882-8814
Project name: China Construction · Guanlan Elegant Environment
项目名:中建·观澜雅境
Location: Core area of Taihu Science City, High-tech Zone, Suzhou, China
所属区位:中国·苏州高新区·太湖科学城核心区
Project address: Suzhou Taihu Science City, Putuoshan Road and Yuxiang Road interchange
项目地址:苏州太湖科学城普陀山路与俞巷路交汇处
Architectural style: modern and simple
建筑风格:现代简约
Total land area: 108042.70㎡
总用地面积:108042.70㎡
Total construction area: 323,945.99 ㎡
总建筑面积:323945.99㎡
Planned buildings and total number of households: 28 residential buildings, 1552 households
规划楼栋及总户数:住宅28栋,1552户
Number of parking Spaces: 2650 1:1.7
车位数:2650个 1:1.7
Apartment type: Commercial room: 125, 143㎡;
户型:商品房:125、143㎡;
Talent apartment: 120, 140, 180, 240, 280㎡
人才公寓:120、140、180、240、280㎡
Decoration: hardcover
装修配置:精装
Plot ratio: approx. 2.0
容积率:约2.0
Greening rate: about 35%
绿化率:约35%
Property Company: Zhongjian Dongfu Property
物业公司:中建东孚物业
Mission Hills Yajing Sales Office Tel: 400-882-8814 Suzhou Mission Hills Yajing Sales Office Tel: 400-882-8814
观澜雅境售楼处电话:400-882-8814苏州中建观澜雅境售楼处电话:400-882-8814
Two | brand strength
贰 | 品牌实力
Mission Hills Yajing Sales Office Tel: 400-882-8814 Suzhou Mission Hills Yajing Sales Office Tel: 400-882-8814
观澜雅境售楼处电话:400-882-8814苏州中建观澜雅境售楼处电话:400-882-8814
China Construction is the world's largest investment and construction group
中国建筑 全球规模最大的投资建设集团
[Leading construction industry] Founded in 1982, it is a central enterprise directly under the SASAC, and is one of the largest investment and construction groups in the world with the longest professional development and the highest degree of integration.
【建筑业龙头】成立于1982年,国资委直属的央企,是我国专业化发展最久、一体化程度最高、全球规模最大的投资建设集团之一。
It is also the only central enterprise with construction as its main business.
也是唯一以建筑业为主业的央企。
[World's Top 500] The company ranks 13th among the world's top 500 enterprises, 3rd among the top 500 Chinese enterprises, and 1st among global engineering contractors. It is a construction company with the highest credit rating in the world.
【世界500强】公司位列世界 500 强第 13 位,中国企业 500 强第 3 位,稳居全球工程承包商第 1位,是全球最高信用评级的建筑公司。
In China, 90% of the skyscrapers above 300 meters, 3/4 of the key airports, 3/4 of the satellite launch bases, 1/3 of the city's integrated pipeline corridors, and 1/2 of the nuclear power plants have been invested by Chinese construction, and one out of every 25 Chinese people uses a house built by Chinese architecture.
【地标缔造者】在我国,90% 300米以上摩天大楼、3/4重点机场、3/4卫星发射基地、1/3城市综合管廊、1/2核电站,均由中国建筑投资建设,每25个中国人中就有一人使用中国建筑建造的房子。
[Standard Leader] China Architecture represents the highest level in China's housing construction field, China's most powerful investor, and China's largest architectural design conglomerate.
【标准引领者】中国建筑代表了中国房建领域的最高水平、中国最具实力的投资商、中国最大建筑设计综合企业集团。
Mission Hills Yajing Sales Office Tel: 400-882-8814 Suzhou Mission Hills Yajing Sales Office Tel: 400-882-8814
观澜雅境售楼处电话:400-882-8814苏州中建观澜雅境售楼处电话:400-882-8814
China Construction Dongfu city comprehensive development service leader
中建东孚 城市综合开发服务引领者
[Symbiosis Co-prosperity City Operator] focuses on the layout of the "3+1" business segment integrating "real estate development, asset operation, new urbanization and comprehensive services", and the company's projects cover the Yangtze River Delta region, the Bohai Sea Economic Zone, the Guangdong-Hong Kong-Macao Greater Bay Area and the central and western regions;
【共生共荣 城市运营商】着力布局以“地产开发、资产运营、新型城镇化、综合服务”为一体的 “3+1”的业务板块,公司项目遍布长三角区域、环渤海经济区、粤港澳大湾区及中西部区域;
Top 50 of China's top 100 real estate enterprises and top 20 of outstanding real estate enterprises.
中国房地产百强企业前50强、房地产优秀企业产品力前20强。
China Construction Dongfu is a professional real estate platform of China Construction Eighth Bureau engaged in urban comprehensive development services, taking "expanding happiness space" as the enterprise mission, responding to the national new urbanization strategy, and building a comprehensive quality of human settlements.
【国匠担当 人居革新者】中建东孚是中建八局从事城市综合开发服务的专业地产平台,以“拓展幸福空间”为企业使命,响应国家新型城镇化战略,筑就全方位品质人居。
[Initial heart like torch and Suzhou] 5 years of intensive cultivation, successively produced Hean Xiaofeng, Zijun LAN Yuan, Huangqiao Tianhao, Xukou River Shangya Yuan and other projects, carrying the banner of the era of human habitation, leading the city with quality models.
【初心如炬 与苏州同行】5年精耕,接连出品荷岸晓风、紫珺兰园、黄桥天灏、胥口江上雅苑等项目,扛起时代人居的大旗,以品质典范引领全城。
Three | strategic hot land
叁 | 战略热土
The last decade was Science City and the next decade was Science City
上一个十年看科技城 下一个十年看科学城
Mission Hills Yajing Sales Office Tel: 400-882-8814 Suzhou Mission Hills Yajing Sales Office Tel: 400-882-8814
观澜雅境售楼处电话:400-882-8814苏州中建观澜雅境售楼处电话:400-882-8814
【 World-class Lake District Science and Innovation Center 】
【世界级湖区科创中心】
Taihu Science City is an important carrier to implement the national strategy of Yangtze River Delta integration, build the national innovation center of the Yangtze River Delta, build a world-class ecological lake district and an innovation lake district. In the future, five major functional areas will be built, including: major scientific research area, science and education resource pooling area, cross-platform gathering area, scientific and technological achievements transformation area, and cultural business supporting area.
太湖科学城是落实长三角一体化国家战略,打造长三角国家创新中心,建设世界级生态湖区、创新湖区的重要载体,未来将建设5大功能板块,包括:重大科学研究区、科教资源汇集区、交叉平台集聚区、科技成果转化区、文化商务配套区。
The Taihu Science City, which has been included in the "14th Five-Year Plan" of Suzhou, has huge development potential and is bound to become the next value explosion in Suzhou.
被纳入苏州市“十四五”规划的太湖科学城,板块发展潜力巨大,势必会成为苏州下一个价值爆点。
【 Leading the Urban Development 3.0 era 】
【引领城市发展3.0时代】
If Shishan is the 1.0 era of new district urban development (financial era), science and Technology City is the 2.0 era of new district urban development (technology industry era);
如果说狮山是新区城市发展1.0时代(金融时代),科技城是新区城市发展2.0时代(科技产业时代);
So, the core area of Taihu Science City is guided by NTU, and the comprehensive development of "production, study, research, business and housing" has a higher starting point, stronger planning and faster delivery, leading the region into the era of urban development 3.0!
那么,太湖科学城核心区以南大为引领,“产、学、研、商、住”综合发展,起点更高、规划更强、兑现更快,引领区域进入城市发展3.0时代!
Mission Hills Yajing Sales Office Tel: 400-882-8814 Suzhou Mission Hills Yajing Sales Office Tel: 400-882-8814
观澜雅境售楼处电话:400-882-8814苏州中建观澜雅境售楼处电话:400-882-8814
【 Near NTU CBD+CLD positive core 】
【近南大CBD+CLD正核】
The project is located in the 10km2 core area of Taihu Science City, the central residential area + the central business district, about 1KM closest to NTU.
本案位于太湖科学城10km2核心区,中央居住区+中央商务区 ,约1KM最近南大。
Mission Hills Yajing Sales Office Tel: 400-882-8814 Suzhou Mission Hills Yajing Sales Office Tel: 400-882-8814
观澜雅境售楼处电话:400-882-8814苏州中建观澜雅境售楼处电话:400-882-8814
Four | traffic advantages
肆 | 交通优势
Five in one reaches the city
五位一体 畅达全城
【 Main road network 】 Three longitudinal: Yu Lane Road, Longkang Road, Tongshu Road;
【主干路网】三纵:俞巷路、龙康路、通墅路;
Three horizontal: Kunlun Mountain Road (later Kunlun Mountain Road through the Dayangshan tunnel to connect the Central North Line), Putuoshan Road, Taihu Avenue;
三横:昆仑山路(后期昆仑山路穿过大阳山隧道连接中环北线)、普陀山路、太湖大道;
Multi-channel direct connection to the core area of Science and Technology city and Suzhou urban area;
多通道直连科技城核心区及苏州市区;
【 Tram 】 1.5km from Suzhou Tram Line 1 and Line 2 (Longkang Road Station), 1.5km from Lijiang Road Station of Tram Line 2;
【有轨电车】距离苏州有轨电车1号线、2号线(龙康路站)1.5km,距离有轨电车2号线漓江路站1.5km;
【 Rail transit 】 Plan Line 9 and Line 11 to improve the traffic level of the plate. The project is 300 meters away from Zhuanglishan North Station and 700 meters away from Longkang Road Station of Line 11.
【轨道交通】规划9号线、11号线,提升板块交通能级,本案距离11号线庄里山北站300米、龙康路站700米;
【城际铁路】规划苏锡常城际铁路,科技城站。
The education system
伍 | 教育体系
Ntu affiliated with Excellence in Education
南大附属 卓越教育
Mission Hills Yajing Sales Office Tel: 400-882-8814 Suzhou Mission Hills Yajing Sales Office Tel: 400-882-8814
观澜雅境售楼处电话:400-882-8814苏州中建观澜雅境售楼处电话:400-882-8814
Ntu Affiliated Education Group currently plans 5 kindergartens, 2 primary schools and 1 junior high school.
南大附属教育集团,当前规划5所幼儿园,2所小学,1所初中。
Ntu Affiliated Kindergarten Kunlun Garden, Longkang Garden, NTU Affiliated Primary School No. 1, NTU Affiliated Primary School No. 2, NTU Affiliated Junior High School.
包含南大附属幼儿园昆仑园、龙康园、南大附属第一小学、南大附属第二小学、南大附属初中。
Full school age education, one-stop brand school education resources.
全学龄教育,一站式品牌名校教育资源。
(NTU Affiliated No. 1 Primary School, planning 8 track 48 classes and reserving 2 track, is expected to add 2,160 new degrees after completion)
(南大附属第一小学,规划8轨48班预留2轨,建成后预计新增学位2160个)
Lu | Metropolis Hui life
陆 | 都荟生活
360° bustling core in charge of the axis of life
360°繁华聚核 执掌生活轴心
Within the region, Fashion Waterfront, Dream City, High-tech Zone Cultural and Sports Center, Fengmaoli and other businesses have been settled in advance to meet basic needs, a number of neighborhood centers are distributed nodal (under construction), and Xing Yuili (under construction, opening by the end of 2022), further improving the convenience of regional commercial consumption.
【星罗棋布的商圈生活】区域内,时尚水岸、梦之城、高新区文体中心、丰茂里等商业先期入驻,满足基本需求,多个邻里中心节点性分布(建设中),星悦里(建设中,2022年底开业),进一步提升区域商业消费便利度。
This case comes with high-end commercial landmarks, will bring unique commercial entertainment leisure shopping experience, fullness of regional quality life!
本案自带高端商业地标,将带来独有商业娱乐休闲购物体验,丰满区域品质生活!
Mission Hills Yajing Sales Office Tel: 400-882-8814 Suzhou Mission Hills Yajing Sales Office Tel: 400-882-8814
观澜雅境售楼处电话:400-882-8814苏州中建观澜雅境售楼处电话:400-882-8814
【 Public Medical care in close proximity 】 Science and Technology City Hospital, as a tertiary general hospital, is only 1km away from the case.
【近在咫尺的公共医疗】科技城医院,作为一家三级综合性医院,距离本案直线距离仅1km。
[Natural background of true mountain and true water] Surrounded by Dayang Mountain, Taihu National Wetland Park, Taihu Lake landscape belt, 12 mountains, 34 rivers and lakes interwoven, the ecological environment is superior;
【真山真水的自然底色】区域内大阳山、太湖国家湿地公园、太湖山水带环绕,12座山体、34条河道湖泊交织,生态环境优越;
About 5 million square meters of green space have been added and renovated, and parks such as Caishi Lake Park, Ngushan Park, Xiaomaoshan Park and Nobel Lake Park have been embellished to add vitality to life!
已新增和改造绿化约500万平方米,打造彩石湖公园、恩古山公园、小茅山公园、诺贝尔湖公园等公园点缀,为生活增添生命活力!
Seven | 450,000 square world Suzhou First enjoy zone
柒 | 45万方世界苏州先享区
Prosperous Chaobai city level commercial new landmark high-end consumption new center
繁华潮拜 城市级商业新地标 高端消费新中心
【 Ice and Snow World 】 Suzhou City initiative, Suncreation operation, urban high-end entertainment consumption destination
【冰雪世界】苏州城市首创,融创运营,城市高端文娱消费目的地
[Star hotel] Introduction of 12,000 square five-star Howard Johnson hotel
【星级酒店】引进1.2万方五星级豪生酒店
[Trend business] Ice and snow theme commercial street + vertical & multi-space sharing space + Youth cultural and creative block
【潮流商业】冰雪主题商业街+垂直化&多空间共享空间+青年文创街区
【 Serviced apartment 】 About 43,600 square meters of high-end serviced apartments
【服务公寓】约4.36万方高端服务公寓
Mission Hills Yajing Sales Office Tel: 400-882-8814 Suzhou Mission Hills Yajing Sales Office Tel: 400-882-8814
观澜雅境售楼处电话:400-882-8814苏州中建观澜雅境售楼处电话:400-882-8814
Science, study and home thought settlement
科·学·家 思想住区
This is an ideal residence designed for talents and intelligent circle people to build with the same frequency of the university, the product positioning is improved, aiming at shaping the cover of the new Taihu Science City.
这是一个专为人才和高智圈层人士打造的与学府同频的居住理想住宅,产品定位改善,旨在塑新太湖科学城的人居封面。
Mission Hills Yajing Sales Office Tel: 400-882-8814 Suzhou Mission Hills Yajing Sales Office Tel: 400-882-8814
观澜雅境售楼处电话:400-882-8814苏州中建观澜雅境售楼处电话:400-882-8814
Regulation | rare pure reform
规制 | 稀有纯改
Pure improvement product line, commercial residential 125/143㎡, talent apartment 120/140/180/240/280㎡
纯改善产品线,商品住宅125/143㎡,人才公寓120/140/180/240/280㎡
Experience | times light and shadow
境鉴 | 时代光影
The world minimalist aesthetic standard, to create an international perspective of modern aesthetic model and city cover
世界极简美学标准,打造国际视角的现代美学范本与城市封面
Heming | low dense lake mountain
和鸣 | 低密湖山
Create an open park community, from the "Taihu Lake/Science and Technology Park landscape - pocket park - dual landscape axis - cluster (central) landscape" to form an "open - semi-open - private" hierarchical structure
打造开放式公园社区,从“太湖/科创园景观—口袋公园—双景观轴线—组团(中央)景观”形成“开放—半开放—私密”的层级式结构
Home | star lobby
归家 | 星级大堂
The first floor of the hotel entrance lobby, the underground to create a quality hardcover garage lobby, to create a private and noble home experience
首层酒店式入户大堂,地下打造品质精装车库大堂,营造私属尊贵的归家体验
Private | international hardcover
私享 | 国际精装
3 technology systems: central air conditioning, floor heating, fresh air;
3大科技系统:中央空调、地暖、新风;
4 living systems: smart home system, innovative kitchen system, comfortable bathroom system, smart bedroom system.
4大生活系统:精智入户系统、创新厨房系统、舒适卫浴系统、精睿卧室系统。
Adopt international and domestic first-line brands, quality to create a better life experience!
采用国际、国内一线品牌,质造美好生活体验!
The circle floor | Kochi Gate
圈层 | 高知门庭
Talent apartment is aimed at NTU faculty circle, to build the strongest university residential circle in Suzhou, the highest level of knowledge, the highest concentration of knowledge, to give children a better environment, a better group of partners, a better future!
人才公寓定向南大教师圈层,打造苏州最强高校居住圈层、最高知识阶层、最高知识浓度住区,给孩子一个更好的环境、一群更好的伙伴、一个更好的未来!
Mission Hills Yajing Sales Office Tel: 400-882-8814 Suzhou Mission Hills Yajing Sales Office Tel: 400-882-8814
观澜雅境售楼处电话:400-882-8814苏州中建观澜雅境售楼处电话:400-882-8814
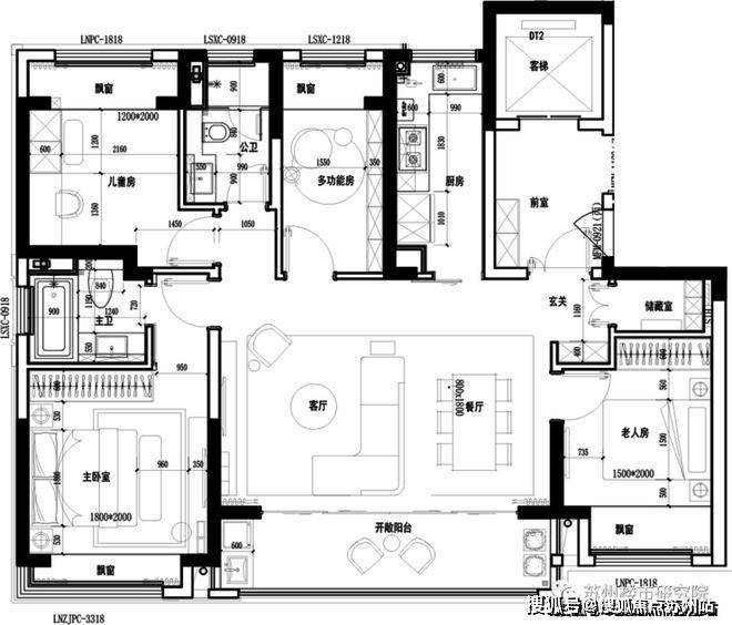
捌 | 户型鉴赏
【建筑面积125平户型】
Mission Hills Yajing Sales Office Tel: 400-882-8814 Suzhou Mission Hills Yajing Sales Office Tel: 400-882-8814
观澜雅境售楼处电话:400-882-8814苏州中建观澜雅境售楼处电话:400-882-8814
Respect entry: exclusive elevator foyer, mansion exclusive courtesy
尊崇入户:专属电梯门厅,大宅专属礼遇
Wide screen horizontal hall: guest restaurant integrated, wide view into the screen taste pattern
宽幕横厅:客餐厅一体,宽景入幕品味格局
Luxury balcony: double room large balcony, pleasant viewing experience
奢尺阳台:双开间大阳台,酣畅观景体验
Comfortable Master Bedroom: Respect the master bedroom suite, calm private field
舒适主卧:尊崇主卧套房,从容私人场域
Elegant bay window: four north and south bay window, smart life elegant interest
雅致飘窗:南北四飘窗,灵动生活雅趣
【建筑面积143平户型】
观澜雅境售楼处电话:400-882-8814
苏州中建观澜雅境售楼处电话:400-882-8814
不需要过多绚丽繁复的堆叠,也许再简单不过的闲适家常,就足以让含光的内里发扬优雅的气度。由繁入简,始终是一种回归自由与自我的必经之途。
每个人对于理想生活的向往或许各不相同,却都有着无形而有力的关联脉络——发掘生活中的美。
由外步入室内的连接点,是归家的第一仪式感,仪式的意义在于身,更达于心。简约纯净的意境让一日奔波的主人进入房门的一霎那就能卸下心灵的重担,得到放松,静心地享受家的美好与治愈。
以光为引,步入室内,简约而利落的线条,对比强烈的体块分割,将干净通透的格调展示得淋漓尽致。
高级黑的纯粹静谧,营造出沉稳且个性的现代质感,松软的布艺家具、粗粝的陶器、永生的植物等简素物体,共同点缀着室内空间,创造出一种可感知、充满包容性的场域。
随处可见的趣味性视角,不仅大大增加了空间的层次性,在完成视觉上的自然过渡与连续性的同时,丰富了人与空间的互动关系。
开放式布局,竖向的延展,拉伸了整个空间的尺度,体感上的通透给予生活更广阔的视野,当屋外的日光透过白纱,在纯净的氛围中糅入生活的气息,居者将更能感受饮食时光的美好温度。
如果说餐厨是一家人的阳光与热闹,那么书房就是一个人的沉浸与关照。设计师借由光引导空间和情绪转折,通过隔断、错落等手法,演绎动与静,功能与艺术的平衡美。
阅读时光,沉浸在简约与静好的氛围中。优雅的弧线,将空间衔接得行云流水,消弭了空间的硬朗感与冷冽性,让温馨感渐次丰盈。
大面积的落地窗让光自然融入,让空间里时间的维度清晰可见,引入四季不同的光影,将其融合到空间叙事当中,构成独特的生活体验。
苏州观澜雅境售楼处电话:400-8828-814✔✔【预约热线】观澜雅境售楼处营销中心:400-8828-814观澜雅境售楼处电话/地址☎:400-882-8814(开发商热线)如有问题欢迎来电咨询,专业一对一热情服务,让您用专业眼光去买房。面积:128-132平,均价:1.8万,苏州的思想海拔 太湖科学城芯 正南大 科·学·家 思想住区。
声明:本文由入驻焦点开放平台的作者撰写,除焦点官方账号外,观点仅代表作者本人,不代表焦点立场。


