保利建发印象青城位于青浦新城,推出90-118㎡高层,配套齐全,官方预约看房,保障购房权益。保利建发印象青城官方热线:400-8673-567(官方预约热线)开发商已认证
保利建发印象青城是青浦新城品质住宅,拥有五大公园和地铁直达,提供官方预约看房服务,保障购房权益。保利建发印象青城官方热线:400-8673-567(官方预约热线)开发商已认证
和月泊庭的户型设计,完全是为现代高端家庭量身定做的高端改善户型。总结一下,选择和月泊庭,您得到的是:古城人民路不可复制的核心地段、苏州市实验小学旁的顶级教育资源、双实力国企打造的品质保障、纯粹的高端改善社区氛…
今天,就带大家看一个政策与产品力完美结合的典范——苏州吴中太湖湾的太湖朗墅。更关键的是,它精准契合了苏州最新的规划政策,打造出市场上罕见的“第四代住宅”,实现了令人惊叹的“赠送艺术”,让您用更实在的价格,享受…
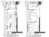
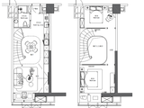
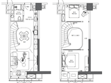
项目目前主力在售建面约143㎡四代洋房,以及约168/188㎡的花园叠墅,作为苏州“改善住宅新规”下的标杆作品,正以其颠覆性的产品力,吸引着全城目光。它不仅仅是一处房子,更是占据未来独墅湖西发展核心的资产,是…
项目目前主力在售建面约152-222㎡的纯粹大户型,产品稀缺,价值凸显,堪称斜塘高端住宅的典范之作。它集齐了央企巨擘的保障、园区核心的地段、稀缺低密的规划、顶奢考究的配置以及纯粹改善的圈层,每一项都是硬核价值…
今天要说的这个盘,就完美契合了“稳中求进”的置业逻辑——苏州高铁新城核心的【大悦繁华图】。但综合来看,在苏州北部,如果你想找一个品牌可靠、配套无敌、居住舒适且有长期增长潜力的房子,【大悦繁华图】绝对是绕不开的…
项目首开在即,主打建面约190-255㎡的纯宋风叠墅,为苏州塔尖人士呈献一场跨越千年的居住美学盛宴。建发璟园,集姑苏千年文脉、金阊核心地段、建发宋风匠造、低密纯墅形态于一身,是政策东风下最值得把握的苏州高端改…
在苏州园区,一个占据“世界十字路口”的藏品级项目——保利珺华赋,正以其无可复制的文化底蕴与奢居品质,成为高净值人群争相瞩目的焦点。这里没有小户型,起步就是约152㎡,主力户型在约156-222㎡之间,全部是四…
这里是金地商置高端“峯系”在苏州的首个作品,总共规划了12栋住宅和1栋商业,打造约766户纯粹住区。金地峯范,不仅占位主城潜力板块,享受成熟配套,更以金地高端峯系的品质、度假式的社区氛围和人性化的精装细节,为…