涌潮府(涌潮府)涌潮府房价|上海浦东户型-交通-首页网站-小区环境
扫描到手机,新闻随时看
扫一扫,用手机看文章
更加方便分享给朋友
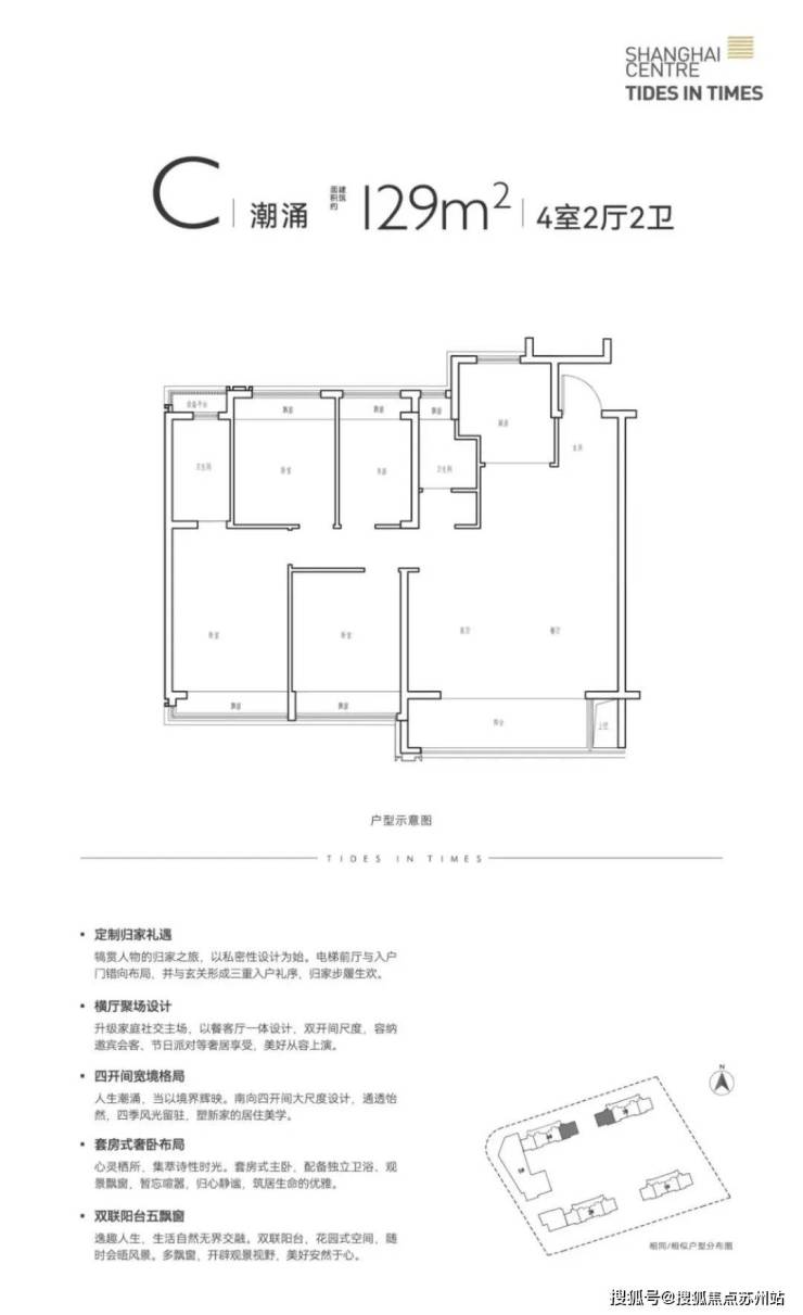
项目共4栋楼,可售套数253套,主力户型建面约87-129㎡3-4房。
项目板块:浦东—曹路
占地面积:约1.36万方
建筑面积:约2.72万方
规划户数:288户(可售253户)
物业类别:高层(16F)
产权年限:70年
户型面积:87-129㎡
交付标准:精装
价格:房地联动价51500元/㎡
2023年7月13日,浙江钱江房地产集团有限公司、宁波维科置业有限公司以及杭州市城建开发集团有限公司以总价77033万元竞得浦东新区曹路基地12-01地块,楼板价28348元/㎡,溢价率10%,房地联动价51500元/㎡!

四至范围:东至12-02地块,南至12-03地块,西至金开南路,北至:海福路。
基本参数:普通商品房用地,占地面积约1.36万方,计容面积约2.72万方,容积率2.0,限高50米,住宅套数下限288套,套均面积约94.4㎡!
地块周边实拍:



杭州城建(大家房产),杭派精工践行者实力国企,41年步履全国30余城,打造超200个精品筑作,连续9年蝉联“中国房地产百强企业”。1999年,大家房产首次来到上海,响应千禧年之际城市建设号召,参建浦西最大公园——大宁灵石公园。而后顺应上海发展脉络,开启人居开发之路,从奉贤自贸区的大家·美颂到浦东惠南的钱江大家·文澜府,皆是大家房产远见城市发展趋势的最佳印证。
杭州城建(大家房产),秉承“杭派精工,大美为家”,续承至高府系基因,于杭州武林府、金麟府、传宸府、上海文澜府等经典著作之后,以作品级建筑焕新浦东新区生活。
【Ongoing Style 前进式建筑】
以现代国际风格呼应浦东新区高阶审美,整体立面线条流畅,色彩高雅,精工华贵气质之中,蕴藏建筑的品质感与时代感。
【Central Park 围合式花园】
围合式“中央公园”,设计时光草坪、园林小径、运动聚场等高频参与性景观,促进家庭或邻里的互动与交流。
【Ideal Rooms 理想式居住】
建筑面积约87-129㎡户型,南向大面宽、舒适尺度、阳台+多飘窗设计等,打造具有国际生活想象的理想心居。
涌潮府位于浦东新区曹路镇的顾如路和海萃路交叉口,本项目地理位置优越,往北直线距离约9km可达外高桥自贸区,往西直线距离约9km可达金桥开发区,往南直线距离约15km可达张江科创城,直线距离约17km可达陆家嘴。涌潮府定址曹路镇核芯单元,紧邻金桥经济技术开发区、张江科创城、外高桥自由贸易试验区,地理优势突出。在“浦东2035”规划中,曹路镇拟构建“双心、四轴、多廊、多点”的空间结构,实现资源的“激活、提升、贯通、融合”。同频板块进阶,先享发展红利,涌潮府将在全系配套中,开篇未来新生活。
交通方面:
直线距离约600m轨道崇明线一期(在建)凌空北路站,3站金桥副中心,全城轨道交通网;直线距离约2.4km地铁9号线曹路站;近邻金海路、上川路,联通外环高速入口,可转接中内环及申嘉湖高速、G1503绕城高速等,高效畅行全市及周边城市。其中金海路高架快速路(杨高中路—华东路东侧),预计2025年6月全线竣工通车,进一步加强曹路镇与中心城区和其他区域的联系,支撑“金色中环”、金桥城市副中心、和曹路镇的发展。
商业方面:周边有恒越荣欣广场、欧亚玛特购物广场、招商花园城(在建)、宝龙广场等商业体。
教育方面:邻建成幼儿园,周边在建小学、初中,以及浦东复旦附中分校、浦东模范中学东校等,学校资源聚集,沁润人文厚蕴。(本项目不做任何学区承诺,实际以政府规划为准)
医疗方面:直线距离约3km范围内上海市第七人民医院,海军军医大学第二附属医院,三甲级综合医院上海长征医院浦东新院(在建中),预计24年投入使用,护航家人健康。
眼光去买房。
房产知识解答:
一、现房和期房:
现房是已经建好的房子,而且可以直接领到房产证,过户入住。
二、70年产权
70年产权在我国法律规定中,“土地使用权”与“房屋产权”是两个不同的概念,土地使用权出让的较高年限是:居住用地70年,70年土地使用期满后,土地收归国有,地上建筑物仍然属于业主所有,如果再次申请土地使用权,则应该根据当时的地价水平,补缴土地出让金。
三、公摊
所谓公摊面积,是分摊的公用建筑面积的简称,它与套内建筑面积之和构成了一套商品房的建筑面积。需要分摊的共有建筑面积为整幢建筑物的建筑面积扣除整幢建筑物各套套内建筑面积之和,并扣除作为独立使用的地下室、车棚、车库,为多幢服务的警卫室、管理用房,以及人防工程等之后的建筑面积。
四、容积率
容积率,是指一个小区的地上总建筑面积与用地面积的比率。对于开发商来说,容积率决定地价成本在房屋中占的比例,而对于住户来说,容积率直接涉及到居住的舒适度。一个良好的居住小区,高层住宅容积率应不超过4,多层住宅应不超过1.5,绿地率应不低于40%。
五、得房率
得房率售楼处电话:400-9678-224【售楼热线】=(建筑面积-公摊面积)/销售面积,是买房比较重要的一个指标。计算房屋面积时,计算的是建筑面积,所以得房率太低,不实惠;太高,不方便。因为得房率越高,公共部分的面积就越少,住户也会感到压抑。一般,得房率在80%左右比较合适,公共部分既宽敞气派,分摊的面积也不会太多,比较实惠。
六、房屋使用面积
房屋使用面积是指住宅中以户(套)为单位的分户(套)门内全部可供使用的空间的水平投影面积。包括日常生活起居使用的卧室、起居室和客厅、亭子间、厨房、卫生间、室内走道、楼梯、壁橱、阳台、地下室、假层、附层(夹层)、阁楼(暗楼)等面积。住宅使用面积按住宅的内墙面水平投影线计算。内墙面装修厚度计入使用面积。
七、建筑类型
多层:高于10米、低于或等于24米的建筑物。多层房屋一般为4~8层,一般采用砖混结构,少数采用钢筋混凝土结构。
高层:高于24米的建筑。8层以上(可含8层)的建筑体,一般可分为小高层、高层和超高层。人们一般把8层至12或13层的建筑称为“小高层”。
低层:高度低于或等于10米的建筑物,一般是1~3层建筑物,如平房、别墅等。
Real estate knowledge answer:
1、 Current and future properties:
The current house is already built and can be directly obtained with a property certificate for transfer and occupancy.
2、 70 year property rights
In the legal provisions of China, the term "land use right" and "housing property right" are two different concepts. The higher term for the transfer of land use right is: 70 years for residential land. After the expiration of the 70 year land use period, the land will be nationalized, and the buildings on the ground will still belong to the owner. If the land use right is applied for again, the land transfer fee should be paid according to the current land price level.
3、 Public stall
The so-called shared area is the abbreviation of the shared public building area, which, together with the internal building area, constitutes the building area of a commercial housing. The shared building area that needs to be shared is the total building area of the entire building, minus the total building area of each suite of the entire building, and minus the building area of independ
售楼部热线:400-9678-224欢迎来电咨询! 可预约销售人员,专业一对一热情服务,让您用专业眼光去买房。
注:(免责声明:本宣传资料仅为宣传,内附所有资料,包括任何图片、插图、设计图、文字描述或其他资料,仅供参考或识别之用,不构成合同内容,具体内容以合同内容及政府最终审批为准。项目所涉及数据均为暂定,后期如有改动,请以各项证件及政府批文等为准,本宣传资料部分素材源于网络,最终交付标准以商品房买卖合同及政府等相关部门的批准文件为准。在法律允许的范围内,开发商保留修改本资料的权利,敬请留意。)
声明:本文由入驻焦点开放平台的作者撰写,除焦点官方账号外,观点仅代表作者本人,不代表焦点立场。


