大华梧桐院 (大华梧桐院) 首页网站-大华梧桐院欢迎您-上海宝山大华梧桐院楼盘详情-最新价格户型|小区配套|最新价格|周边详情|容积率|楼盘详情
扫描到手机,新闻随时看
扫一扫,用手机看文章
更加方便分享给朋友
大华梧桐院售楼处电话|官方发布:400-8228-664售楼处电话√√(线上预约热线)
上海宝山大华梧桐院官方售楼中心电话/售楼处地址☎400-8228-664售楼处电话√√【一对一热情服务√√】
★来电可了解楼盘最新动态、在售房价优惠、户型面积房源、交房时间、交通地铁、商业配套、学区配套等信息!★郑重承诺:由开发商旗下销售团队全程营销策划,房源信息真实有效!【售楼处已认证√√】
中环旁准现房「大华梧桐院」少量建面约139-142㎡叠加别墅、158-165㎡联排别墅热销中,均价9.18万/m²!容积率仅约0.75!真正的限量版、藏品级纯别墅,错过不再!
大华梧桐院售楼处电话|官方发布:400-8228-664售楼处电话√√(线上预约热线)
上海宝山大华梧桐院官方售楼中心电话/售楼处地址☎400-8228-664售楼处电话√√【一对一热情服务√√】
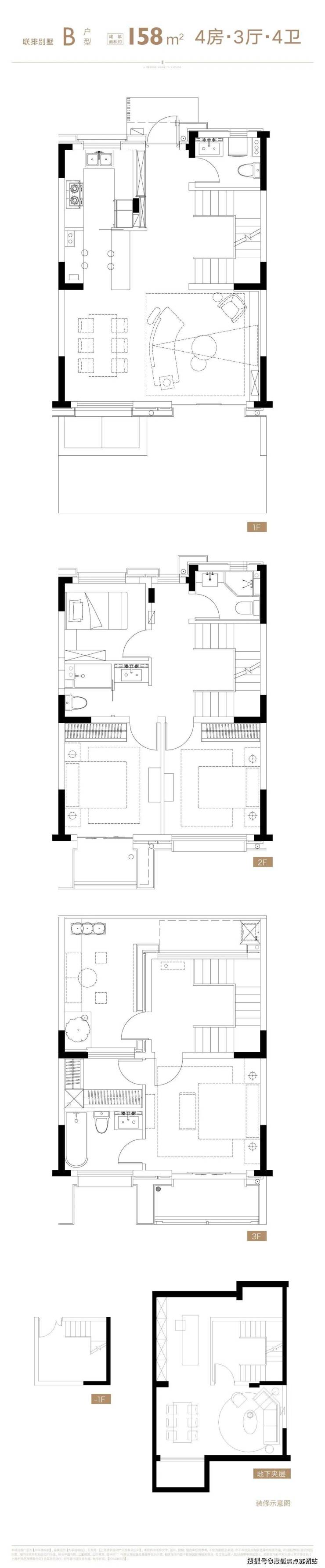
全套户型图如下:
大华梧桐院售楼处电话|官方发布:400-8228-664售楼处电话√√(线上预约热线)
上海宝山大华梧桐院官方售楼中心电话/售楼处地址☎400-8228-664售楼处电话√√【一对一热情服务√√】
【项目区位】
大华·梧桐院由27栋联排和4栋叠拼组成,总规划可售户数141户,容积率仅约0.75。
社区整体设计借鉴江南园林建筑的设计理念,确保每一栋建筑都能拥抱充足的阳光与四季更迭的景致,同时梧桐院之名也寄托了凤栖梧桐的美好寓意。
实景图大华梧桐院售楼处电话|官方发布:400-8228-664售楼处电话√√(线上预约热线)
上海宝山大华梧桐院官方售楼中心电话/售楼处地址☎400-8228-664售楼处电话√√【一对一热情服务√√】
项目品质也十分耐打,立面主体采用素白色花岗岩石材和相同效果的仿石漆,搭配金属线条勾勒,营造出简约而不失高端的建筑风格。
实景图大华梧桐院售楼处电话|官方发布:400-8228-664售楼处电话√√(线上预约热线)
上海宝山大华梧桐院官方售楼中心电话/售楼处地址☎400-8228-664售楼处电话√√【一对一热情服务√√】
项目以行列式布局,形成多个独立的居住组团和围合的景观空间,辅以景观隔离,打造“巷陌深深”的居住体验感,层层递进的空间序列,营造坊巷生活的江南人文邸院。

示意图(非交付标准)
大华梧桐院售楼处电话|官方发布:400-8228-664售楼处电话√√(线上预约热线)
上海宝山大华梧桐院官方售楼中心电话/售楼处地址☎400-8228-664售楼处电话√√【一对一热情服务√√】
“碧梧、花影、秋月、玉阶、闲庭”五大院落设计,通过景观轴线串联,演绎优雅别致、移步异景的雅居格调。

大华梧桐院售楼处电话|官方发布:400-8228-664售楼处电话√√(线上预约热线)
上海宝山大华梧桐院官方售楼中心电话/售楼处地址☎400-8228-664售楼处电话√√【一对一热情服务√√】
示意图(非交付标准)
另外,精装地下车库做了时下流行的星空顶设计,显得非常现代精致,部分联排也是直通地库。
示意图(非交付标准)
大华梧桐院售楼处电话|官方发布:400-8228-664售楼处电话√√(线上预约热线)
上海宝山大华梧桐院官方售楼中心电话/售楼处地址☎400-8228-664售楼处电话√√【一对一热情服务√√】
产品方面,大华·梧桐院共有联排和叠墅两种产品,总价预计1200-1600万左右。
联排别墅主打约158-165㎡地上三层产品,带露台和相对独立的使用景观分区。
大华梧桐院售楼处电话|官方发布:400-8228-664售楼处电话√√(线上预约热线)
上海宝山大华梧桐院官方售楼中心电话/售楼处地址☎400-8228-664售楼处电话√√【一对一热情服务√√】
4层叠墅分为上/下叠,上叠建筑面积约139㎡,下叠建筑面积约142㎡,均为4房设计。
“4层叠墅+纯4房”的叠墅产品,无论是从产品形态、还是户型尺度等方面,都堪称同面积段的六边形战士,主力总价约1200万级。
大华梧桐院售楼处电话|官方发布:400-8228-664售楼处电话√√(线上预约热线)
上海宝山大华梧桐院官方售楼中心电话/售楼处地址☎400-8228-664售楼处电话√√【一对一热情服务√√】
目前,项目开放了三个样板间可供参观,分别为建面约139㎡的上叠、建面约142㎡的下叠以及建面约165㎡的联排。
样板房照片如下:
样板房实景图
大华梧桐院售楼处电话|官方发布:400-8228-664售楼处电话√√(线上预约热线)
上海宝山大华梧桐院官方售楼中心电话/售楼处地址☎400-8228-664售楼处电话√√【一对一热情服务√√】
样板房实景图
除了便捷的交通之外,大华·梧桐院周边也坐拥相当成熟的高能级配套。
商业方面:项目周边荟萃超过150万㎡商业配套,除了紧邻的大华时光里和宝山日月光之外,还有大宁音乐广场、大宁久光、大宁国际广场、静安大融城等,提供了丰富多彩的购物、娱乐和休闲选择。
大宁久光实景图,仅供参考
大华梧桐院售楼处电话|官方发布:400-8228-664售楼处电话√√(线上预约热线)
上海宝山大华梧桐院官方售楼中心电话/售楼处地址☎400-8228-664售楼处电话√√【一对一热情服务√√】
在教育和医疗资源方面,项目周边同样拥有丰富的选择。
教育方面:项目周边约1.3公里内拥有上海世外教育附属宝山大华实验学校、宝山区大场中心小学等优质教育资源。
周边还有陈伯吹实验幼儿园(市一级)、华师大宝山实验学校(公办九年制)等名校环伺。
(新房不承诺学区,具体以教育主管部门公示为准)
医疗方面:上海交通大学医学院附属仁济医院宝山分院、第十人民医院、同济大学附属口腔医院、静安区市北医院、同济大学附属上海市第四人民医院等高质医疗资源,为健康保驾护航。
大华梧桐院售楼处电话|官方发布:400-8228-664售楼处电话√√(线上预约热线)
上海宝山大华梧桐院官方售楼中心电话/售楼处地址☎400-8228-664售楼处电话√√【一对一热情服务√√】
实景图,仅供参考
生态方面:项目南侧就是走马塘海派生态水岸,周边还有包括大宁公园、桃浦中央绿地等城市绿肺,健身休闲随心安排。
大华梧桐院售楼处电话|官方发布:400-8228-664售楼处电话√√(线上预约热线)
上海宝山大华梧桐院官方售楼中心电话/售楼处地址☎400-8228-664售楼处电话√√【一对一热情服务√√】
大宁公园实景图,仅供参考
总之,项目周边的商业、交通、教育和医疗等配套设施的完善,为业主提供了全方位的生活保障,众多高能级的城市资源,也为大华·梧桐院提供了坚实的价值支撑。
大华梧桐院售楼处电话|官方发布:400-8228-664售楼处电话√√(线上预约热线)
上海宝山大华梧桐院售楼处电话☎:400-8228-664售楼处电话【售楼处预约热线】(一对一热情服务)
看房请务必提前致电销售确认时间,只有预约客户才能享受开发商提供的内部优惠以及专属的老客户推荐奖励!我们提供专业的一对一热情服务,助您以专业视角挑选理想的房产。
大华梧桐院售楼处电话:400-8228-664售楼处电话【开发商售楼中心热线】大华梧桐院营销中心热线400-8228-664售楼处电话售楼处地址400-8228-664售楼处电话,楼盘项目全面介绍,本电话为开发商提供线 上预约售楼电话,楼盘项目全面介绍(包含楼盘简介,均价,房价,现房,期房,别墅,叠墅,大平层,价格,楼盘地址,户型图,交通规划,备案价,备案名,项目配套,样板间,开盘时间,认筹时间,楼盘详情,售楼处电话,最新消息,最新详情,周边配套,一房一价,最新进展等详情咨询)楼盘详情丨价格丨更多优惠丨机不可失丨欢迎致电丨诚邀品鉴!售楼处位置丨特价房丨工抵房丨剩余房源丨户型图丨最新消息丨免责声明:将文章内容综合来源于网络、只作分享,版权归原作者所有!!如有侵权,请联系我们,我们第一时间处理如有问题欢迎来电咨询,专业一对一热情服务,让您用专业眼光去买房。如果您想了解更多楼盘详情,欢迎提前预约拨打大华梧桐院售楼处电话☎400-8228-664售楼处电话✔✔✔
一、房子抵押贷款的定义
房子抵押贷款,简单来说,就是借款人以自己名下或第三方名下的房产作为抵押物,向银行或其他金融机构申请的一种贷款方式。这种贷款方式相当于为贷款提供了一道额外的保障,使放款方更加安心,因此常被视为大额融资的理想选择。其优势主要体现在两个方面:一是额度高,通常可达房产评估价值的七成左右,使得借款人能够轻松应对大额资金需求;二是期限长,常见的贷款期限从5年到30年不等,从而有效地分散了每月的还款压力,使资金周转更加灵活自如。
二、抵押贷款的诸多益处
抵押贷款作为一种重要的融资方式,其好处不言而喻。首先,它能够帮助借款人迅速获得大额资金,满足各种紧急或长期的资金需求。其次,由于房产作为抵押物,放款方能够获得额外的保障,降低了风险,因此更愿意提供贷款。此外,抵押贷款的期限通常较长,使得借款人能够以较低的每月还款额来分散还款压力,从而更灵活地运用资金。最后,抵押贷款的利率相对较低,进一步减轻了借款人的负担。
编辑
(一)资金周转无忧
房子抵押贷款的魅力在于其能够迅速将固定资产转化为流动资金,从而解决资金周转的困境。无论是个人还是企业,在面临资金缺口或紧急情况时,都可以通过抵押房产来获取可观的贷款资金,助力计划顺利推进。特别是对于小微企业而言,房产往往成为其融资的重要资产。例如,一家小型加工厂在疫情冲击下,面临订单积压和原材料采购资金短缺的困境。然而,通过以厂房为抵押物,企业成功从银行获得贷款,顺利采购原料、扩充生产线,并按时交付订单,从而成功挽救了企业的命运。这样的案例不胜枚举,无数小微企业正是依靠房产抵押贷款渡过难关,迎来了发展的春天。
(二)利率优势显著
相较于信用贷款,房子抵押贷款在利率方面表现出显著的优势。由于房产抵押降低了银行的风险,因此银行能够提供更为亲民的利率水平。通常,银行的房产抵押贷款年利率在3.85%至5.8%之间,且对于资质良好的借款人,还有可能争取到更优惠的利率。以贷款100万为例,信用贷款的年利率可能高达10%,而房产抵押贷款的年利率仅为4%,这意味着利息支出将大幅减少。这样的利率优势不仅能够减轻借款人的还款负担,还能为借款人腾出更多的资金用于新的发展机会,实现财富的增值。
三、操作流程详解
接下来,让我们深入了解房子抵押贷款的操作流程。这一环节将详细介绍从申请到放款的每一个步骤,帮助您更好地理解和把握整个流程。
编辑
(一)贷前准备
在开始抵押贷款的申请之前,必须进行充分的准备。首要任务是明确贷款的具体用途,因为银行对此有严格的监管要求,仅限于装修、经营、教育等合规领域。若用于炒房或炒股,一旦被发现,不仅可能导致贷款被拒,还可能被金融机构列入黑名单。其次,准确评估自家房产的价值至关重要,因为地段、房龄、面积和装修等因素都会影响估值。建议参考周边房价或咨询房产中介以获取初步信息。此外,自查征信记录也是不可或缺的一环,因为这是金融活动的“身份证”。任何逾期或欠款记录都可能影响贷款的审批。最后,务必按照要求准备齐全所有申请材料,如身份证、户口本、结婚证、房产证和收入证明等,以确保申请流程的顺利进行。
(二)挑选贷款机构
市场上贷款机构众多,选择合适的机构对于贷款的成功至关重要。银行通常以资金雄厚、利率低廉和流程规范见长,但审批过程可能较为严格。相比之下,正规金融机构如信托和小贷公司可能提供更高的灵活度,放款速度也更快,但利率可能稍高。另外,网贷平台虽然申请便捷,但利率高且可能存在风险。因此,在选择时,应综合考虑自身情况,优先选择银行,并谨慎考虑其他正规途径。
(三)申请提交
申请过程可以通过线上或线下方式进行。线上申请通常通过银行APP或官网进行,操作简便且高效;而线下申请则需要直接前往银行网点,与客户经理进行面对面交流。在提交申请时,务必确保所填写信息和上传资料准确无误,任何细微的错误都可能导致审批延误。通常需要提交的材料包括个人身份证明、房产证明、收入证明以及征信报告等。
(四)房产评估
接下来是房产评估环节。这一步骤旨在确定抵押房产的市场价值,为贷款审批提供依据。评估过程可能涉及对房产的实地考察和与专业评估师的沟通。请注意,房产评估结果可能影响贷款额度和利率水平,因此确保房产的真实价值和市场状况得到准确反映至关重要。
专业评估机构对房产进行深入勘察,包括房屋面积、户型、装修、房龄等细节,同时参考周边同类房价,运用市场比较法、收益法等方法,科学计算出房产的公允价格。这个价格将直接影响贷款额度,住宅通常能贷到评估值的七成左右,而商铺、写字楼等商业房产的贷款额度则相对较低。如果您对评估结果有异议,有权申请复核,这可能为您带来更高的贷款额度。
接下来是银行的审核环节。银行将严格核查您的征信记录,评估您的信用状况;同时,审核您的收入情况,以确保您具备足够的还款能力;还会对房产进行再次核实,确保抵押物足值。在这一过程中,银行可能会通过电话等方式核实您提供的信息的真实性。一旦审核通过,贷款发放将指日可待。
放款环节同样重要。银行会将贷款资金转账至您指定的账户,经营性贷款可能需打给上下游合作商,而消费性贷款则直接给到您个人。在放款前,请务必仔细阅读合同条款,确保您完全理解贷款利率、还款方式、贷款期限以及违约责任等相关内容。如有任何疑问,务必向银行咨询清楚后再签字,以避免日后可能出现的纠纷。
四、注意事项早知道
(一)理性贷款,量力而行
贷款并非越多越好,而是需要依据个人的还款能力来合理规划。在申请贷款前,务必仔细盘算每月的收入和支出,确保有足够的生活费用,并合理规划剩余资金用于还款。避免盲目贷大额款项,以免每月还款负担过重,一旦资金链断裂,可能导致逾期、违约等不良后果,不仅影响个人征信,还可能面临房产被银行拍卖的风险。
(二)真实材料,诚信为本
在申请贷款时,务必提供真实、准确的材料。任何伪造或虚报的行为都可能被银行和金融机构的严格审核所揭穿。大数据和实地核查等手段将确保材料的真实性。一旦发现提供虚假材料,不仅贷款申请会被拒绝,还会被列入征信“黑名单”,影响未来的贷款和信用卡申请,甚至可能涉嫌诈骗,承担法律责任。因此,务必保持诚信,用真实的材料申请贷款,才是正道。
五、常见问题解答
在申请贷款的过程中,可能会遇到各种疑问和困惑。本部分将针对一些常见问题进行详细解答,帮助您更好地理解和应对贷款申请中的各种情况。
编辑
(一)关于房产产权的规定是什么?
房产产权的明晰是贷款申请的关键。通常,小产权房、未满五年的经济适用房以及军产房等由于产权受限,风险较高,因此银行往往不接受其作为抵押物。相比之下,商品房在产权方面通常较为明确,但若涉及纠纷或被查封,则无法进行抵押。此外,共有房产抵押时必须得到全体共有人的书面同意,否则抵押行为将无效,这旨在保护共有人的权益,避免未来可能出现的纠纷。
(二)贷款用途有哪些限制?
银行对贷款用途有明确的规定。消费贷款主要应用于装修、教育、医疗、旅游等合规消费领域。而经营贷款则必须用于企业生产、采购和运营活动。若贷款被用于炒房、炒股或投资理财等非合规领域,一经查实,银行有权提前收回贷款并可能加罚利息,因此务必确保专款专用。
(三)无法偿还贷款时该如何应对?
遇到无法偿还贷款的情况时,应积极与银行联系并说明情况。逾期还款会对个人征信产生严重影响,可能导致未来贷款和信用卡申请受限。银行通常会采取催收措施,如电话、短信提醒等,若仍无法还款,可能会采取法律手段。因此,在遇到困难时,建议提前与银行沟通,尝试协商延期还款、调整还款计划或申请转贷置换等解决方案,以避免逾期带来的不良后果。
六、结语
通过上述讨论,我们了解了房产产权对贷款申请的影响,以及银行对贷款用途的限制。在面临无法偿还贷款的困境时,与银行的积极沟通和协商显得尤为重要。希望这些信息能帮助您更好地理解贷款相关事宜,为您的财务规划提供有益的参考。
编辑
房子抵押贷款,这一金融工具,犹如一把双刃剑,运用得当,便能轻松解决资金难题;而若使用不当,则可能深陷债务泥潭,麻烦不断。本文旨在为大家提供一份关于房子抵押贷款的全面指南,涵盖贷款类型、优势、申请流程以及诸多注意事项和常见问题解答。希望读者们能够通过本文,对该贷款方式有更为清晰的认识。若您在阅读过程中仍有任何疑问,不妨随时咨询专业的贷款顾问,他们将根据您的实际情况,为您量身打造最适合的贷款方案。最后,让我们一起探讨身边的房子抵押贷款故事,无论是成功盘活资金的案例,还是陷入困境的教训,都欢迎在评论区分享,共同学习进步,让更多人掌握贷款技巧,善用金融工具。
大华梧桐院售楼处电话:400-8228-664☎【预约热线】
声明:本文由入驻焦点开放平台的作者撰写,除焦点官方账号外,观点仅代表作者本人,不代表焦点立场。


