越秀外滩樾(越秀外滩樾售楼处)首页网站-楼盘详情-户型配套-越秀外滩樾售楼处欢迎您-2025楼盘测评
扫描到手机,新闻随时看
扫一扫,用手机看文章
更加方便分享给朋友
越秀·外滩樾售楼处电话:400-812-3664
上海虹口越秀·外滩樾售楼处电话☎:400-8123-664(预约看房热线)
虹口北外滩
越秀地产+临港集团联手打造
「越秀·外滩樾」
推出约235-338㎡风貌别墅
仅49套!
预计总价4000-8000万
售楼处已开放!
很快入市!
上海虹口【越秀·外滩樾】
售楼处电话☎:400-8123-664【售楼处预约热线】(一对一热情服务)
如有问题欢迎来电咨询,专业一对一热情服务,让您用专业眼光去买房。
过程稿户型图曝光
(户型最终以开发商公示为准):
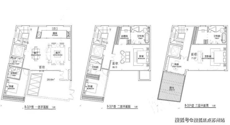
236.25㎡A户型:
越秀·外滩樾售楼处电话:400-812-3664
上海虹口越秀·外滩樾售楼处电话☎:400-8123-664(预约看房热线)
239.13㎡B户型
250.89㎡B-3户型
C户型
291.42㎡D户型
巷弄新生:内环内难得双拼别墅 ,超越风貌建筑的尺度感;
建筑新生:创新风貌规制,致微而筑的建筑腔调赏新;
美学新生:转译远东第一豪宅立面美学,收藏名门望族生活;
材质新生:豪宅同款奢砖、大面积奢石运用,定制家族排场;
*本图片仅为方案过程讨论稿,并非交付标准
越秀·外滩樾售楼处电话:400-812-3664
上海虹口越秀·外滩樾售楼处电话☎:400-8123-664(预约看房热线)
售楼处实景曝光:
越秀·外滩樾售楼处电话:400-812-3664
上海虹口越秀·外滩樾售楼处电话☎:400-8123-664(预约看房热线)
上海历史风貌住宅产品建设进入加速期,随着弘安里、海玥黄浦源的入市,后续更多产品建造进度快速推进。越秀临港虹口156街坊项目也不逞多让,毕竟周边竞品也是多如牛毛。
越秀·外滩樾四至范围,东至:梧州路,隔壁是中皇广场; 西至:hk270B-02,隔壁就是1933老场坊; 南至:周家嘴路 北至:柘皋路。
越秀·外滩樾售楼处电话:400-812-3664
上海虹口越秀·外滩樾售楼处电话☎:400-8123-664(预约看房热线)
从地段来说,属于虹口区北外滩的优势地段。但自从2023年起,包括虹口区自己,以及周边的新静安和杨浦区,类似风格历史风貌别墅项目大量露出,未来竞争压力不小。
越秀·外滩樾嘉兴街道hk270b-04地块是历史风貌保护项目实施主体遴选拿下的地块项目。
项目规划建造全都是地上3层的历史风貌别墅产品,无地下室。拟建49套层联排别墅产品,单独最大面积为338平方米。产品定位为越秀”樾“字系高端产品,有明确的目标客群定位和客户需求刨析。
设计阶段的户型配比表也有:
项目规划层高,1楼为3.6米,2、3楼均为3.2米。小区整体容积率为1.3。
越秀·外滩樾售楼处电话:400-812-3664
上海虹口越秀·外滩樾售楼处电话☎:400-8123-664(预约看房热线)
下面是小区楼栋示意和功能分布图,风貌别墅共49户,1#-21#楼都是住宅:
由于别墅都是毛坯交付,未来业主自己可以根据框架做出更多个性化的设计装修。
让我们来看看该项目的大致规划细节。
越秀·外滩樾售楼处电话:400-812-3664
上海虹口越秀·外滩樾售楼处电话☎:400-8123-664(预约看房热线)
总用地面积10790平方米,地上住宅及配套建筑总面积14027平方米,容积率1.3,单户面积最大为338平方米。工程总投资25.3亿元。
项目计划的开竣工时间为2024年5月27日-2025年8月30日,速度有点出乎意料的快。
按照这样的高节奏动作,入市时间不会太晚,预计很快会来!由于该项目没有公开遴选后的联动价,参考周边产品预计入市单价更可能会在22-23万元左右?总价还算可控。
未来上海市中心风貌别墅多的来真要扑出来了!2年内,至少超过43个风貌别墅项目,超2500+套房源有机会入市!
而目前可以对接用户的风貌别墅包括:
虹口区弘安里(在售中,可看样板间)
虹口区新湖外滩元-天潼198(在售中,可看平层样板间)
杨浦区翠湖滨江(在售中,可看样板间)
杨浦区保利·外滩序(可对接销售)
杨浦区招商桐安里(可对接销售)
杨浦区上海城投兴华里(可对接销售)
静安区信安里(可对接销售)
静安区保利发展永兴里(可对接销售)
静安区象屿中兴路项目(可对接销售)
黄浦区露香园二期(在售中,可看实体楼栋)
黄浦区中海顺昌/恒昌玖里(在售中,可看样板间)
黄浦区上海壹号院(有接待中心)
黄浦区海玥黄浦源(在售中,可看样板间)
黄浦区士林润园(有接待中心)
以上项目,魔都房房房都可以为高净值用户买家进行VIP服务对接,安排风貌项目参观。
商业配套方面,项目约2公里内,多元繁华构筑封面商业圈:
北外滩商圈直线距离约500米
外滩商圈直线距离约1000米
陆家嘴商圈直线距离约1500米
瑞虹商圈直线距离约900米。
项目区域居住氛围浓厚,配套成熟,看看周边实际场景:
越秀·外滩樾售楼处电话:400-812-3664
上海虹口越秀·外滩樾售楼处电话☎:400-8123-664(预约看房热线)
地块距离地铁4、10、19号线换乘站海伦路站约600米,交通十分便捷。
教育方面,2km内就有虹口区第二中心小学、华东师大一附中实验小学、华东师大一附初中等优质配套;
生活方面,地块紧邻上海第一人民医院(三甲),1km左右就有集购物、餐饮、娱乐休闲、办公及服务式公寓为一体的综合商业体——瑞虹天地,商业面积55万方,包括太阳宫、月亮湾、星星堂、瑞虹坊四个部分。
越秀·外滩樾售楼处电话:400-812-3664
上海虹口越秀·外滩樾售楼处电话☎:400-8123-664(预约看房热线)
图源网络,仅供参考
地块西侧的1933老场坊,早前是上海工部局宰牲场;而如今,成为了众多文艺青年打卡拍照的必游胜地。此次也要求保留工部局旧址建面约1800㎡。
图源网络,仅供参考
虹口北外滩
越秀地产+临港集团联手打造
「越秀·外滩樾」
推出约235-338㎡风貌别墅
仅49套!
预计总价4000-8000万
售楼处已开放!
很快入市!
上海虹口【越秀·外滩樾】
售楼处电话☎:400-8123-664【售楼处预约热线】(一对一热情服务)
如有问题欢迎来电咨询,专业一对一热情服务,让您用专业眼光去买房。
越秀·外滩樾售楼处电话:4008123664【开发商售楼中心热线】越秀·外滩樾营销中心热线400-812-3664越秀·外滩樾售楼处地址400-8123-664,楼盘项目全面介绍,本电话为开发商提供线上预约售楼电话,楼盘项目全面介绍(包含楼盘简介,均价,房价,现房,期房,别墅,叠墅,大平层,价格,楼盘地址,户型图,交通规划,备案价,备案名,项目配套,样板间,开盘时间,认筹时间,楼盘详情,售楼处电话,最新消息,最新详情,周边配套,一房一价,最新进展等详情咨询)楼盘详情丨价格丨更多优惠丨机不可失丨欢迎致电丨诚邀品鉴!售楼处位置丨特价房丨工抵房丨剩余房源丨户型图丨最新消息丨免责声明:将文章内容综合来源于网络、只作分享,版权归原作者所有!!如有侵权,请联系我们,我们第一时间处理如有问题欢迎来电咨询,专业一对一热情服务,让您用专业眼光去买房。如果您想了解更多楼盘详情,欢迎提前预约拨打越秀·外滩樾售楼处电话☎400_812_3664✔✔✔
房地产专业知识200问
100、阳台的分类有:封闭式阳台和半封闭式阳台。
101、封闭阳台是指:在围护栏、墙上部用铝合金玻璃窗等围闭的阳台。
102、封闭阳台面积如何计算:全部计算建筑面积。
103、半封闭阳台是指:除围护栏、墙以外没有进行围闭的阳台。
104、半封闭阳台面积如何计算:计算一半建筑面积。
105、楼梯是指:是指房屋层之间供垂直交通用的通道,
106、室外楼梯是指:依靠房屋外墙体搭建的永久性楼梯。
107、屋顶楼梯间是指:突出房屋屋面有顶盖,四周有围护结构,层高在2.20米以上供上屋顶维修或安全出口用的用房。
108、屋顶楼梯间算不算总层高:不算。
109、屋顶电梯间:指突出房屋屋面,层高在2.20米以上,供停放、检修、升降电梯的用房。
110、屋顶电梯间算不算总层高:不算。
111、设备间是指:一幢大楼内放置各种应用设备以及进行综合布线交接的房屋。
112、功能区的意思是:根据各共有建筑部位的用途而划分的服务范围称为功能区。
113、连廊是指:连接两幢房屋的走廊。
114、连楼是指:连接两幢房屋的楼房。
115、过街楼是指:底层局部为通道的楼房。
116、架空通廊是指:指以两端房屋为支撑,有围护结构,有顶盖无支柱的架空通道。
117、围护结构是指:将空间竖向分割成相对独立,不易通行的两个或多个部分的实体,起隔离作用。
118、墙和栏杆算不算围护结构:算。
119、基地面积是指:一个小区总的占地面积。
120、间距是指:建筑平面外轮廓线之间的距离。
121、国家间距标准的比例是:楼高:间距=1:1.2。
122、国家日照标准是:2个以上居住空间大寒日底层满窗连续日照不低于1小时,全天满足2小时。
123、结构面积是指:房屋建筑中外墙、内墙、柱等结构构件所占面积的总和。
124、公用面积是指:住宅楼内为住户方便出入,正常交往而设置的公共走廊、楼梯、电梯间等所占面积总和。
125、公用面积是如何分摊的:按栋或单元户数面积按比率分摊。
126、套内建筑面积是指:套门内范围的建筑面积。
127、套内建筑面积包括:套内使用面积、套内墙体面积和阳台建筑面积。
128、套内使用面积是指:指套内住户独自使用的面积。
129、套内使用面积的计算包括:卧室、厨房、卫生间、过厅、起居室、内走道、阳台、壁柜等净面积的总和。
130、套内墙体面积是指:套内使用空间周围的维护或承重墙体或其它承重支撑体所占的面积。
131、套内墙体面积的计算:全部。
132、各套之间的分隔墙按多少计入套内墙体面积:一半。
133、套与公共建筑空间的分割墙以多少计入套内墙体面积:一半。
134、外墙以多少计入套内墙体面积:一半。
135、套内自由墙体以多少计入套内墙体面积:全部。
136、套内阳台建筑面积是指:阳台外围与房屋外墙之间的水平投影面积。
137、公用建筑面积是指:各产权主体共同占有或共同使用权的建筑面积,指各套(单元)以外为各户共同使用,不可分割的建筑面积。
138、容积率是指:项目规划建设用地范围内全部建筑面积与规划建设用地面积之比。
139、一个项目总建筑面积为64000㎡,占地面积为40亩,容积率是多少:2.4
140、建筑密度又称:建筑覆盖率。
141、建筑密度是指:项目用地范围内所有基底面积之和与规划建设用地之比。
142、人口毛密度的计算公式:人口毛密度=小区内总居住人数÷小区内占地面积。
143、平均每平方米造价(元):平均每平方米造价=建筑物总造价÷建筑面积。
144、使用面积系数K1(%):使用面积系数=总使用面积(平方米)÷总建筑面积(平方米)×100%。
145、居住面积系数K2(%):居住面积系数=总居住面积(平方米)÷总建筑面积(平方米)×100%。
146、绿地率:指公共绿地、宅旁(宅间)绿地、公共服务设施所属绿地和道路绿地等四类绿地面积的总和占居住区用地总面积的比率。
147、公共绿地的介定:最小的要求是宽度不小于8米,面积不小于400平方米,
148、哪些绿化不能算入绿地面积:距建筑外墙1.5米和道路边线1米以内的用地,地下车库、化粪池等地表覆土达不到3米深度的设施不能计入。
149、绿化覆盖率:所有绿化面积与建设用地面积之比。即绿化面积÷基地面积×100%
150、绿化覆盖面积:所有植被垂直投影面积的总和。
151、得房率:指套(单元)内建筑面积与套建筑面积的比率。
152、公共能耗:是小区共用部位、共用设备和公共设施及在公共性服务中所发生的水、电、煤等能源消耗。
153、公共能耗费:因公共能耗而产生的费用
154、公共能耗费由谁承担:由全体业主承担。
155、规划形态是指:项目的具体建筑构成。
156、单元式住宅:是指在多层、高层楼房中的一种住宅建筑形式
157、居住单元:每个楼梯的控制面积称为一个居住单元。
158、一梯几户是指:一个单元里平层有几户的俗称。
159、房型(户型):是指一套住宅由多少卧厅、厨、卫等组成的总称。
160、面积配比:指的是各种房型面积在项目或单元中所占比例的多少。
161、房型配比:指的是各种房型在项目或单元中所占的比例的多少。
162、阁楼:是指位于房屋坡屋顶下部的房间。
163、普通住宅:是指按一般民用住宅标准造的居住用住宅。
164、准现房:准现房是指房屋主体已基本封顶完工,工程正处在内外墙装修和进行配套施工阶段的房屋。
165、居住组团:指一般被小区道路分隔,配建有居民所需的基层公共服务设施的居住生活聚居地。
166、公寓:是指二层以上供多户人家居住的楼房建筑。
167、纯办公楼:是指专为各类公司的日常营运提供办公活动空间的大楼。
168、商场:是指规划为对外公开进行经营的建筑物。
169、综合楼:是指兼有住家、办公甚至商场的大楼。
170、商住住宅:是住宅观念的一种延伸,它属于住宅,但同时又融入写字楼的诸多硬件设施,使居住者在居住同时又能从事商业活动的住宅形式。
171、别墅:是指在郊区或风景区建造的供住宿休养用的花园住宅。
172、联排别墅:三户或三户以上连体的别墅。
173、双拼别墅:二户连体的别墅。
174、独栋别墅:单楼独栋的别墅。
175、跃层式产品:住宅占有上下两层楼南,卧室、起居室、客厅、卫生间、厨房、及其它辅助用房可以分层布置,上下层之间的交通采用户内独用小楼梯联接。
176、跃层式产品的优点:跃层式住宅的优点是每户都有较大的采光面,通风较好,户内居住面积和辅助面积较大,布局紧凑,功能明确,相互干扰较小。
177、复式产品(LOFT):在建造上仍每户占有上下两层,实际是在层高较高的一层楼中增建一个夹层,两层合计的层高要大大低于跃层式住宅。
178、错层式住宅:是指楼面高度不一致错开之处有楼梯联系的住宅。
179、SHOPPING MALL:大型购物广场的英文名称。
180、共有房产:共有房产是指某一房产属于两个或两个以上的所有人共同所有。
181、半地下室:是指房间地面低于室外地平面的高度超过该房间净高的1/3,且不超过1/2者。
182、地下室:地下室是指房间地面低于室外地平面的高度超过该房间净高的1/2者。
183、一地下室室内净高2.6米,2米低于室外地平面,属于半地下室还是地下室:属于地下室。
184、商品房验收合格指的是:单体(即单幢楼盘)验收合格。
185、商品房综合验收合格指的是:包含所有配套设施在内的全部建筑物的验收合格。
186、空鼓:局部面与基层没有胶合剂或胶合剂没有起作用。
187、地基:建筑物下面直接承受建筑物重量的土层称为地基。
188、基础:建筑物的最下端与土壤直接接触的部分称为基础。
189、基础的作用:基础的作用是承受建筑物全部重量并将之分散传递给地基。
190、墙体是构件,也可以是构件:是维护分割构件,同时也可以是承重构件。
191、在一般砖混结构房屋中,墙体也是主要的:承重构件。
192、停车场:指在建设用地内为停放机动车和非机动车须配置的场地。
193、停车场小型机动车位面积计算:按每车位25平方米计算。
194、自行车位按每车位多少平方计算:1.2平方米计算。
195、商品房销售面积又称之为:套建筑面积
196、套建筑面积包括哪两部份:套内建筑面积和分摊的公用建筑面积。
197、商品房预售许可证是由什么单位向什么单位发放的一项证书:是房地产管理部门向房地产开发公司颁发的一项证书。
198、商品房预售许可证的作用是:用以证明列入证书范围内的正在建设中的房屋已经可以预先出售给承购人。
199、契税是指:房屋所有权发生变更时,就当事人所订契约按房价的一定比例向产权承受人征收的一次性税收。
声明:本文由入驻焦点开放平台的作者撰写,除焦点官方账号外,观点仅代表作者本人,不代表焦点立场。


