预计5月26号就公开展厅B1#洋房南立面,层高3.2米。星合荣域花园西项目,即苏园土挂(2024)03号地块。星合荣域西地块位于园区双湖核心,东延路南、西华林街东,坐拥独墅湖一线湖景,西眺金鸡湖大酒店,是苏州…
万众瞩目,终于
星合(晋合)双湖荣域西地块规划出炉
1.02容积率!
326席联排+洋房
洋房建面230/290/350㎡
别墅预计450-700㎡左右
预计5月26号就公开展厅
最快7月就开卖
扫码登记掌握一手消息
咨询热线:18662309054

根据规划,星 合荣域西项目拟建35栋7F洋房+3F联排产品,其中23栋3F联排、12栋7F大平层洋房。
其中据说 洋房面积大概在约230/290/350㎡左右,联排大概约450-700㎡左右!
从总图上看,项目未来社区主入口以及物业配套用房在 西华林街上物业配套用房包含 泳池会所,风雨连廊等。

B1#洋房南立面,层高3.2米。

一梯两户设计

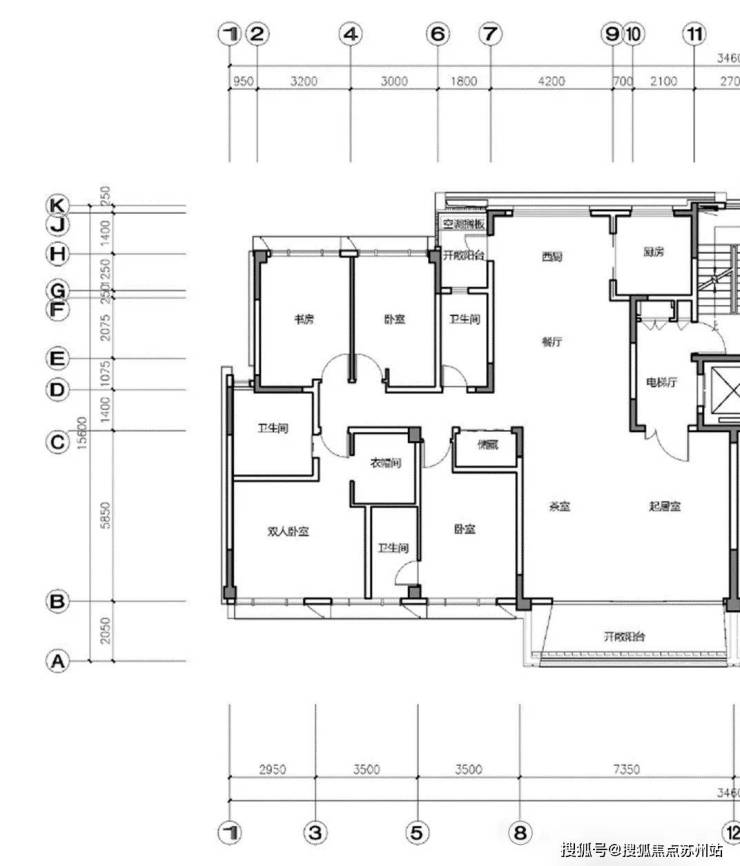
建面 约230㎡户型,4房3卫,南向面宽17.3米,中西双厨,豪华主卧套。
7.35米的南向宽厅(客厅+茶室厅),豪华双人主卧套面宽接近6米,卫生间全明。

装标方面,全装修住宅,装修标准 不低于5000元/平。

星合荣域花园西项目,即苏园土挂(2024)03号地块。
是2024年9月土拍中,星合控股以总价51.98亿竞得, 成交楼面价58000元/㎡,与建屋联袂打造。
星合荣域西地块位于园区双湖核心,东延路南、西华林街东,坐拥独墅湖一线湖景,西眺金鸡湖大酒店,是苏州公认的低密豪宅区。

地块南侧为绿地,视野开阔;周边交通便利,距地铁8号线东延路站1公里,邻瑞广场1.4公里;紧邻苏州大学、西交利物浦大学等高教区,配套优质。整体而言,该地块是园区近年来稀缺的高品质住宅用地。

咨询热线:18662309054
项目预计马上展厅公开,最快7月份开卖,喜欢的提前关注起来。