联仲都悦汇(售楼处)联仲都悦汇售楼中心首页网站丨2025联仲都悦汇欢迎您丨最新楼盘详情-联仲都悦汇售楼处丨2025联仲都悦汇欢迎您-楼盘评测-户型配套
扫描到手机,新闻随时看
扫一扫,用手机看文章
更加方便分享给朋友
联仲都悦汇售楼处电话:400-902-3966
上海联仲都悦汇24小时vip热线☎:400-902-3966(一对一热情服务)
看房请提前致电预约,可享受内部渠道优惠!联系销售人员获取最新一房一价表,售楼处最新优惠底价!开发商销售人员将详细介绍每个户型的独特设计和优势,带您参观样板间,感受精装修的品质和温馨氛围。您还可以了解周边配套设施,包括高端购物中心、优质学校和便捷交通网络,让您的居住体验更加完美。
【开发商】:上海联仲置业有限公司
【物业】:上海仲量联行物业管理公司
【容积率】:1.0
【绿化率】:35%
【车位比】:1:2.1
【物业费】:8元/㎡/月
【本次开盘】:14套
【物业类型】:商业联排别墅
【交付标准】:毛坯
【拿地时间】:2014年8月
【交房时间】:2023年6月
联仲都悦汇售楼处电话:400-902-3966
上海联仲都悦汇24小时vip热线☎:400-902-3966(一对一热情服务)
联仲都悦汇售楼处电话:400-902-3966
上海联仲都悦汇24小时vip热线☎:400-902-3966(一对一热情服务)
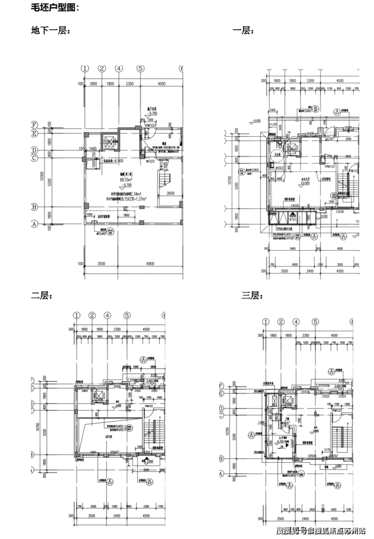
在售户型:建面约310-410平米,地上三层地下一层
(地上:一层层高3.6米/二层层高3.4米/三层层高3.4米/地下层高5.4米)
总价:约1400-1800万️
单价:约5万/平米
小区整体商业:10万方(在建)南北双花园90-300平
水电:商水&商电,电1.3元/度,水6元/吨
产权车位:约30万左右
联仲都悦汇售楼处电话:400-902-3966
上海联仲都悦汇24小时vip热线☎:400-902-3966(一对一热情服务)

联仲都悦汇售楼处电话:400-902-3966
上海联仲都悦汇24小时vip热线☎:400-902-3966(一对一热情服务)
02.户型图及样板间照户
(特殊说明:户型朝向-上南下北)
约10.4米大面宽,面积达到55平
送电梯,北进门,南花园,超大地下室
客厅7米落地窗,采光明亮,尽显大气
约310平户型图▼

联仲都悦汇售楼处电话:400-902-3966
上海联仲都悦汇24小时vip热线☎:400-902-3966(一对一热情服务)
约378~420平户型图▼

联仲都悦汇售楼处电话:400-902-3966
上海联仲都悦汇24小时vip热线☎:400-902-3966(一对一热情服务)
约407~441平户型图▼

联仲都悦汇售楼处电话:400-902-3966
上海联仲都悦汇24小时vip热线☎:400-902-3966(一对一热情服务)
样板间效果图如下:
联仲都悦汇售楼处电话:400-902-3966
上海联仲都悦汇24小时vip热线☎:400-902-3966(一对一热情服务)
联仲都悦汇售楼处电话:400-902-3966
上海联仲都悦汇24小时vip热线☎:400-902-3966(一对一热情服务)
联仲都悦汇售楼处电话:400-902-3966
上海联仲都悦汇24小时vip热线☎:400-902-3966(一对一热情服务)
联仲都悦汇售楼处电话:400-902-3966
上海联仲都悦汇24小时vip热线☎:400-902-3966(一对一热情服务)
联仲都悦汇售楼处电话:400-902-3966
上海联仲都悦汇24小时vip热线☎:400-902-3966(一对一热情服务)
联仲都悦汇售楼处电话:400-902-3966
上海联仲都悦汇24小时vip热线☎:400-902-3966(一对一热情服务)
联仲都悦汇售楼处电话:400-902-3966
上海联仲都悦汇24小时vip热线☎:400-902-3966(一对一热情服务)
联仲都悦汇售楼处电话:400-902-3966
上海联仲都悦汇24小时vip热线☎:400-902-3966(一对一热情服务)
联仲都悦汇售楼处电话:400-902-3966
上海联仲都悦汇24小时vip热线☎:400-902-3966(一对一热情服务)
联仲都悦汇售楼处电话:400-902-3966
上海联仲都悦汇24小时vip热线☎:400-902-3966(一对一热情服务)
03.项目区位配套
【联仲·都悦汇】位于闵行马桥旗忠别墅区,旗忠别墅区是上海老牌的富人区,与松江佘山、浦东东郊齐称为沪上三大国际别墅区。上海仅存少量的容积率0.18以下超低密度居住用地中,大多数在马桥旗忠别墅区。
联仲都悦汇售楼处电话:400-902-3966
上海联仲都悦汇24小时vip热线☎:400-902-3966(一对一热情服务)
板块以低容积率、生态自然环境和高端国际品牌配置,2010年被列为上海第二批大型居住社区之一。总建面约33万方城市综合体联仲都悦汇位于旗忠板块正核心,紧临网球中心,超10万方市政绿化所环绕。
联仲都悦汇售楼处电话:400-902-3966
上海联仲都悦汇24小时vip热线☎:400-902-3966(一对一热情服务)
【联仲都悦汇】同样是低密度别墅区里的一员,背靠绿城玫瑰园,容积率低至1.0。项目贯穿了3条自然水系,分为ABCD四个地块,其中ABC为商住办综合地块,自带商业办公。
联仲都悦汇售楼处电话:400-902-3966
上海联仲都悦汇24小时vip热线☎:400-902-3966(一对一热情服务)
交通配套方面:项目距离嘉闵高架元江路出口3公里,毗邻G15、S32等快速主动脉,30分钟大虹桥,50分钟抵达浦东机场,快捷畅达全城。
联仲都悦汇售楼处电话:400-902-3966
上海联仲都悦汇24小时vip热线☎:400-902-3966(一对一热情服务)
地铁:5号线华宁路站,剑川路站
公交:马莘专线:联工路站,闵行19路:银春路华宁路站
高速:嘉闵高架、沪金高速、虹梅南路高架沪昆高速、申嘉湖高速、沪闵高架
高铁:距离上海虹桥枢纽站(高铁、机场)约20km
未来规划:嘉闵线延伸段
(以上数据来源于高德地图)

联仲都悦汇售楼处电话:400-902-3966
上海联仲都悦汇24小时vip热线☎:400-902-3966(一对一热情服务)
商业配套方面:项目自带10万方商业,为旗忠唯一的综合性商业配套,其多元化的业态结构,结合旗忠独有的资源,必将带来旗忠全新生活方式。
联仲都悦汇售楼处电话:400-902-3966
上海联仲都悦汇24小时vip热线☎:400-902-3966(一对一热情服务)
联仲都悦汇售楼处电话:400-902-3966
上海联仲都悦汇24小时vip热线☎:400-902-3966(一对一热情服务)
联仲都悦汇售楼处电话:400-902-3966
上海联仲都悦汇24小时vip热线☎:400-902-3966(一对一热情服务)
生态资源方面:项目周边有马桥森林公园、旗忠高尔夫球场、旗忠网球中心、韩湘水博园、养云安缦酒店等。
联仲都悦汇售楼处电话:400-902-3966
上海联仲都悦汇24小时vip热线☎:400-902-3966(一对一热情服务)
教育资源方面:周边有复旦万科实验学校,德威英国国际学校、斯代文森国际高中、上海美高学校。幼儿园:元祥幼儿园、富杰幼儿园启英幼儿园,大学:上海交通大学、华东师范大学

联仲都悦汇售楼处电话:400-902-3966
上海联仲都悦汇24小时vip热线☎:400-902-3966(一对一热情服务)

联仲都悦汇售楼处电话:400-902-3966
上海联仲都悦汇24小时vip热线☎:400-902-3966(一对一热情服务)

联仲都悦汇售楼处电话:400-902-3966
上海联仲都悦汇24小时vip热线☎:400-902-3966(一对一热情服务)

联仲都悦汇售楼处电话:400-902-3966
上海联仲都悦汇24小时vip热线☎:400-902-3966(一对一热情服务)
联仲都悦汇售楼处电话:400-902-3966【预约☎】√√楼盘项目全面介绍,本电话为开发商提供线上预约售楼电话,楼盘项目全面介绍(包含楼盘简介,均价,房价,现房,期房,别墅,叠墅,大平层,价格,楼盘地址,户型图,交通规划,备案价,备案名,项目配套,样板间,开盘时间,认筹时间,楼盘详情,售楼处电话,最新消息,最新详情,周边配套,一房一价,最新进展等详情咨询)楼盘详情丨价格丨更多优惠丨机不可失丨欢迎致电丨诚邀品鉴!售楼处位置丨特价房丨工抵房丨剩余房源丨户型图丨最新消息丨免责声明:将文章内容综合来源于网络、只作分享,版权归原作者所有!!如有侵权,请联系我们,我们第一时间处理如有问题欢迎来电咨询,专业一对一热情服务,让您用专业眼光去买房。如果您想了解更多楼盘详情,欢迎提前预约拨打联仲都悦汇售楼处电话:400-902-3966【预约☎】√√
买房须知的18个常识是什么?
1、查看五证,所谓五证就是指《国有土地使用证》、《建筑用地规划许可证》、《建筑工程规划许可证》、《建筑工程施工许可证》和《商品房预售许可证》。
2、买房其实选择口碑好的开发商很有必要。一般好的开发商资质高、资金充足。
3、选户型,挑选户型时,首先要看户型的朝向。朝向优劣的顺序依次为:正南、东南、东、西南、北、西。
4、选楼层,中间层房屋的空气质量相较于低层更好,出行较高层更方便,可以说是折中。
5、很多购房者认为,当下房价过高,所以买房时,一般会在同等区域、同等地段选择价位便宜的楼盘。正确的做法是多学习选房知识,关注户型好坏,房屋质量等干货。
6、评估购房能力,对于刚需族来说,由于他们的经济能力有限,所以都会采取贷款的方式买房。而贷款每个月需要交一定数额的月供,为了保证生活质量不受影响,避免断供的风险,小编建议月供的数额最好控制在总收入的50%以内。
7、看优惠,对于开发商给出的优惠,要多打听,多分析,多判断,不要盲目追风。
8、莫心急,年轻人置业时,不宜好大喜贵,应抛弃置业必须一步到位的思想,根据自身所能承受的范围,作出合理的决策。
9、看规划,买房当然要挑楼盘,挑小区,挑户型,但是也不能只看房子,还要看房子的位置。毕竟,决定房子价值最大的因素便是地段,建议在购置房产时,要切记紧跟城市发展的方向。
10、看价格,价格挑选比较个人承受范围、交通状况、社区环境、户型结构等条件衡量楼盘价格。
11、小区环境,小区景观、绿化、配套等与生活密切相关,更是楼盘质量的体现。
12、避免极端层,顶层和底层不建议买,底层不仅容易潮湿,发霉,滋生蚊子,光线也不好,顶层一到大夏天,不仅闷热,不透气,还容易漏水。
13、远离设备层,设备层是专门供水,供电的中间楼层,要是常年居住在设备层的附近的话,不仅机器设备的噪音把人折磨得无法休息,连机器的辐射也会影响人的身体健康。
14、不可一味买大,看房一定要综合考虑,不可片面。首先是面积,面积以适用为原则,不可为大而大。
15、考虑孩子问题,买地产要考虑孩子路上的安全问题,尽量选择距离近的房子。这样可以给孩子节约大量的时间,让孩子有充裕的时间学习和休息。
16、购房定金,定金对买受人是极为不利的,使买受人在签约的时候处于不利的境地,买受人往往在定金不退的压力下,违心地接受开发商的不平等条款。
17、物业,不同的物业公司所做的服务千差万别,物业公司能否尽善尽美地完成自己的任务牵扯到小区的整体质量。
18、签认购书,认购书基本条款要约定详细,对所要购买的房屋的主要情况在认购书中予以约定。条款内容约定要合法有效,要求开发商提供作为正式签约的商品房买卖合同文本
目前北京、上海、深圳的首套房贷款利率均为 LPR - 45BP,本次 LPR 下降后,这些地区首套房贷款利率或降至 3.05%。全国 45 个重点城市 4 月首套房贷款平均利率为 3.10%,二套房贷款平均利率为 3.21%。
此外,自 2025 年 5 月 8 日起,个人住房公积金贷款利率下调 0.25 个百分点,5 年以下(含 5 年)和 5 年以上首套个人住房公积金贷款利率分别调整为 2.1%和 2.6%,5 年以下(含 5 年)和 5 年以上第二套个人住房公积金贷款利率分别调整为不低于 2.525%和 3.075%
联仲都悦汇售楼处电话:400-902-3966
上海联仲都悦汇24小时vip热线☎:400-902-3966(一对一热情服务)
声明:本文由入驻焦点开放平台的作者撰写,除焦点官方账号外,观点仅代表作者本人,不代表焦点立场。


