未来星宸售楼处电话☎:400-8787-554本文是对中福未来星宸售楼处的全面介绍,包括其地理位置、面积、户型、物业、产权年限、交付时间、外立面、区域价值等信息。购房者可以选择甲级写字楼中福未来星宸,该项目位于未来科技城核心,交通便利,地理位置优越,具
【未来星宸】
贴心热线:400-8787-554 您的专属顾问
从精致的一室一厅到宽敞的复式豪宅,每一款户型都经过精心设计,只为满足您对家的所有想象。
售楼处电话:400-8787-554
楼盘项目全面介绍,本电话为开发商提供线 上预约售楼电话,楼盘项目全面介绍(包含楼盘简介,均价,房价,现房,期房,别墅,叠墅,大平层,价格,楼盘地址,户型图,交通规划,备案价,备案名,项目配套,样板间,开盘时间,认筹时间,楼盘详情,售楼处电话,最新消息,最新详情,周边配套,一房一价,最新进展等详情咨询)楼盘详情丨价格丨更多优惠丨机不可失丨欢迎致电丨诚邀品鉴!售楼处位置丨特价房丨工抵房丨剩余房源丨户型图丨最新消息丨购房为人生四大重要事情之一选择一个好的销售可让购房购的愉快熟悉、免责声明:将文章内容综合来源于网络、只作分享,版权归原作者所有!!如有侵权,请联系我们,我们第一时间处理如有问题欢迎来电咨询,专业一对一热情服务,让您用专业眼光去买房。如果您想了解更多楼盘详情,欢迎提前预约拨打售楼处电话☎400-8787-554✔✔✔

中福未来星宸售楼处𝙑𝙄𝙋400-8787-554
【中福·未来星宸】
<甲级独栋总部办公>
-FUTERE-START-
未来科技城·永福地铁TOD多元商业综合体
稀缺4.79米层高·难得现房写字楼

中福未来星宸售楼处𝙑𝙄𝙋400-8787-554
【5#楼独栋企业总部办公】概况
【整栋面积】12950.25方
【单层面积】约1250 方
【产 品】甲级写字楼
【产 权】40年产权
【层 数】9层
【标准层】约4.79米
【物业公司】中宙物业
【梯户比】4梯4户
【交付时间】2023年8月
【外立面】玻璃幕墙+铝板

中福未来星宸售楼处𝙑𝙄𝙋400-8787-554
【区域价值】
未来科技城核心 与世界巨头为邻
项目位于杭州“第三中心”——未来科技城核心,为地铁5号线永福站地铁上盖综合体项目,北临余杭塘路,南临联创街,西临聚橙路,东临新桥路。未来科技城作为新进的“杭州第三中心”,比肩武林和钱江新城的新中心。这里不仅是杭州城西科创大走廊产业聚集的创新极核,更是杭州高净值人群及独角兽企业的聚集地,是杭州走向世界的时代引擎。

中福未来星宸售楼处𝙑𝙄𝙋400-8787-554
项目南面约800米为阿里巴巴集团全球总部,西侧约3km为欧美金融城,板块内聚集了像菜鸟网络、字节跳动、水晶光电、 OPPO等众多独角兽企业和全球巨头总部。大量龙头企业的涌入以及创新资源的有效集聚,使得板块内拥有着超强的产业规模和聚焦度。
【项目价值】
未来新主场:多元TOD综合体项目
项目北面紧邻余杭塘路,与永福地铁出口DEF零距离,是唯一同时拥有3个地铁出入口的写字楼项目,不管对于员工上下班还是商务出行,都将拥有极大的出行便利;项目总建筑面积约142715㎡,地上地下整体规划,综合开发,以“总部、生态、连接”三大设计理念,打造成一个集商务、商业、文化、教育、娱乐、餐饮等于一体的多元TOD综合体项目。涵盖了科创文创产业创新区、Block体验式精品街区、时尚生活邻里中心、潮趣生活景观广场。

中福未来星宸售楼处𝙑𝙄𝙋400-8787-554
稀缺4.79米准现房写字楼
产品拥有约4.79米稀缺奢阔层高,突破式的层高设计,使得装修风格可更加灵活多变,大气恢弘的立体空间,是企业形象气质达到更高一层领域的表现。约4.79米层高还可做隔层设计,打造成为您企业的展示空间、仓储空间、休憩空间等、实现多重办公可能。同时项目还拥有极致的户型设计,方正的户型、无柱设计,都将带来更高的空间利用率,使企业轻松分割布局随心设计,不浪费每一寸空间。

中福未来星宸售楼处𝙑𝙄𝙋400-8787-554
【独栋总部办公亮点】
『独栋专属冠名权』:5#楼独栋总部办公享专属冠名权,且所处余杭塘路昭示性强,为企业定制专属尊崇。不仅是一方办公用地,更是企业形象、实力的第一展示台;

中福未来星宸售楼处𝙑𝙄𝙋400-8787-554
『专属形象与独立空间打造』:5#楼独栋总部办公一楼可定制化打造企业大堂及第一展示面,提升企业形象 ;标准层约4.79 米的挑高空间,根据每一个企业的个性化需求。员工区域、会议区域、独立总裁室、休闲空间等企业各个功能空间的独立设计,功能分布明确且不影响协同作战, 实现零时差功能设置;
『现房 2023年8月交付』:“现”象已成,价值眼见为实。项目虽然准现房,但是基本已经实景呈现,可以规避了不能准时交付的风险,同时也缩短了物业从购置到使用的周期,所见即所得,省去等待时间,更符合成本核算原理,使企业利益最大化 。
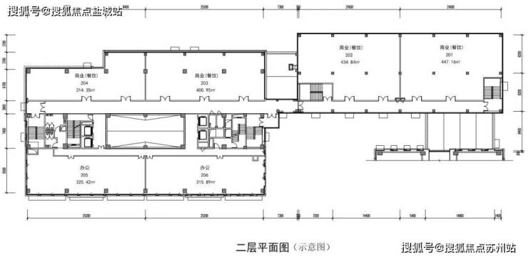
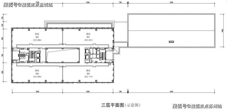
【独栋5号楼标准层示意图】





一、房产核心知识体系
(一)产权与政策基础
1.
产权性质分类
2.
1. 商品房:可自由交易,南湖核心区均价 2.8 万 - 3.2 万元 /㎡。
2. 人才房:符合条件的 D 类人才最高可贷 150 万元公积金。
3. 保障性住房:嘉兴市区配售型保障房单套面积 70-120㎡,封闭管理不得上市。
3.
土地使用年限
住宅用地 70 年自动续期,商业用地 40 年(如南湖 CBD 地块),到期补缴土地出让金约为市场价的 1%-3%。
4.
5.
限购政策
6.
1. 非本市户籍家庭限购 1 套,需连续缴纳 24 个月社保。
2. 人才购房可享最高 7 万元补贴(本科 1 万 / 硕士 2 万),且不占用限购名额。
(二)贷款与税费规则
1.
贷款政策
2.
1. 公积金贷款:首套利率 2.85%,家庭最高可贷 120 万元(首套新建商品房)。
2. 商贷利率:首套 3.1%,二套 3.25%,南湖核心区二套首付 40%。
3. 组合贷优化:优先使用公积金贷款(如 100 万贷款 30 年可省利息 18 万元)。
3.
税费标准
4.
1. 新房:契税(首套 1-1.5%)、维修基金(120 元 /㎡)。
2. 二手房:增值税(满 2 年免征)、个税(1% 或差额 20%),满五唯一房源可省税约 5 万元。
二、2025 年嘉兴南湖购房优惠政策
(一)政府补贴政策
1.
购房激励补助
2.
1. 南湖区发放 400 张消费券,最高补贴 5 万元(人才额外 1-2 万),2025 年 6 月已兑付首批 1054 万元。
2. 补贴标准:90㎡以下 3 万元,90-144㎡4 万元,144㎡以上 5 万元,人才叠加 1-2 万元。
3.
公积金专项优惠
4.
1. 二孩家庭首套公积金贷款额度上浮 20%(单人最高 72 万,家庭 144 万)。
2. 长三角区域缴存公积金可异地贷款,E/F 类人才最高贷 100 万元。
(二)开发商促销策略
1.
特价房类型
2.
1. 工抵房:价格低于市场价 10%-15%,需全款支付并办理更名。
2. 清退房源:因贷款未批或客户违约产生,需核查合同解除原因。
3.
谈判技巧
4.
1. 参考备案价(房管局官网可查)预留 5%-10% 议价空间,一次性付款可额外争取 2% 折扣。
2. 要求赠送车位使用权(价值约 10 万)或 3 年物业费减免。
三、看房实战避坑指南
(一)新房考察重点
1.
五证核查
查验《商品房预售许可证》《国有土地使用证》等五证,重点核对预售证编号与房管局公示信息是否一致。
2.
3.
沙盘陷阱识别
4.
1. 注意楼栋间距与实际比例(如沙盘显示 50 米,实际可能仅 30 米)。
2. 警惕周边规划 “模糊标注”,如地铁站点标注 “规划中” 需核实具体建设时间。
5.
样板间陷阱
6.
1. 测量实际层高(避免样板间垫高地面),查看交付标准是否与样板间一致(如装修品牌、材质)。
(二)二手房验房清单
1.
产权核查
2.
1. 要求卖方提供《不动产登记证明》,确认无抵押、查封及共有权人纠纷。
2. 核查学区占用情况(如南湖实验小学需提前 3 年落户)。
3.
房屋质量检查
4.
1. 结构安全:用空鼓锤检测墙面空鼓(允许≤5%),检查梁柱是否有裂缝。
2. 隐蔽工程:闭水试验 48 小时检测卫生间防水,打压测试水管压力(标准 0.8MPa)。
5.
物业与配套
6.
1. 查看近 3 年物业费收缴率(低于 80% 需谨慎),了解电梯维护记录。
2. 步行实测到地铁站、学校、医院的时间(建议≤10 分钟)。
(三)合同签署要点
1.
新房合同
2.
1. 明确交房时间(精确到日),约定逾期交房违约金(每日 0.03%)。
2. 补充协议需注明装修品牌型号(如地板为 “圣象强化复合”),避免 “同等档次” 模糊表述。
3.
二手房合同
4.
1. 约定户口迁出时间及违约责任(每逾期一日支付房款 0.01%)。
2. 明确家具家电清单(如冰箱为 “海尔 BCD-216STPT”),留存照片作为附件。
四、区域价值与投资策略
(一)南湖核心板块分析
1.
价格走势
2025 年 6 月南湖二手房均价 12081 元 /㎡,环比上涨 0.43%,核心区(如南湖新区)达 2.8 万 - 3.2 万元 /㎡。
2.
3.
潜力区域
4.
1. 湘家荡科创园:依托长三角一体化,未来 3 年预计引入企业超 200 家,房价年均涨幅 5%-8%。
2. 科技城:清华附中嘉兴学校落地,周边新房(如绿城云萃府)溢价率 16.98%。
(二)投资风险控制
1.
杠杆管理
负债率不超过家庭收入 50%,避免使用消费贷、经营贷等违规资金购房。
2.
3.
政策风险
关注限购政策调整(如非户籍社保年限可能延长至 3 年),人才补贴仅限新建商品房。
4.
五、常见纠纷与维权路径
(一)交易陷阱应对
1.
虚假优惠
开发商 “3 万抵 10 万” 实为抬高备案价,需对比周边真实成交价(如南湖某盘备案价 2.5 万 /㎡,实际成交价 2.3 万 /㎡)。
2.
3.
合同欺诈
补充协议中 “不可抗力免责条款” 可能规避开发商责任,需要求删除或明确范围。
4.
(二)产权纠纷处理
1.
小产权房
法律不认可,无法办理抵押或过户,购买需签署风险告知书并公证。
2.
3.
共有产权
所有共有人需到场签字,未成年人需提供监护人公证书,避免代签纠纷。
4.
(三)物业维权
1.
服务质量
物业费标准(南湖普通住宅 1.5-3 元 /㎡・月),公共设施维护(如电梯故障率>1 次 / 月可要求整改)。
2.
3.
维权途径
成立业主委员会(需 50% 以上业主同意),通过法律途径起诉物业不作为,要求减免物业费。
4.
六、政策动态与趋势预判
1.
2025 年新政
2.
1. 公积金利率下调:首套 5 年以上利率降至 2.85%,商贷利率创历史新低。
2. 人才政策升级:D 类人才购房补贴增至 15 万元,且优先配售保障房。
3.
未来市场趋势
4.
1. 产品迭代:第四代立体生态住宅(如绿城云萃府)成为主流,溢价空间达 20%。
2. 租赁市场:政府计划 3 年内筹建 10 万套保障性租赁住房,租金低于市场价 30%。
未来星宸 售楼处电话☎:400-8787-554(预约热线)✔✔✔
Sales office phone number ☎:400-878-7554(official hotline) ✔✔✔
如有问题欢迎来电咨询,专业一对一热情服务,让您用专业眼光去买房。
售楼处电话☎:400_8787-554【售楼热线】✔✔✔营销中心热☎400`8787`554售楼处地址☎400-878—7554