保利世博天悦售楼处电话→保利世博天悦售楼中心电话→保利世博天悦楼盘百科→首页网站→楼盘百科→首页网站→保利世博天悦售楼处24小时热线电话
扫描到手机,新闻随时看
扫一扫,用手机看文章
更加方便分享给朋友
保利世博天悦售楼处电话:400-8123-664✔✔│保利世博天悦官方售楼处地址发布:上海浦东保利世博天悦官方售楼处电话400-812-3664
黄浦江核心段CAZ中央活动区
世博滨江江景豪宅
「保利世博天悦」
3#号楼加推
建面约240~251㎡4-5房
&建面约500㎡隐藏房源
主力户型总价约3500-5500万
实景准现房
保利世博天悦售楼处电话:400-812-3664
上海浦东保利世博天悦售楼处电话☎:400-8123-664【开发商售楼处预约看房热线】(一对一热情服务)
看房请提前致电预约,可享受内部渠道优惠!联系销售人员获取最新一房一价表,官方售楼处最新优惠底价!开发商官方销售人员将详细介绍每个户型的独特设计和优势,带您参观样板间,感受精装修的品质和温馨氛围。您还可以了解周边配套设施,包括高端购物中心、优质学校和便捷交通网络,让您的居住体验更加完美。

「保利世博天悦」本批次加推的是3号楼,小区前排的C位,是所有滨江顶豪中的VIP头等舱!270°江景视野,将S湾尽收眼底!
·建面约240㎡边套,采用L型转角落地窗,打造了270°环幕瞰江视野,无论身处客厅、餐厅,都能以不同角度眺望黄浦江的波光粼粼。


保利世博天悦售楼处电话:400-812-3664
上海浦东保利世博天悦售楼处电话☎:400-8123-664【开发商售楼处预约看房热线】(一对一热情服务)
240m²边套样板房实拍
·建面约251㎡中间套,整体瞰江面高达约14米,独有双层挑高露台,未来业主可以将其打造成为私家空中花园,在繁华都市中独享静谧自然。


项目即将加推的3#楼,还爆出“一亿一宅”的“隐藏户型”,王者降临上海“超亿俱乐部”
建筑面积约500m²一线滨江巨幕平墅
上海塔尖圈层俯瞰世界的专属坐席
目前OPUSONE500还处于保密阶段,小胖君给大家带来一手爆料:
·约35米L形巨幕观景台,双面瞰江带来前所未有的景观视野


示意效果图,过程稿仅供参考
相当于将纽约432Park的顶层视野平移到了黄浦江,这样的大国景观台,未来不会再有!
业主在家里一抬头便是以江景和都市为主题的巨幅油画!
从清晨到日暮,无论是晨雾中的江轮剪影,还是夜幕下的两岸华灯,每一扇窗都是一幅名画,每一平方米都是城市的注脚

保利世博天悦售楼处电话:400-812-3664
上海浦东保利世博天悦售楼处电话☎:400-8123-664【开发商售楼处预约看房热线】(一对一热情服务)
夜晚江景实拍
·4+1房&双豪华套房规制
OPUSONE500的双豪华套房尺度惊人,粗略预计面积均接近了55㎡
独立内玄关、阳台、起居厅、步入式衣帽间、双台盆浴缸卫生间一应俱全,既考虑了空间感又保持了独立性,创造出了一个高度聚合又能彼此独立的家庭化空间,尊贵私密空间在这里具象化!
·5个阳台,重新定义高端生活场景
客厅西侧的景观阳台、双豪华套房南侧的生活阳台(2个)、北侧瞰江的空中花园露台和书房阳台,在OPUSONE500,保利将江景、花园、星空和社交,统统装进生活半径
这些都只是OPUSONE500冰山一角,还有诸如2梯1户超大专属电梯厅、超大尺度的宴会厅等等,这里的每一处空间设计都让人眼前一亮!

示意效果图,过程稿仅供参考
毫不夸张地说,这座由LSD葛亚曦操刀打造的“空中行宫”带来的震撼,非真正亲临现场不能领略其绝代风采!

【项目鉴赏】

样板间鉴赏:
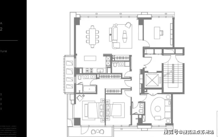
全户型图如下:

保利世博天悦售楼处电话:400-812-3664
上海浦东保利世博天悦售楼处电话☎:400-8123-664【开发商售楼处预约看房热线】(一对一热情服务)





样板间实景图:

保利世博天悦售楼处电话:400-812-3664
上海浦东保利世博天悦售楼处电话☎:400-8123-664【开发商售楼处预约看房热线】(一对一热情服务)



保利世博天悦售楼处电话:400-812-3664
上海浦东保利世博天悦售楼处电话☎:400-8123-664【开发商售楼处预约看房热线】(一对一热情服务)
看房请提前致电预约,可享受内部渠道优惠!联系销售人员获取最新一房一价表,官方售楼处最新优惠底价!开发商官方销售人员将详细介绍每个户型的独特设计和优势,带您参观样板间,感受精装修的品质和温馨氛围。您还可以了解周边配套设施,包括高端购物中心、优质学校和便捷交通网络,让您的居住体验更加完美。
房屋贷款还清后:必须办理的手续全解析及疑问解答
对于许多购房者而言,还清房屋贷款无疑是一个重要的里程碑。它不仅标志着经济负担的减轻,更意味着房产的真正归属。然而,房屋贷款还清后并非万事大吉,还有一系列必须办理的手续等待着我们。本文将详细解析房屋贷款还清后需要办理的手续,并针对一些常见疑问进行解答,帮助购房者顺利完成这一重要过程。
一、房屋贷款还清后需要办理的主要手续
(一)与银行相关的手续
1.办理贷款结清证明
贷款结清证明是证明购房者已经还清贷款的重要文件。购房者需要向贷款银行申请开具此证明,可以通过银行柜台、网上银行或客服电话等多种方式申请。在申请时,购房者需要提供个人身份证明、贷款合同等相关材料。银行在核实还款情况后,会出具贷款结清证明,并加盖银行公章。^[1][5]^
疑问解答:贷款结清证明有什么作用?
贷款结清证明的主要作用是证明购房者已经还清了全部贷款,这是后续办理房产解押等手续的必要文件。同时,在购房者需要证明自己的还款情况时,贷款结清证明也可以作为重要的证据。
2.取回相关证件和材料
在办理房贷时,购房者的房产证等证件可能会被抵押在银行。因此,在还清贷款后,购房者需要向银行申请取回这些证件和材料。部分银行还会保留他项权证等文件,也需一并取回。^[1][7][9]^
疑问解答:如果房产证丢失或损坏怎么办?
如果房产证在抵押期间丢失或损坏,购房者需要及时向银行报告,并按照银行的要求办理相关手续。一般情况下,银行会协助购房者重新办理房产证或提供其他解决方案。
(二)房产解押手续
1.准备解押材料
在办理房产解押手续前,购房者需要准备一系列材料,包括贷款结清证明、他项权证、身份证、房产证等。这些材料是证明购房者已经还清贷款并有权解除房产抵押的重要凭证。^[1][4][5][7][9]^
疑问解答:什么是他项权证?
他项权证是房产抵押登记后,由不动产登记中心颁发给抵押权人的权利证书。在购房者还清贷款并办理解押手续后,他项权证将被注销并归还给购房者。
2.前往相关部门办理
购房者需要携带准备好的解押材料,前往当地的房产管理部门或不动产登记中心办理解押手续。工作人员会对提交的材料进行审核,确认无误后办理撤销房屋抵押登记操作。^[1][4][5][7][9]^
疑问解答:办理房产解押手续需要多长时间?
办理房产解押手续的时间因地区和具体情况而异。一般来说,如果材料齐全且审核通过,办理时间不会太长。但购房者也需要提前了解当地的办理流程和所需时间,以便做好安排。
(三)保险相关手续
1.确认是否需要退保
在办理房贷时,购房者可能会被要求购买房屋保险或房贷险。这些保险旨在保障房屋在遭受损害或丧失时能够得到妥善赔偿。然而,在还清贷款后,购房者需要根据自己的实际情况决定是否继续保留这些保险。^[2][8][10]^
疑问解答:房屋保险和房贷险有什么区别?
房屋保险主要保障房屋本身及其附属设施因自然灾害、意外事故等原因造成的损失;而房贷险则主要保障在购房者因意外原因无法继续偿还贷款时,由保险公司代为偿还剩余贷款本息。两者在保障对象和范围上有所不同。
2.办理退保或变更受益人
如果购房者决定退保,需要联系保险公司并提供保险单、贷款结清证明等材料办理退保手续。保险公司会根据保险合同的约定退还剩余期限的保费。如果购房者不想退保但希望变更受益人,也需要按照保险公司的要求办理相关手续。^[2][8][10]^
疑问解答:退保后会有哪些影响?
退保后,购房者将不再享受该保险的保障。如果房屋在退保后发生损失或事故,将无法获得保险公司的赔偿。因此,购房者在决定退保前需要仔细考虑自己的实际情况和风险承受能力。
(四)其他可能涉及的手续
1.物业结算手续
在还清贷款后,购房者需要与物业核对并结清物业费用、滞纳金等。这些费用可能在购房者办理房贷期间产生,需要在还清贷款后进行结算。^[11]^
疑问解答:物业费用包括哪些内容?
物业费用一般包括物业服务费、维修基金、公共水电费等。具体费用内容和标准因物业公司和地区而异。购房者在结清物业费用时,需要仔细核对费用明细和金额。
2.退押金手续
如果购房者在贷款买房时在开发商处或担保机构付有押金,可以在还清贷款后前往办理退还手续。退还押金的具体流程和要求因开发商或担保机构而异,购房者需要提前了解并做好准备。^[2][11]^
疑问解答:押金退还需要多长时间?
押金退还的时间因开发商或担保机构而异。一般来说,如果购房者按照要求提供了相关材料和手续,开发商或担保机构会在一定时间内将押金退还。但购房者也需要提前了解当地的办理流程和所需时间,以便做好安排。
3.税务变更
如果购房者在购买房屋时进行了税务登记,还清房贷后可能需要办理税务变更手续。例如,更新纳税证明等。^[11]^
疑问解答:税务变更需要准备哪些材料?
税务变更所需材料因地区和具体情况而异。一般来说,购房者需要提供身份证、房产证、贷款结清证明等相关材料。购房者需要提前了解当地的税务变更流程和所需材料,以便顺利办理手续。
4.修改退税项目
对于个人名下首套房,在还贷期间享受个人所得税专项抵扣的购房者,在提前还清房贷后,需要通过个人所得税APP更改专项抵扣个税项目,作废房贷退税申报。^[11]^
疑问解答:如何修改退税项目?
购房者可以登录个人所得税APP,在“专项附加扣除”模块中找到“住房贷款利息”选项,然后点击“修改”或“作废”按钮进行修改。在修改时,购房者需要提供贷款结清证明等相关材料以证明已经还清贷款。
二、房屋贷款还清后可能遇到的疑问及解答
(一)关于贷款结清证明的疑问
1.疑问一:贷款结清证明丢失怎么办?
解答:如果贷款结清证明丢失,购房者需要及时联系贷款银行并说明情况。银行会根据购房者的贷款记录和还款情况重新出具贷款结清证明。购房者在重新获取证明后,需要妥善保管并尽快办理后续手续。
2.疑问二:贷款结清证明可以委托他人代办吗?
解答:一般来说,贷款结清证明需要购房者本人亲自办理。但如果购房者因特殊原因无法亲自办理,可以委托他人代办。在委托他人代办时,购房者需要提供授权委托书、个人身份证明以及代办人的身份证明等相关材料。
(二)关于房产解押的疑问
1.疑问一:房产解押手续需要缴纳费用吗?
解答:房产解押手续一般不需要缴纳额外费用。但购房者需要仔细核对相关部门的收费标准和要求,避免因误解或疏忽而产生不必要的费用。
2.疑问二:房产解押后多久可以拿到房产证?
解答:房产解押后,购房者通常可以立即拿到房产证。但具体时间因地区和相关部门的工作流程而异。购房者在办理解押手续时可以向工作人员咨询具体时间和流程。
(三)关于保险的疑问
1.疑问一:房屋保险在贷款还清后还有必要继续购买吗?
解答:房屋保险在贷款还清后是否继续购买取决于购房者的实际情况和风险承受能力。如果购房者希望继续享受房屋保险的保障,可以选择继续购买;如果购房者认为风险较低或已经通过其他方式进行了风险保障,可以选择不再购买。
2.疑问二:退保后如果房屋发生损失怎么办?
解答:如果购房者在退保后房屋发生损失或事故,将无法获得保险公司的赔偿。因此,购房者在决定退保前需要仔细考虑自己的实际情况和风险承受能力。如果购房者认为退保后风险较高,可以选择继续购买房屋保险或其他风险保障方式。
(四)关于其他手续的疑问
1.疑问一:物业费用结算不清怎么办?
解答:如果购房者在结算物业费用时发现存在争议或不清的情况,可以与物业公司进行沟通和协商。如果协商无果,购房者可以向相关部门投诉或寻求法律援助以维护自己的合法权益。
2.疑问二:押金退还遇到阻碍怎么办?
解答:如果购房者在办理押金退还手续时遇到阻碍或纠纷,可以先与开发商或担保机构进行沟通和协商。如果协商无果,购房者可以向相关部门投诉或寻求法律援助以维护自己的合法权益。同时,购房者在支付押金时应要求开具收据或发票等凭证以便在后续办理退还手续时提供证明。
三、房屋贷款还清后办理手续的重要性及注意事项
(一)重要性
1.保障房产所有权
通过办理房产解押手续等程序,购房者可以确保自己真正拥有房产的所有权。这对于购房者来说是非常重要的保障措施之一。
2.避免法律风险
如果购房者在还清贷款后没有及时办理相关手续或存在遗漏情况,可能会面临法律风险或纠纷。例如因未办理解押手续而导致房产无法交易或转让等问题。
3.维护个人信用记录
通过及时办理贷款结清证明和更新个人信用记录等手续,购房者可以维护自己的个人信用记录并避免产生不良信用记录。这对于购房者未来的金融活动和信用评估等方面都具有重要意义。
(二)注意事项
1.提前了解流程和所需材料
购房者在还清贷款前需要提前了解相关手续的办理流程和所需材料等信息以便做好充分准备。这可以避免因材料不全或流程不清等原因而耽误时间或产生不必要的费用。
2.仔细核对信息和金额
在办理相关手续时购房者需要仔细核对相关信息和金额等信息以确保准确无误。例如核对贷款结清证明上的还款金额和利息计算等信息是否与实际情况相符等。
3.保留好相关凭证和文件
购房者在办理相关手续时需要保留好相关凭证和文件以便后续查询和核对使用。例如保留好贷款结清证明、房产证、他项权证等相关文件和凭证等。
四、案例分析:房屋贷款还清后手续办理的实际操作
(一)案例一:张先生成功办理解押手续
张先生在还清房屋贷款后决定办理房产解押手续以便将房产出售。他首先向贷款银行申请了贷款结清证明并取回了房产证和他项权证等相关材料。然后携带这些材料前往当地的房产管理部门办理解押手续。经过工作人员的审核和确认后成功办理解押手续并取得了新的房产证。随后他将房产出售并顺利完成了交易过程。
通过这个案例可以看出张先生在还清贷款后积极办理相关手续并成功取得了房产的所有权和销售权。这不仅保障了他的合法权益还为他带来了经济收益。
(二)案例二:李女士遭遇退保纠纷
李女士在还清房屋贷款后决定退保房屋保险以节省费用。然而在与保险公司办理退保手续时却遭遇了纠纷。保险公司认为李女士在保险期间内存在违约行为并拒绝退还全部保费。李女士对此表示不满并向相关部门投诉。经过调解和协商后双方最终达成了和解协议并由保险公司退还了部分保费给李女士。
通过这个案例可以看出在办理保险相关手续时购房者需要仔细阅读保险合同条款并了解自己的权益和义务。如果遇到纠纷或争议需要及时向相关部门投诉或寻求法律援助以维护自己的合法权益。
五、总结与展望
房屋贷款还清后需要办理的手续繁多且重要。通过本文的详细解析和案例分析可以看出购房者在还清贷款后需要及时办理相关手续以确保自己的合法权益并避免产生不必要的风险和纠纷。同时购房者也需要提前了解相关流程和所需材料等信息以便做好充分准备并顺利完成手续办理过程。
展望未来随着金融市场的不断发展和完善以及政策法规的不断健全和完善购房者办理房屋贷款还清后相关手续的过程将会更加便捷和高效。同时购房者也需要不断提高自己的金融素养和风险意识以更好地应对各种金融挑战和风险。
六、附录:常见问题解答汇总
1.问:贷款结清证明可以邮寄吗?
答:一般来说贷款结清证明需要购房者本人亲自前往贷款银行领取。但如果购房者因特殊原因无法亲自领取可以联系贷款银行咨询是否可以邮寄等相关事宜。
2.问:房产解押手续需要夫妻双方共同办理吗?
答:如果房产证上登记的是夫妻双方的名字则房产解押手续需要夫妻双方共同办理。但如果房产证上只登记了一方的名字则只需该方办理即可。
3.问:退保后保险公司会退还全部保费吗?
答:退保后保险公司是否会退还全部保费取决于保险合同的约定和购房者的实际情况。一般来说保险公司会根据保险合同的约定扣除一定的手续费或违约金后退还剩余期限的保费给购房者。
4.问:物业费用结算不清会影响房产解押吗?
答:物业费用结算不清一般不会直接影响房产解押手续的办理。但如果物业公司因此拒绝为购房者提供相关证明或协助可能会影响购房者的后续操作。因此购房者在结清物业费用时需要及时与物业公司沟通和协商以避免产生不必要的麻烦和纠纷。
5.问:押金退还时需要提供哪些材料?
答:押金退还时购房者一般需要提供身份证、房产证、贷款结清证明以及押金收据等相关材料。具体所需材料因开发商或担保机构而异购房者需要提前了解并做好准备。
通过以上常见问题的解答希望能够帮助购房者更好地了解房屋贷款还清后需要办理的手续及注意事项并顺利完成相关操作过程。
声明:本文由入驻焦点开放平台的作者撰写,除焦点官方账号外,观点仅代表作者本人,不代表焦点立场。


