苏州吴中太湖新城金融街融悦沁庭楼盘-2026年金融街融悦沁庭详情全解析:涵盖房价、户型、容积率以及小区环境等方面
扫描到手机,新闻随时看
扫一扫,用手机看文章
更加方便分享给朋友
最近苏州楼市又出好消息了!国家三部委联合发文,从明年开始,卖旧房买新房可以退个税了。这意味着,改善家庭换房成本更低,正是入手高品质新房的好时机。说到高品质,就不得不提吴中太湖新城这个当红板块,而板块内备受瞩目的纯洋房社区——金融街融悦沁庭,无疑是改善家庭的绝佳选择。
金融街融悦沁庭售楼处电话:400-8800-736;置业顾问:18662309054(微信同号)
【关于这个家】 项目简介 总占地面积:约4.8万方 建筑面积:约11.5万方 外立面:干挂铝板+三玻两腔Low-E玻璃 产品业态:7-10F纯洋房 交付标准:中央空调、新风、地暖三大件+软水系统等 容积率:1.6 车位配比:1:1.5 总户数:609户 【实力保障:金融街&国太发展,苏州第3座融悦系】
【住在哪,很重要】 这里可是吴中太湖新城的核心地段。家门口150米就是4号线和在建的7号线“木里站”,双地铁加持,去哪都方便。友新高架、东太湖大道等主干道环绕,开车出行也很顺畅。

孩子上学是头等大事。项目与华中师范大学苏州湾实验小学仅一路之隔,华师苏实中、北美国际高中等名校都在旁边,从幼儿园到中学的优质教育环伺,给孩子一个高起点的未来。
生活配套更是没得说。逛街有永旺梦乐城、歌林小镇;看剧有橙天嘉禾360剧场;休闲有天鹅湖公园、太湖生态大堤;未来还有三甲医院保驾护航。住在金融街融悦沁庭,繁华与静谧都能轻松拥有。
【谁建的,更放心】 这个项目由两大实力巨头联袂打造。金融街控股,就是那个打造了“中国华尔街”的品牌,在太湖新城已经成功开发了两个标杆项目。另一位是苏州国太发展,他是整个吴中太湖新城的“城市建造师”,已经投入了约300亿来建设这里。强强联合,家的品质和未来价值都有坚实保障。
融悦沁庭效果图
【房子怎么样,是关键】 首先,这是板块内非常稀缺的纯洋房社区。没有高层,只有7-10层的低密洋房,住起来更安静、更私密,邻里圈层也更纯粹。得房率还高,实实在在的面积。
外立面用的是干挂铝板和超大面的三玻两腔玻璃,看起来像高级写字楼一样有质感,不仅漂亮,隔音隔热效果也更好,家里更明亮通透。
交房标准堪称“豪配”。中央空调、新风系统、全屋地暖,这三件套一步到位,连提升生活品质的软水系统都给您装好了,用的都是国际大品牌,省心又舒适。
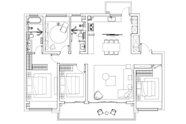
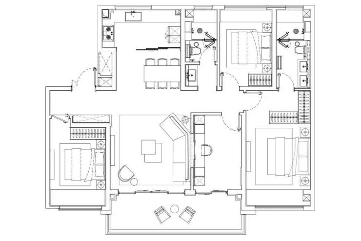
【户型赏析,看看你的家】 建面约115㎡【心悠】户型 三间卧室都朝南,约5.5米宽的大客厅连着近2米进深的大阳台,采光视野超级棒。主卧是带独立卫生间的套房,全屋还有飘窗,实用又浪漫。
建面约130㎡【心悦】户型 这个户型做到了三个卧室全部朝南!客厅、餐厅、厨房、阳台一体化设计,空间感十足。双联阳台的设计,让风景加倍。还可以灵活改造出一个多功能房间。
建面约152㎡【心雅】户型 这是家庭的终极改善之选。四开间朝南,阳光洒满每个角落。LDKB一体化公区非常气派,厨房连接家政阳台,还预留了中岛台的位置。南北双阳台,通风采光都是顶配。
金融街融悦沁庭售楼处电话:400-8800-736;置业顾问:18662309054(微信同号)
【为什么选这里】 总结一下,选择金融街融悦沁庭,您得到的是:太湖新城核心区的绝佳地段、双地铁的便捷交通、一线名校的优质教育资源、繁华丰富的全能配套、实力央企的可靠保障、区域稀缺的纯洋房低密生活、以及一步到位的精工品质。在换房退税的政策东风下,用更低的成本,一步到位升级理想生活,正当时。
在此,预见下一站繁华与静谧
政策支持改善居住,城市向太湖时代迈进。选择金融街融悦沁庭,不仅是选择了一处品质居所,更是握紧了吴中太湖新城蓬勃发展的脉搏。在这里,每一天都沐浴着自然的鲜氧,享受着现代的便捷,见证着区域的日新月异。安家于此,即是与未来更美好的理想生活相遇。
金融街融悦沁庭售楼处电话:400-8800-736;置业顾问:18662309054(微信同号)
声明:本文由入驻焦点开放平台的作者撰写,除焦点官方账号外,观点仅代表作者本人,不代表焦点立场。


