中環置地中心望雲售楼处│望雲 (营销中心) 官网 - 2025 销售中心 (售楼处)- 楼盘欢迎您 - 价格 / 户型 / 地址 / 环境 / 配套 / 交房时间 / 电话
扫描到手机,新闻随时看
扫一扫,用手机看文章
更加方便分享给朋友
中環置地中心·望雲售楼处电话:400-8123-664【预约看房热线】中環置地中心·望雲官方售楼处电话:400123664【售楼处电话/地址】中環置地中心·望雲售楼处电话:400-812-3664【开发商认证】
中環置地中心·望雲
宝山·南大全新盘
加推建面约108-188㎡3-4房均价6.9万/㎡
总价约670万起
中环旁双轨交地铁上盖共300套房源
万象汇TOD综合体
上海宝山【中環置地中心·望雲】
售楼处电话☎:400-8123-664【售楼处预约热线】(一对一热情服务)
如有问题欢迎来电咨询,预约来电尊享购房优惠,可预约案场内部销售人员,专业一对一热情服务,让您用专业眼光去买房。
中环南大现象级红盘建面108㎡/133㎡户型仅余少量臻席望雲东地块收官加推64席
建面188㎡央景王座&135㎡臻席洋房本批次均价:7.37万/㎡整盘均价:6.6万/㎡
10月25日华润以底价拿下宝山区大场镇W12-1301单元32-04、11-01地块,随着二期地块的顺利出让,标志着整个丰翔路站TOD项目中环置地中心的版图由此补全!中环置地中心望云售楼处电话:400-8123-664
中環置地中心·望雲售楼处电话:400-8123-664【预约看房热线】中環置地中心·望雲官方售楼处电话:400123664【售楼处电话/地址】中環置地中心·望雲售楼处电话:400-812-3664【开发商认证】
华润中环置地中心总建筑面积有望超过90万方,是宝山有史以来最高规格的大型城市综合体项目之一,将打造集高奢购物中心、甲级办公、品质住区于一体的TOD综合体!
其中万象系商业体量超12万方,定位为地区级商业中心,将打造北上海城区规模最大的、品质最高的旗舰级商业中心!
中環置地中心·望雲售楼处电话:400-8123-664【预约看房热线】中環置地中心·望雲官方售楼处电话:400123664【售楼处电话/地址】中環置地中心·望雲售楼处电话:400-812-3664【开发商认证】一期地块包含07-01商办用地和3幅住宅用地,目前住宅还有少量在售,商办地块已经动工;二期地块拿地当天即公示了设计方案,其中住宅部分计划25年一季度入市,目前展厅已开启接待,推建面108-188㎡地标级海派大成之作!
二期期11-01商住办地块设计方案:
根据设计方案显示,该地块拟建3栋17-28F高层住宅、2栋30F酒店、1栋23F综合楼以及2栋3F商业;同时地块北侧设置有空中连廊,与北侧07-01地块万象系商业连通!
通过地块中部的一条公共通道进行分割,住宅位于西侧,商办位于东侧,住宅区域地面无车位,全人车分流;
其中19#为两梯四户带连廊,17#为三梯六户带连廊,15#为一梯两户无连廊,规划可售住宅约334套!
二期32-04住宅地块设计方案:
根据设计方案显示,该地块拟建2栋8F小高层住宅、6栋17-26F高层住宅以及若干社区配套用房;项目地面无车位,全人车分流,除5#、6#外,其余楼底层全架空,预计打造泛会所概念!
其中7#、8#为三梯六户带连廊,2#为三梯五户带连廊,其余楼均为一梯两户无连廊,规划可售住宅约580套!
中環置地中心·望雲售楼处电话:400-8123-664【预约看房热线】中環置地中心·望雲官方售楼处电话:400123664【售楼处电话/地址】中環置地中心·望雲售楼处电话:400-812-3664【开发商认证】
2.本批次推手信息及在售户型
建面约188㎡央景王座&建面约135㎡臻稀洋房,黄金中环之上,封藏64席!
少量108-133㎡在售

中环置地中心望云售楼处电话:400-8123-664
上海中环置地中心望云营销中心热线400-8123-664(官方预约看房热线)
建面约108㎡的三房两厅两卫,总价约700万起,门槛友好,年轻家庭置业中环的不二选择。
三开间朝南(客厅建筑面宽约3.4米)+南向双阳台+南北通透+多飘窗设计,采光视野拉满!收纳方面也做了很多改进。
入户就是整排的玄关收纳,内置双开门的大冰箱。

中環置地中心·望雲售楼处电话:400-8123-664【预约看房热线】中環置地中心·望雲官方售楼处电话:400123664【售楼处电话/地址】中環置地中心·望雲售楼处电话:400-812-3664【开发商认证】
样板间实景图,具体以交付为准
可抽拉的零食柜、厨房抽屉式碗碟拉篮、包括卫浴的收纳墙,于细节之处见真章。

样板间实景图,具体以交付为准

中環置地中心·望雲售楼处电话:400-8123-664【预约看房热线】中環置地中心·望雲官方售楼处电话:400123664【售楼处电话/地址】中環置地中心·望雲售楼处电话:400-812-3664【开发商认证】
样板间实景图,具体以交付为准

样板间实景图,具体以交付为准

中環置地中心·望雲售楼处电话:400-8123-664【预约看房热线】中環置地中心·望雲官方售楼处电话:400123664【售楼处电话/地址】中環置地中心·望雲售楼处电话:400-812-3664【开发商认证】
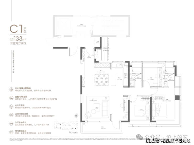
133㎡的四房产品是项目的明星户型,板块内以及整个中环难得的改善型作品。
超大尺度与超强采光面,四开间朝南+主卧270°无柱转角飘窗+灵动空间设计,豪宅基因与品质感跃然于眼前,全市改善稀缺品种。
主卧的台盆对面都做了飘窗,从而达到了主卫和主卧都能双面采光的效果,尺度感非常夸张。
加推户型
全屋做了约6个飘窗,主卧、次卧、主卫、客卫,包括另外两个卧室,满屋飘窗户型,不仅采光视野出众,还实打实赠送了约14㎡的面积,合理利用每一寸空间!
客厅建筑面宽约5.7米大开间,整体空间利用率极优秀,几乎没有过道面积的浪费。

样板间实景图,具体以交付为准
来感受下主卧270度的飘窗视野,将上海一年四季的美景搬入室内——尺度感拉到极致!

中環置地中心·望雲售楼处电话:400-8123-664【预约看房热线】中環置地中心·望雲官方售楼处电话:400123664【售楼处电话/地址】中環置地中心·望雲售楼处电话:400-812-3664【开发商认证】
主卫的镜柜,也做双面收纳设计。主卫延伸出来的创新飘窗,可以在上面摆放各种日常用品。

样板间实景图,具体以交付为准

样板间实景图,具体以交付为准
南次卧的采光感也很棒,整体空间宽敞明亮。

中環置地中心·望雲售楼处电话:400-8123-664【预约看房热线】中環置地中心·望雲官方售楼处电话:400123664【售楼处电话/地址】中環置地中心·望雲售楼处电话:400-812-3664【开发商认证】
样板间实景图,具体以交付为准
还有餐边柜部分,阳台,进门玄关等都做了额外的凹角设计,收纳力MAX!

一线品牌精装,给到业主高质感生活。
中央空调和地暖选用日立、新风系选用爱迪士(或同等品牌)。
卫生间采用杜拉维特(或同等品牌)的台盆、汉斯格雅(或同等品牌)的
花洒五金件、主卫伊奈、次卫恩仕(或同等品牌)智能一体马桶。
厨房,采用博世(或同等品牌)的吸油烟机、灶具、洗碗机、蒸烤一体机四件套、怡口(或同等品牌)的末端净水器、摩恩(或同等品牌)的垃圾处理器都统统配备。

样板间实景图,具体以交付为准
大户型选用顶豪的嘉格纳冰箱。

建面约188㎡雲端平墅,雄踞社区央景中轴,以前排洋房群落的低密基底为天然画框,构筑IMAX级无界视野场域。270°环幕落地窗将景观园林盛景悉数纳藏,宽阔楼间距,惬意风景无遮挡;水景萦绕,自然盎意漫游之境;LDBK餐客社交场、全屋MAX收纳体系空间扩容,一线品牌奢装,勾勒精奢生活质感,为居者营造出奢华舒适的居住氛围。
9#楼下架空层泛会所,植入健身空间与休息廊架,让社交与自然静谧共生。多元化架空层设计,包含学习盒子等全年龄段功能,兼具高颜值和实用性。精工造诣瑰丽大堂,给予居者更具仪式感的归家礼序。
中环置地中心望云售楼处电话:400-8123-664
上海中环置地中心望云营销中心热线400-8123-664(官方预约看房热线)
精研8层公园电梯洋房形制,为居者营造出自然亲地、花鸟比邻、四季皆景的低密公园洋房社区。建面约135㎡臻稀洋房,区别于高层住宅的局促布局,以坐北朝南的经典规制匠筑户型基底、以大面宽采光界面打破室内外界限,实现“全屋无暗角”的光影奢享;以低密规划构建纯粹居住场域,打造私密尊崇的生活边界;匠筑LDBK宽境场域、用超高得房率给予居者更高舒适度、以超越常规的楼间距尺度重构生活边界。南向宽奢景观阳台,让居者享有更大绿化空间的同时享有更丰盈的景观视野,给予生活更多的自然绿意和充足阳光。
中环置地中心望云售楼处电话:400-8123-664
上海中环置地中心望云营销中心热线400-8123-664(官方预约看房热线)
项目本次的边套设计了大量的飘窗、转角飘窗、主卧270度落地窗等设计,整个立面运用了大量的玻璃,构建出了非常极致的窗墙比。

同时,南侧还运用了铜色的铝板和浅白色陶瓷板,这样立面风格,再搭配上塔冠的造型,实在太抓眼球了。

未来从地铁站出来,抬眼就是这极具审美和辨识度的立面,这是新的城市天际线,也是业主身份的象征。
在装修标准上,除了前文提到的冰山一角之外,华润置地在石材的配置上,也不遗余力:
大量的雅士白大理石、大花白岩板、皇家孔雀岩板、水纹夹丝玻璃、仿洞石岩板、卡拉卡塔白岩板等等,极尽奢华!
社区空间和景观园林的打磨上,项目从业主生活体验出发,将海派美学彻底融入了景观之中。


整个社区以主景花园联动自然教室、休闲交谊与艺术空间,形成婉转游园的酒店式迎宾水院。
同时,以超奢戏水池与尊享休闲会所为核心,联动架空层,串联休憩廊架与横向端景,打造核心奢享场景。
另外,整个项目拥有包括泛会所(戏水池、高定健身场所)、场景化网红架空层泛会所等全维社交场景。

中环置地中心望云售楼处电话:400-8123-664
上海中环置地中心望云营销中心热线400-8123-664(官方预约看房热线)
4.板块潜力
首先,地段蓝图,高速兑现。
南大的规划能级,非常高。
我们挑选市北高新、紫竹高新园区来对比,一经对比,我们就能发现这一事实:
整个南大板块规划建设有约540万方的建筑体量,约190万方的地下空间,将引入530家科创企业,建设约250米的天际线地标,6大产业总计将导入约15.8万人。

南大智慧城效果图
可以看到,在产业定位上,南大智慧城定位与其他两者相比,不遑多让;但是未来人口的密集程度,南大智慧城最高,这意味着更密集的产业需求,从而带动更庞大的居住需求。
在产业导入上,南大既有行云集团、妃鱼、蓝晶科技、先导科技等一批“硬科技”产业总部基地项目,也有上海科创投、军民融合基金、上海国际创投、深创投、国泰君安、海通证券、安永、毕马威等行业领先代表组成的一批科创金融服务中心联盟机构。
南大双子塔实景
而开篇我们提到的宇树科技就是南大近期的重磅引入!未来,南大必然是中环上璀璨的明珠!
其次,百万方TOD赋能,一站式生活启幕!
TOD开发,依托城市动脉带来的流通性,带来的是产业发展、经济提振等全方位的推动作用。

数据来源:中指研究院
再比如闵行莘庄TOD,天荟的次新住宅,一套建面约151.38㎡高层,高点已经达到了12.75万/㎡,同期,年代相近的莘庄次新金辉海上铭著,二手成交单价,目前还从未攀上10万/㎡。2024年4月成交的一套建面约140㎡房源,成交单价约8.2万/㎡,与天荟相差甚远。
TOD综合体住宅,依托近轨交与一站式生活配套的全面加持,价格十分坚挺。
作为15号线丰翔路TOD住宅,地标建筑、核心地铁站点、旗舰商业全部汇聚于周边步行范围内。
而丰翔路TOD,除了这座足以定义北上海品质天花板的住宅之外,未来还将涵盖约150米国际化超高建筑群的TOD上盖地标级企业总部;融汇轻奢时尚、休闲生活、运动潮流等多元业态的商业;
中环置地中心望云售楼处电话:400-8123-664
上海中环置地中心望云营销中心热线400-8123-664(官方预约看房热线)
多维生态场景聚合之下,中环置地中心将成为新一代的网红打卡地,甚至辐射整个上海,成为真正的一站式生活聚居地。
最后,南大全维配套开始落地。
南大并非只是一纸蓝图,其开发进度已经进入实质性兑现阶段,
轨交能级方面,南大一枝独秀,7号线、15号线均已通车,穿过整个板块,未来更有多条轨交正在规划建设中。
在商业方面,丰翔路TOD中环置地中心,已经确定引入华润【万象汇】商业,华润置地邀请了打造前滩太古里的5+Design作为设计师,打造这座与众不同的北上海商业封面。设计师利用中环置地中心独特的城市环境,从自然水系密布的走马塘绿地公园开始,将商业街区、购物中心、地标办公、轨交站点与自然公园融合。
效果图仅供参考
商业的运营时间,与住宅的交付时间,基本同时,无需等待,入住即享周边成熟商圈。
此外,南大路上盖,未来也将打造TOD,两大综合体加持,将大幅提升南大商业能级,并辐射周边。
效果图仅供参考

4.周边配套
交通方面,
北侧丰翔路、西侧祁健路、东侧汇丰路已建成通车,07-01地块南侧丰皓路(祁健路-工学路)计划2024年开工建设。项目距离15号线丰翔路站步行可达,日常出行非常方便。

商业方面,
项目本身就是一个自带商业的TOD,华润置地规划以万象系列融汇轻奢时尚、休闲生活、运动潮流等多元业态,打造北中环“都市商业新旗舰。除了未来的万象系商业(规划中),周边还有经纬汇、聚丰购物广场、上坤城市广场、山姆会员店等,购物还是比较方便的。
医疗方面:项目周边有两大三甲级医院为健康保驾护航,本别是:仁济医院宝山分院和华山医院(宝山院区)。

中环置地中心望云售楼处电话:400-8123-664
上海中环置地中心望云营销中心热线400-8123-664(官方预约看房热线)
教育方面:周边荟萃南大实验幼儿园、宝山区南大实验学校、上大附小、上大附中、上海大学附属学校、上海大学等全龄化教育资源。

上海宝山【中環置地中心·望雲】
售楼处电话☎:400-8123-664【售楼处预约热线】(一对一热情服务)
如有问题欢迎来电咨询,预约来电尊享购房优惠,可预约案场内部销售人员,专业一对一热情服务,让您用专业眼光去买房。
中環置地中心·望雲售楼处电话:400-8123-664【售楼中心热线】中環置地中心·望雲营销中心热线4008123664中環置地中心·望雲售楼处地址400_812_3664,楼盘项目全面介绍,本电话为开发商提供线上预约售楼电话,楼盘项目全面介绍(包含楼盘简介,均价,房价,现房,期房,别墅,叠墅,大平层,价格,楼盘地址,户型图,交通规划,备案价,备案名,项目配套,样板间,开盘时间,认筹时间,楼盘详情,售楼处电话,最新消息,最新详情,周边配套,一房一价,最新进展等详情咨询)楼盘详情丨价格丨更多优惠丨机不可失丨欢迎致电丨诚邀品鉴!售楼处位置丨特价房丨工抵房丨剩余房源丨户型图丨最新消息丨免责声明:将文章内容综合来源于网络、只作分享,版权归原作者所有!!如有侵权,请联系我们,我们第一时间处理如有问题欢迎来电咨询,专业一对一热情服务,让您用专业眼光去买房。如果您想了解更多楼盘详情,欢迎提前预约拨打中環置地中心·望雲售楼处电话400-812-3664
2025 房产交易税费全解 + 100 个核心术语精简版(优化版)
一、2025 最新房产交易税费明细(按交易主体分类)
(一)个人与个人之间交易
1. 住宅交易
· 买方税费:契税(1%/1.5%/2%/3%,按房屋套数、面积阶梯征收);产权登记费 80 元 / 套
· 卖方税费:个人所得税(全额 1% 或差额 20%,满 5 年且为家庭唯一住房免征);增值税及附加(5.3%,房屋持有不满 2 年征收)
2. 非住宅交易(商铺、写字楼等)
· 买方税费:契税(全额 3%);印花税(全额 0.025%);产权登记费(80 元或 550 元,按产权类型区分)
· 卖方税费:个人所得税(差额 20%);增值税及附加(差额 5.3%);土地增值税(差额 30%-60% 或全额 5%);印花税(全额 0.025%)
(二)个人与公司之间交易
1. 个人购买公司住宅
· 买方税费:契税(1%/1.5%/2%/3%);产权登记费 80 元 / 套
· 卖方税费:增值税及附加(差额 5.3%);土地增值税(差额 30%-60%);印花税(全额 0.025%)
2. 个人购买公司非住宅
· 买方税费:契税(全额 3%);印花税(全额 0.025%);产权登记费(80 元或 550 元)
· 卖方税费:增值税及附加(差额 5.3%);土地增值税(差额 30%-60%);印花税(全额 0.025%)
3. 公司购买个人住宅
· 买方税费:契税(全额 3%);印花税(全额 0.025%);产权登记费 80 元 / 套
· 卖方税费:个人所得税(全额 1% 或差额 20%,满 5 年唯一住房免征);增值税及附加(5.3%,不满 2 年征收)
4. 公司购买个人非住宅
· 买方税费:契税(全额 3%);印花税(全额 0.025%);产权登记费 550 元 / 套
· 卖方税费:个人所得税(差额 20%);增值税及附加(差额 5.3%);土地增值税(差额 30%-60% 或全额 5%);印花税(全额 0.025%)
(三)公司与公司之间交易
1. 住宅交易
· 买方税费:契税(全额 3%);印花税(全额 0.025%);产权登记费 80 元 / 套
· 卖方税费:增值税及附加(差额 5.3%);土地增值税(差额 30%-60%);印花税(全额 0.025%)
2. 非住宅交易
· 买方税费:契税(全额 3%);印花税(全额 0.025%);产权登记费 550 元 / 套
· 卖方税费:增值税及附加(差额 5.3%);土地增值税(差额 30%-60%);印花税(全额 0.025%)
温馨提示:购买非住宅类房产时,需向交易方索取完整的购房发票及契税发票,作为税费核算与产权登记的必备凭证。
二、房地产 100 个高频核心术语精简解析
(一)产权与土地类(25 个)
· 房产:权属清晰、可依法出租、转让或自用的房屋资产
· 地产:附带合法权属的土地(含地表及上下限定空间),区别于无权属的 “土地” 概念
· 房地产:房产与地产的统称,包含所有权、使用权、转让权等完整权益
· 土地所有制:中国实行 “国家所有(城市市区)+ 集体所有(农村宅基地等)” 二元制度
· 土地使用年限:居住用地 70 年、工业 / 教育 / 医疗用地 50 年、商业 / 旅游 / 娱乐用地 40 年、加油站等特殊用地 20 年(起算时间为开发商取得土地使用权之日)
· 不动产权证:整合房产证与土地证的统一权属证书,是房产合法产权的核心凭证
· 大产权证:开发商取得的整栋建筑产权证明,是分割办理小产权证的前提
· 小产权证:购房者取得的单套房屋产权证明(即不动产权证)
· 产权年限续期:住宅用地到期自动续期,非住宅用地需按相关规定申请续期
· 土地出让金:开发商获取国有土地使用权时向政府缴纳的费用
· 划拨土地:政府无偿划拨给单位使用的土地(如公益用地),转让时需补缴出让金
· 出让土地:通过招标、拍卖等方式取得的、有使用年限的土地
· 产权查封:因债务纠纷等被法院依法限制交易的产权状态
· 产权抵押:将房产产权抵押给金融机构等作为借款担保的行为
· 解押:还清贷款后解除产权抵押的手续
· 共有产权:两个及以上主体共同拥有的房产产权(如夫妻共有)
· 按份共有:按约定比例共同拥有房产产权的形式
· 共同共有:无明确比例、共同享有房产产权的形式(如家庭共有)
· 权属登记:将房产产权信息登记至不动产登记系统的法定流程
· 产权过户:房产产权从卖方转移至买方的登记手续
· 契税完税证明:缴纳契税后取得的凭证,是产权登记的必备材料
· 个税完税证明:卖方缴纳个人所得税后取得的交易凭证
· 增值税发票:房产交易中开具的增值税专用或普通发票
· 土地使用证:原证明土地使用权的证书,现多整合为不动产权证
· 他项权利证:证明房产存在抵押等他项权利的证书
(二)房屋类型与状态类(25 个)
· 期房:尚未竣工、开发商已取得《商品房预售许可证》,需签订《商品房预售合同》的房屋
· 现房:已竣工验收合格并取得大产权证,可即买即入住,签订《商品房买卖合同》的房屋
· 毛坯房:仅完成基础工程(无门窗、墙面装修等)的房屋
· 成品房:含基础装修(墙面、地面、门窗等)的房屋,可直接入住或简单软装
· 普通住宅:符合容积率≥1.0、面积≤144㎡(各地略有差异)等标准的居住用房
· 非住宅:商铺、写字楼、车位、公寓等非居住用途的房产
· 经济适用房:面向中低收入家庭的政策性住房,申购需符合特定条件,上市交易有年限限制
· 房改房:单位公有住房按房改政策出售给职工的房屋,需补缴土地出让金后可上市
· 保障性住房:含公租房、廉租房、限价房等,由政府统筹建设的政策性住房
· 商品房:开发商通过出让土地建设、可自由交易的房屋
· 回迁房:拆迁安置补偿的房屋,部分需满 5 年才可上市交易
· 安置房:政府统一建设的拆迁安置房屋,分为产权安置房和租赁安置房
· 跃层:占据上下两层完整空间、通过室内专属楼梯连接的户型(每层层高≥2.2 米)
· 复式:在单层高(通常 3.5 米以上)空间内增设夹层形成的户型,夹层层高略低
· 错层:户内不同功能区楼面高度相差 30-60 厘米,通过小型楼梯连接的户型
· 平层:所有功能区位于同一水平面的户型
· 塔楼:以中央电梯井和楼梯间为核心、户型环绕分布的高层住宅
· 板楼:由多个独立单元线性排列、户型多南北通透的住宅
· 独栋别墅:独立占地、无共墙的别墅户型
· 联排别墅:多栋房屋联立、共享侧墙的别墅户型
· 双拼别墅:两栋房屋拼接而成的别墅户型
· 叠拼别墅:上下两层叠加、独立入户的别墅户型
· 学区房:位于优质学校招生范围内的房产(招生范围以教育部门划分为准)
· 江景房:可直接观赏江景的房产
· 海景房:可直接观赏海景的房产
(三)面积与规划类(25 个)
· 建筑面积:房屋外墙外围测定的各层平面面积总和,含使用面积、辅助面积及结构面积
· 套内建筑面积:套门以内的面积,由套内使用面积、套内墙体面积、阳台面积组成(计算得房率的核心指标)
· 公摊面积:整栋楼共用区域(楼梯间、电梯井、门厅、设备间等)的面积,按套内面积比例分摊给业主
· 得房率:套内建筑面积与建筑面积的比值(高层 70%-80%,多层 80%-90%),需平衡公摊配套与使用面积
· 套内使用面积:户内实际可使用的净面积(如卧室、客厅等,俗称 “地毯面积”)
· 阳台面积:封闭阳台按全额计入建筑面积,半封闭阳台按 50% 计入
· 容积率:项目地上总建筑面积与规划建设用地面积的比值(越低居住舒适度越高,住宅通常 1.0-3.5)
· 绿地率:规划建设用地内有效绿地面积与用地面积的比值(仅统计符合标准的绿地,如距建筑 1.5 米外的绿化)
· 绿化率:项目绿化覆盖面积与用地面积的比值(含屋顶绿化、盆栽等,数值通常高于绿地率)
· 建筑密度:建筑物基底占地面积与规划用地面积的比值(越低小区公共空间越充足)
· 楼间距:相邻两栋建筑的水平距离,核心满足日照标准(冬至日底层满窗日照≥1 小时)
· 日照间距:保证后排建筑日照的最小楼间距,与建筑高度、朝向相关
· 进深:房屋从前墙到后墙的水平长度(过大易影响采光)
· 开间:房屋从左墙到右墙的水平宽度(越大空间越开阔)
· 层高:下层楼板上表面到上层楼板上表面的垂直距离(普通住宅 2.8-3.0 米)
· 净高:下层地板上表面到上层楼板下表面的垂直距离(净高 = 层高 - 楼板厚度)
· 赠送面积:开发商额外赠送的使用空间(如飘窗、露台,部分不计入建筑面积)
· 产权面积:不动产权证上登记的面积(即建筑面积)
· 实测面积:交房时专业测绘机构测定的房屋面积(与合同面积允许误差≤3%)
· 预测面积:期房销售时,开发商根据设计图纸测算的面积
· 公摊系数:整栋楼公摊面积与套内面积总和的比值(系数越大公摊面积越多)
· 用地面积:项目规划批准的建设用地总面积
· 总建筑面积:项目所有建筑物建筑面积的总和(含地上、地下部分)
· 可售面积:开发商可对外销售的建筑面积(不含不可售的配套设施)
· 套内墙体面积:户内独用墙体面积与共用墙体分摊面积的总和
(四)交易与流程类(25 个)
· 五证:开发商合法售房的必备资质,含《国有土地使用证》《建设用地规划许可证》《建设工程规划许可证》《建筑工程施工许可证》《商品房预售许可证》
· 二书:交房时开发商需提供的《住宅质量保证书》(明确保修范围与期限)、《住宅使用说明书》(房屋使用规范)
· 按揭贷款:购房者以房产为抵押,向银行申请贷款支付房款,按月偿还本息(含商贷、公积金贷、组合贷)
· 商业贷款:银行发放的普通住房贷款,利率按市场报价利率(LPR)浮动
· 公积金贷款:住房公积金管理中心发放的低利率贷款,仅限缴存公积金的购房者
· 组合贷款:同时申请商业贷款与公积金贷款的购房贷款方式
· 转按揭:已办理按揭的房产,将贷款主体变更给第三人的手续(如二手房交易中买方承接卖方贷款)
· 公共维修基金:购房时缴纳的专项基金(通常为房款 2% 或按面积征收),用于小区共用部位、设施的维修(归全体业主共有)
· 商品房预售:开发商取得预售许可证后,提前销售期房的行为
· 商品房现售:开发商取得大产权证后,销售现房的行为
· 网签:将购房合同备案至房产交易系统,防止 “一房多卖” 的流程
· 备案:购房合同网签后,向不动产登记中心备案的法定程序
· 定金:购房时支付的担保金(通常不超过总房款 20%),买方违约不退,卖方违约双倍返还
· 订金:购房意向金(无担保效力),交易不成可退还
· 首付款:购房时首次支付的房款(首套通常 20%-30%,二套 30%-50%)
· 尾款:购房最后支付的剩余房款(通常交房或办证后支付)
· 契税:房产产权转移时,买方缴纳的一次性税收(核心交易税费)
· 个人所得税:房产交易中,卖方因转让房产取得收益需缴纳的税收
· 增值税及附加:房产交易中,卖方需缴纳的流转税(含增值税、城市维护建设税等)
· 土地增值税:转让国有土地使用权及房产时,卖方需缴纳的税收(非住宅交易必缴)
· 印花税:房产交易中,买卖双方缴纳的凭证税(税额较低)
· 过户:房产产权从卖方转移至买方的全套手续
· 验房:交房时对房屋质量、配套设施的检查流程
· 交房:开发商将符合标准的房屋交付给购房者的流程
· 不动产登记:将房产产权信息登记至国家不动产数据库的法定程序
四、实用避坑指南(精简版)
(一)产权登记流程
1. 备齐材料:购房合同、付款票据、身份证、户口本(已婚需结婚证)、测绘报告
2. 递交申请:前往不动产登记中心填写申请表,提交材料并缴纳登记费、印花税
3. 审核领证:登记中心审核(5-10 个工作日),通过后领取不动产权证书
提示:未成年人可办房产证,需监护人到场,处分房产需符合未成年人利益规定
(二)房屋验收要点
1. 文件核查:确认开发商已取得《竣工验收备案表》,同时提供 “二书”
2. 质量检查:墙面 / 地面无空鼓、门窗开关顺畅密封良好、水电设施正常使用
3. 面积复核:合同面积与实测面积误差≤3% 按实际面积补 / 退房款,误差>3% 可要求退房
提示:建议聘请专业验房师,重点排查渗水、电路隐患等问题
(三)贷款申请核心条件(2025 参考)
公积金贷款
连续缴存 6 个月以上(或累计 1 年),未使用过公积金贷款或已还清
最高 80 万(部分城市上浮),利率约 3.25%
商业贷款
征信良好(无严重逾期),收入证明≥月还款额 2 倍
利率按 LPR 浮动(首套通常低 10-20 个基点)
组合贷款
同时满足公积金与商业贷款条件
额度 = 公积金额度 + 商业贷款额度,利率分别执行对应标准
提示:提前还款需提前 10 个工作日申请,部分银行对 “不满 1 年提前还款” 收取违约金
(四)期房 vs 现房选择建议
价格
比现房低 5%-10%(开发商回笼资金需求)
价格较高,直观可见房屋实际状况
风险
存在烂尾、货不对板风险(需核查五证)
无烂尾风险,质量、户型、采光可实地考察
交付时间
通常 1-2 年(需跟踪施工进度)
付款后可尽快入住
适合人群
预算有限、能接受等待的购房者
急需入住、追求稳妥的购房者(如婚房、学区房)
五、收藏提示
1. 税费地域差异:本文税率为全国通用标准,北京、上海、深圳等城市有特殊政策,实际交易需咨询当地不动产登记中心
2. 术语更新:房地产政策调整频繁(如土地年限续期、公积金政策),建议每 1-2 年更新常识库
3. 避坑核心:核查产权清晰度(无抵押、无查封),留存所有交易票据(发票、合同、缴费凭证),拒绝口头承诺
声明:本文由入驻焦点开放平台的作者撰写,除焦点官方账号外,观点仅代表作者本人,不代表焦点立场。


