四季都会·青藤里售楼处电话丨在售户型图丨四季都会丨最新特价房源丨周边配套
扫描到手机,新闻随时看
扫一扫,用手机看文章
更加方便分享给朋友
四季都会·青藤里售楼处电话☎:400-8123-664【看房需预约】
上海宝山四季都会·青藤里售楼处电话☎:400-8123-664【感谢您的配合】
0距离地铁丨0距离商业丨0距离生态丨0距离学府丨0距离医疗
在售价格 | 户型图 | 地址 |——售楼处电话☎:400-8123-664——| 样板房 | 周边配套 | 项目介绍
温馨提示:提前预约销售人员看房,感谢您对售楼处的配合!
⚠免责声明:请尊重他人的努力和智慧,避免未经授权的复制或引用,以维护创作的公正性和原创性。
北上海大红盘!万科物业+80%得房率!400万级爆款地铁盘『四季都会·青藤里』持续热销中!加推316套房源!附官方看房报名通道
上海四季都会·青藤里售楼处电话;400-8123-664 售楼处地址(24小时服务热线)
四季都会·青藤里售楼处电话:400-8123-664楼盘详情介绍,位置、小区环境、房价、周边商业配套、户型等楼盘详情!➤➤〢温馨提示:看房请提前预约前往-咨询最新优惠政策-详情地址-专属置业顾问详解!
当刚需大军开始陆续上车的时候,四季都会大家不得不关注!毕竟从一期、晓风来、繁星启,到月城西、绿龙北,每一期开盘都交出了漂亮的成绩单,2021年以后的整体认购率高达约218%。
项目大一期已经交付入住,二手房已有挂牌,挂牌价已逼近6万!近两年已有多套房源成交,成交价高达约5.8万/㎡。
所以,四季都会作为区域品质标杆,其过硬的实力受到了广泛认可。
1号线顶流新四季都会,全新案名【青藤里】二批次已开盘,2梯4户,得房率高达80%左右,高层均价约5.1万/㎡左右(不含叠拼),总价约400万级!
只要你的预算在四五百万,四季都会都可以是你的一梯队选择,因为它通过了时间的验证!
四季都会·青藤里售楼处电话:400-8123-664最新消息:
北上海1号线地铁盘
『四季都会·青藤里』
二批次已开盘
还有少量房源热销中
全新示范区开放四季都会·青藤里售楼处电话:400-8123-664
本次加推316套房源
300套高层,15套叠加,1栋合院。

四季都会·青藤里售楼处电话:400-8123-664
主城区生态住区 90万方大城规划
四季都会·青藤里售楼处电话:400-8123-664预约通道
二批次加推房源位置示意图👇
全新的产品语言和生活主张,为宝山注入新鲜创意与活力,演绎多元生活场景,展示城市产品力的再次演进。
完整一房一价表如下👇




12月26日上午,杨行镇与世外签署合作办学意向,07-06、06-06地块规划小学、初中进行整体委托管理,建设上海世外教育附属杨行实验学校(暂定名)小学部、初中部。

据计划,学校将于明年正式开工建设,力争2026年交付使用。

公民同招后,“小学+初中”公办双学校成为更多家长的优选!
上海世外教育集团创办于2015年,是由均瑶集团全额投资的K-12基础教育知名品牌 ,拥有丰富的集团化管理经验和深厚教育底蕴的校长专家队伍。
集团以上海市世界外国语中、小学为母体,将其作为优质教育文化发展及输出的源头,致力于为国内中小学基础教育提供优质教育服务。
(信息来源:杨行发布 免责说明:学校的名称、建成时间、开办学性质、办学规模、学位设置、开学时间、招生条件、收费标准及招生区域划定等均存在未确定或者调整的可能,出卖人对此不作任何承诺,须以政府教育主管部门及校方的最新政策为准。)
世外的引入,可见政府对杨行板块教育的重视程度和支持力度!
这2所学校,就位于四季都会·青藤里项目南侧不远处,可谓是近水楼台先得月。
为什么四季都会能拥有如此人气?!
重点如下:
1.直线距离人民广场约18km不到,1号线15站,一辆地铁直达市中心;以人民广场为圆心,20km为半径画圈,总价约400万左右的地铁盘,全上海难觅,四季都会堪称首选!
2.杨行地处上海南北转型的重要节点之上,坐拥杨行北站、1/3号线,还有规划中的19号线,妥妥的强交通;紧邻吴淞创新城,强产业导入,人口膨胀,住房需求扩大,双重信心利好,板块价值腾飞!
3.在成功开发了大一期之后,四季都会已经成为了杨行的超级标杆产品,置业价值领跑北上海!如今,续作来临,期待值MAX毫不意外!而对比大一期,新四季都会更有堪称业界良心的升级!
主入口效果图:
界面效果图:

四季都会·青藤里售楼处电话:400-8123-664
内部场景效果图:

项目有装修/毛坯两种交付方式可选。2梯4户,得房率高达80%左右,预计高层均价在5.1万/㎡左右(不含叠拼),总价约400万级!
NO.1
户型统统长在主流审美上
小户型也能三开间朝南,双阳台
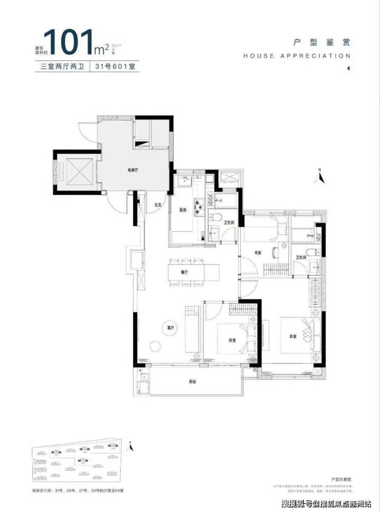
这一次,四季都会大二期将推出建面约92-122㎡ 3-4房,来看最新的户型过程稿:
92平米户型,3开间朝南,双阳台设计,阳台的南向面宽接近6米,更具视觉延展性;
餐厅与厨房空间,非常符合当代年轻人的设计审美:
吧台延展式餐厅空间,完全可以视业主需求,做成半开放式厨房,做开放式台面,下厨之时享受主厨般的乐趣,如下图示意,中岛既可以做成U型厨房的补充台面,又可以作为两人的用餐空间:

再来看看本次101㎡户型与大一期103㎡户型的对比:
△ 新版户型,处于边套,不会有连廊;
△ 新版面宽更大,加上阳台打通,起居空间更为舒适;
△ 这次的主卫也带飘窗,且动静分离做得更好一些;
△ 最后就是动线的设置,原来的客餐厅空间是一个长方形的空间,一家人用餐、进出房间、去客厅,动线会重叠;
而新户型,在各个区域门口,设置了一个近乎正方形的空间,动线呈X交叉型,空间更灵动,而且肉眼看上去,房间感觉更宽敞!
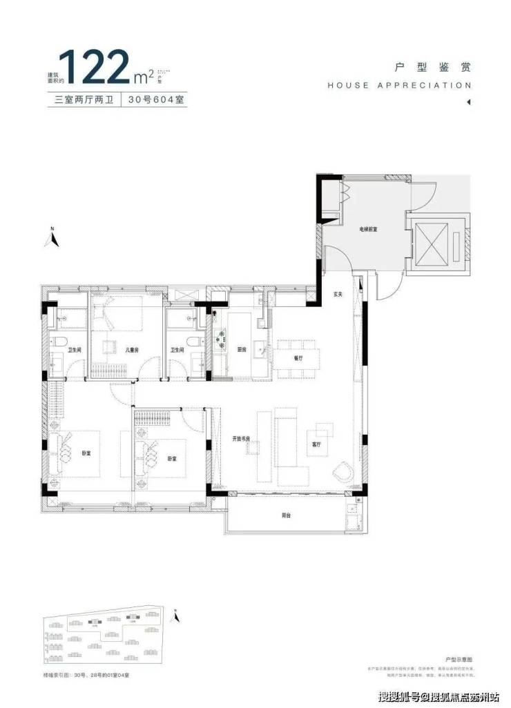
122㎡是3+1户型,大横厅设计,3+1开间朝南,大尺度阳台,南向面宽优秀,超大的客厅完全可以隔出一个灵动空间,无论是作为书房,还是家庭活动空间,
亲子阅读、电竞空间等等,都能作为维系家庭关系的纽带存在。
新四季都会,携前期成功开发经验,再度回归,并在一期基础上,全面升级,是北上海毫无疑问的王炸产品。
四季都会·青藤里售楼处电话:400-8123-664进入报名通道,直接预约
⬇️专业销售一对一咨询⬇️
约90万方造城规模、14场开盘告捷、超4000组家庭的一致选择,造就四季都会宝山红盘标杆!
如今,大二期强势回归,在一期基础上,做了全方位的升级,堪称四季都会2.0!
那么相比四季都会大一期,四季都会2.0做了哪些升级?
通透的玻璃为主基调,简洁大气,利用线条和框的重新排列组合,立面简洁、现代,强化立面的高级感,在杭州就有相近的产品系,就拥有很高的市场呼声,来看分析示意图:
四季都会·青藤里售楼处电话:400-8123-664
再来看看四季都会大二期的外立面效果图:通透玻璃赋予了建筑更高的窗墙比,四季都会的“第一表情”有比较强烈的视觉冲击力。

比如说归家仪式感,在小区入户处,设置双重“院落”,从酒店式的落客庭院进入到静心庭院,就能看到小区为业主精心打造的礼仪盒子,在这一方开放式空间里,业主可以日常休憩、读书娱乐,或者接待朋友;
而这只是四季都会大二期社区【四大聚场】的1/4——街角剧场,除此之外,四季都会大二期还提供了:
运动聚场,包含了遂光跑道(含起跑区、拉伸区和能量补给站),露营草坪、羽毛球场和爱宠空间;
自然聚场,包含了药物植物园、节气植物园、气味植物园和童年记忆园,业主日常放松身心的好去处;
林下聚场,提供了一系列嬉戏场景。

四大聚场错落拍不再小区的各个角落里,层次感丰富,互动性十足,足不出户,就可以享受园居生活,这塑造的不是一个冷冰冰的空间,而是一个人与人之间边界消融的有温度社区。

NO.2
1号线终点站400米,通勤不拥挤
周边大量优质教育在旁!
四季都会靠近1号线富锦路站最近的地块,并且此站是1号线终点站,意味着早上通勤时期大概率都能坐到座位!
1号线作为上海第一条地铁,“含金量”超高——沿线既有淮海路、人民广场传统CBD,莘庄、徐家汇城市副中心,也有大宁、市北这样的新兴板块,房价更是“非富即贵”!
1号线沿线站点
不仅如此,为了集散人群,上海宝山站周边的陆路交通网也将同步升级,除了现有的1号线和3号线以及已经开展研究的19号线,上海2035规划中还出现了21、22、24号线等多条轨交线路!

图源:上海宝山
更让人兴奋的是,还有上海高铁北站规划(铁路新杨行站),《杨行发布》对外公示概念效果图。如果高铁北站规划真的可以批复,19号线也有望成为进站线路,杨行的未来将更加值得期待!
<铁路新杨行站概念效果图,图片来源:杨行发布>
说完交通就是大家购房普遍关心的学区问题,宝山引入三大知名教育集团——上海大学附属宝山外国语学校、上师大附属宝山实验学校、华师大二附中宝山校区!均在四季都会附近!

学校实景图
已经落地的产品有一所示范一级幼儿园,已确定引入七色花艺术幼儿园品牌,位于整个项目一期东面幼儿园用地。

区位示意图仅供参考四季都会·青藤里售楼处电话:400-8123-664
这样密集的资源分布,从幼儿园到高中优质教育,杨行实力得到显著提升!(免责声明:本公司对项目周边学校等教育资源的介绍旨在提供相关信息,并不意味着本公司对就学安排作出承诺。教育资源的名称、办学性质、办学规模、学位设置、开学(班)时间、招生条件、收费标准及招生区域等存在调整的可能,应以政府教育主管部门及办学方颁布的最新政策规定为准,与物理距离无直接关系,本公司对此不作出任何承诺或保证。)
NO.3
自带商业综合体,三甲医院落地
还有体育中心+休闲公园都在杨行
四季都会整个约90万方大城规划非常宏大,整个大盘将当作一座微缩型城市建设。整个项目设置多重公共空间,融合CO·life社群建设。四季都会·青藤里售楼处电话:400-8123-664
近些年,区域内生活配套除了优质的学校以外,三甲医院、大型商业综合体和文化场馆等在不断兑现。
一、智慧制造研发总部产业园已落地
2020年9月底,位于宝山杨行的湄浦路智慧制造研发总部产业园项目举行开工仪式。
产业园总建筑面积将近11万㎡,主体建筑为3栋L型围合式科研楼,在产业定位上,未来也将集高端智能智造、在线新经济、平台经济、文化创意等四大优势产业,定位清晰,产业能级也极为强劲。

效果图 来源:杨行发布
二、多元复合商圈初现
项目周边有北上海商业广场、亿博商业广场、金悦生活广场、宝龙广场、宝山花园城等配套商业设施投入使用,各能级消费皆能满足!
四季都会大城规划有约3.4万方的盘古路杨泰路商业综合体。

效果图
三、复旦大学附属中山医院托管,三甲医院来了!
2020年6月16日,宝山区政府与复旦大学附属中山医院签订战略合作协议,由中山医院对吴淞医院实施全面托管,并计划于“十四五”期间迁建至杨行,初步选址在江杨北路友谊路东南角。
图源/宝山区政府网站发布截图
四、区级杨行体育中心+33w方白沙公园
区域内已有约33w方的白沙公园、杨泰小游园等生态项目。
白沙公园是宝山区第三大绿化景观,整体规划面积达500亩,公园绿化面积超过26万方,绿化率高达75%,水体覆盖面积近4万方。
与白沙公园隔河相望的杨行体育中心目前已经开工,预计2-3年内建成。
规划设有游泳馆、乒乓球馆、网球馆、健身长廊等,建成后,将是杨行地区首个集体育、休闲、娱乐为一体的创意运动公园。
杨行体育中心效果图

四季都会·青藤里售楼处电话☎:400-8123-664【看房需预约】
上海宝山四季都会·青藤里售楼处电话☎:400-8123-664【感谢您的配合】
0距离地铁丨0距离商业丨0距离生态丨0距离学府丨0距离医疗
在售价格 | 户型图 | 地址 |——售楼处电话☎:400-8123-664——| 样板房 | 周边配套 | 项目介绍
温馨提示:提前预约销售人员看房,感谢您对售楼处的配合!
⚠免责声明:请尊重他人的努力和智慧,避免未经授权的复制或引用,以维护创作的公正性和原创性。
附:买房必看的房产小知识>>>
1、什么是商品房?
是指在市场经济条件下,通过出让方式取得土地使用权后开发建设的房屋,均按市场价出售。商品房根据其销售对象的不同,可以分为外销商品房和内销商品房两种。
2、新房与二手房的区别?
(1)新房
新房是指房地产开发商依法取得土地使用权后,在土地上建造并取得政府批准销(预)售的商品房。房屋根据用途分为住房和商用房。
(2)二手房
二手房是已经在房地产交易中心备过案、完成初始登记和总登记的、再次上市进行交易的房产。
二手房是相对开发商手里的商品房而言,是房地产产权交易二级市场的俗称。包括商品房、允许上市交易的二手公房(房改房)、解困房、拆迁房、自建房、经济适用房、限价房。
3、房屋类型
(1)低层:
低层房屋是指高度低于或等于10米的建筑物,一般是1-3层建筑物,如平房、别墅等。
(2)别墅:
改善型住宅,在郊区或风景区建造的供休养用的园林住宅。
分为以下5种:独栋别墅、联排别墅、双拼别墅、叠加式别墅、空中别墅。
(3)小高层:
人们一般把8层至12、13层的建筑称为“小高层”。小高层住宅一般采用钢筋混凝土结构,带电梯。小高层有多层亲切安宁、房型好、得房率高的特点,又有普通高层结构强度高、耐用年限高、景观系数高,污染程度低等优点,很受购房人欢迎。同时,小高层对土地的利用率提高,土地成本相对下降,很受房地产开发商的青睐。所以,近年来中心城区小高层如雨后春笋,越来越多。
(4)多层:
多层房屋指高于10米、低于或等于24米的建筑物。多层房屋一般为4-8层,一般采用砖混结构,少数采用钢筋混凝土结构。多层房屋一般规格(房型)整齐,通风采光状况好,空间紧凑而不闭塞。与高层相比,多层房屋公用面积少,得房率相应提高,这是很多人喜欢多层房屋的主要原因。
4、房屋结构
(1)复式
复式住宅在概念上是一层,但层高较普通的住宅高,可在局部掏出夹层,安排卧室或书房等内容,用楼梯联系上下。其目的是提高住宅空间利用率。
(2)跃层
跃层住宅是一套住宅占两个楼层,有内部楼梯联系上下层;一般在首层安排起居、厨房、餐厅、卫生间,最好有一间卧室,二层安排卧室、书房、卫生间等。
(3)平层
平层户型是小面积里最常见的户型,适合普通家庭居住。是指一套房屋的厅、卧、卫、厨等所有房间均处于同一层面上。
优:经济实用、面积利用率较大、室内无任何障碍;
缺:没有功能区分,对于稍大面积的房间来说,变化大。
(4)错层
错层一般是120平米以上面积的房子,如果能够买的这个面积的房子,可以装修成错层。
优:室内各功能用房在不同的平面上,用2-4个台阶进行隔断各个功能居室互不干扰;
缺:由于室内有台阶,老年人或者儿童在夜间使用容易摔跤;采光通风不太好。
5、居住面积
住宅的居住面积是指住宅建筑各层平面中直接供住户生活的居室净面积之和。所谓净面积就是要除去墙、柱等建筑构件所占的水平面积。
6、房地产产权
房地产产权指房屋所有权和该房屋占用国有土地的使用权,房地产所有者对其所有的房地产享有占用、使用、收益和处分的权利。
7、什么是按揭
按揭是指按揭人将房产的产权转让给提供贷款的银行作为还款保证,按揭人在还清贷款后,按揭受益人立即将所涉及的房产产权转让给按揭人的行为。
8、什么是住房公积金
住房公积金是一种义务性的住房长期储金。住房公积金制度是结合我国城镇住房制度改革的实际情况而实行的一种房改政策,指有关住房公积金的归集、管理、使用、偿还等诸环节有机构成的整个运行机制和管理的制度。
9、住房贷款
(1)什么是个人住房抵押贷款
是借款人购、建、修住房时以借款人或第三者能自主支配的房地产作为抵押物,向银行申请一定数额借款的一种贷款方式。借款人到期不能归还贷款本息的,贷款银行有权依法处分其抵押房地产以获得清偿。
(2)什么是个人住房担保贷款
是指借款人或第三人以所购住房和其他具有所有权的财产作为抵押物或质物,或由第三人为其贷款提供保证,并承担连带责任的贷款。借款人到期不能偿还贷款本息的,贷款银行有权依法处理其抵押物或质物,或要求保证人承担连带偿还本息责任。
声明:本文由入驻焦点开放平台的作者撰写,除焦点官方账号外,观点仅代表作者本人,不代表焦点立场。


