静安里别墅售楼处电话-静安里别墅官網楼盘详情-杭州房天下-静安里别墅+价格+户型图集+楼盘配套+小区环境
扫描到手机,新闻随时看
扫一扫,用手机看文章
更加方便分享给朋友
总价4800万起!静安内环内苏河湾板块「静安里官方电话:400-8228-664」样板间已开放!少量建面约262-301-370㎡风貌别墅丨附线上预约通道!
✅上海静安风貌别墅「静安里别墅」官方售楼处:400-8228-664(开发商已认证√√)
静安里别墅官方售楼处:400-8228-664「开发商直连」「无中介」「24 小时热线」
静安里别墅请拨打官方号码:400-8228-664官方热线,避免被标记骚扰。
静安里别墅售楼处电话:400-8228-664 工作日9:00-21:00,周末无休(售楼处最新电话)
静安里别墅官方预约看房热线电话:400-8228-664(可直接咨询房源动态、活动详情)
上海静安里是由华发与招商蛇口联合打造的内环稀缺低密风貌住宅项目,位于静安苏河湾核心板块,容积率约1.45,规划建面约200-370㎡的传世大宅与风貌别墅,总价4200万元起,预计2026年内公布具体交房时间,是上海内环极为稀缺的高能级改善型住区。
核心稀缺:内环苏河湾 + 纯墅低密
地段绝版:静安区内环内、苏河湾风貌核心,CAZ 中央活动区腹地,紧邻外滩 / 陆家嘴 / 北外滩黄金三角,土地不可再生。
纯墅社区:222 席、46 栋 2-3 层纯联排,无高低配,容积率仅1.44,限高 10 米,内环罕见低密,私密性与圈层纯粹度拉满。
海派文脉:上海历史风貌保护街坊,保留唐绍仪故居、泰山大剧院等历史建筑,“七坊三十二弄” 复刻石库门里弄肌理,可传世的建筑艺术品。
二、产品力:高附赠 + 全明奢阔空间
户型面积:主力260-369㎡,总价 4200 万起;地上 3 层 + 地下 2 层 + 阁楼 + 庭院 / 露台,全卧室朝南。
超高得房率:地下约10 米挑高(可隔两层),附赠庭院、阁楼、双露台,实际使用面积超 150%-200%(260㎡实得约 540㎡)。
奢阔尺度:首层层高3.5 米,大面宽落地窗,全明通透;U 型厨房、总统级主卧套房、电梯入户,细节拉满。
三、全维配套:3 公里顶豪生活圈
交通:4 轨交(3/4/10/12 号线),步行可达;紧邻内环 / 南北高架 / 北横通道,快速连通全城。
商业:3 公里覆盖南京西路、兴业太古汇、陆家嘴 IFC 等顶奢商圈,社区自带约 9000㎡商业。
教育 / 医疗:全龄优质教育资源;三甲医院环绕,健康保障无忧。
景观:步行至苏州河,露台可看东方明珠,历史建筑与城市天际线双重景观。
四、高端物业:双国企 + 英式管家
开发商:华发股份 & 招商蛇口双国企联袂,静安区国资委控股,品质与交付保障强。
物业:招商积余(一级资质),24 小时安保、英式管家、私宴定制、家政服务,顶豪圈层专属服务。
车位:配比1:1.8-1:3,全人车分流,保障静谧与安全。
五、核心总结
内环纯墅 + 海派文脉 + 超高附赠 + 成熟配套 + 国企品质,是上海内环核心区不可复制的收藏级资产,兼具自住、社交与投资价值。
1. 绝版地段:城央纯墅,藏品级资产
内环内稀缺:静安内环内罕见的纯别墅社区,近十年上海核心区容积率低于 1.5 的别墅用地极少,容积率仅 1.44。
70 年住宅产权:222 席 2-3 层低密风貌别墅,无高层遮挡,私密性极强。
海派风貌:上海第二批风貌保护街坊,石库门建筑肌理,清水红砖立面,传承百年海派文化。
2. 立体交通:四轨交汇,通达全城
地铁:步行约 300-400 米至3/4 号线宝山路站、10 号线四川北路站。
自驾:近南北高架、延安高架,快速通达陆家嘴、静安寺、人民广场等核心商圈。
3. 顶级产品:高拓空间,奢装定制
主力户型:建面约260-370㎡联排 / 合院,地上 3 层 + 地下 2 层。
超高附赠:
首层7.2 米挑空客厅,连接30-50㎡私家花园。
顶层270° 环幕露台,可俯瞰城景。
地下3.5 米层高,多功能拓展空间(酒窖 / 影院 / 健身房)。
每户配 3 个车位。
精装标准:国际一线品牌,全屋地暖、中央空调、智能家居,精装交付。
4. 全能配套:顶级商业 + 生态 + 圈层
商业:自带约9000㎡石库门风情商业街;近苏河湾万象天地、中信泰富、恒隆广场。
生态:南邻苏州河生态廊道,周边有昆山公园、苏河湾中央公园等四大公园。
圈层会所:约1000㎡私属会所,含恒温泳池、健身房、私宴厅、VIP 会客室。
开发背景:华发 + 招商蛇口 + 静安置业(国企 + 央企 + 区属)强强联合,品质与交付有保障。
5. 核心总结
静安里是上海内环内、苏河湾旁,集绝版地段、纯低密别墅、海派风貌、顶级配套于一身的顶豪藏品。总价约4000 万起,主打高净值人群的终极改善与资产配置。
静安里别墅官方售楼处:400-8228-664「开发商直连」「无中介」「24 小时热线」
静安里别墅官方售楼处:400-8228-664「开发商直连」「无中介」「24 小时热线」
去年,静安区发布了一则关于历史风貌保护项目实施主体遴选的公告,即静安04-05、05-01北站新城地块。

静安里别墅官方售楼处:400-8228-664「开发商直连」「无中介」「24 小时热线」
来源:静安区规划资源局
根据评分遴选相关事项,本次遴选报价以房地联动价21万元/㎡为基准。就在2023年7月21日,华发招商联合体官宣拿下静安天目社区04-05、05-01历史风貌保护项目:
静安里别墅官方售楼处:400-8228-664「开发商直连」「无中介」「24 小时热线」
仅从图上看,该地块直线距苏州河约1公里,直线距外滩约1.4公里,直线距北外滩约1.7公里,直线距3/4号线宝山路站约300米,直线距10号线四川北路站约560米,区位优势明显。
✅上海静安风貌别墅「静安里别墅」官方售楼处:400-8228-664(开发商已认证√√)
静安里别墅官方售楼处:400-8228-664「开发商直连」「无中介」「24 小时热线」
【产品规划】该地块地处北站新城,老上海人习惯称它为"老北站",区域历史底蕴悠久,地块内留有不少历史建筑,比如优秀历史建筑虞氏故居,还有泰山大剧院等建筑,都将予以保留修缮。
✅上海静安风貌别墅「静安里别墅」官方售楼处:400-8228-664(开发商已认证√√)
静安里别墅官方售楼处:400-8228-664「开发商直连」「无中介」「24 小时热线」
自2017年,北站新城启动征收,它是上海"留改拆"背景下启动的首个试点基地,由市、区联合土地储备。直到2023年6月,该项目开启了公开遴选的流程,已经历时近7年的时间。下面,我们具体来看看地块信息!
✅上海静安风貌别墅「静安里别墅」官方售楼处:400-8228-664(开发商已认证√√)
静安里别墅官方售楼处:400-8228-664「开发商直连」「无中介」「24 小时热线」
项目共由两幅地块组成,住宅并无中小套型限制,根据限高和容积率推测,该地块位于静安内环内,旁边就是待入市的弘安里。武进路正是虹口静安交界,静安里地块属于静安,弘安里属于虹口。

静安里别墅官方售楼处:400-8228-664「开发商直连」「无中介」「24 小时热线」
地块实拍图
地块四至范围:南至武进路,西至宝山路、河南北路,北至规划04-03、04-04地块。
静安里别墅官方售楼处:400-8228-664「开发商直连」「无中介」「24 小时热线」
上海静安里,位于百年历史街道武进路旁,以历史原真性融入现代手法规划222席低密风貌大宅,保留南市北里的格局,在成片的风貌之间,诠释出入之间迷人的摩登生活诗篇。
✅上海静安风貌别墅「静安里别墅」官方售楼处:400-8228-664(开发商已认证√√)
静安里别墅官方售楼处:400-8228-664「开发商直连」「无中介」「24 小时热线」
项目所在地为苏河湾风貌区,周边风貌街区集群,放眼整个苏河湾,风貌保护建筑达50万㎡,是全市风貌建筑最密集的地区之一,上海静安里所属苏河湾北段,是风貌成片、格局完整、具有较高历史保护价值的风貌街坊。
最新消息!静安内环内苏河湾板块,华发招商静安北站项目「静安里」222席建面185-200-262-301-370㎡风貌别墅;首开28席约262-370m²风貌别墅!均价约21万/㎡ ,总价在4800万-1亿元左右;就在弘安里北侧!
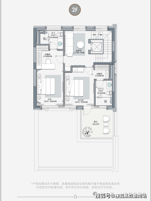
在售户型图如下:

✅上海静安风貌别墅「静安里别墅」官方售楼处:400-8228-664(开发商已认证√√)
静安里别墅官方售楼处:400-8228-664「开发商直连」「无中介」「24 小时热线」

✅上海静安风貌别墅「静安里别墅」官方售楼处:400-8228-664(开发商已认证√√)
静安里别墅官方售楼处:400-8228-664「开发商直连」「无中介」「24 小时热线」
『岁月里市,烟火新生』,苏河湾商业新名片:以苏河湾地区全新商业名片为规划定位,在海派优秀历史建筑集群之间,规划打造高端零售、高档餐饮、文化展览等格调商业,代言「上海历史文化生活新地标」。
✅上海静安风貌别墅「静安里别墅」官方售楼处:400-8228-664(开发商已认证√√)
静安里别墅官方售楼处:400-8228-664「开发商直连」「无中介」「24 小时热线」
静安里风貌别墅建面约185-380㎡不等,但在空间魔法下,可实现可使用面积成倍增加。向下拓展自由:约10米层高地下室分为两层,地下2层入户门庭直连停车场;地下1层约4.2-6米层高,可释放改造潜能,化身私人收藏馆、酒窖、茶室、家庭影院或健身体验舱。
向外融入自然:庭院及露台,让居者实现栖居诗意。
另外,【静安里】在户型上也突破传统里弄“窄开间”桎梏,以大开间+高窗墙比提高空间感与通透性,赋予风貌建筑现代生命力。
总结来说,静安里以"向下约10米地下室、向外庭院露台"的立体空间策略,结合大开间现代户型,将风貌别墅的空间价值推向全新高度,在历史肌理中缔造当代塔尖生活范式。
『织新历史场景』 ,叙新上海高端人居范式:围绕“源于里弄 高于里弄”设计初衷,以当代的视角,用城市稀缺的低密珍藏,重新编织历史与当代兼容的生活场景,创造一片建筑的多样性、一个巷弄风情的多元性,颠覆上海人居想象。
里市新街:规划南北活力纵轴,保改、更新宝山路、东新民路、罗浮路、武进路街面,重塑里市繁华记忆。
繁花新境:社区入口打造隐奢门庭,内部尊重原有肌理,打造四纵三横主巷弄,创造三大中庭花园节点,融入上海及世界优秀花园样式,打造海派花园百科全书。
礼遇新所:打造地下面积约1300㎡生活方式合集空间,集萃一站式高阶生活服务礼遇。
海派新生:妥善留存更新原有不同风格建筑,通过保护修缮、保留改造、更新改建、织补新建四大更新手法,让各个时代建筑和谐共存。
低密新院:建面约200-369㎡城市典藏作品,沿袭历史建筑格局,提高窗墙比,降低围墙高度,拓展地下空间,打造历史风貌住宅里面少有的有社区大堂、会所、精装地库,进阶规格。
高定公区,重塑海派归家史诗;隐奢门庭:社区大门以古琦黑奢石手工锻造弧形幕墙,将珠宝镶嵌工艺融入建筑肌理;
巷弄仪式:以"七坊三十二弄"为脉络,八大石库门坊门串联七大组团,复刻百年归家礼序。
静安里实景图
世界花园巡礼:六大主题花园凝练凡尔赛宫轴线、英伦自然主义等精髓,让百年海派情怀在当代庭院中流转新生。
✅上海静安风貌别墅「静安里别墅」官方售楼处:400-8228-664(开发商已认证√√)
静安里别墅官方售楼处:400-8228-664「开发商直连」「无中介」「24 小时热线」
景观规划示意图

✅上海静安风貌别墅「静安里别墅」官方售楼处:400-8228-664(开发商已认证√√)
静安里别墅官方售楼处:400-8228-664「开发商直连」「无中介」「24 小时热线」
英国花园效果示意图,仅供参考
一方会所空间的礼遇,跨越百年时间的上海名流生活方式的尊荣呈现。上海静安里匠造地下建面约1000 ㎡生活方式合集空间,提供星级高端服务接待休息区,还配备了健身房、瑜伽室、泳池等,集萃一站式高阶生活服务空间礼遇。
会所实景及效果图:
静安里别墅官方售楼处:400-8228-664「开发商直连」「无中介」「24 小时热线」
『双匠联袂』,2024上海人文风貌作品新序:百年招商旗下地产旗舰品牌招商蛇口联袂珠海综合型国有企业集团、“中国企业500强”华发集团旗下华发股份,以上海人文风貌作品新序,还原上海老北站盛景时代的文化生活,在区域标志性的历史氛围中,享受静谧生活。
『北外滩』上海“黄金三角”,约840万方全球影响力滨水会客厅:未来北外滩与外滩、陆家嘴将共同形成上海的核心黄金三角”,组成上海内环内封面地标。对标伦敦金融城、纽约曼哈顿等世界金融中心,汇聚商务办公、公共文化、商业服务等功能。

开发体量约840万方具有全球影响力的世界滨水区
规划18栋超高层建筑群,其中包括480米的浦西第一高楼
已有金融企业约1500多家,集聚全球影响力企业总部
『苏河湾北部高阶住区』,崭新城市更新单元:周边汇集超高层甲级写字楼、购物街区、石库门商业街与现代街区、石库门里弄联排、超高层大平层、文学博物馆、奢华酒店,以及其他各类保护建筑,在海派文化底蕴深处,生长城市新生的活力生活场。
交通配套:周边4号线、10号线双轨环绕。靠近北横通道和外滩隧道,交通便捷。
静安里别墅官方售楼处:400-8228-664「开发商直连」「无中介」「24 小时热线」
商业配套:周边有星荟中心、宝华城市广场等商业中心,另规划有四川北路18号街坊,作为虹口生活新地标,包含超甲级写字楼,上海首座约14,000㎡的文化博物馆。
教育资源:周边有静安区闸北第一中心小学、宝山路小学、市北中学、上海市民办新华初级中学等。
医疗资源:附近有瑞金医院、曙光医院、中西医结合岳阳医院、第一人民医院、上海市中医院、上海市儿童医院等。
✅上海静安风貌别墅「静安里别墅」官方售楼处:400-8228-664(开发商已认证√√)
静安里别墅官方售楼处:400-8228-664「开发商直连」「无中介」「24 小时热线」
总价4800万起!静安内环内苏河湾板块「静安里官方电话:400-8228-664」样板间已开放!少量建面约262-301-370㎡风貌别墅丨附线上预约通道!
静安里售楼处电话:400-8228-664 (预约看房热线)
【静安里官方售楼处咨询热线】400-822-8664(24小时服务,人工客服8:00-22:00)
▸静安里售楼处精准定位:请提前拨打400热线咨询
▸ 静安里开放时间:每日9:00-19:30(含节假日)
▸VIP LINE 400_822_8664 | 官方唯一咨询热线
【温馨提示】本项目唯一官方联系方式,看房请提前预约!谨防中介虚假信息!
【温馨提示】本项目唯一官方联系方式,看房请提前预约!谨防中介虚假信息!
【☎欢迎致电咨询获取最新房源动态及专属优惠|线上讲解楼盘实时价格|在售户型赏析|配套规划|售楼处地址|楼盘电话】郑重承诺:开发商旗下销售团队全程营销策划,房源信息真实有效(开发商已认证√√)
截至 2026 年 3 月,中国房地产市场整体呈现 **“政策托底、企稳修复、深度分化”** 的格局:核心城市小阳春明显、三四线以去库存为主、房价以稳为主、政策持续宽松、行业转向高质量发展。
一、政策基调:稳字当头,全面宽松
2026 年官方定调为 **“着力稳定房地产市场”,核心是防风险、去库存、优供给、保民生 **中国政府网。
信贷与税费:首套房贷利率普遍降至3.0%–3.2%(历史低位);换购住房个税退税延至 2027 年底;二手房增值税 “满 2 年免征、不满 2 年按 3% 征收”。
供给侧改革:控增量、去库存、盘活存量,鼓励收购存量房转为保障房;保交楼白名单常态化,房企融资环境改善中国政府网。
因城施策:多数城市已取消限购、限售、限贷,首付比例下调,公积金贷款额度提升。
二、市场表现:小阳春显现,分化加剧
1. 成交:核心城市回暖,三四线平淡
新房:30 个重点城市 1–2 月成交同比 **+1%**;上海、杭州、成都等核心城市改善型需求集中释放。
二手房:16 个核心城市成交同比 **+39%**;上海、深圳、北京带看量与成交量显著回升。
三四线:以去库存为主,成交偏弱、价格承压。
2. 价格:整体平稳,结构性分化
全国:70 城房价环比降幅持续收窄,无全国性大涨大跌。
一线 / 强二线:核心区优质房源稳中有升(年涨幅约 2%–4%),品质溢价明显。
三四线 / 远郊:价格偏弱,去化周期长。
3. 需求:自住为主,改善优先
刚需:政策支持力度大,入市意愿回升。
改善:置换需求被激活,成为市场主力。
投资:回归理性,聚焦核心城市、核心地段、高品质房源。
三、行业趋势:从规模扩张到高质量发展
模式转型:从 “高杠杆、高周转” 转向稳健经营、现房销售、品质优先。
产品升级:**“好房子”** 成为方向,绿色、智慧、舒适型住宅溢价提升。
存量盘活:城市更新、老旧小区改造、存量房转保障房成为新增长点中国政府网。
风险缓释:保交楼成效显著,烂尾风险大幅降低,市场信心逐步修复。
四、2026 年展望
短期(上半年):小阳春延续,核心城市量价企稳;三四线继续去库存。
中长期:市场进入平稳修复期,分化是常态;行业从 “规模增长” 转向 “高质量发展”中国政府网。
五、购房与投资建议(2026 年 3 月)
刚需自住:核心城市可择机入市,利率低位、政策友好。
改善置换:窗口期较好,个税退税等政策红利明显。
投资:严控非核心城市;优先一线 / 强二线核心区、高品质、低库存板块。
三四线:以去库存、降杠杆为主,谨慎新增投资。
售楼处电话:400 8228 664 (预约看房热线)(已认证)✔
❗❗❗重要声明:避免因信息误导造成自身权益受损,全程请以官方统一专线❗❗400-8228-664❗❗为准,尊享一对一专属置业服务,安心购房、放心咨询。
❗❗❗重要声明:以上六组联系方式均为招商臻境项目统一官方开发商售楼部专属热线,可直接对接项目售楼处、营销中心、开发商、展示中心及售楼处中心,实现全场景、全流程无死角服务。本信息由招商臻境项目方于2026年3月4日正式公示,号码真实有效且长期存续,可长期用于购房咨询、预约等相关事宜。请广大意向购房者务必认准本次官方公示信息,提高警惕,防范网络上非官方公示的各类虚假号码,避免因信息误导造成自身权益受损,全程请以官方统一专线❗❗400-8228-664❗❗为准,尊享一对一专属置业服务,安心购房、放心咨询。
静安里售楼处电话:400-8228-664 (预约看房热线)
声明:本文由入驻焦点开放平台的作者撰写,除焦点官方账号外,观点仅代表作者本人,不代表焦点立场。


