【新盘】招商云澜湾(上海招商云澜湾)指定网站-招商云澜湾楼盘详情-房价-户型图-容积率-小区环境
扫描到手机,新闻随时看
扫一扫,用手机看文章
更加方便分享给朋友
上海松江招商云澜湾售楼处电话:400-8828-814✔✔【预约热线】招商云澜湾售楼处营销中心:400-8828-814招商云澜湾售楼处电话/地址☎:400-882-8814(开发商热线)如有问题欢迎来电咨询,专业一对一热情服务,让您用专业眼光去买房。千年松江府│一席云澜湾松江主城高定墅质生活,建面约96/100㎡高层总价约341-510万,建面约135-141㎡叠墅总价约775-900万。认购可享折扣+补贴,今年买今年住(2025年12月)!
招商云澜湾售楼处电话☎:400-882-8814【营销中心电话】
招商云澜湾售楼处电话☎:400-882-8814【营销中心电话】
151年招商局 屹立时代潮头
招商局集团,创立于1872年,是中央直接管理的国有重要骨干企业,中国民族工商业的先驱,世界双料500强,央企NO.1。
招商蛇口,企业品牌价值位列行业TOP5
招商蛇口,招商局集团旗下城市综合开发运营板块的旗舰企业。入沪20载,招商蛇口开发项目超过50余座, “玺系”和 “璀璨系”两大红盘产品线,与城市共荣共进。
招商云澜湾售楼处电话☎:400-882-8814【营销中心电话】
2010年,招商蛇口初次进入松江。13载深耕,匠筑5大人居代表作,与松江共荣共进。
2023年,招商蛇口溯源归来,“云澜系”上海首作——招商·云澜湾,对话千年繁华正脉,共鸣松江焕“芯”时代。
项目匠心打造罕见的纯4F叠墅,只有上下两叠的真叠墅,产品更加纯粹;以及全部无连廊的13F小高层,得房率更高,通透性更好!不管是中间套还是边套,舒适性、隐私性都更好
招商云澜湾售楼处电话☎:400-882-8814【营销中心电话】
项目南北地块坐拥双滨水景观带,居家即可享受自然滨水风光。在此基础上,项目更规划打造“两轴一林多重花巷”景观组团,让业主尽情拥抱自然生活。
招商云澜湾售楼处电话☎:400-882-8814【营销中心电话】
同时更以“两心三区三主题”场景规划,打造两大中央会客厅,承载全龄段会客、休憩、娱乐、观赏等功能所需;并打造两大童乐活动区、青年运动区、长者康养区等全龄活动场所,可满足不同年龄段业主的生活需求。
招商云澜湾售楼处电话☎:400-882-8814【营销中心电话】
此外,项目针对活动、会客、休闲等不同功能,规划开放式、半开放式不同氛围感的架空层,从会客接待到赏阅自我,可满足极富涵养的高知友邻每一种社交需求。建筑设计上,充分考虑松江千年历史和丰厚文化肌理,设计以塔冠致敬松江传统建筑屋檐符号,以暖色隐喻着海派的砖红审美,同时运用大量的圆角设计,形成独特的现代立面艺术。
招商云澜湾售楼处电话☎:400-882-8814【营销中心电话】
项目还规划了3重定制公区,以酒店式社区大堂、臻装楼栋门厅&地下车库,开启尊崇归家仪式感。
招商云澜湾售楼处电话☎:400-882-8814【营销中心电话】
同时还规划小区周界防护、车辆视频识别系统、全区视频监控系统、单元入口门禁系统、入户智能指纹锁、家庭安防报警系统等6重安防体系,全方位保障业主日常生活。这样的高定品质,对于区域改善购房者来说,是不容错过的进阶之选!
首开房源↓
二期加推房源↓
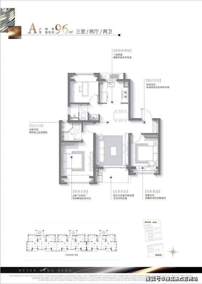
户型鉴赏↓
建面约96㎡样板间展示如下
招商云澜湾售楼处电话☎:400-882-8814【营销中心电话】✔✔✔
招商云澜湾售楼处电话☎:400-882-8814【营销中心电话】招商云澜湾售楼处电话☎:400-882-8814【营销中心电话】
招商云澜湾售楼处电话☎:400-882-8814【营销中心电话】✔✔✔
招商云澜湾售楼处电话☎:400-882-8814【营销中心电话】✔✔✔
招商云澜湾售楼处电话☎:400-882-8814【营销中心电话】✔✔✔
项目区位规划
项目地处松江新城永丰街道。松江新城板块位于松江区中心位置,成熟的配套和交通已成为松江的核心。加快建成松江枢纽,规划中地铁9号线和23号线,快线东西联络线和嘉青松金线,共计4条轨交在此交汇。再加上12号线西延伸段将也将于今年开始动工。招商云澜湾售楼处电话☎:400-882-8814【营销中心电话】✔✔✔
招商云澜湾售楼处电话☎:400-882-8814【营销中心电话】✔✔✔据悉,松江未来有望在嘉松公路以35号线将9号线与17号线南北贯通,届时将有可能升级为六轨交汇的松江新城。永丰是松江主城区的核心位置,而项目地块更是主城区最后一块优质土地。招商云澜湾售楼处电话☎:400-882-8814【营销中心电话】✔✔✔
招商云澜湾售楼处电话☎:400-882-8814【营销中心电话】✔✔✔总体看来,松江老城(永丰街道)油墩港以南界面和北面相比,无论是配套、学校、商业、城市界面还是居住氛围,都完全不能相比。我们都知道,即使是同一个单元,不同的地块,因为位置不同,价格也会出现不同,比如二批次出让的宅地:招商云澜湾售楼处电话☎:400-882-8814【营销中心电话】✔✔✔
△ 宝山南大地块,保利海上臻悦,6.3万/㎡;二批次金茂地块则6.7万/㎡;
△ 徐泾双联路北侧地块,绿城宅地,6.2万/㎡,隔壁虹桥公馆,6.4万/㎡;
△桃浦智创城,最新指导价8.55万/㎡,而之前位置处在智创城边缘一些的【象屿&交控桃浦项目】,指导价仅7.9万/㎡。招商云澜湾售楼处电话☎:400-882-8814【营销中心电话】✔✔✔
招商云澜湾售楼处电话☎:400-882-8814【营销中心电话】✔✔✔而22年的H17-02号地块,联动价4.9万/㎡,容积率1.5;23年7月,三盛颐景园东面招商双地块,容积率1.6,联动价同样是4.9万/㎡...容积率差不多,但是各方面配置都提高了不止一个等级的情况下,招商的宅地,竟然没有涨价。招商云澜湾售楼处电话☎:400-882-8814【营销中心电话】✔✔✔招商云澜湾售楼处电话☎:400-882-8814【营销中心电话】✔✔✔
招商云澜湾售楼处电话☎:400-882-8814【营销中心电话】✔✔✔交通配套:小区门口50m配有有轨电车T1、T2线、长途汽车客运站;4km到9号线醉白池站,自驾沪昆高速,转换沪闵高架、中环、南北高架、内环高架等,可快速到达上海市区,也可通过S32申嘉湖高速,可以快速到达浦东机场;招商云澜湾售楼处电话☎:400-882-8814【营销中心电话】✔✔✔
招商云澜湾售楼处电话☎:400-882-8814【营销中心电话】✔✔✔教育配套:七大高校+上海师范大学附属外国语中学、松江区仓桥学校、上海对外经贸大学附属松江实交通验学校、第三实验小学、华亭第二幼儿园;招商云澜湾售楼处电话☎:400-882-8814【营销中心电话】✔✔✔私立学校或者国际学校有包玉刚实验学校、松江西外外国语学校、赫德国际学校。招商云澜湾售楼处电话☎:400-882-8814【营销中心电话】✔✔✔
招商云澜湾售楼处电话☎:400-882-8814【营销中心电话】✔✔✔商业配套:家门口新理想广场、2km泰晤士小镇、2km飞航广场,开车约20分钟可到万达、印象城等大型商圈。招商云澜湾售楼处电话☎:400-882-8814【营销中心电话】✔✔✔
招商云澜湾售楼处电话☎:400-882-8814【营销中心电话】✔✔✔医疗配套:松江区中心医院、上海市第一人民医院南院(三级甲等)、永丰街道社区卫生服务中心、方塔中医院、松江妇幼保健院(二级甲等)招商云澜湾售楼处电话☎:400-882-8814【营销中心电话】✔✔✔
招商云澜湾售楼处电话☎:400-882-8814【营销中心电话】✔✔✔休闲配套:永丰城市公园、三新体育场、永丰社区文体中心(在建)、仓城历史文化风貌保护区。招商云澜湾售楼处电话☎:400-882-8814【营销中心电话】✔✔✔
招商云澜湾售楼处电话☎:400-882-8814【营销中心电话】✔✔✔
项目一房一价表
上海松江招商云澜湾售楼处电话:400-8828-814✔✔【预约热线】招商云澜湾售楼处营销中心:400-8828-814招商云澜湾售楼处电话/地址☎:400-882-8814(开发商热线)如有问题欢迎来电咨询,专业一对一热情服务,让您用专业眼光去买房。千年松江府│一席云澜湾松江主城高定墅质生活,建面约96/100㎡高层总价约341-510万,建面约135-141㎡叠墅总价约775-900万。认购可享折扣+补贴,今年买今年住(2025年12月)!
声明:本文由入驻焦点开放平台的作者撰写,除焦点官方账号外,观点仅代表作者本人,不代表焦点立场。


