陆家嘴滨江凯旋门售楼处(滨江凯旋门售楼处电话)官方营销中心电话_滨江凯旋门来电预约看房_滨江凯旋门2026楼盘测评-最新房价
扫描到手机,新闻随时看
扫一扫,用手机看文章
更加方便分享给朋友
上海浦东陆家嘴滨江凯旋门售楼处电话:4008123664(预约看房热线)
【陆家嘴滨江凯旋门官方售楼处咨询热线】400-812-3664(24小时服务,人工客服8:00-22:00)
▸陆家嘴滨江凯旋门售楼处地址:上海市浦东新区浦明路688弄(看房请提前预约)
▸开放时间:每日9:00-19:30(含节假日)
▸VIPLINE400_812_3664|官方唯一咨询热线
【温馨提示】本项目唯一官方联系方式,看房请提前预约!现场销售接待!谨防中介虚假信息!
《2026魔都最期待顶豪》【滨江凯旋门别墅】临江大宅丨超越汤臣一品大哥地位丨面积330-580㎡丨仅23套临江别墅丨预约可看

一条黄浦江将上海分开浦东与浦西,
两岸的建筑交相辉映,
黄浦江在陆家嘴这里划出一条漂亮的曲线。
黄浦一江奔远去,
高耸群楼溢浦东。
现代与历史,高贵与经典,魔幻与时尚
……
这里是陆家嘴
上海浦东陆家嘴滨江凯旋门售楼处电话:4008123664(预约看房热线)
【陆家嘴滨江凯旋门官方售楼处咨询热线】400-812-3664(24小时服务,人工客服8:00-22:00)
01
位置和区域
上海从不缺豪宅。

上海浦东陆家嘴滨江凯旋门售楼处电话:4008123664(预约看房热线)
【陆家嘴滨江凯旋门官方售楼处咨询热线】400-812-3664(24小时服务,人工客服8:00-22:00)浦江沿岸后继者无数,位次却在岁月洗礼中更加分明。繁华之下,自有岿然不动的那一小寸占据着沪上豪宅之巅。每每入市,都引得全城顶级精英闻风而动、唯恐错失。
那一寸,名为陆家嘴。
它足以代表整个中国的财富最高浓度。
若能有得选,必定重仓它,早已是富豪们心照不宣的默契。
而在陆家嘴内的方寸之间,还有毫厘之分。
于黄浦江沿岸最一线的位置落座,才算补齐豪宅基因。沪上豪宅怎能没有天赐的一线江景?透过窗户,目无遮拦地领略流转的盛景,才能承载满腔的豪情,才算沉浸式的塔尖生活。
地段价值是豪宅的显性基因,只一瞥即能高下立判。更挑剔的富豪早已更上一层楼,在地段之外,追求一种同样夺不走的、经由时间淬炼的沉淀。
这样的房子,模仿不来。这样的房子,屈指可数。
陆家嘴滨江正芯,唯有滨江凯旋门。
实景图

滨江凯旋门位于陆家嘴核心地段,紧靠黄浦江,是由新鸿基地产打造的豪宅。规划建设包括高层住宅和临江别墅。今天让我们一起感受一下滨江别墅的震撼!
上海浦东陆家嘴滨江凯旋门售楼处电话:4008123664(预约看房热线)
【陆家嘴滨江凯旋门官方售楼处咨询热线】400-812-3664(24小时服务,人工客服8:00-22:00)
02
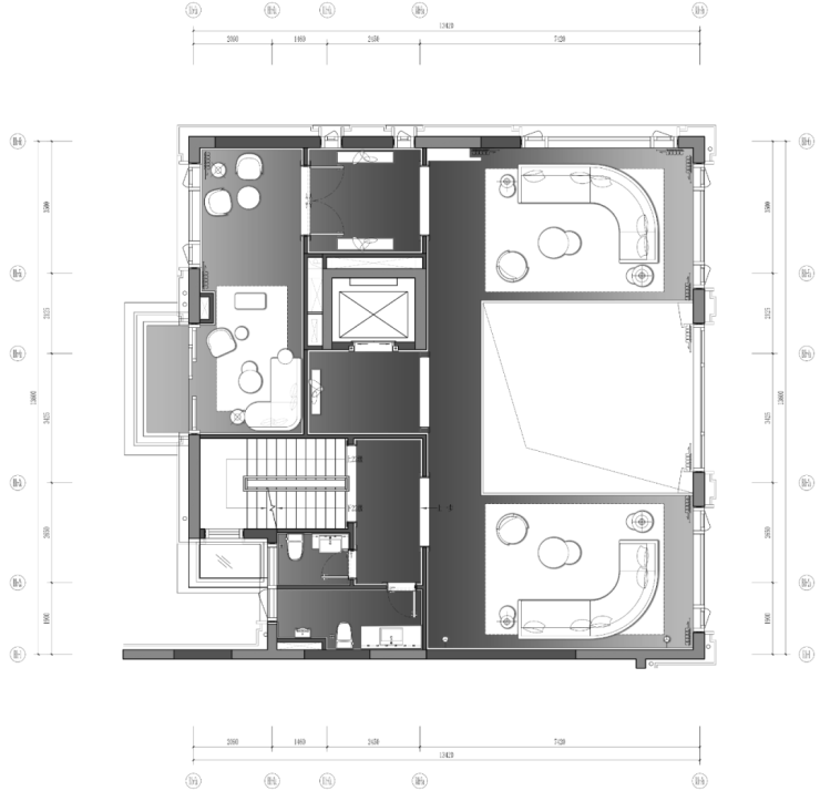
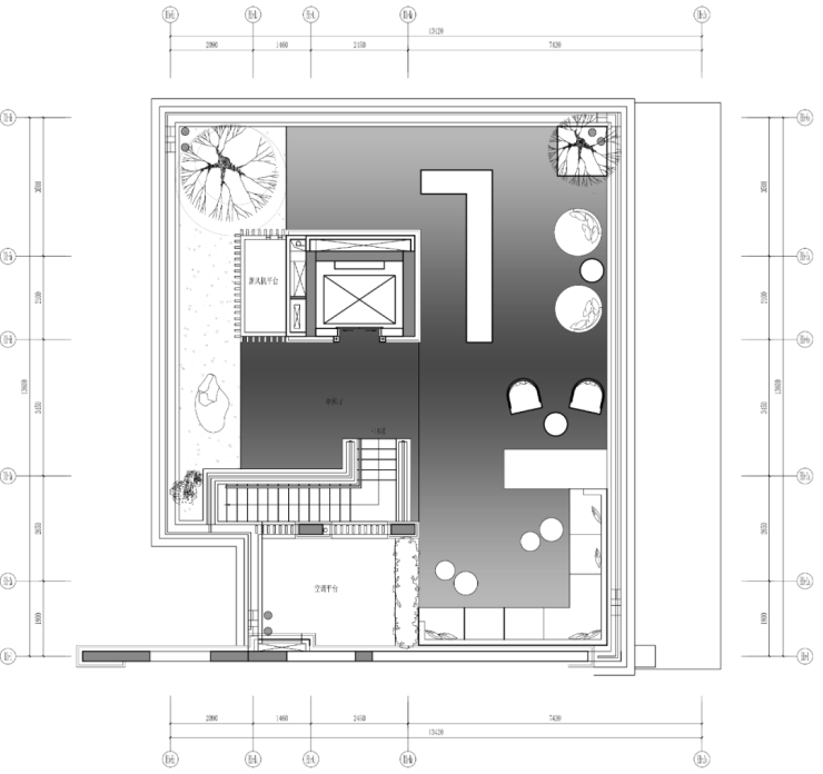
户型图:
上海浦东陆家嘴滨江凯旋门售楼处电话:4008123664(预约看房热线)
【陆家嘴滨江凯旋门官方售楼处咨询热线】400-812-3664(24小时服务,人工客服8:00-22:00)

1F

上海浦东陆家嘴滨江凯旋门售楼处电话:4008123664(预约看房热线)
【陆家嘴滨江凯旋门官方售楼处咨询热线】400-812-3664(24小时服务,人工客服8:00-22:00)
2F

3F

4F

B1

上海浦东陆家嘴滨江凯旋门售楼处电话:4008123664(预约看房热线)
【陆家嘴滨江凯旋门官方售楼处咨询热线】400-812-3664(24小时服务,人工客服8:00-22:00)
B2
ProjectInformation
项目信息
项目名称:上海新鸿基滨江凯旋门
项目地址:上海,陆家嘴
业主:新鸿基集团
设计面积:2000㎡
硬装与软装:SWSGroup
03
样板间实景图片:





上海浦东陆家嘴滨江凯旋门售楼处电话:4008123664(预约看房热线)
【陆家嘴滨江凯旋门官方售楼处咨询热线】400-812-3664(24小时服务,人工客服8:00-22:00)






上海浦东陆家嘴滨江凯旋门售楼处电话:4008123664(预约看房热线)
【陆家嘴滨江凯旋门官方售楼处咨询热线】400-812-3664(24小时服务,人工客服8:00-22:00)







上海浦东陆家嘴滨江凯旋门售楼处电话:4008123664(预约看房热线)
【陆家嘴滨江凯旋门官方售楼处咨询热线】400-812-3664(24小时服务,人工客服8:00-22:00)






上海浦东陆家嘴滨江凯旋门售楼处电话:4008123664(预约看房热线)
【陆家嘴滨江凯旋门官方售楼处咨询热线】400-812-3664(24小时服务,人工客服8:00-22:00)




海派奢华的独特呈现,空间与故事感的交织汇注,在东方雅奢的格调下,彰显品位与尊贵。
TheuniquepresentationofShanghai-styleluxury,theinterweavingofspaceandstory,highlightsthetasteanddignityunderthestyleoforientaleleganceandluxury.


上海浦东陆家嘴滨江凯旋门售楼处电话:4008123664(预约看房热线)
【陆家嘴滨江凯旋门官方售楼处咨询热线】400-812-3664(24小时服务,人工客服8:00-22:00)

上海浦东陆家嘴滨江凯旋门售楼处电话:4008123664(预约看房热线)
【陆家嘴滨江凯旋门官方售楼处咨询热线】400-812-3664(24小时服务,人工客服8:00-22:00)

上海浦东陆家嘴滨江凯旋门售楼处电话:4008123664(预约看房热线)
【陆家嘴滨江凯旋门官方售楼处咨询热线】400-812-3664(24小时服务,人工客服8:00-22:00)
04
小区介绍
小陆家嘴核心东泰路
滨江凯旋门
小区介绍
浦东高端小区
上海浦东陆家嘴滨江凯旋门售楼处电话:4008123664(预约看房热线)
【陆家嘴滨江凯旋门官方售楼处咨询热线】400-812-3664(24小时服务,人工客服8:00-22:00)
一线江景外滩+陆家嘴CBD
亚洲十大豪宅之一
滨江别墅奢华小区
小陆家嘴铂金地段的生活
①地理位置
品质楼盘
铂金地段
滨江凯旋门位于陆家嘴核心地段,配套设施一流,繁华商业琳琅满目,包括IFCMall、老佛爷百货、正大广场、时代广场等。
优质医疗、教育配套更是遍布周边
滨江凯旋门距离东方明珠约2.1公里,和江面几乎0距离。项目的楼栋以扇形排布,将临江优势放大,不仅大部分的楼栋都能有一线江景的视野,部分单位还能眺望外滩万国建筑群。

项目背后的打造者是香港新鸿基地产,亚洲知名地产发展商之一,在业内口碑出众,香港两座城市名牌「维港门廊」国际金融中心、环球贸易广场,以及上海标志性的两大综合体——上海国金中心、上海环贸广场都出自它的手笔。
而滨江凯旋门的姊妹篇香港「凯旋门THEARCH」,也是亚洲乃至世界真正旗舰级豪宅。
上海浦东陆家嘴滨江凯旋门售楼处电话:4008123664(预约看房热线)
【陆家嘴滨江凯旋门官方售楼处咨询热线】400-812-3664(24小时服务,人工客服8:00-22:00)
②周边配套
品质楼盘
极致商业配套名校环伺
项目毗邻陆家嘴金融城,如果在陆家嘴上班,只需5-10分钟车程。周边拥有大量的商业配套,包括上海环球金融中心商场(世纪大道店)、陆家嘴中心L+MALL、新大陆广场、正大广场、1088广场、上海第一八佰伴、新梅联合广场、上海国金中心商场等大型商业。
坐拥5条过江隧道,4条地铁,与2号线陆家嘴站直线距离约为800米,与2号线东昌路站直线距离约900米,与9号线商城路站直线距离约1000米,出行非常便利。
周边有陆家嘴中心绿地、东昌滨江绿地、滨江公园等城市绿化,上海市东方医院与项目直线距离约为800米。
上海浦东陆家嘴滨江凯旋门售楼处电话:4008123664(预约看房热线)
【陆家嘴滨江凯旋门官方售楼处咨询热线】400-812-3664(24小时服务,人工客服8:00-22:00)
项目临近洋泾-菊园实验学校,作为九年一贯制学校,无论是口碑和教育资源在浦东都属于前列,其前身为著名教育家黄炎培先生任校董的黄浦二中心百年名校。周边还有伊顿双语幼儿园、明珠小学等优质学校资源。
③小区介绍
上海浦东陆家嘴滨江凯旋门售楼处电话:4008123664(预约看房热线)
【陆家嘴滨江凯旋门官方售楼处咨询热线】400-812-3664(24小时服务,人工客服8:00-22:00)
小区总户数680多户,总建筑面积约16万平方米,分三期开发,2012年出售的是一期,2020年出售的是二期。2022年在建的是三期。
滨江凯旋门自带约8000平会所“新荟所”,由曾主理纽约四季酒店的国际知名大师ChanduChhada主理设计,包含日光泳池、奢华SPA、江景宴会厅、儿童游乐场、综合健身房等星级配套。
上海浦东陆家嘴滨江凯旋门售楼处电话:4008123664(预约看房热线)
【陆家嘴滨江凯旋门官方售楼处咨询热线】400-812-3664(24小时服务,人工客服8:00-22:00)独辟近8000平米的奢华领地打造一座水晶宫版的豪华专属会所,分为地上两层和底下二层。地上一层设有美容美发,健身房等地上二层主营餐厅和咖啡吧。地下一层以独特的下沉式设计,利用玻璃幕墙,打造水族馆的视觉享受。还设有游泳池,与地上运动区干湿分离。
④户型介绍
点击查看户型图
↑↑↑详细户型图及平面图↑↑↑
预约看房参观样板房
上海浦东陆家嘴滨江凯旋门售楼处电话:4008123664(预约看房热线)
【陆家嘴滨江凯旋门官方售楼处咨询热线】400-812-3664(24小时服务,人工客服8:00-22:00)
▸陆家嘴滨江凯旋门售楼处地址:上海市浦东新区浦明路688弄(看房请提前预约)
▸开放时间:每日9:00-19:30(含节假日)
▸VIPLINE400_812_3664|官方唯一咨询热线
【温馨提示】本项目唯一官方联系方式,看房请提前预约!现场销售接待!谨防中介虚假信息!
声明:本文由入驻焦点开放平台的作者撰写,除焦点官方账号外,观点仅代表作者本人,不代表焦点立场。


