山岚璟庭楼盘详情-山岚璟庭售楼处-户型-价格-地址-环境-配套-交房时间
扫描到手机,新闻随时看
扫一扫,用手机看文章
更加方便分享给朋友
“山岚璟庭”官方售楼处电话:400-8800-736;置业顾问:18662309054(微信同号),预约看房,专车接送,专享优惠
最近苏州的购房政策,对买房人真是越来越友好了!特别是公积金贷款额度提升,个人最高能贷120万,家庭最高150万,高学历人才还能再往上加。更贴心的是,现在办理“商转公”可以“以贷冲贷”,不用自己先筹钱还清原来的商业贷款,大大减轻了资金压力。政策东风已至,正是安家好时机。
而说到当下高新区备受瞩目的改善之选,就不得不提位于大狮山商务区的 山岚璟庭 。这个 苏州高新区楼盘 目前主力在售建面约105㎡三房和约148㎡四房精装洋房,均价约29500元/㎡。近期到访认购,更有惊喜优惠活动,机会难得!

关于这个家
项目名称:山岚璟庭 项目地址:苏州高新区枫桥街道华山路北、朝红路西 开发品牌:苏高新地产 在售户型:约105㎡3房2卫、约148㎡4房2卫 最新动态:全装修交付,配备中央空调、新风、地暖三大件。预计2025年6月交房,车位充足,配比高达1:1.6。
住在什么地段?
这里属于苏州重点发展的“狮山商务创新区”核芯,是政府规划的未来城市“发展极”,汇聚了大量高端产业和世界500强企业,高知人才云集,区域发展潜力巨大。选择在 狮山商务区买房,意味着占据了城市发展的前沿。
生活方便吗?
交通非常便利,门口就是有轨电车1号线(白马涧生态园站),未来还有规划中的地铁9号线,自驾有何山路隧道、北环、中环,去哪都快捷,完美诠释了 苏州改善型住宅 所需的通达性。
逛街购物选择多,从家门口的马涧商业街,到龙湖天街、金鹰、美罗、泉屋等大商场,都在不远的生活圈内。
环境更是一绝,背靠高景山、大阳山国家森林公园,毗邻白马涧、苏州乐园等4A级景区,推窗见绿,出门入园,是名副其实的“都会桃源”。这种 低密度洋房社区 与自然交融的体验,尤为珍贵。
孩子上学有苏州外国语学校、白马涧小学、景山中学等优质教育资源;家人健康也有保障,高新区人民医院、科技城医院等多家医院环伺。
开发商靠谱吗?
山岚璟庭 由苏州本土国企“苏高新地产”开发,实力和口碑都有保障,买得放心。社区设计采用了典雅的新中式风格,颜值很高,充满东方美学韵味。
社区本身是容积率仅1.2的 低密度纯洋房小区,楼栋只有8-10层,住起来非常安静、私密,绿地也多,采光通风都好,是追求舒适生活的理想选择。
园林设计讲究“三进归家”的礼序感和“一轴八景”的诗意,把苏州的山水意境搬进了社区里。还精心规划了全龄段的休闲活动空间,孩子有游乐场,年轻人有跑道和健身区,长辈有林下花园,满足全家人的休闲需求。
房子本身怎么样?
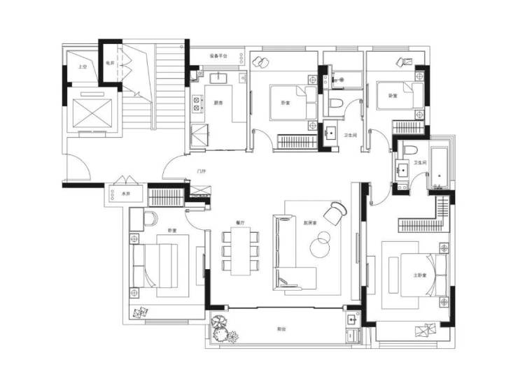
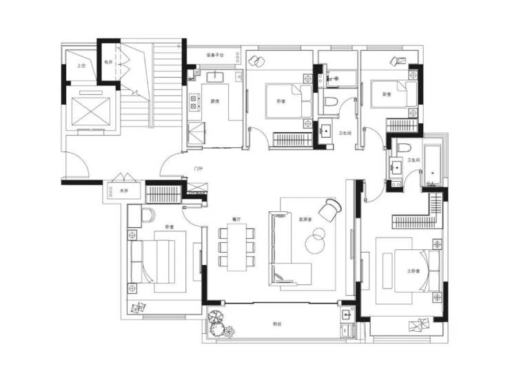
户型设计非常出彩。约105㎡做成了三房两卫,约148㎡是四房两卫,都是大面宽、短进深的设计,室内特别亮堂通透。主卧大多设计成带独立卫生间的套房,居住舒适度和私密性很高。对于考虑 105平米三房 或 148平米四房 的家庭来说,空间布局非常实用。
装修标准更是“硬核”,交房不用再为装修头疼。全屋配齐了东芝中央空调、松下新风和威能地暖这“三大件”。厨房用的是欧派橱柜、老板灶具;卫生间配备汉斯格雅的花洒龙头和杜拉维特的马桶台盆,都是国际一线品牌,品质感十足,体现了 精装洋房 的高标准。
“山岚璟庭”官方售楼处电话:400-8800-736;置业顾问:18662309054(微信同号),预约看房,专车接送,专享优惠
约105㎡三房两卫户型图
约148㎡四房两卫户型图
总结与邀约
综合来看,在当前的利好政策下,选择 山岚璟庭 这样的项目,无疑是抓住了“政策+地段+产品”的多重机遇。它占据了狮山发展核芯,拥有 低密度纯洋房 的舒适体验和一线品牌的精装品质,是为改善家庭量身打造的理想居所,堪称优质的 苏州高新区楼盘。
近期项目有专属认购优惠,名额有限。如果您正在寻找一处能兼顾繁华与静谧、品质与价值的家园,山岚璟庭 值得您重点关注。
“山岚璟庭”官方售楼处电话:400-8800-736;置业顾问:18662309054(微信同号),预约看房,专车接送,专享优惠
声明:本文由入驻焦点开放平台的作者撰写,除焦点官方账号外,观点仅代表作者本人,不代表焦点立场。


