姑苏区胥江51号地块项目规划出炉!全是小高层
扫描到手机,新闻随时看
扫一扫,用手机看文章
更加方便分享给朋友
姑苏区胥江板块,在澜庭湾之后,竟然只剩下一个纯新盘,没错就是胥江致新姑苏区胥江51号地块项目!
规划首曝!住宅全是小高层
胥江致新姑苏区胥江51号地块项目,即,苏地2023-WG-51号地块,位于姑苏区吴门桥街道劳动路南、凌波路东,是8月31日,苏州市胥江致新城市发展有限公司以底价147346万元竞得,成交楼面价13035元/平。
售楼处电话:18662309054
项目的地块用途为商住混合用地,占地面积56841平。
根据公示信息,项目总建筑面积164026.34平,计容建筑面积112902.71平。其中,住宅用地(B区),占地面积13814.4平,建筑面积95266.71平,计容建筑面积64339.58平,容积率1.4;商服用地(A区),占地面积3535.52平,建筑面积68759.63平,计容建筑面积48563.13平,容积率4.5,建筑高度150米。
根据规划,项目拟建12栋15-17F住宅和1栋31F商业大厦;
其住宅部分,拟建12栋15-17F住宅,其中2栋15F小高层、4栋16F小高层、6栋17F小高层;
15F小高层:3#、9#;
16F小高层:2#、8#、11#、12#;
17F小高层:1#、4#、5#、6#、7#、10#;
1,其住宅部分的产品均为小高层;
2,根据要求,项目住宅的外立面以铝板、石材、玻璃幕墙为主,从效果图来看,项目的风格为现代化,时尚;
3,其A区打造的是胥江片区制高点,其建筑高度150米;
4,项目的住宅为全装修交付,最低装标2000元/平;
5,项目的建筑户型面积≥120平,其140平以下户型不超过总户数的30%;这是一个纯改善的住宅社区;
6,值得注意的是其住宅的北面,即A区地块内有一座变电站;
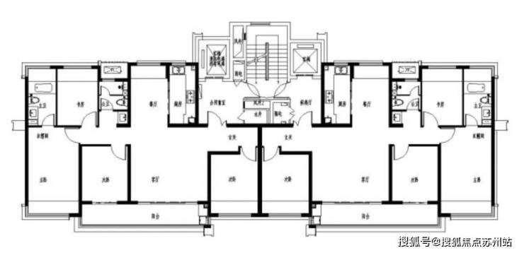
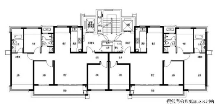
规划户型图出炉
胥江致新51号地块项目这次公示了6#、10#的户型标准层示意图。
这也是项目的部分户型图首次公示。
6#,17F小高层
2梯2户
4房2厅2卫
4房2厅2卫的房屋套型
4开间朝南
客厅是大宽厅设计
阳台双开间
主卧是套房设计,有独立的卫生间和衣帽间
多飘窗设计
餐厅也有飘窗
10#,17F小高层
4梯4户
3房2厅2卫
3房2厅2卫的房屋套型
3开间朝南
阳台双开间
主卧是套房设计,有独立的卫生间和衣帽间
界面不错!一线临河
再看一下项目的周边界面。
胥江致新姑苏区胥江51号地块项目,即,苏地2023-WG-51号地块,位于姑苏区吴门桥街道劳动路南、凌波路东,位置上来看,项目位于姑苏区胥江板块。
周边界面其实也不错,北面是竹园路,也是城市主干道,往北靠近万科璞拾胥江,已经取证入市了,东面是西环快速路,往南去是友新立交,直接连通南环,南面则是建设中的澜庭湾,西面则是胥江,部分楼幢未来可能会是江景房!
周边配套上来看,也是比较齐全的。
交通上来看,西面是西环,快速连接全城。北面是竹园路路,直接联通狮山,去往新区核心商业圈比较方便
北面有地铁5号线,距离比较近的就是双桥站,步行即可到达,往东一站是劳动路站,能够换乘2号线。往西一站可以换乘3号线。2号线往北一站也能换乘1号线。整体来看,轨交出行也是比较方便。
商业配套上来看,胥江板块内的龙湖胥江天街已开业。
目前板块的大型商业设施还是比较依靠狮山商圈,两者距离其实也比较近。此外,项目去往观前、石路等商圈也是比较方便的。
教育设施上,上海戏剧学院附属姑苏实验学校和胥江实验中学校,都距离比较近,上学很方便。
也是4W+?!
当然,对于每一个纯新盘来说,价格永远是最大的悬念。
那么,项目的价格会是多少呢?这个答案,也需要等到其取证才能揭晓。
大概率,这会是一个4W+的项目!
距离胥江致新姑苏区胥江51号地块项目最近的项目就是万科璞拾胥江,其均价在42500元/平,板块内另一个项目就是桃溪澜园,其备案均价在40800元/平,胥江已经基本都在4W了!
不过要值得注意的是,桃溪澜园和万科璞拾胥江的产品主要为洋房,胥江致新姑苏区胥江51号地块项目的产品为小高层,产品上有一定的差异!
售楼处电话:18662309054
声明:本文由入驻焦点开放平台的作者撰写,除焦点官方账号外,观点仅代表作者本人,不代表焦点立场。


