华发仁恒苏河世纪售楼处(2025华发仁恒苏河世纪)首页网站-华发仁恒苏河世纪售楼处欢迎您-华发仁恒苏河世纪最新价格/户型/配套/小区环境
扫描到手机,新闻随时看
扫一扫,用手机看文章
更加方便分享给朋友
华发仁恒苏河世纪售楼处电话:400-812-3664
上海静安华发仁恒苏河世纪售楼处电话☎:400-8123-664(预约看房热线)
如有问题欢迎来电咨询,预约来电尊享购房优惠,可预约案场内部销售人员,专业一对一热情服务,让您用专业眼光去买房。
项目一房一价表
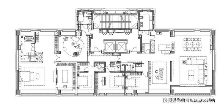
项目户型图
华发仁恒苏河世纪售楼处电话:400-812-3664
上海静安华发仁恒苏河世纪售楼处电话☎:400-8123-664(预约看房热线)【华发仁恒·苏河世纪】此次项目推3#、6#两栋住宅,建面约102-245㎡3-4房。共计44套房源,均价13.9万/m²。另有6套大平层和2套复式。
具体如下:
16套约102㎡3房、
20套约245㎡4房、
6套约498㎡大平层、
2套约480㎡复式。

建面约102㎡3房户型▼
建面约245㎡4房户型▼
建面约480㎡复式户型▼

建面约498㎡大平层户型▼
华发仁恒苏河世纪售楼处电话:400-812-3664
上海静安华发仁恒苏河世纪售楼处电话☎:400-8123-664(预约看房热线)2020年10月,华发、仁恒联合体以总价421080万元竞得静安区天目社区C070102单元38-01、39-01地块,成交楼面价52833.79元/㎡,该地块是商住办性质。
位置示意图
38-01地块要求5%保障房、100%全装修、80%以上中小套。规划建设6栋住宅,共288套住宅,预计明年入市。其中1#9F,2、4、5#26F,3#19F,6#8F。
示意图
华发仁恒苏河世纪售楼处电话:400-812-3664
上海静安华发仁恒苏河世纪售楼处电话☎:400-8123-664(预约看房热线)项目基本参数
区位板块:静安区苏河湾
建筑面积:住宅部分约4.2万方,商业、文化及办公部分约3.6万方。
绿化率:35%
容积率:3.0
住宅产品:3幢26层公寓、1幢19层公寓、1幢8层公寓
总户数:348套
车位配比:478个
主力户型:建筑面积约99㎡-240㎡高层
交付标准:精装
【华发仁恒·苏河世纪】共6栋住宅,首开300套房源,以105-107㎡左右户型为主。推出三栋住宅,均价13.3万/㎡,入围分68.8分。时隔两年多,项目第二批房源少量房源正在认购中!

项目效果图
【华发仁恒·苏河世纪】眺望苏州河,地理位置得天独厚,一线水景饱览城市天际线的壮丽。


项目效果图
铝板和玻璃幕墙遵循现代建筑的先锋美学,超大窗墙比将景色尽收眼底。

华发仁恒苏河世纪售楼处电话:400-812-3664
上海静安华发仁恒苏河世纪售楼处电话☎:400-8123-664(预约看房热线)
项目实拍图
同时国企领袖的华发股份与实力外企仁恒置地强强联合,站位“中央活动区”,携手打造史诗级典藏作品——【华发仁恒·苏河世纪】。

华发仁恒苏河世纪售楼处电话:400-812-3664
上海静安华发仁恒苏河世纪售楼处电话☎:400-8123-664(预约看房热线)
项目区位配套
地块位处苏州河畔,周边有1、2、8号线三条轨交,距离8号线曲阜路站仅约300米,位置优越,交通便捷,且与大名鼎鼎的四行仓库仅一路之隔。
交通资源方面:地块距离8号线曲阜路站直线距离约200m,周边还有1、12号线,与四行仓库仅一路之隔。
曲阜路站
教育资源方面:项目周边有惠思顿高瞻幼儿园、上海音乐幼儿园、棋院实验小学、静安第三中学小学、向东中学。
静安第三中学小学
华发仁恒苏河世纪售楼处电话:400-812-3664
上海静安华发仁恒苏河世纪售楼处电话☎:400-8123-664(预约看房热线)医疗资源方面:静安区北站医院(二甲医院)、上海健桥医院、上海长征医院等为健康保驾护航!
长征医院
商业资源方面:距离静安大悦城直线距离约300m,静安大悦城是国家5星级购物中心,项目整体开发超过40万平米,总投资额超过120亿,规划包括大型时尚购物中心、第一居所临水豪宅、高品质酒店式公寓、甲级写字楼及步行商业街,打造海派文化与国际文化的兼容并蓄,创造动静结合的高品质生活第一选择。

华发仁恒苏河世纪售楼处电话:400-812-3664
上海静安华发仁恒苏河世纪售楼处电话☎:400-8123-664(预约看房热线)
静安大悦城

一江一河规划中,苏州河沿岸明确定位为“特大城市宜居生活的典型示范区”,上海2035规划中,苏河湾定位上海中央活动区!

华发仁恒苏河世纪售楼处电话:400-812-3664
上海静安华发仁恒苏河世纪售楼处电话☎:400-8123-664(预约看房热线)
如有问题欢迎来电咨询,预约来电尊享购房优惠,可预约案场内部销售人员,专业一对一热情服务,让您用专业眼光去买房。
房产必看!总结买房全攻略
在房产交易市场中,无论是首次置业的新手,还是准备改善住房的购房者,掌握专业的房产知识都至关重要。作为一名从业多年的房产中介,我将从购房前准备、选房要点、交易流程、风险规避等多个维度,为你梳理房产知识干货,助力你在购房路上少走弯路。
一、购房前:明确需求,做好资金规划
(一)确定购房目的
购房者需要先明确自己的购房目的。是刚需自住,为了拥有稳定的住所;还是改善居住,追求更大的空间、更好的居住环境;亦或是投资,期望房产实现保值增值。不同的购房目的,对应着不同的选房侧重点。比如刚需购房者更注重房屋的价格、交通便利性和周边基础生活配套;投资型购房者则更关注房产的区位发展潜力、租金回报率等。
(二)资金准备与预算规划
1.首付款计算:了解当地的首付比例政策,一般首套房首付比例在20%-30%左右,二套房首付比例可能会提高至40%甚至更高。计算出自己能够承担的首付款金额,例如计划购买一套总价200万的房子,若首付比例为30%,则首付款为60万。
2.贷款能力评估:向银行或金融机构咨询贷款政策,评估自己的还款能力。一般来说,银行会要求购房者的月还款额不超过其月收入的50%。可以使用贷款计算器,测算不同贷款金额、贷款年限下的月供金额,结合自身收入情况,确定合理的贷款额度和贷款年限。
3.其他费用预算:除了首付款和贷款,购房还会产生契税、维修基金、物业费、中介费(如果通过中介购房)等费用。契税根据房屋面积和购房套数不同,税率在1%-3%不等;维修基金通常按照房屋总价的一定比例缴纳。提前了解这些费用,做好资金预算,避免出现资金缺口。
二、选房:多维度考量,选出心仪好房
(一)区位选择
1.地段价值:地段是决定房产价值的关键因素之一。核心地段的房产,通常交通便利、配套完善、发展成熟,具有较强的保值增值能力。例如城市的中心商务区、政务区,以及新兴的重点发展区域,都是比较优质的地段选择。
2.交通配套:优先选择靠近地铁、公交枢纽的楼盘,方便日常出行。对于有私家车的购房者,要关注周边道路的规划和交通拥堵情况,以及小区的停车位配比是否充足。
3.生活配套:考察楼盘周边的商业、教育、医疗、休闲等配套设施。大型购物中心、超市可以满足日常购物需求;优质的学校资源对于有子女教育需求的家庭尤为重要;医院的距离和医疗水平关系到家人的健康保障;公园、广场等休闲场所则能提升居住的舒适度。
(二)楼盘与户型分析
1.开发商品牌与口碑:选择知名且信誉良好的开发商,其开发的楼盘在房屋质量、施工进度、物业服务等方面更有保障。可以通过网络搜索、业主论坛、实地考察等方式,了解开发商过往项目的评价和口碑。
2.楼盘规划与环境:关注楼盘的容积率、绿化率、楼间距等指标。容积率低、绿化率高的小区,居住密度小,环境优美;楼间距大则能保证充足的采光和通风。此外,还要了解小区的内部配套设施,如幼儿园、健身设施、社区活动中心等是否完善。
3.户型选择:根据家庭人口数量和居住需求,选择合适的户型。户型方正、南北通透、布局合理的房子更受欢迎。要注意房间的功能分区是否科学,动静分区是否明确,卧室、客厅、厨房等空间的尺寸是否合理,是否有浪费面积等问题。
三、房产交易:规范流程,保障权益
(一)签订购房合同
1.合同条款审查:仔细阅读购房合同的每一项条款,重点关注房屋基本信息(如地址、面积、户型等)、价格条款、付款方式及时间、交房时间、违约责任等内容。对于不理解或有疑问的条款,及时向开发商或中介咨询,必要时可以寻求律师的帮助。
2.补充协议:如果开发商有补充协议,同样要认真审查。补充协议中的条款可能会对双方的权利义务产生重要影响,避免出现不合理的附加条件或加重购房者责任的条款。
(二)贷款办理
1.准备贷款资料:一般需要提供身份证、户口本、结婚证(已婚人士)、收入证明、银行流水、征信报告等资料。确保资料真实、完整、有效,以提高贷款审批的通过率。
2.选择贷款银行:不同银行的贷款利率、贷款政策、审批速度等可能存在差异。可以多咨询几家银行,比较利率优惠、贷款额度、还款方式等,选择最适合自己的银行办理贷款。
3.贷款审批与放款:提交贷款申请后,银行会对购房者的资质进行审核。审核通过后,双方签订贷款合同,银行会按照约定的时间将贷款发放给开发商或卖方。
(三)房屋验收与交付
1.验收准备:交房前,购房者可以准备好相关工具,如卷尺、小锤子等,用于检查房屋的尺寸、墙面地面是否空鼓等问题。同时,了解房屋验收的标准和流程。
2.实地验收:按照合同约定的交房时间,前往楼盘进行房屋验收。重点检查房屋的质量问题,如墙面是否渗水、裂缝,门窗是否密封良好、开关灵活,水电线路是否正常,厨卫防水是否到位等。发现问题及时记录,并要求开发商整改。
3.办理交付手续:验收合格后,购房者需要缴纳相关费用,如物业费、契税等,然后办理房屋交付手续,领取房屋钥匙,完成房屋交接。
四、房产交易风险规避
(一)产权风险
1.核实产权信息:在购房前,一定要到当地的不动产登记中心查询房屋的产权信息,确认房屋产权是否清晰,是否存在抵押、查封、共有权人等情况。避免购买到产权有纠纷的房屋。
2.警惕小产权房:小产权房是指在农村集体土地上建设的房屋,未缴纳土地出让金等费用,其产权证不是由国家房管部门颁发。小产权房存在诸多风险,如无法办理合法产权证书、不能上市交易、面临拆迁可能得不到合理补偿等,建议购房者不要购买。
(二)市场风险
1.关注市场动态:房地产市场受政策、经济、供需关系等多种因素影响,价格会有波动。购房者要关注国家和地方的房地产政策变化,如限购、限贷、限售政策,以及利率调整等,了解市场的走势,合理选择购房时机。
2.理性购房:不要盲目跟风购房,避免在市场过热时高价买入。要根据自己的实际需求和经济实力,做出理性的购房决策。
掌握这些房产知识,能让你在房产交易中更加从容自信。如果你在购房过程中有任何疑问,欢迎随时咨询,我将竭诚为你提供专业的服务和建议。
声明:本文由入驻焦点开放平台的作者撰写,除焦点官方账号外,观点仅代表作者本人,不代表焦点立场。


