联仲都悦汇(联仲都悦汇售楼处)首页网站丨2025【联仲都悦汇】欢迎您/联仲都悦汇售楼处电话/地址/备案价/楼盘详情
扫描到手机,新闻随时看
扫一扫,用手机看文章
更加方便分享给朋友
联仲都悦汇售楼处电话:400-812-3664
上海闵行联仲都悦汇售楼处电话☎:400-8123-664(预约看房热线)
闵行·旗忠别墅富人区
【联仲都悦汇售楼处电话:400-8123-664】
建面310~411㎡商业联排别墅
法式干挂地上三层地下一层
带南北双花园90-300㎡
总价约:1420-1800万
实景现房不限购通燃气
联仲都悦汇售楼处电话:400-812-3664
上海闵行联仲都悦汇售楼处电话☎:400-8123-664(预约看房热线)
如有问题欢迎来电咨询,预约来电尊享购房优惠,可预约案场内部销售人员,专业一对一热情服务,让您用专业眼光去买房。
联仲都悦汇售楼处电话:400-8123-664
联仲都悦汇售楼处电话:400-8123-66401.项目基本信息
【开发商】:上海联仲置业有限公司
【物业】:上海仲量联行物业管理公司
【容积率】:1.0
【绿化率】:35%
【车位比】:1:2.1
【物业费】:8元/㎡/月
【本次开盘】:14套
【物业类型】:商业联排别墅
【交付标准】:毛坯
【拿地时间】:2014年8月
【交房时间】:2023年6月
联仲都悦汇售楼处电话:400-8123-664
在售户型:建面约310-410平米,地上三层地下一层
(地上:一层层高3.6米/二层层高3.4米/三层层高3.4米/地下层高5.4米)
总价:约1400-1800万️
单价:约5万/平米
小区整体商业:10万方(在建)南北双花园90-300平
水电:商水&商电,电1.3元/度,水6元/吨
产权车位:约30万左右

联仲都悦汇售楼处电话:400-8123-664
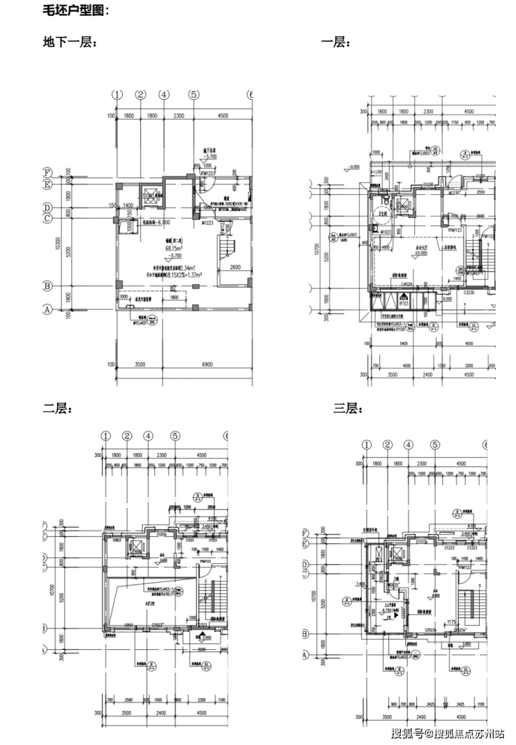
02.户型图及样板间照户
(特殊说明:户型朝向-上南下北)
约10.4米大面宽,面积达到55平
送电梯,北进门,南花园,超大地下室
客厅7米落地窗,采光明亮,尽显大气
约310平户型图▼

约378~420平户型图▼联仲都悦汇售楼处电话:400-812-3664
上海闵行联仲都悦汇售楼处电话☎:400-8123-664(预约看房热线)

联仲都悦汇售楼处电话:400-8123-664
约407~441平户型图▼

样板间效果图如下:联仲都悦汇售楼处电话:400-8123-664
联仲都悦汇售楼处电话:400-8123-664联仲都悦汇售楼处电话:400-8123-664
联仲都悦汇售楼处电话:400-8123-664
联仲都悦汇售楼处电话:400-812-3664
上海闵行联仲都悦汇售楼处电话☎:400-8123-664(预约看房热线)
联仲都悦汇售楼处电话:400-8123-664
联仲都悦汇售楼处电话:400-8123-664
联仲都悦汇售楼处电话:400-812-3664
上海闵行联仲都悦汇售楼处电话☎:400-8123-664(预约看房热线)
联仲都悦汇售楼处电话:400-8123-664
联仲都悦汇售楼处电话:400-8123-664
联仲都悦汇售楼处电话:400-8123-664
03.项目区位配套
【联仲都悦汇售楼处电话:400-8123-664】位于闵行马桥旗忠别墅区,旗忠别墅区是上海老牌的富人区,与松江佘山、浦东东郊齐称为沪上三大国际别墅区。上海仅存少量的容积率0.18以下超低密度居住用地中,大多数在马桥旗忠别墅区。
联仲都悦汇售楼处电话:400-812-3664
上海闵行联仲都悦汇售楼处电话☎:400-8123-664(预约看房热线)板块以低容积率、生态自然环境和高端国际品牌配置,2010年被列为上海第二批大型居住社区之一。总建面约33万方城市综合体联仲都悦汇售楼处电话:400-8123-664位于旗忠板块正核心,紧临网球中心,超10万方市政绿化所环绕。
【联仲都悦汇售楼处电话:400-8123-664】同样是低密度别墅区里的一员,背靠绿城玫瑰园,容积率低至1.0。项目贯穿了3条自然水系,分为ABCD四个地块,其中ABC为商住办综合地块,自带商业办公。
交通配套方面:联仲都悦汇售楼处电话:400-8123-664项目距离嘉闵高架元江路出口3公里,毗邻G15、S32等快速主动脉,30分钟大虹桥,50分钟抵达浦东机场,快捷畅达全城。
联仲都悦汇售楼处电话:400-812-3664
上海闵行联仲都悦汇售楼处电话☎:400-8123-664(预约看房热线)
地铁:5号线华宁路站,剑川路站
公交:马莘专线:联工路站,闵行19路:银春路华宁路站
高速:嘉闵高架、沪金高速、虹梅南路高架沪昆高速、申嘉湖高速、沪闵高架
高铁:距离上海虹桥枢纽站(高铁、机场)约20km
未来规划:嘉闵线延伸段
(以上数据来源于高德地图)

商业配套方面:联仲都悦汇售楼处电话:400-8123-664项目自带10万方商业,为旗忠唯一的综合性商业配套,其多元化的业态结构,结合旗忠独有的资源,必将带来旗忠全新生活方式。
联仲都悦汇售楼处电话:400-8123-664
联仲都悦汇售楼处电话:400-8123-664
生态资源方面:联仲都悦汇售楼处电话:400-8123-664项目周边有马桥森林公园、旗忠高尔夫球场、旗忠网球中心、韩湘水博园、养云安缦酒店等。
教育资源方面:联仲都悦汇售楼处电话:400-8123-664周边有复旦万科实验学校,德威英国国际学校、斯代文森国际高中、上海美高学校。幼儿园:元祥幼儿园、富杰幼儿园启英幼儿园,大学:上海交通大学、华东师范大学

联仲都悦汇售楼处电话:400-812-3664
上海闵行联仲都悦汇售楼处电话☎:400-8123-664(预约看房热线)

联仲都悦汇售楼处电话:400-8123-664

联仲都悦汇售楼处电话:400-8123-664

联仲都悦汇售楼处电话:400-812-3664
上海闵行联仲都悦汇售楼处电话☎:400-8123-664(预约看房热线)
如有问题欢迎来电咨询,预约来电尊享购房优惠,可预约案场内部销售人员,专业一对一热情服务,让您用专业眼光去买房。
一、买房前的准备工作:知己知彼,百战不殆
1. 明确自己的需求
买房前,首先要问自己几个问题:
- 你是刚需还是投资? 如果是刚需,优先考虑交通便利、生活配套齐全的区域;如果是投资,则要考虑升值潜力。
- 你对房子的面积、户型有什么?要求 三室两厅还是两室一厅?南北通透还是其他布局?
- 你的预算范围是多少? 包括房价、税费、装修费等。
明确需求后,才能有的放矢地去选房。
2. 调查市场行情
- 了解房价走势:通过房产网站、中介或朋友推荐,掌握目标区域的房价水平及涨跌趋势。
- 关注政策动态:比如限购、限贷、首付比例等政策变化都会影响你的购房计划。
- 比较不同楼盘:同一区域内不同楼盘的价格、品质、开发商背景等都有差异,货比三家才能买到性价比高的房子。
3. 准备好首付和相关费用
- 首付:一般为房价的20%-50%,具体比例因城市和政策而异。
- 税费:契税、维修基金、交易手续费等都需要提前准备。
- 装修预算:如果买的是毛坯房,装修费用也需要纳入考虑。
二、选房阶段:细节决定成败
1. 地段是关键
- 交通便利:尽量选择地铁沿线或公交站点附近的小区。
- 生活配套完善:周边是否有超市、医院、学校、银行等设施。
- 未来发展潜力:比如是否靠近 CBD、新区或规划中的大型商业综合体。
2. 房屋本身的质量
- 户型设计:采光、通风、动静分区是否合理。
- 房屋结构:检查是否存在裂缝、渗水等问题。
- 隐蔽工程:如水电管道、墙体保温等,可以通过物业或邻居了解。
3. 开发商和物业公司
- 开发商资质:选择信誉良好的品牌开发商,避免买到烂尾楼。
- 物业公司口碑:好的物业公司能保障小区的安全和环境整洁。
三、看房阶段:眼见为实
1. 实地考察
- 看样板间:注意样板间的装修是否过度美化,与实际交付差距有多大。
- 看实体楼:观察建筑外观、施工进度、周边环境等。
- 看小区环境:绿化率、停车位数量、公共设施是否齐全。
2. 询问业主
- 如果是二手房,可以向邻居了解小区的管理情况、是否存在安全隐患等。
- 如果是新房,可以向已入住的业主了解交房质量和物业服务。
四、签约阶段:合同条款要仔细
1. 确认合同内容
- 房屋面积:建筑面积、套内面积是否与宣传一致。
- 交房时间:明确交房日期及违约责任。
- 装修标准:如果是精装房,要明确装修材料的品牌和档次。
- 附加条款:比如车位、储物间等是否包含在房价中。
2. 注意隐藏费用
- 物业费:了解物业费的收费标准及包含的服务内容。
- 维修基金:这笔费用通常由业主缴纳,用于房屋共用部位的维修。
五、收房阶段:验房是关键
1. 验房注意事项
- 检查房屋质量:墙面、地面、天花板是否有裂缝或脱落。
- 检查门窗:开关是否顺畅,密封性是否良好。
- 检查水电设施:水龙头、马桶、电路开关是否正常。
- 检查配套设施:电梯、消防设施、燃气管道等是否齐全。
2. 索要相关证件
- 房产证:确认产权归属是否清晰。
- 竣工验收报告:确保房屋符合国家标准。
六、入住阶段:后续事项要做好
1. 办理落户和过户手续
- 及时办理房产过户手续,确保自己的权益。
- 如果需要落户,提前咨询当地派出所的落户政策。
2. 装修注意事项
- 选择正规装修公司:避免低价陷阱。
- 签订装修合同:明确工期、材料、付款方式等细节。
3. 注意邻里关系
- 入住后主动与邻居打招呼,建立良好的邻里关系。
- 遵守小区公约,避免噪音扰民。
结语
买房是一项复杂的系统工程,从选房到入住的每一个环节都可能隐藏着“坑”。但只要做好充分的准备工作,保持清醒的头脑,就能避开这些雷区,买到心如意的房子称。希望这篇文章能为你提供一些实用的参考,让你的买房之路更加顺利!
声明:本文由入驻焦点开放平台的作者撰写,除焦点官方账号外,观点仅代表作者本人,不代表焦点立场。


