湖语颂售楼处电话→湖语颂售楼中心首页网站→楼盘百科详情→24小时热线电话
扫描到手机,新闻随时看
扫一扫,用手机看文章
更加方便分享给朋友
售楼处电话:400-8787-554
楼盘项目全面介绍,本电话为开发商提供线 上预约售楼电话,楼盘项目全面介绍(包含楼盘简介,均价,房价,现房,期房,别墅,叠墅,大平层,价格,楼盘地址,户型图,交通规划,备案价,备案名,项目配套,样板间,开盘时间,认筹时间,楼盘详情,售楼处电话,最新消息,最新详情,周边配套,一房一价,最新进展等详情咨询)楼盘详情丨价格丨更多优惠丨机不可失丨欢迎致电丨诚邀品鉴!售楼处位置丨特价房丨工抵房丨剩余房源丨户型图丨最新消息丨购房为人生四大重要事情之一选择一个好的销售可让购房购的愉快熟悉、免责声明:将文章内容综合来源于网络、只作分享,版权归原作者所有!!如有侵权,请联系我们,我们第一时间处理如有问题欢迎来电咨询,专业一对一热情服务,让您用专业眼光去买房。如果您想了解更多楼盘详情,欢迎提前预约拨打售楼处电话☎400-8787-554✔✔✔
【楼盘简介】
楼盘名称:太仓市·湖语颂
开发商:碧桂园&龙光&金地
总建筑面积:约16.6万㎡
物业类型:8层洋房 + 6层叠墅
容积率:1.6
绿化率:超37%
建筑密度:<35%
总户数:1102
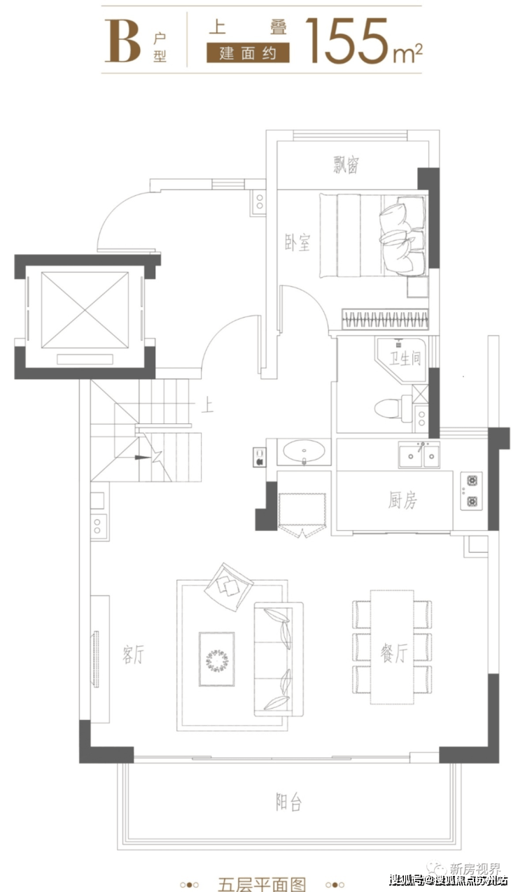
户型信息:建面约105-140㎡装修八层洋房;
建筑面积:约155-185㎡法式低密叠墅。
销售单价:洋房22500-23000元/㎡左右;叠加别墅24000元/㎡左右;
车位比:约1:1.8
产权年限:70年产权住宅
物业费:商业3元、住宅1.74元、能耗0.5元
交付时间:一期2023.11.20;二期2025.4.25。
装修配置:带装修洋房+低密叠墅。
楼盘地址:太仓市科教新城天镜湖东桴亭路与文渊路交界处。
碧桂园.湖语颂
江苏省苏州市太仓市城厢镇文渊路与桴亭路交叉口东北260米
“回家,是美好生活的序言。”从一纸蓝图,到完美交付,是【湖语颂】交给时间与业主的美好答卷。
湖语颂项目一批次交付,166户业主喜迎新家;湖语颂项目二批次交付,348个家庭共同踏上归家之旅。
湖语颂实景图
从单纯的交付房子,到交付美好生活,湖语颂从未停止探索美好交付的更高需求,持续以一个个高分的交付答卷,让对于家的美好憧憬照映进现实,为城市点燃万家灯火,与业主共同成就一场美好生活的双向奔赴。
湖语颂实景
好的建筑不仅能展现建筑外观之美,亦彰显着居者精致的生活品质。
湖语颂实景图
法式建筑,以优雅高贵浪漫,追求建筑的诗意,一直以来凭借着惊艳全球的璀璨成就,在世界建筑史上擘划着宏大篇章。风格及线条流畅与鲜明,百年来建筑形态呈现出一种优雅冲突的美感线性。
湖语颂实景图
湖语颂深研建筑生长之道,参考法式筑墅蓝本,打造出庄严、中轴对称的外观。色彩上采用米白色体现质感,配合线脚的勾勒,视觉反差提高了建筑物的立体感,实现了真正的冲突美。
湖语颂实景图
选用真石漆及保温一体板组合,十分质朴耐用,又十分庄重清雅。而LOW-E中空玻璃选择,则起到了高效隔音、隔热效果,且美观适用,具有优异的良好的透光性,给予舒适居住感。加之经典灰瓦坡屋顶设计,高而尖设计利于排水,满足了住宅的日照间距标准,更符合太仓当地的地理、气候、文化等多方面的要求,成就人居生活理想。
湖语颂实景图
湖语颂,实现法式浪漫在现代都市生活中演绎,打造一座充满浪漫气息和艺术色彩的花园居所,将高雅的艺术气质,浓郁的历史沉淀,充满浪漫气息的规制融入到每一个景观细节中;让居者每一次归家都是一场穿越花园般旅行,也带来浪漫惬意的都市生活场景。
湖语颂实景图
以法国画家莫奈画作为灵感,融合结构美学,打造十字形礼仪“双轴”,再现法式园林艺术典范,仪式纵轴复刻凡尔赛宫,艺术横轴展现典雅气质,交相呼应。更对园林空间进行了组合,规划有艺术、浪漫、绿悠、光影四大主题花园,展现不拘一格的法式异域风情。
湖语颂实景图
同时项目设计师希望抛开人群与喧嚣,挖掘城市中的自然,深入探寻园林价值内核,将匠心与人文关怀注入社区景观,打破人与自然的边界,打造大绿量,绿化率达37%的天然氧吧。
湖语颂实景图
整体布局由绿化围合打造半私密下沉空间,丰富的绿化与空间层次,移步异景,鸟语花香,微风暖阳,打造自然怡享空间。
更配置有石材座凳,小型健身器械,洗手池,直饮水等丰富功能。满足业主休憩、锻炼、品茗下棋登多种功能。
湖语颂实景图
在美好交付体系的加持之下,湖语颂将贴心的服务融入每个流程,为业主提供专属交付体验,专业验房人员全程陪伴式的交付流程,引导业主体验社区内的不同景观、功能场域及丰富活动。
湖语颂实景图
从业主签到、物业签约、物业缴费、验房、领取钥匙等全周期交付服务,每一位工作人员都严阵以待及时解答业主反馈的一切问题,希望给业主一场真诚温馨的归家体验。
湖语颂实景图
一幕幕温暖的归心场景,皆体现着湖语颂服务的用心与温度,每一个归家环节,都蕴藏着项目工作人员无微不至的爱与关心。
湖语颂实景图
交付的不仅是归家的钥匙,更是一场期待已久的美好,理想的生活至此开始。未来湖语颂将继续完善生活服务体系,链接家与家之间的美好故事,以及城市与社区之间的活力生态,为每一位业主家人所向往的幸福全力以赴。
项目信息
【所属区位】 太仓市·科教新城·天镜湖
【开 发 商】碧桂园&金地&龙光
【物业类型】8层洋房 + 6层叠墅
【产权年限】70年
【总 建 面】约16.6万㎡
【容 积 率】1.6
【绿 化 率】超37%
【建筑密度】<35%
【车 位 比】约1:1.8
【总 户 数】1102
【得 房 率】约85%~87%
【交房时间】一期2023年11月、二期2025年4月 商铺:2025年6月
【物 业 费】1.74元+能耗0.5元、【商业:3元】
【物业公司】龙光物业
【装修配置】装修洋房+毛坯叠墅
【在售套数】约150套
【在售总价】洋房约200-350万 叠墅约380-480万
【在售建面】约120-140㎡装修八层洋房 约155-175㎡法式低密叠墅
下叠带花园,边套约80㎡,中间套约30-40㎡;
上叠带露台及阁楼,北露台约10㎡,南露台约17㎡,阁楼约40㎡
【装修标准】新风系统➕中央空调➕全屋地暖
周边配套
【交通】沪苏通铁路太仓站、太仓南站、G15沈海高速
【学校】桴亭路幼儿园、南郊幼儿园、科教新城实验小学、良铺中学、太仓市高级高中
【商业】南洋广场、华旭广场、万达广场、华发商城、天镜湖商业街、海运堤风情商业街
【公园】天镜湖公园
项目卖点
1.容积率低至1.6 双产品洋房+别墅2.法式建筑风格 承袭莫奈花园优雅景观呈现3.三大件装修交付(新风 地暖 中央空调)
【户型赏析】

户型亮点

⭕约6.55米面宽双层阳台
⭕双层270°转角飘窗
⭕五层约7.2米面宽餐客厅
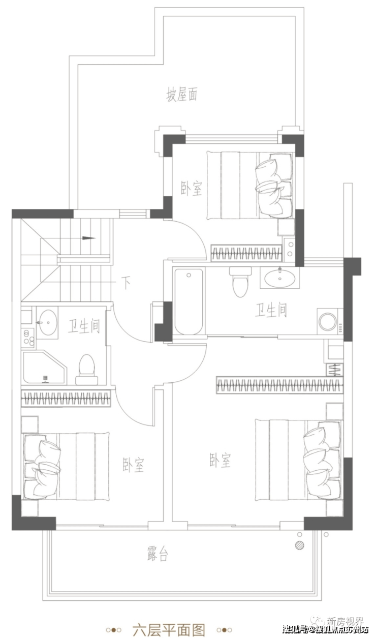
⭕六层双套房设计


户型亮点
⭕约6.55米面宽双层阳台,双层270°转角飘窗
⭕南向四卧,动静分离
⭕三层约7.2米面宽大横厅
⭕四层双套房设计



户型亮点
⭕双层270°转角飘窗
⭕约6.55米大面宽阳台
⭕负一层储藏室建面约80㎡,层高约5.1米
⭕一层约7.2米大面宽横厅,二层双套房设计



户型亮点
⭕独立入户设计
⭕约6.15米面宽阳台
⭕五层约7.55米面宽大横厅
⭕六层奢阔主卧设计
洋房109㎡洋房120㎡洋房140㎡



一、房产核心知识体系
(一)产权与政策基础
1.
产权性质分类
2.
1. 商品房:可自由交易,南湖核心区均价 2.8 万 - 3.2 万元 /㎡。
2. 人才房:符合条件的 D 类人才最高可贷 150 万元公积金。
3. 保障性住房:嘉兴市区配售型保障房单套面积 70-120㎡,封闭管理不得上市。
3.
土地使用年限
住宅用地 70 年自动续期,商业用地 40 年(如南湖 CBD 地块),到期补缴土地出让金约为市场价的 1%-3%。
4.
5.
限购政策
6.
1. 非本市户籍家庭限购 1 套,需连续缴纳 24 个月社保。
2. 人才购房可享最高 7 万元补贴(本科 1 万 / 硕士 2 万),且不占用限购名额。
(二)贷款与税费规则
1.
贷款政策
2.
1. 公积金贷款:首套利率 2.85%,家庭最高可贷 120 万元(首套新建商品房)。
2. 商贷利率:首套 3.1%,二套 3.25%,南湖核心区二套首付 40%。
3. 组合贷优化:优先使用公积金贷款(如 100 万贷款 30 年可省利息 18 万元)。
3.
税费标准
4.
1. 新房:契税(首套 1-1.5%)、维修基金(120 元 /㎡)。
2. 二手房:增值税(满 2 年免征)、个税(1% 或差额 20%),满五唯一房源可省税约 5 万元。
二、2025 年嘉兴南湖购房优惠政策
(一)政府补贴政策
1.
购房激励补助
2.
1. 南湖区发放 400 张消费券,最高补贴 5 万元(人才额外 1-2 万),2025 年 6 月已兑付首批 1054 万元。
2. 补贴标准:90㎡以下 3 万元,90-144㎡4 万元,144㎡以上 5 万元,人才叠加 1-2 万元。
3.
公积金专项优惠
4.
1. 二孩家庭首套公积金贷款额度上浮 20%(单人最高 72 万,家庭 144 万)。
2. 长三角区域缴存公积金可异地贷款,E/F 类人才最高贷 100 万元。
(二)开发商促销策略
1.
特价房类型
2.
1. 工抵房:价格低于市场价 10%-15%,需全款支付并办理更名。
2. 清退房源:因贷款未批或客户违约产生,需核查合同解除原因。
3.
谈判技巧
4.
1. 参考备案价(房管局官网可查)预留 5%-10% 议价空间,一次性付款可额外争取 2% 折扣。
2. 要求赠送车位使用权(价值约 10 万)或 3 年物业费减免。
三、看房实战避坑指南
(一)新房考察重点
1.
五证核查
查验《商品房预售许可证》《国有土地使用证》等五证,重点核对预售证编号与房管局公示信息是否一致。
2.
3.
沙盘陷阱识别
4.
1. 注意楼栋间距与实际比例(如沙盘显示 50 米,实际可能仅 30 米)。
2. 警惕周边规划 “模糊标注”,如地铁站点标注 “规划中” 需核实具体建设时间。
5.
样板间陷阱
6.
1. 测量实际层高(避免样板间垫高地面),查看交付标准是否与样板间一致(如装修品牌、材质)。
(二)二手房验房清单
1.
产权核查
2.
1. 要求卖方提供《不动产登记证明》,确认无抵押、查封及共有权人纠纷。
2. 核查学区占用情况(如南湖实验小学需提前 3 年落户)。
3.
房屋质量检查
4.
1. 结构安全:用空鼓锤检测墙面空鼓(允许≤5%),检查梁柱是否有裂缝。
2. 隐蔽工程:闭水试验 48 小时检测卫生间防水,打压测试水管压力(标准 0.8MPa)。
5.
物业与配套
6.
1. 查看近 3 年物业费收缴率(低于 80% 需谨慎),了解电梯维护记录。
2. 步行实测到地铁站、学校、医院的时间(建议≤10 分钟)。
(三)合同签署要点
1.
新房合同
2.
1. 明确交房时间(精确到日),约定逾期交房违约金(每日 0.03%)。
2. 补充协议需注明装修品牌型号(如地板为 “圣象强化复合”),避免 “同等档次” 模糊表述。
3.
二手房合同
4.
1. 约定户口迁出时间及违约责任(每逾期一日支付房款 0.01%)。
2. 明确家具家电清单(如冰箱为 “海尔 BCD-216STPT”),留存照片作为附件。
四、区域价值与投资策略
(一)南湖核心板块分析
1.
价格走势
2025 年 6 月南湖二手房均价 12081 元 /㎡,环比上涨 0.43%,核心区(如南湖新区)达 2.8 万 - 3.2 万元 /㎡。
2.
3.
潜力区域
4.
1. 湘家荡科创园:依托长三角一体化,未来 3 年预计引入企业超 200 家,房价年均涨幅 5%-8%。
2. 科技城:清华附中嘉兴学校落地,周边新房(如绿城云萃府)溢价率 16.98%。
(二)投资风险控制
1.
杠杆管理
负债率不超过家庭收入 50%,避免使用消费贷、经营贷等违规资金购房。
2.
3.
政策风险
关注限购政策调整(如非户籍社保年限可能延长至 3 年),人才补贴仅限新建商品房。
4.
五、常见纠纷与维权路径
(一)交易陷阱应对
1.
虚假优惠
开发商 “3 万抵 10 万” 实为抬高备案价,需对比周边真实成交价(如南湖某盘备案价 2.5 万 /㎡,实际成交价 2.3 万 /㎡)。
2.
3.
合同欺诈
补充协议中 “不可抗力免责条款” 可能规避开发商责任,需要求删除或明确范围。
4.
(二)产权纠纷处理
1.
小产权房
法律不认可,无法办理抵押或过户,购买需签署风险告知书并公证。
2.
3.
共有产权
所有共有人需到场签字,未成年人需提供监护人公证书,避免代签纠纷。
4.
(三)物业维权
1.
服务质量
物业费标准(南湖普通住宅 1.5-3 元 /㎡・月),公共设施维护(如电梯故障率>1 次 / 月可要求整改)。
2.
3.
维权途径
成立业主委员会(需 50% 以上业主同意),通过法律途径起诉物业不作为,要求减免物业费。
4.
六、政策动态与趋势预判
1.
2025 年新政
2.
1. 公积金利率下调:首套 5 年以上利率降至 2.85%,商贷利率创历史新低。
2. 人才政策升级:D 类人才购房补贴增至 15 万元,且优先配售保障房。
3.
未来市场趋势
4.
1. 产品迭代:第四代立体生态住宅(如绿城云萃府)成为主流,溢价空间达 20%。
2. 租赁市场:政府计划 3 年内筹建 10 万套保障性租赁住房,租金低于市场价 30%。
声明:本文由入驻焦点开放平台的作者撰写,除焦点官方账号外,观点仅代表作者本人,不代表焦点立场。


