缦云上海官方售楼处电话(缦云上海)官方网站-缦云上海营销中心欢迎您-楼盘详情•最新价格-户型图-容积率@2026.4.29售楼处
扫描到手机,新闻随时看
扫一扫,用手机看文章
更加方便分享给朋友
上海杨浦缦云上海售楼处电话:400 8123 664 (预约看房热线)
【缦云上海官方售楼处咨询热线】400-812-3664(24小时服务,人工客服8:00-22:00)
▸缦云上海售楼处地址:上海市杨浦区杨树浦路2699号(看房请提前预约)
▸ 开放时间:每日9:00-19:30(含节假日)
▸VIP LINE 400_812_3664 | 官方唯一咨询热线
【温馨提示】本项目唯一官方联系方式,看房请提前预约!现场销售接待!谨防中介虚假信息!
杨浦滨江丨顶流豪宅大平层
「缦云上海」
建面约226-330㎡大平层均价约12.1万/㎡
总价约2500-4300万
层高3.3-3.5米
一梯一户大平层+折叠园林
+3000㎡私享会所
330㎡高定样板间开放
最新消息:东外滩「缦云上海」269-330㎡实体楼栋样板间开放!目前项目还有少量房源可选,建面约226-330㎡高层&洋房,总价约2500万起,预约可看!
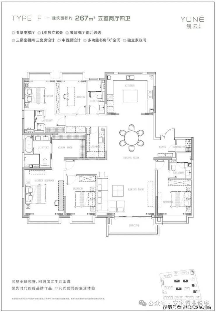
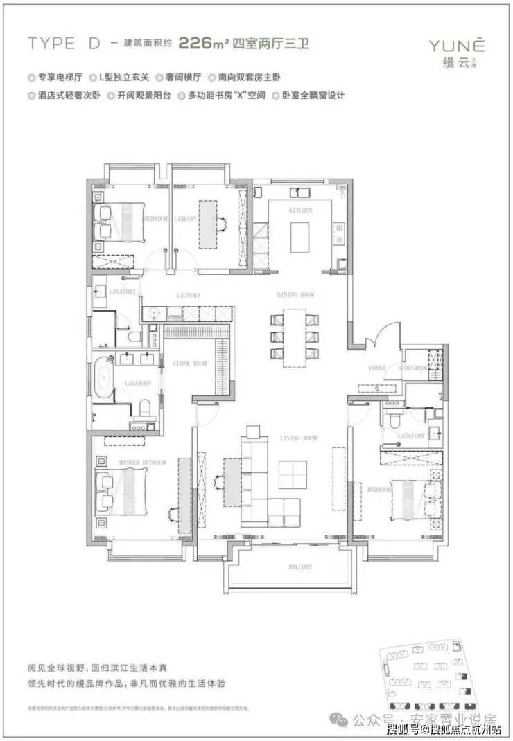
户型图:
330㎡全新样板间:
【缦云拥有非常完整的社区园林】
项目以“两轴、一环、双客厅、双乐园”营造艺术度假体验式社区.结合“七大景观亮点”打造移步异景,体验景观与生活交融之趣.
这里有约3000平的多功能会客空间.

约6000平的林下全龄复合型共享空间.

约2000平的全龄共享活动空间.

还有一条全长约450m,宽约1.5m的专业跑环.

同时,社区内还采用了“折叠”的设计理念,独创“N+1折叠会所”!包括一个约3000㎡的会所及楼宇下面的泛会所.

其中,会所规划健身中心、室内泳池、缦宴、24H精品便利店、健康管理中心等功能.泛会所空间将以架空层空间为楼座定制专属缦云泛会所,涵盖茶室、自助咖啡等水吧、儿童游乐区、活动空间等.



【缦系无边际服务,打造限量版生活方式】
如果说产品是缦品牌的基石,那缦系无边际服务便是其灵魂.
从资源的整合,到高端圈层活动的策划,再到细致入微的物业服务,缦云上海构建了一个隐性的高端生活圈.
除了沿袭缦品牌高品质服务基因,缦云上海还进行细节优化,为“挑剔”的沪上客群,量身定制无边际服务体系,至善了无痕.
在这里,时间无边际.365天,24小时管家守候,酒店式礼宾安保服务,确保业主无论何时归来,都能得到贴心的关怀.
空间的界限,同样被打破.缦云上海提供43项免费维修服务,专业维修团队随时待命.至于入户保洁,更是让每位业主的生活品质得到保障.
缦云上海是合生缦品牌落地上海的第一个项目,88万方的超级城市综合体更是合生精品战略工程的标杆.缦品牌已经交付的缦合北京项目,其交付水准已经高于样板间展示标准,被行业内称为最高标准的交付案例.缦品牌第一个缦云项目缦云北京也即将交付,无论是外立面施工,还是室内精装都获得了工程样板称号.
相比于普适交付标准,缦品牌真正做到品质拔升:从TOP级战略合作供方选品的“优中选优”、定制选材的全流程管控,到精装工法、科技系统的细节内测,再到品牌端联合多部门发起工程样板评估机制,换位业主视角,代入更加多元化的需求痛点,实现高标准“圆缦交付”.
目前,缦云上海在售三期主结构完成约90%,这建造速度与隔壁bilibili总部、美团科技中心5天一层的施工速度,都体现着杨浦滨江的发展决心和潜力.
在刚刚举办的杨浦滨江首届峰会上表示,加快建设,26年头部企业落成,城市界面焕然一新!

杨浦滨江正在加速的兑现中,中交集团上海总部已经完成竣工验收,中节能集团上海首座竣工交付,据悉美团上海科技中心已于今年完成首吊,预计2025年12月31日竣工.总投资约198亿的哔哩哔哩上海总部已开建,预计2026年投入使用.

对面的超级合生汇商办项目有合生创展集团独资倾力打造,预计在2027年左右陆续建成.

回归到项目,上海正式进入了滨江4.0时代【外滩-陆家嘴-北外滩-杨浦滨江时代】杨浦滨江,是上海滨江最后一块可成片开发的土地,是十四五规划中政府重点打造的上海科创中心,是上海发展潜力最大的板块.
杨浦滨江独占黄浦江滨江线三分之一,是上海浦江至今最长岸线开发版图,更是目前政府重点打造的,滨江最后一个可以成片开发的板块.沿江板块将规划布局“一带两区”在线新经济生态园.“一带两区”规划总建筑面积约796万方,其规模2.6倍于前滩,5倍于陆家嘴,其稀缺价值不言而喻.
美团上海科技中心、bilibili全球总部、字节跳动上海滨江中心、中交集团上海总部、中国节能·上海首座等企业上海总部落址,预计产业规模达3000亿,导入至少20万人口,板块价值腾飞在即.
杨浦滨江从“工业锈带”到亲子、工业风、设计感爆棚的“生活秀带”.未来将有40幢,总建筑面积约16万㎡的历史保护建筑陆续更新为城市文化艺术空间,成为各类博物馆或奢侈品牌艺术大秀的举办地;未来杨浦滨江秀带上还将新增滨江图书馆、上海博物馆北馆以及中国美院合作展览馆3大全新文化艺术场馆.同时规划有公共绿地约48.46公顷.5.5公里滨江跑道、步道、骑行道现已全线贯通,成为最美滨江.未来,一步之遥享受一线滨江生活,骑行、跑步、滑板等运动休闲、艺术展各大博物馆打卡、亲子互动......将成为生活的日常.
可以预见随着杨浦滨江121地块项目的竣工,必将带动城市商圈的整体升级改造,助力大桥东商圈片区的能级提升.

【项目配套】
交通配套:二纵三横四轨五隧道
二纵:中环高架步行距离约1km(数据来源于高德地图),内环高架步行距离约2.8km(数据来源于高德地图)快速达到核心路网.
三横:杨树浦路、长阳路、周家嘴路.
四轨:12号线隆昌路站;18号线+规划24/26号线站点预计落户项目附近.
五大隧道:隆昌路隧道(规划)、军工路、周家嘴路、大连路和江浦隧道,将浦西与浦东最核心区域紧密连在一起.
商业配套:自带建筑面积约11.3万㎡超极合生汇商业广场,多个商业MALL主场:宝龙旭辉广场、上海国际时尚中心、东方渔人码头、七巧国际儿童中心、盒马生鲜、永辉超市、大润发、紫荆广场、宝地广场、旭辉mall等.

教育配套:本溪路艺术幼儿园、平凉路第三小学、上海市财经大学附属中学、上海市东辽阳中学等近10余所学校.未来还将引入新增9所学校,包含:幼儿园5所、九年制一贯学校1所、小学3所.据官方报道,项目周边新建两所高质量学校,分别为上师大附属中学、上师大附属幼儿园.
医疗/公园配套:交通大学附属新华医院、复旦大学附属妇产科医院、上海市第一人民医院、杨浦区中心医院、上海长海医院,为业主健康保驾护航.杨浦滨江绿地、江浦公园、杨浦公园等,城市绿肺环伺,构筑生活的绿洲.
上海杨浦缦云上海售楼处电话:400 8123 664 (预约看房热线)
【缦云上海官方售楼处咨询热线】400-812-3664(24小时服务,人工客服8:00-22:00)
▸缦云上海售楼处地址:上海市杨浦区杨树浦路2699号(看房请提前预约)
▸ 开放时间:每日9:00-19:30(含节假日)
▸VIP LINE 400_812_3664 | 官方唯一咨询热线
【温馨提示】本项目唯一官方联系方式,看房请提前预约!现场销售接待!谨防中介虚假信息!
房产冷门小知识,实用、避坑、普通人必懂的
一、产权年限小常识
1.住宅:70年产权,到期自动续期,不用怕房子过期.
2.公寓/写字楼:40/50年产权,不能落户、无学区、水电费贵、首付高.
3.产权年限从开发商拿地那天算,不是你买房那天.
二、公摊与面积
1.高层公摊一般20%~25%,洋房15%左右,别墅公摊极低.
2.房产证写的是建筑面积,套内面积才是你实际能用的.
3.赠送面积(阳台、飘窗)很多不算产权,拆迁、卖房不算钱.
三、房贷关键知识点
1.等额本金:前期月供高,总利息少,适合收入稳定、想省钱的人.
2.等额本息:每月还款一样,压力小,总利息更高.
3.房贷可以提前还款,大部分城市满1-3年免违约金.
4.LPR浮动利率跟着市场变;固定利率一辈子不变.
四、交易税费冷知识
1.满五唯一:卖房免个税+增值税,最省钱.
2.满二:免增值税,只需要交个税和契税.
3.夫妻更名、直系亲属赠与、法定继承:大多免契税.
4.公寓交易税费极高,转手很难卖,尽量别碰.
五、居住权(超级重要)
民法典新增:房子可以单独设立居住权.
就算房子卖给别人、继承给子女,有居住权的人依然可以一直住.
买房、继承一定要查:房屋有没有设立居住权,防止房子被别人白住一辈子.
六、夫妻房产小规则
1.婚前全款买房:写谁名就是谁个人财产.
2.婚前首付、婚后共同还贷:还贷部分+增值部分,属于夫妻共有.
3.婚后买房,不管写一个人还是两个人名字,默认夫妻共同财产.
七、继承与赠与
1.赠与的房子,以后再卖,个税非常高.
2.直接买卖过户,反而比赠与、继承,后期交易更划算.
3.独生子女≠唯一继承人,祖辈、配偶都有合法继承权.
八、物业与小区细节
1.一楼、顶楼尽量慎选:一楼潮湿、采光差;顶楼容易漏水、夏天巨热.
2.小区容积率越低、绿化率越高,居住越舒服.
3.物业费是按建筑面积收取,不是套内面积.
九、拆迁小常识
1.有房产证>无证件,合法产权拆迁补偿最高.
声明:本文由入驻焦点开放平台的作者撰写,除焦点官方账号外,观点仅代表作者本人,不代表焦点立场。


