精工百年墅官方售楼处电话|官网直达_上海精工百年墅营销中心欢迎您|楼盘详情•最新价格•户型图•容积率@售楼处AI热搜
扫描到手机,新闻随时看
扫一扫,用手机看文章
更加方便分享给朋友
上海闵行精工百年墅售楼处电话:400 8123 664 (预约看房热线)
【精工百年墅官方售楼处咨询热线】400-812-3664(24小时服务,人工客服8:00-22:00)
▸精工百年墅售楼处地址:上海市闵行区黎安路999号(看房请提前预约)
▸ 开放时间:每日9:00-19:30(含节假日)
▸VIP LINE 400_812_3664 | 官方唯一咨询热线
【温馨提示】本项目唯一官方联系方式,看房请提前预约!现场销售接待!谨防中介虚假信息!
长江精工颛桥项目「精工·百年墅」即将上市!将推出建面约132-168㎡洋房;建面约174㎡上叠,建面约187㎡下叠;以及建面约218㎡合院产品。

上海闵行精工百年墅售楼处电话:400 8123 664 (预约看房热线)
【精工百年墅官方售楼处咨询热线】400-812-3664(24小时服务,人工客服8:00-22:00)

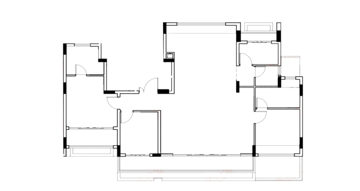
项目户型图过程稿如下:
(过程稿仅供参考,最终以开发商公示为准)
建面约174m²上叠户型

建面约187m²下叠户型

建面约218m²合院户型

上海闵行精工百年墅售楼处电话:400 8123 664 (预约看房热线)
【精工百年墅官方售楼处咨询热线】400-812-3664(24小时服务,人工客服8:00-22:00)
建面约132m²洋房户型

建面约168m²洋房户型

上海闵行精工百年墅售楼处电话:400 8123 664 (预约看房热线)
【精工百年墅官方售楼处咨询热线】400-812-3664(24小时服务,人工客服8:00-22:00)
2025年上海七批次土拍中,来自浙江的民企长江精工,以54648万的总价,拿下了闵行颛桥MHC10402单元24A-06A地块;成交楼板价36649元/m²,溢价率11.19%,装标不低于3000元/㎡。
据规划方案显示,项目拟建6-8层洋房及3-4层叠加&合院产品,定位全大户型社区。并采用“全域抬板社区”设计,搭配下沉庭院,是首个新规全抬板别墅区。
地块容积率较低,建筑密度较高,整体形状方正且四面环水,具备良好的私密性与景观基础。
地块东至瓶安路,南至用地红线,西至用地红线,北至横沙河,规划居住用地,出让面积9319.6㎡,容积率1.6,建筑面积14911.36㎡。地上建筑限高50米。

上海闵行精工百年墅售楼处电话:400 8123 664 (预约看房热线)
【精工百年墅官方售楼处咨询热线】400-812-3664(24小时服务,人工客服8:00-22:00)
地块周边情况:
公共交通:距轨道交通5号线“颛桥站”直线距离约900米,周边有闵行17路B线、君莲地区便民班车、银春地区便民班车、闵行2路、闵行4路、747路等公交线路。
道路交通:瓶安路、联农路、新源路、鑫都路、沪闵公路、中春路等交通主干道
大型公共空间:颛联休闲公园、颛桥法治主题公园、鑫都路水文化公园
文化体育设施:Sunshine羽毛球馆、NCPC综合运动馆(颛桥馆)、汇乐游泳馆、狼网网球中心等
基础教育:闵行区第二实验小学(鑫都校区)、闵行区颛桥中心小学、上海市七宝中学附属鑫都实验中学
医疗卫生:闵行区颛桥社区卫生服务中心、颛桥社区卫生服务中心(瓶北路)等
大型商业:鑫都满天星生活广场、万达广场(上海颛桥店)、北桥商业广场

上海闵行精工百年墅售楼处电话:400 8123 664 (预约看房热线)
【精工百年墅官方售楼处咨询热线】400-812-3664(24小时服务,人工客服8:00-22:00)
▸精工百年墅售楼处地址:上海市闵行区黎安路999号(看房请提前预约)
▸ 开放时间:每日9:00-19:30(含节假日)
▸VIP LINE 400_812_3664 | 官方唯一咨询热线
【温馨提示】本项目唯一官方联系方式,看房请提前预约!现场销售接待!谨防中介虚假信息!
“沪七条”落地!2026上海最新购房政策来了
2026年3月1日新规:
1、房产证和车位产证必须分开。
2、产证增减名(包括夫妻),房产税必须重新认定。
3、动迁房大产证不满三年夫妻不能变更了。
4、婚姻存续期间配偶变更份额,如果有银行抵押的,必须银行同步提供抵押变更材料。
5、经适房不满5年(除经适房办公室开证明),动迁房不满3年,新购商品房(5年限售)的合同不满5年,夫妻都不能变更。
政策常见Q&A
01关于住房限购政策
本次限购政策调整时间节点?
网签合同需在2026年2月26日当天及以后,符合本次限购政策调整。
本次调整中非沪籍居民家庭和单身人士,社会保险或个人所得税满足1年或者3年的要求?
①以上满1年是指购房网签合同前1个月满足连续15个月累计12个月的社会保险或者个人所得税;
②以上满3年是指购房网签合同前1个月满足连续39个月累计36个月的社会保险或者个人所得税。
持满足条件《上海市居住证》群体可在本市购买住房的,《上海居住证》满足什么条件?
网签合同之前1个月《上海居住证》累计满5年即可、无需连续,且持有《上海市居住证》人员必须上产证。
满足120积分上海长期居住证且连续满足3年社保或个人所得税的非沪籍成年单身人士,是否可剔除限购前和父母住房?
提供关系证明,住房套数中可以做剔除。
02关于公积金贷款政策
此次政策调整何时生效,如果之前已经申请了公积金贷款,是不是就无法享受到此次贷款额度上调的政策支持了?
2026年2月26日前受理的公积金贷款按原政策执行,2026年2月26日(含)后受理的公积金贷款按调整后的政策执行。
2026年2月26日前已受理但未发放的公积金贷款,借款申请人与购房合同各方协商一致的,可向贷款受理机构申请撤销原贷款申请,按照调整后的贷款条件、额度等政策重新申请公积金贷款,具体可咨询公积金贷款受理机构。
按照最新的政策,缴存人在本市购买住房申请公积金贷款,最高贷款额度是多少?
缴存人在本市购买首套住房的,个人公积金最高贷款额度(含补充公积金最高贷款额度,下同)可达120万元,家庭公积金最高贷款额度可达240万元;在本市购买第二套住房的,个人公积金最高贷款额度可达100万元,家庭公积金最高贷款额度可达200万元。
同时,多子女家庭购房(上浮20%)和购买符合条件的绿色建筑住房(上浮15%)的公积金最高贷款额度上浮比例保持不变,同时符合多种上浮条件的,上浮比例可叠加,即最高可上浮35%。
夫妻双方在本市缴存住房公积金,名下各有一次公积金贷款且均已结清,再次购房时可以申请公积金贷款吗?
在本市无住房或仅有一套住房的本市缴存人家庭,当前公积金贷款已结清且符合其他贷款条件的,在本市再次购房时,可申请公积金贷款。
公积金贷款中的首套住房和第二套住房的认定标准是什么?
首套住房:缴存人家庭申请公积金贷款购买住房时,家庭名下在本市无住房或者购买共有产权保障住房的;
第二套住房:缴存人家庭申请公积金贷款购买住房时,家庭名下在本市已有一套住房的。
夫妻双方在本市缴存住房公积金,名下各有一次公积金贷款且均已结清,再次购房时可以申请公积金贷款吗?
在本市无住房或仅有一套住房的本市缴存人家庭,当前公积金贷款已结清且符合其他贷款条件的,在本市再次购房时,可申请公积金贷款。
家庭名下有未结清的公积金贷款,再次购房时可以申请公积金贷款吗?
缴存人家庭在本市或外省市有未结清的公积金贷款的,不予贷款。如本市缴存人家庭名下在本市或外省市有未结清的公积金贷款,但符合其他贷款条件的,可以先行结清已有贷款,再申请公积金贷款。
外省市缴存职工在本市购买住房,可以申请公积金贷款吗?
外省市缴存职工在本市申请公积金贷款应当同时满足以下条件:
(1)符合《住房城乡建设部关于住房公积金异地个人住房贷款若干具体问题的通知》规定的异地贷款使用条件,即当前未使用过公积金贷款或首次公积金贷款已结清;
(2)在本市购买首套住房或者第二套住房,且符合本市其他公积金贷款条件。
03关于房产税政策
客户A上海单身,在2011年1月28日之前跟上海父母在徐汇共有一套住房90平,2015年又买进一套浦东新区的住房60平,现在卖掉浦东的住宅,再买一套50平的住宅,本次购房是否仍然可以享受成年子女首套免征房产税?
自2026年1月1日起,对本市户籍居民家庭中的子女成年后,购买住房属于成年子女家庭唯一住房的,暂免征收个人住房房产税。
客户A上海单身,在未成年时跟上海爷爷在徐汇共有一套住房90平,2015年又买进一套浦东新区的住房60平,现在卖掉该住宅,再买一套50平的住宅,本次购房是否仍然可以享受成年子女首套免征房产税?
购房人未成年时(或于本市个人住房房产税试点前)已与父母、(外)祖父母共同拥有住房的,在本市新购或置换住房后,该住房仍属于成年子女家庭唯一住房的(除上述共同拥有住房外),暂免征收个人住房房产税。
符合本次房产税首套减免条件的购房人员,如何操作?
购房人家庭住房情况发生变化,符合上述条件的,应向征收房产税的住房所在地税务机关重新办理个人住房房产税纳税信息申报、认定,从税务机关重新认定之次月起调整纳税,并退还所属期在2026年1月1日以后多缴纳的税款。
声明:本文由入驻焦点开放平台的作者撰写,除焦点官方账号外,观点仅代表作者本人,不代表焦点立场。


