苏州高新大悦澜庭@大悦澜庭忒火了|大悦澜庭售楼处电话|大悦澜庭楼盘详情
扫描到手机,新闻随时看
扫一扫,用手机看文章
更加方便分享给朋友
苏州高新区大悦澜庭
售楼部热线:400-9678-224欢迎来电咨询! 可预约销售人员,专业一对一热情服务,让您用专业眼光去买房。
好的居所是一场温柔的探索,也是无数次美妙的邂逅,大悦澜庭,以迭代升级空间,寻求生活的满分答案,以未来生活场景为设计出发点,致力于为大家筑造更好的生活,承载大家的美好生活憧憬。
接待大厅
Reception Hall
微风拂过,水面荡起点点涟漪。由片片叶子组成的《涟漪》艺术装置与室内的香氛结合,仿佛以自然的香气迎接着每一位来者。
设计师攫取江南水乡的水与折扇进行二次转换,以起风后的一系列关于水、云、光、影的变化为语言来呈现空间的在地性设计。
深度洽谈区
In-Depth Negotiation Area
水波荡起,一轮弯月摇曳于水中。深度洽谈区以现代的设计语言进行诗意的表达,以放松的姿态使来访者彼此产生更密切的情感联系。
VIP洽谈室
VIP Negotiation Room
VIP空间旨在营造一个静谧的洽谈区域。设计师从微风之夜里的剪影中提取自然元素的形态来打造出细腻精致的空间。
景观楼梯
Landscape Stairs
传说每棵蒲公英的种子里都藏着一个愿望精灵。艺术楼梯以通高的书墙与虚实结合的艺术装置带来意趣无边的想象。
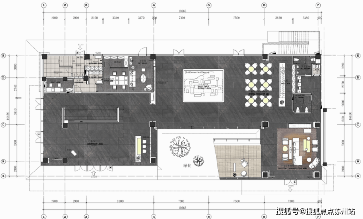
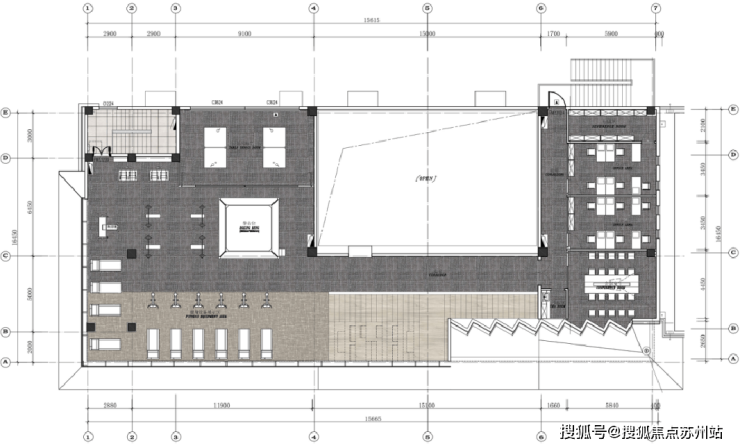
平面图


楼盘项目全面介绍,本电话为开发商提供线上售楼电话,楼盘项目全面介绍(包含楼盘简介,房价,价格,楼盘地址,户型图,交通规划,备案价,项目配套,楼盘详情,售楼处电话,最新消息,最新详情,周边配套,最新进展等详情咨询)





苏州大悦澜庭
房产知识解答:
一、现房和期房:
现房是已经建好的房子,而且可以直接领到房产证,过户入住。
二、70年产权
70年产权在我国法律规定中,“土地使用权”与“房屋产权”是两个不同的概念,土地使用权出让的较高年限是:居住用地70年,70年土地使用期满后,土地收归国有,地上建筑物仍然属于业主所有,如果再次申请土地使用权,则应该根据当时的地价水平,补缴土地出让金。
三、公摊
所谓公摊面积,是分摊的公用建筑面积的简称,它与套内建筑面积之和构成了一套商品房的建筑面积。需要分摊的共有建筑面积为整幢建筑物的建筑面积扣除整幢建筑物各套套内建筑面积之和,并扣除作为独立使用的地下室、车棚、车库,为多幢服务的警卫室、管理用房,以及人防工程等之后的建筑面积。
四、容积率
容积率,是指一个小区的地上总建筑面积与用地面积的比率。对于开发商来说,容积率决定地价成本在房屋中占的比例,而对于住户来说,容积率直接涉及到居住的舒适度。一个良好的居住小区,高层住宅容积率应不超过4,多层住宅应不超过1.5,绿地率应不低于40%。
五、得房率
得房率=(建筑面积-公摊面积)/销售面积,是买房比较重要的一个指标。计算房屋面积时,计算的是建筑面积,所以得房率太低,不实惠;太高,不方便。因为得房率越高,公共部分的面积就越少,住户也会感到压抑。一般,得房率在80%左右比较合适,公共部分既宽敞气派,分摊的面积也不会太多,比较实惠。
六、房屋使用面积
房屋使用面积是指住宅中以户(套)为单位的分户(套)门内全部可供使用的空间的水平投影面积。包括日常生活起居使用的卧室、起居室和客厅、亭子间、厨房、卫生间、室内走道、楼梯、壁橱、阳台、地下室、假层、附层(夹层)、阁楼(暗楼)等面积。住宅使用面积按住宅的内墙面水平投影线计算。内墙面装修厚度计入使用面积。
七、建筑类型
多层:高于10米、低于或等于24米的建筑物。多层房屋一般为4~8层,一般采用砖混结构,少数采用钢筋混凝土结构。
高层:高于24米的建筑。8层以上(可含8层)的建筑体,一般可分为小高层、高层和超高层。人们一般把8层至12或13层的建筑称为“小高层”。
低层:高度低于或等于10米的建筑物,一般是1~3层建筑物,如平房、别墅等。
Real estate knowledge answer:
1、 Current and future properties:
The current house is already built and can be directly obtained with a property certificate for transfer and occupancy.
2、 70 year property rights
In the legal provisions of China, the term "land use right" and "housing property right" are two different concepts. The higher term for the transfer of land use right is: 70 years for residential land. After the expiration of the 70 year land use period, the land will be nationalized, and the buildings on the ground will still belong to the owner. If the land use right is applied for again, the land transfer fee should be paid according to the current land price level.
3、 Public stall
The so-called shared area is the abbreviation of the shared public building area, which, together with the internal building area, constitutes the building area of a commercial housing. The shared building area that needs to be shared is the total building area of the entire building, minus the total building area of each suite of the entire building, and minus the building area of independ
苏州高新区大悦澜庭
售楼部热线:400-9678-224欢迎来电咨询! 可预约销售人员,专业一对一热情服务,让您用专业眼光去买房。
注:(免责声明:本宣传资料仅为宣传,内附所有资料,包括任何图片、插图、设计图、文字描述或其他资料,仅供参考或识别之用,不构成合同内容,具体内容以合同内容及政府最终审批为准。项目所涉及数据均为暂定,后期如有改动,请以各项证件及政府批文等为准,本宣传资料部分素材源于网络,最终交付标准以商品房买卖合同及政府等相关部门的批准文件为准。在法律允许的范围内,开发商保留修改本资料的权利,敬请留意。)
声明:本文由入驻焦点开放平台的作者撰写,除焦点官方账号外,观点仅代表作者本人,不代表焦点立场。


