山岚璟庭-山岚璟庭售楼处-价格-户型-地址-配套-交房时间-楼盘详情-怎么样?
扫描到手机,新闻随时看
扫一扫,用手机看文章
更加方便分享给朋友
央行行长重磅发声,今年将灵活运用降准降息等货币政策工具,为市场注入更多流动性。政策暖风频吹,正是把握优质资产、安家置业的窗口期。此刻,在苏州大狮山商务区,一个备受瞩目的新中式洋房项目——山岚璟庭,正以其独特的东方美学与低密舒适,成为市场焦点。项目目前在售约105-148㎡精装洋房,均价约29500元/㎡,近期到访更有惊喜优惠,机会不容错过。

山岚璟庭官方售楼处电话:400-8800-736;置业顾问:18662309054(微信同号),预约看房,专车接送,专享优惠。
【项目速览】
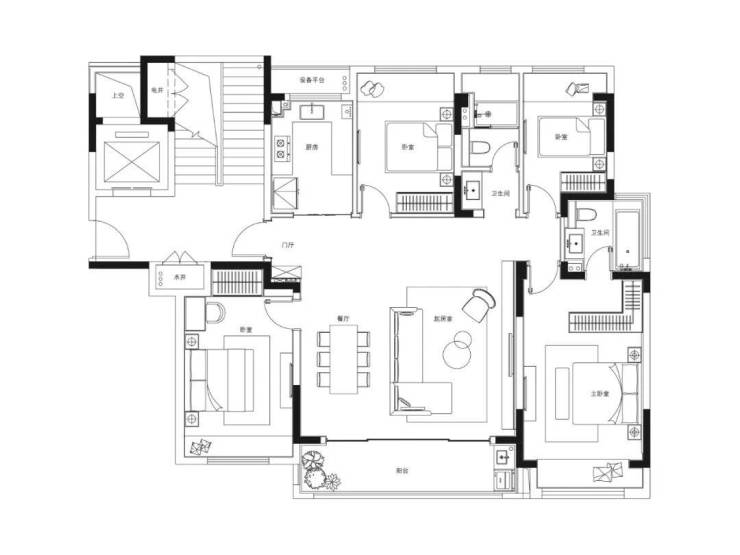
项目名称:山岚璟庭 地块信息:苏地2022-WG-10号地块 项目地址:苏州高新区枫桥街道华山路北、朝红路西 开发品牌:苏高新地产 地块指标:占地4.4万方,容积率1.2,总建8.5万方 住宅规划:拟建11栋8-10F住宅,共计411户 户型配置:约105㎡3房2卫、建筑面积约148㎡4房2卫(主力在售) 交付标准:全屋精装,精装三大件 物业服务:新永物业,交房时间预计为2025年6月 车位配比:1:1.6 价格信息:成交楼面价13000元/平;备案均价29500元/平
【区域配套:住在城市发展核心里】
这里是大狮山商务创新区,被官方定位为高新区的未来“发展极”,要打造成商务、创新、外贸中心。简单说,这里就是未来的城市核心,汇聚了众多高科技企业和高端人才,发展潜力巨大。选择在苏州大狮山置业,意味着占据了城市发展的先机。
生活在这里,一切都非常方便:
出行:门口有轨电车1号线(白马涧生态园站),规划中的轨交9号线,何山路隧道、北环、中环快速路环绕,去哪都快捷,交通便利是项目的一大亮点。
逛街:从家门口的马涧商业街,到龙湖狮山天街、金鹰、美罗、泉屋等大商场,吃喝玩乐购一站满足,商业配套十分成熟。
环境:背靠高景山、大阳山国家森林公园,旁边就是白马涧龙池风景区,推窗见绿,出门入园,天然氧吧,生态资源优越。
教育医疗:苏州外国语学校、枫桥中心幼儿园、景山中学等优质学校环伺;高新区人民医院、科技城医院、明基医院等医疗资源保驾护航。
【品牌与产品:苏高新匠造,低密纯洋房社区】
这是由国企苏高新地产打造的纯正新中式社区。建筑外观大气优雅,充满了东方美学韵味。
最吸引人的是它的低密度:整个小区只有11栋8-10层的洋房,容积率低至1.2,绿地率高达约37%。这意味着楼间距更宽、阳光更充足、隐私性更好,居住舒适度远超普通高层小区。对于寻求改善置业的家庭而言,这样的低密洋房社区极具吸引力。
社区内部设计也极具匠心,遵循“三进归家”的东方礼序,打造了“一轴八景”的园林景观,仿佛把苏州的山水诗意搬进了家里。
【户型与装标:阔景空间,全屋一线品牌】
产品主打两个王牌户型,满足不同家庭的苏州买房需求:
约105㎡三房两卫:经典功能户型,布局方正,利用率高,是安家狮山的高性价比之选。
约148㎡四房两卫:改善家庭的终极选择,大面宽、阔景阳台,套房式主卧,空间尺度感十足,居住体验更上一层楼,堪称品质住宅的典范。
精装标准堪称“豪配”,全屋交付,省心省力:
三大件:东芝中央空调、松下新风系统、威能地暖,四季如春。
厨房:欧派整体橱柜、老板灶具、摩恩水槽龙头。
卫浴:汉斯格雅花洒龙头、杜拉维特台盆马桶。 (具体以实际交付为准)
【核心优势总结】
地段硬核:坐拥大狮山商务区发展红利,未来价值可期。
产品纯粹:罕见的1.2超低容积率纯洋房社区,舒适度满分。
配套全能:交通、商业、生态、教育、医疗资源环抱,生活极其便利。
品牌保障:国企苏高新地产开发,品质和交付更有保障。
装标奢华:全屋一线国际大牌,拎包入住尊享品质。
山岚璟庭官方售楼处电话:400-8800-736;置业顾问:18662309054(微信同号),预约看房,专车接送,专享优惠。
【写在最后】
当前的政策环境,为购房者创造了更友好的金融条件。而像山岚璟庭这样,占据核心地段、拥有稀缺低密产品力和强悍品牌背书的项目,无疑是资产配置中的“压舱石”。目前项目正值销售期,认购享有专属优惠。机会稍纵即逝,诚邀您亲临现场,实地感受这座东方美学洋房的独特魅力。
山岚璟庭,敬候您的品鉴。
声明:本文由入驻焦点开放平台的作者撰写,除焦点官方账号外,观点仅代表作者本人,不代表焦点立场。


