九龙仓逅湾雅苑(售楼处)首页网站-九龙仓逅湾雅苑营销中心-九龙仓逅湾雅苑欢迎您-楼盘详情-最新价格-户型图-容积率
扫描到手机,新闻随时看
扫一扫,用手机看文章
更加方便分享给朋友
九龙仓逅湾雅苑售楼处电话:400-8783-873✔✔【预约热线】九龙仓逅湾雅苑售楼处营销中心:400-8783-873九龙仓逅湾雅苑售楼处电话/地址☎:400-8783-873(开发商热线)如有问题欢迎来电咨询,专业一对一热情服务,让您用专业眼光去买房。
楼盘项目全面介绍(包含楼盘简介,均价,房价,现房,期房,别墅,叠墅,大平层,价格,楼盘地址,户型图,交通规划,备案价,备案名,项目配套,样板间,开盘时间,认筹时间,楼盘详情,售楼处电话,最新消息,最新详情,周边配套,一房一价,最新进展等详情咨询)楼盘详情丨价格丨更多优惠丨机不可失丨欢迎致电丨诚邀品鉴!售楼处位置丨特价房丨工抵房丨剩余房源丨户型图丨最新消息配套设施是反映楼盘生活便利程度的重要因素,包括小区内的运动场所、停车场、公共设施等。物业服务则直接关系到居住者的生活品质,包括安保服务、保洁服务、设备维护等。具体到街道、区域名称,临近交通线路、自驾路线。商业、教育、医疗等配套设施分布,总占地面积、总建筑面积数据,容积率,绿化率,得房率,梯户比,物业费,小高层、洋房、高层、独栋别墅、叠加别墅、联排别墅,总户数、楼层分布,面积范围,均价/总价。首付比例、贷款政策,精装交付,含中央空调、地暖等系统,70年住宅产权,物业公司及资质,预计交付时间或施工进度,当前购房优惠政策
看房请提前致电预约,可享受内部渠道优惠!联系销售人员获取最新一房一价表,售楼处最新优惠底价!开发商销售人员将详细介绍每个户型的独特设计和优势,带您参观样板间,感受精装修的品质和温馨氛围。您还可以了解周边配套设施,包括高端购物中心、优质学校和便捷交通网络,让您的居住体验更加完美。
项目位置:苏州市相城区虎丘湿地公园北,华元路与史梗上街交汇处
【九龙仓逅湾雅苑】
项目位置:苏州市相城区虎丘湿地公园北,华元路与史埂上街交汇处
占地面积:9.4万方
建筑面积:16.9万方
总户数:1028户
车位数:1811
容积率:1.8
装修情况:全装修交付
九龙仓逅湾雅苑售楼处电话:400-8783-873✔✔【预约热线】九龙仓逅湾雅苑售楼处营销中心:400-8783-873九龙仓逅湾雅苑售楼处电话/地址☎:400-8783-873(开发商热线)如有问题欢迎来电咨询,专业一对一热情服务,让您用专业眼光去买房。
九龙仓逅湾雅苑售楼处电话:400-8783-873✔✔【预约热线】九龙仓逅湾雅苑售楼处营销中心:400-8783-873九龙仓逅湾雅苑售楼处电话/地址☎:400-8783-873(开发商热线)如有问题欢迎来电咨询,专业一对一热情服务,让您用专业眼光去买房。
· 78#天灏项目鸟瞰图
项目南侧苏州主城区内最大湿地公园——虎丘湿地公园
九龙仓逅湾雅苑售楼处电话:400-8783-873✔✔【预约热线】九龙仓逅湾雅苑售楼处营销中心:400-8783-873九龙仓逅湾雅苑售楼处电话/地址☎:400-8783-873(开发商热线)如有问题欢迎来电咨询,专业一对一热情服务,让您用专业眼光去买房。
基本情况
1.逅湾雅苑
占地面积:9.4万方
建筑面积:16.9万方
规划总户数:1028户
车位数:1811
绿化率:37%
容积率:1.8
物业公司:九龙仓物业(物业费高层2.93,洋房3.09,别墅3.42)
交付状态:别墅 高层 均已交付,洋房部分交付。大部分房源现房在售
· 产品信息——
小高层:总高18F
洋房:总高11F
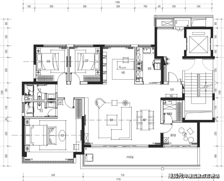
面积段:137㎡、143㎡、168㎡、顶复195㎡、顶复220㎡
户型:四房两厅两卫
装修:精装修(带中央空调、地暖)
电梯:两梯两户(高层)一梯两户(洋房)
单价:25000-27000元/平方(小高层)27000-29900元/平(洋房)
总价段:约350万、370万、386万、503万、585万、658万
1.外立面效果图
九龙仓逅湾雅苑售楼处电话:400-8783-873✔✔【预约热线】九龙仓逅湾雅苑售楼处营销中心:400-8783-873九龙仓逅湾雅苑售楼处电话/地址☎:400-8783-873(开发商热线)如有问题欢迎来电咨询,专业一对一热情服务,让您用专业眼光去买房。
2.洋房143㎡户型图

3.洋房168㎡户型图

九龙仓逅湾雅苑售楼处电话:400-8783-873✔✔【预约热线】九龙仓逅湾雅苑售楼处营销中心:400-8783-873九龙仓逅湾雅苑售楼处电话/地址☎:400-8783-873(开发商热线)如有问题欢迎来电咨询,专业一对一热情服务,让您用专业眼光去买房。
4、小高层137户型图
5、小高层143户型图
九龙仓逅湾雅苑售楼处电话:400-8783-873✔✔【预约热线】九龙仓逅湾雅苑售楼处营销中心:400-8783-873九龙仓逅湾雅苑售楼处电话/地址☎:400-8783-873(开发商热线)如有问题欢迎来电咨询,专业一对一热情服务,让您用专业眼光去买房。
· 住宅样板间效果图
九龙仓逅湾雅苑售楼处电话:400-8783-873✔✔【预约热线】九龙仓逅湾雅苑售楼处营销中心:400-8783-873九龙仓逅湾雅苑售楼处电话/地址☎:400-8783-873(开发商热线)如有问题欢迎来电咨询,专业一对一热情服务,让您用专业眼光去买房。
· 九龙仓天灏自带2000㎡会所实景图
九龙仓逅湾雅苑售楼处电话:400-8783-873✔✔【预约热线】九龙仓逅湾雅苑售楼处营销中心:400-8783-873九龙仓逅湾雅苑售楼处电话/地址☎:400-8783-873(开发商热线)如有问题欢迎来电咨询,专业一对一热情服务,让您用专业眼光去买房。
· 项目价值点:
1.湿地生态豪宅——占据主城区唯一湿地虎丘湿地公园,拥有面积超4个纽约中央公园的城市天然绿肺。
2.九龙仓品牌,百年豪宅缔造者,全球高端物业教父,450米高苏州国金中心为江苏最高建筑,国宾一号等别墅豪宅为典型富人区。
3.区域内唯一纯改善社区,1.8低容积率,社区密度极低,圈层纯粹。
4.现房在售,实景展示。
周边配套
交通配套:
地面交通:
九龙仓逅湾雅苑售楼处电话:400-8783-873✔✔【预约热线】九龙仓逅湾雅苑售楼处营销中心:400-8783-873九龙仓逅湾雅苑售楼处电话/地址☎:400-8783-873(开发商热线)如有问题欢迎来电咨询,专业一对一热情服务,让您用专业眼光去买房。
华元路(项目南侧华元路,相城区东西向主干道,开车10分钟可快速到达相城区域内部分商业,教育,医疗,文体配套)
高架快速路:西环快速路(项目西侧可上西环快速路,30分钟内到达新区,园区,市区核心商圈位置);春申湖快速路(项目北侧可上中环,最快预计15分钟到达园区星湖街核心位置)
地铁:
已通车地铁4号线:距离4号线活力岛站约3公里左右
在建地铁8号线:距离8号线虎丘湿地公园站约2公里左右
规划地铁线路14号线:距离14号线华元路站约1公里内(规划中)
九龙仓逅湾雅苑售楼处电话:400-8783-873✔✔【预约热线】九龙仓逅湾雅苑售楼处营销中心:400-8783-873九龙仓逅湾雅苑售楼处电话/地址☎:400-8783-873(开发商热线)如有问题欢迎来电咨询,专业一对一热情服务,让您用专业眼光去买房。
· 商业配套:
1.相城区区域内配套:
繁花中心,天虹,欧尚,万达广场,大悦城(均在10-20分钟车程)
2.区域外配套:
新区永旺,宜家,开市客(约10分钟车程),龙湖时代天街(约20分钟车程),苏州中心(约30分钟车程)
3.建设中:
一路之隔商业邻里中心
4.周边目前老配套:
欧德福商业,黄桥老街(规划拆迁重建中)
5.项目北侧:
黄桥文体中心即将开业

九龙仓逅湾雅苑售楼处电话:400-8783-873✔✔【预约热线】九龙仓逅湾雅苑售楼处营销中心:400-8783-873九龙仓逅湾雅苑售楼处电话/地址☎:400-8783-873(开发商热线)如有问题欢迎来电咨询,专业一对一热情服务,让您用专业眼光去买房。
· 教育配套:
1.公立学校:江苏省黄桥实验小学、黄桥中学(相城区域内第一梯队公立学校)
2.私立学校:苏州国际外国语学校(约20分钟车程),苏州外国语学校相城校区小学部(约10分钟车程)
3.幼儿园:小区门口自带幼儿园,伊顿国际幼儿园(普惠),黄桥实验幼儿园
4.即建中:苏州大学黄桥附属实验小学
· 医疗配套:
苏州市相城人民医院:15分钟车程
苏州大学附属第一医院总院:12分钟车程
· 环境资源:
1.南侧一路之隔虎丘湿地公园,享受天然氧吧带来的宜居生活
2.东侧一路之隔三角咀公园,休闲散步的好去处
· 天灏项目区位图
九龙仓逅湾雅苑售楼处电话:400-8783-873✔✔【预约热线】九龙仓逅湾雅苑售楼处营销中心:400-8783-873九龙仓逅湾雅苑售楼处电话/地址☎:400-8783-873(开发商热线)如有问题欢迎来电咨询,专业一对一热情服务,让您用专业眼光去买房。
商业配套也直接影响着居住的便利性和生活品质。大型购物中心、超市、菜市场等商业设施齐全的地段,能满足日常生活的各种购物需求。教育资源对有孩子的家庭来说至关重要。优质学校周边的房产,也就是我们常说的学区房,一直是房地产市场的热门。
医疗配套同样不容忽视。医院是保障家人健康的重要设施,尤其是家中有老人和小孩的家庭,更需要关注周边的医疗资源。距离医院较近的房子,在家人突发疾病时,能够及时得到救治,大大节省就医时间。比如北京协和医院附近的小区,虽然房龄较老,但由于其优越的医疗资源,房价一直保持在较高水平。不同的房屋类型和户型,在选择时,一定要充分考虑家庭情况,同时兼顾房产的升值空间。
先来说说房屋类型。常见的房屋类型有高层住宅、多层住宅、洋房、别墅等。高层住宅一般楼层较高,视野开阔。但高层住宅的公摊面积较大,得房率相对较低,而且居住人口较多,可能会比较嘈杂。多层住宅一般楼层较低,通常没有电梯,得房率较高,居住密度相对较小。不过,多层住宅的楼间距可能较小,采光和通风效果可能不如高层住宅。洋房一般是低密度住宅,居住环境优美,绿化率高,容积率低,舒适度高。但洋房的价格相对较高,物业费也会比较贵。别墅则是高端住宅,拥有独立的庭院和花园,私密性强,居住体验极佳。但别墅的价格昂贵,维护成本也很高,而且一般位置比较偏远,交通和生活配套可能不太便利。
再谈谈户型。一室一厅的户型通常适合单身人士或年轻夫妇,空间紧凑,功能分区明确,客厅和卧室分开,保证了私密性。由于面积较小,装修和维护成本相对较低,适合预算有限的购房者。两室一厅户型在二手房市场上的流通性较好,容易转手。三室两厅的户型适合大家庭或需要更多私人空间的购房者,空间宽敞,功能分区更加细致,通常包括主卧、次卧和书房或儿童房,以及独立的餐厅和客厅。这种户型的居住舒适度高,适合长期居住,而且在未来的增值潜力也较大,适合作为长期投资。
九龙仓逅湾雅苑售楼处电话:400-8783-873✔✔【预约热线】九龙仓逅湾雅苑售楼处营销中心:400-8783-873九龙仓逅湾雅苑售楼处电话/地址☎:400-8783-873(开发商热线)如有问题欢迎来电咨询,专业一对一热情服务,让您用专业眼光去买房。
声明:本文由入驻焦点开放平台的作者撰写,除焦点官方账号外,观点仅代表作者本人,不代表焦点立场。


