金融街融悦沁庭-金融街融悦沁庭纯洋房社区-双地铁口-华师苏实小旁-户型解析
扫描到手机,新闻随时看
扫一扫,用手机看文章
更加方便分享给朋友
最近,央行释放了明确的信号:今年将灵活运用降准降息等多种货币政策工具,为市场注入更多流动性。这对于购房者而言,无疑是一个积极的信号,意味着更友好的金融环境和置业窗口期。在这样的背景下,将目光投向那些占据核心资源、具备硬核实力的品质住区,无疑是明智之选。
而说到吴中太湖新城,一个名字正被越来越多的高阶家庭所关注——金融街融悦沁庭。作为板块内极为稀缺的纯洋房社区,它正以“实”力派的姿态,成为改善生活的理想之选。项目目前主推建面约115-152㎡的融悦系纯洋房,以其卓越的产品力和醇熟的配套,持续吸引着市场的目光。
金融街融悦沁庭官方售楼处电话:400-8800-736;置业顾问:18662309054(微信同号),预约看房,专车接送,专享优惠。
一座纯粹的洋房社区 这里是吴中太湖新城难得的纯洋房住区,清一色7-10层的建筑,容积率仅1.6,住起来非常舒坦。社区总共约609户,车位配比高达1:1.5,停车无忧。房子交付时,中央空调、新风、地暖这“三大件”和软水系统都给你配齐了,外立面用的是干挂铝板和高级的三玻两腔玻璃,好看又实用。
双地铁口,出行太方便了 家门口就是地铁4号线和在建的7号线“木里站”,距离大约150米,真正的地铁口物业。无论是去园区、新区还是其他核心区,都非常便捷。再加上友新高架、东太湖大道等主干道环绕,开车出行,畅达全城。选择在金融街融悦沁庭置业,意味着享受双地铁带来的高效通勤。
华师苏实小,就在马路对面 这是项目最硬核的配套之一。华中师范大学苏州湾实验小学与项目仅一路之隔,孩子上学安全又省心。此外,华中师范大学苏州实验中学、北美国际高级中学等优质教育资源也在周边,一站式解决孩子的教育成长问题。对于重视教育配套的改善家庭来说,这无疑是巨大的吸引力。

吃喝玩乐购,生活全配齐 住在金融街融悦沁庭,生活丰富多彩。逛街有永旺梦乐城、歌林小镇;看剧有橙天嘉禾360剧场;休闲有天鹅湖公园、太湖生态大堤;未来还有在建的金融街融悦湾中心、市立医院总院等重磅配套。可以说,从日常购物到文体娱乐,从生态休闲到健康医疗,这里都能满足。这里堪称太湖新城的全配套生活范本。
金融街+国太发展,实力双保险 房子好不好,先看谁在造。项目由“中国华尔街缔造者”金融街控股,与吴中太湖新城的开发主体“苏州国太发展”联袂打造。金融街在苏州已有两个标杆作品,国太发展则累计投资约300亿深耕这片热土。强强联合,品质和未来都有保障,为购房者提供了坚实的信心。
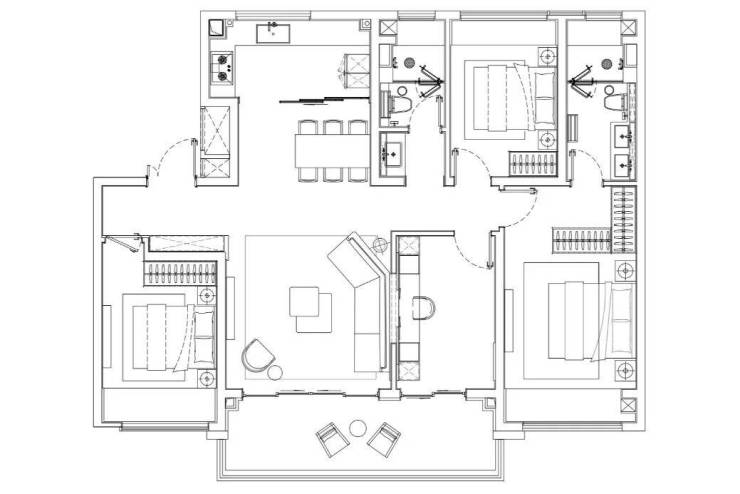
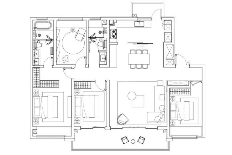
户型鉴赏:每一平米都实用 目前项目在售的户型设计非常出彩,得房率高,空间利用率好,充分体现了融悦系产品的匠心。
115㎡三房:三开间朝南,客厅面宽约5.5米,连接一个进深约2米的大阳台,主卧是带独立卫生间的套房,全屋还有飘窗赠送。
130㎡四房:做到了三个卧室朝南,客厅、餐厅、厨房、阳台连成一体,空间感非常开阔。同样是双联大阳台,并且可以灵活改造出一个多功能房间,满足改善生活的多样化需求。
152㎡四房:这是目前的改善王牌户型。四开间朝南,采光极佳。厨房连接家政阳台,还设计了中岛台,南北双阳台设计,通风和视野都是一流,主卧套房尺度阔绰,是追求品质住区生活的理想选择。
未来展望 在政策暖风频吹、太湖新城价值加速兑现的当下,像金融街融悦沁庭这样占据双地铁、名校旁、纯洋房、全配套的稀缺资产,其居住价值和资产潜力不言而喻。它不仅仅是一处房子,更是通往更舒适、更便捷、更有品质的未来生活的一张门票。
心动不如行动,亲眼所见,才能体会其真正的魅力。
金融街融悦沁庭官方售楼处电话:400-8800-736;置业顾问:18662309054(微信同号),预约看房,专车接送,专享优惠。
声明:本文由入驻焦点开放平台的作者撰写,除焦点官方账号外,观点仅代表作者本人,不代表焦点立场。


