以不足苏州市域3%的国土面积和6%的人口,创造了全市15%的GDP,目前是全国开放程度最高,同时也是苏州发展最快,实力最强劲的板块。1)生活的湾|心之向往近在举步,于时代发展前沿的月亮湾,也是城市资源的极核处…
【象屿&恒泰 】天熠东方 月亮湾畔·建面约162㎡-253㎡
独墅湖湾区国际豪宅丨以湖为疆,鼎配为序,雕琢顶奢生活范本,成就时代人物的传世栖居臻境

独墅湖科教创新区的规划,以高起点、高标准的定位,逐步成为苏州的“创新之核”和现代城市副中心。由美国优联加建筑设计事务所设计,按照中央商务区标准布局,形成“一个核心、一个东西轴线、一条自然界线、三个纵向层次”的规划理念,旨在打造国际化的科创与人才高地。
天熠东方电话:18662309054

一、项目概况
开发商:象屿&恒泰
容积率:1.6
绿地率:≥35%
产品类型:10栋6-11F纯洋房
建筑面积段:约162-186-207-253㎡迭代人居范本
装修:精装交付
物业公司:象屿物业
项目地址:位于工业园区星湖街西、创苑路、南八达街东
咨询热线:18662309054
二、品牌实力
1)象屿地产《财富》世界500强旗下 国匠精工践行者
象屿集团·厦门市属国有企业,《财富》世界500强位居第142位,是一家具有全球竞争力、以供应链为核心的综合性投资控股集团。
象屿地产是象屿集团的全资子公司,拥有31年开发历史,连续多年获评“中国房地产开发稳健十强”和“中国华东房地产品牌价值TOP10”

苏州恒泰·苏州工业园区开拓者与运营者
苏州园区直属大型国有企业,深耕园区,总资产超300 亿元,净资产超130亿,累计投资园区基础设施超 620 亿元,开发各类物业超750万方,是园区商业地产、租赁住房和产业地产载体的最大持有者和运营商之一,金鸡湖商业地标-苏州中心建造者,见证并深度参与了苏州工业园区的开发建设。

双方在苏州已成功打造天悦东方、天誉东方等标杆项目,通过资源整合与优势互补,形成"国企品质保障+区域开发经验"的协同效应,构建高端人居产品的持续创新能力。
三、象屿在苏州
1)象屿&恒泰 金鸡湖壹号作品天悦东方


2)象屿&恒泰 天系2.0跃级新著天誉东方


四、板块区位:工业园区 苏州城市名片
工业园区1994年成立,距今已有29年发展历史,中新两国政府间的重要合作项目,被誉为“中国改革开放的重要窗口”和“国际合作的成功范例”;2022年园区实现地区总产值3515.6亿,连续六年位列国家级经开区第一。国家级高新区综合排名第四。以不足苏州市域3%的国土面积和6%的人口,创造了全市15%的GDP,目前是全国开放程度最高,同时也是苏州发展最快,实力最强劲的板块。

苏州置业 优选园区
(数据来源于苏州新闻公众号)
中新合作-约101家世界五百强企业投资落地166个项目,国际合作的成功独墅湖高教区,长三角科创高地,30+中外名校云集,硕博人才占比超35%,外籍科研精英近万。聚焦生物医药、纳米科技等前沿产业,3000+高新企业集群,千亿级产值引擎。国际级配套环伺,18公里湖岸线生态绵延,产学研融贯,繁华与诗意共生,成就顶豪置业价值热土。

1)生活的湾 | 心之向往 近在举步,于时代发展前沿的月亮湾,也是城市资源的极核处,续写从金鸡湖到独墅湖不断潮前的园区故事。构成国际大都市核心区的城市界面、1公里内的地标性自然生态资源、一流的生活与文化配套,以及多个高品质、低密度、大尺度豪宅项目!

2)世界园区-月亮湾-板块质飞跃
独墅湖一湾碧水滋养的科创诗篇,湖光潋滟处生长着生物医药与纳米技术的浪潮,高校林立的书卷气与实验室的冷光交织,低密度的建筑群落如琴键般错落,在24米限高的留白中托起城市天际的呼吸。未来是产研基因与湖岸生态的双螺旋——数字经济在此孵化,白鹭掠过玻璃幕墙的倒影,科技与自然在潮汐线上悄然共生,下一个十年,它仍是苏州写给世界的理性与浪漫的草稿。

五、城市配套:奥体全维生活图鉴(配图)

天熠东方电话:18662309054
1)交通网络
地铁枢纽:紧邻地铁2号线月亮湾站,无缝串联6号线、8号线,向东可达苏州东站(在建),向北连通金鸡湖CBD,向西穿越金鸡湖,实现全城高效通达。
路网畅达:独墅湖大道、独墅湖南隧道、星湖街等主干道衔接中环南线,便捷对接城市各区域。
2)商业配套
近享便利:对望独墅湖邻里中心,满足日常所需。商圈环绕:3KM范围内汇聚月亮湾商圈、邻瑞广场;3 - 7KM可达久光百货、诚品书店、新光天地等高端商业,9KM直达苏州中心,畅享顶级商业资源。
3)教育资源
公立名校:项目南侧中科大附中独墅湖学校,提供优质基础教育。
国际教育:园区外国语学校、西交美高、领科高级中学、新加坡国际学校、德威国际学校、海归人才子女学校等顶级私立学府林立,营造国际化教育氛围。
4)生态人文
自然景观:独墅湖、金鸡湖双湖景观,白鹭园、月亮湾码头、教堂等生态人文景点环绕。
文体设施:独墅湖体育中心、南部市民中心(在建)、独墅湖影院、湖滨慢行道、月墅公园等,丰富休闲生活。
5)健康全维图景,全天候贴身守护家庭
独墅湖医院、苏州大学附属儿童医院、星塘医院、三甲妇产专科医院禧华医院等优质医疗配套,形成健康守护圈,为生活全时护航
六、项目信息:
1)社区楼幢

2)立面风格


3)社区特色
1. 空间布局:采用"中轴对称+组团围合"规划理念,6栋首层架空设计形成通透的公共活动空间,下沉式庭院会所融入健身、社交、休闲等复合功能,提升社区空间活力。
2. 建筑形态:外立面采用现代极简主义风格,铝板幕墙与超白Low-E玻璃的组合应用,实现0.48的窗墙比,兼顾建筑美学与节能性能;3.1-3.3米层高设计,超越普通住宅约15%的空间尺度。
3. 楼间距设计上匠心独运,最大间距达41.6米。既保证了充足采光,又有效避免楼栋间视线干扰,全方位守护住户隐私。同时,超宽楼间距大幅拓宽视野边界,将社区园林景致与无界引入室内,让居住空间在私密与开阔间实现理想平衡,尽显高端住区品质与尺度感。
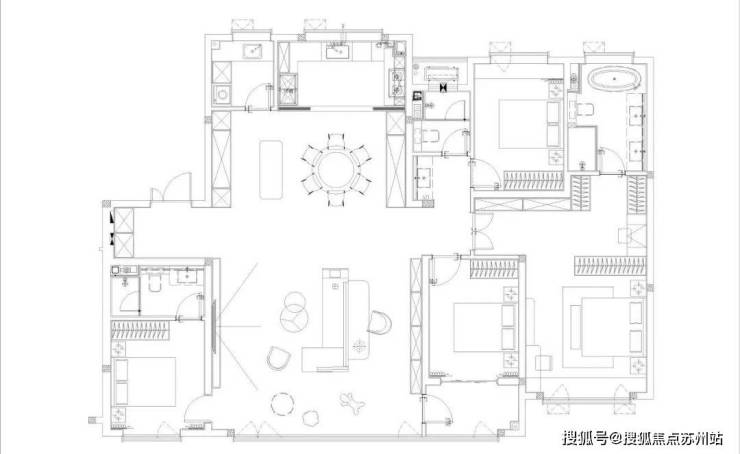
4)户型赏析
建筑面积约:162平方四房二厅二卫

建筑面积约:186平方四房两厅三卫

建筑面积约:207平方四房两厅三卫

建筑面积约:253平方四房两厅三卫

天熠东方电话:18662309054