独家!绿城凤起潮鸣!园区湖西别墅豪宅产品猛料!全线大师天团!
扫描到手机,新闻随时看
扫一扫,用手机看文章
更加方便分享给朋友
项目打造42栋3-17F住宅产品
咨询热线:18662309054
园区湖西豪宅迎来全新动态,绿城凤起潮鸣产品打造细节曝光,项目预计8月中旬公开售楼处,最快在8月底就开盘!湖西近十年都难得的低密墅区!
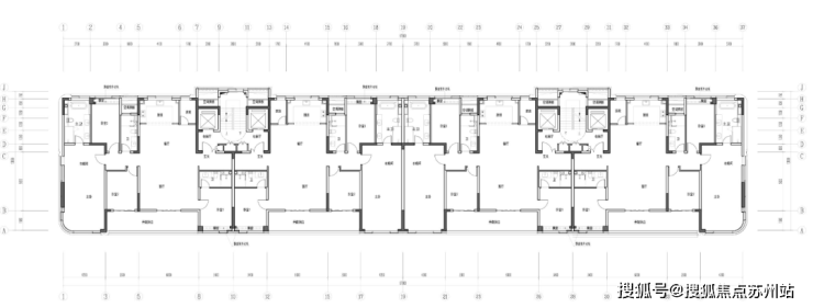
【项目】占地约8.1万方/总建约22.6万方/容积率1.6
【业态】26栋合院(3F)+13栋洋房(6-11F)+3栋中高(17F)
【产品】合院|地上建面约262-451㎡,洋房|建面约158-283㎡,中高|建面约148-185㎡,608套。

绿城拥有桃花源系、玫瑰园系、庐系、凤起系等经典豪宅序列IP,以优质的自然资源、社会资源为择址标准,通过领先的“好房子”产品力,赋能板块形象与价值不断跃升。
凤起潮鸣,是绿城典型的凤起系作品,起源于杭州,自2016年凤起潮鸣一战封神后,便成了顶豪市场代表词,也是绿城TOP级豪宅产品线。
该产品系要求十分严格,唯有占据核心地段、目前主要项目包括杭州凤起潮鸣、宁波凤起潮鸣、义乌凤起潮鸣、台州凤起潮鸣等,目标客群为高净值人群,主打高端平层与大平层产品。
此次,绿城将目光锁定在金鸡湖这片承载着苏州至高理想的土地上。这背后,是绿城对苏州城市价值的深刻洞察,更是对苏州城市文化的尊重和致敬。
此次大师云集,绿城·苏州凤起潮鸣,由gad设计合伙人吴寿清,蓝颂总经理景观大师宋淑华,CCD创始人室内设计大师郑忠,LSD创始人兼艺术总监葛亚曦倾心合著,以大师之作著写潮鸣永恒。
基于三面环水的半岛地形,绿城·凤起潮鸣通过「引水入园」、「理水造园」、「湖水活园」三大规划理念,规划望湖、抱湖、揽湖、亲湖的“隐湖之境”整体格局,错落布局滨水合院、谧境洋房与瞰湖中高产品,打造一座圆融国际东方精神的当代美学场域。
依凭半岛三面水岸的天然资源,以“一堤三面湖”和“水街襟两园”设计笔触,实现滨水互动、开门见水的场景体验;融汇吴门画派、苏州园林造园理念,营造出一座温润如玉的流动庭园。
项目还打造了下沉式会所,后期由也是绿城物业服务。
承续苏商百年会馆公所文脉,匠心构筑下沉式会馆。运用框景、透景等传统造园手法,与下沉庭院形成视线交融,空间功能涵盖运动休憩区、圈层会客区两大雅集场域,将国际滨水生活范式嵌入当代东方山水意境。
绿城·凤起潮鸣属于大湖西核心,这里不仅是苏州的经济、文化中心,更是国际滨水生活的典范。整个项目位于东板桥河西、金鸡湖大道南。
项目是在2025年3月21日,由绿城以约53亿的总价斩获,当初竞价超182轮!热度非常高!成交楼面价高达40684元/㎡,溢价率45%。

项目坐揽金鸡湖与独墅湖城市地标、商业旗舰、城市公园、五星级酒店、文化剧院等繁华盛景,苏州中心、东方之门、中环广场等地标配套环湖而立,奢享开放包容的国际滨水生活圈。
周边3、5、7号线三轨交汇,3站即达苏州中心,北侧紧邻金鸡湖大道,往西直通古城、往东直达湖东。
地块位于湖西CBD以南片区,三面临水,咫尺5A级金鸡湖景区、独墅湖景区,紧邻湖西中央商务区,拥有着东方之门、苏州中心等城市顶级配套。
星海小学、星海实验初中、金鸡湖学校、苏大附中等学校环伺;苏州工业园区星海医院往南500米可达;水坊路邻里中心、大润发、星尚邻里等商业配套齐全。
这里北接CBD 的璀璨繁华,西承姑苏千年的历史气韵,东揽金鸡湖与独墅湖的潋滟波光,既有城市的便捷与活力,又有难得的宁静与诗意,是真正实现了繁华与自然的完美融合的好地方。
上一次半盔有新房是2023年入市的湖西观云(已售罄),容积率1.8,17-24F小高层,备案均价5.48万/m²。
可以预见,绿城·凤起潮鸣的到来,又将是苏州楼市豪宅的新传奇,出场即炸场!目前项目城市展厅已经公开,喜欢的可提前关注起来。
3
根据规划,绿城·凤起潮鸣根据“一面城市三面湖”的半岛型地块,错落布局合院、洋房、中高层等产品形态,让建筑仿佛生长在湖岸之上,成为湖景的一部分,为苏州著写新的精神流域。
大面积的玻璃幕墙搭配铝板,加之弧线流线的精妙设计,处处彰显出高级质感,尽显雅致格调!

公示的洋房和联排部分户型如下。
洋房户型,约190平:
标准层面图:

户型图详情:
户型方正,四开间朝南,奢阔南向面宽达约16.9米,尽显空间掌控力;约9.3米南向贯通阳台衔接6米客厅;南向3个卧室均采用大面宽设计,采光与舒适兼得;

主卧配置小书房、步入式衣帽间及卫浴5件套,私享尊崇起居;
厨房贴心规划家政间,让后勤动线更显从容;边户转角主卧拥 IMAX 级 270° 环幕视野,风光尽揽无余!
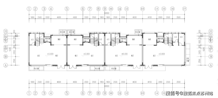
联排1层户型:
一层平面图:
别墅100套左右,东边户是大户型,面积300平左右;中间户260-270平。

东边户后期是楼王大户位置,南向奢阔开间约12.1米,客餐厅一体化设计,配备独立明厨与星级公卫,空间尺度感满满。

项目立面图:
洋房南立面图:非常流畅的造型,首层高3.6米,很多楼栋有架空设计,其余层高3.15米

联排立面图:坡屋顶,大面积玻璃,跟逸庐有点像。首层3.6米,二层3.3米,三层高3.2米。

根据地块规划条件,肯定是超级顶奢:
全装修住宅,装修标准不低于5000 元/㎡;分割销售单元为非单层的住宅,可选择实施全装修。

项目位于w酒店2楼7号会议室
的城市展厅正式公开
咨询热线:18662309054
声明:本文由入驻焦点开放平台的作者撰写,除焦点官方账号外,观点仅代表作者本人,不代表焦点立场。


