城投悦江湾售楼处(2025售楼中心)首页网站-城投悦江湾售楼处欢迎您-样板间/价格/户型/容积率
扫描到手机,新闻随时看
扫一扫,用手机看文章
更加方便分享给朋友
城投悦江湾售楼处电话:400-812-3664
上海杨浦城投·悦江湾售楼处电话☎:400-8123-664(预约看房热线)
「杨浦城投·悦江湾」
预计四季度入市
建面约99-142㎡3-4房
联动价9.9万/㎡
上海杨浦【城投·悦江湾】
售楼处电话☎:400-8123-664【售楼处预约热线】(一对一热情服务)
如有问题欢迎来电咨询,专业一对一热情服务,让您用专业眼光去买房。
城投·悦江湾售楼处电话:400-812-3664
上海杨浦城投·悦江湾售楼处电话☎:400-8123-664(预约看房热线)
项目信息:
地块名:杨浦区长海路街道332街访025-07地块
容积率:2.5
绿化率:35%
装徐标准:精装交付
均价总价:联动价9.9万,以预证为准
可售套数:290套
约99㎡三室两厅两卫
约108㎡三室两厅两卫
约142㎡四室两厅两卫
整体住宅规划5栋楼 7个单元
1、2号楼均为总高17层1梯2户的99平三房两厅两卫;
3号楼为总高17层小高层2梯2户142平的四室两厅两卫;
4号楼为总高5层1梯2户108平三室两厅两卫(低密洋房户型)
「杨浦城投·悦江湾」
杨浦城投·悦江湾售楼处电话:400-8123-664(销售中心)
案场限流 看房请务必提前来电预约登记
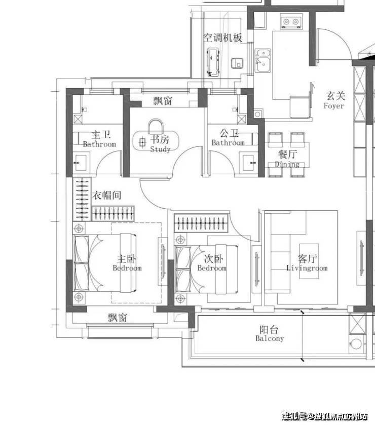
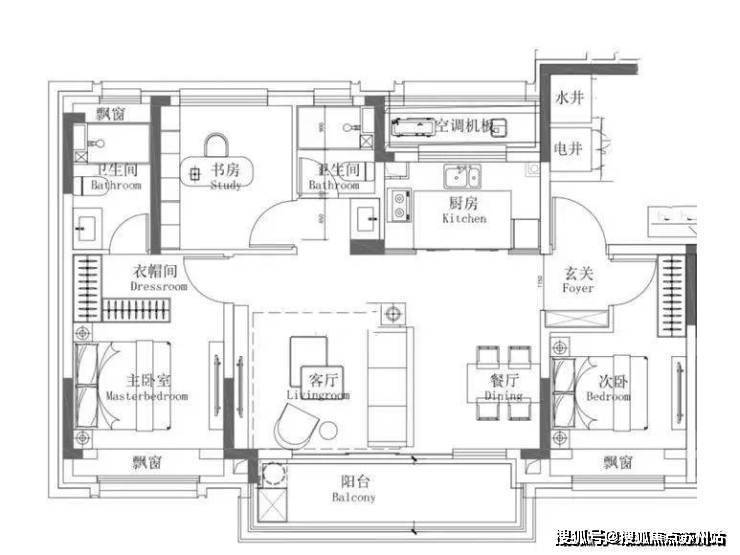
户型图如下:
(过程稿仅供参考,以开发商正式公示为准)
▼建面约99㎡三房两厅两卫户型
(1T2户17层小高层)
城投·悦江湾售楼处电话:400-812-3664
上海杨浦城投·悦江湾售楼处电话☎:400-8123-664(预约看房热线)
▼建面约142㎡四房两厅两卫户型
(2T2户总高17层小高层)
▼建面约108㎡三房两厅两卫户型
(1T2户总高5层小洋房)
项目效果图:
「杨浦城投·悦江湾」
杨浦城投·悦江湾售楼处电话:400-8123-664(销售中心)
案场限流 看房请务必提前来电预约登记
城投·悦江湾售楼处电话:400-812-3664
上海杨浦城投·悦江湾售楼处电话☎:400-8123-664(预约看房热线)
2022年7月,上海第二批次土拍中,杨浦城投以20.8816亿元,竞得杨浦区长海社区025-07地块(长海路街道332街坊)地块,地块出让面积16638.7㎡,容积率2.5,溢价率0%,成交楼板价50200元/㎡,房地联动价99000元/㎡。
【杨浦城投·悦江湾】位于杨浦五角场中原板块,位于三门路。项目所在三门路,项目位于杨浦中外环,周边有10号线、8号线,最近的地铁站是10号线三门路站约700米,向南距离中环线国和路上匝道也只有1公里左右的距离,出行较为便捷。串联淞沪路和翔殷路城市主干道,通达内环线、中环线、大连路隧道等,便捷通达浦西浦东。
「杨浦城投·悦江湾」
杨浦城投·悦江湾
售楼处电话:400-8123-664(销售中心)
案场限流 看房请务必提前来电预约登记
商业方面,2公里半径覆盖覆盖有丰富业态,国华广场、中原城市广场、百联又一城购物中心、五角场万达广场、合生汇众多商业。
城投·悦江湾售楼处电话:400-812-3664
上海杨浦城投·悦江湾售楼处电话☎:400-8123-664(预约看房热线)
教育方面,周边有上海体育学院附中附小、同济中学、兰生复旦中学等学校。
五角场商圈 10号线三门路站
预计四季度入市
建面约99-142㎡3-4房
联动价9.9万/㎡
「杨浦城投·悦江湾」
上海杨浦【城投·悦江湾】
售楼处电话☎:400-8123-664【售楼处预约热线】(一对一热情服务)
如有问题欢迎来电咨询,专业一对一热情服务,让您用专业眼光去买房。
城投·悦江湾售楼处电话:4008123664【开发商售楼中心热线】城投·悦江湾营销中心热线400-812-3664城投·悦江湾售楼处地址400-8123-664,楼盘项目全面介绍,本电话为开发商提供线上预约售楼电话,楼盘项目全面介绍(包含楼盘简介,均价,房价,现房,期房,别墅,叠墅,大平层,价格,楼盘地址,户型图,交通规划,备案价,备案名,项目配套,样板间,开盘时间,认筹时间,楼盘详情,售楼处电话,最新消息,最新详情,周边配套,一房一价,最新进展等详情咨询)楼盘详情丨价格丨更多优惠丨机不可失丨欢迎致电丨诚邀品鉴!售楼处位置丨特价房丨工抵房丨剩余房源丨户型图丨最新消息丨免责声明:将文章内容综合来源于网络、只作分享,版权归原作者所有!!如有侵权,请联系我们,我们第一时间处理如有问题欢迎来电咨询,专业一对一热情服务,让您用专业眼光去买房。如果您想了解更多楼盘详情,欢迎提前预约拨打城投·悦江湾售楼处电话☎400_812_3664✔✔✔
房地产专业知识200问
1、房产
是指房屋经济形态,在法律上有明确的权属关系,在不同的所有者和使用者之间可以进行出租出售或作其它用途的房屋。
2、地产
是指土地财产,在法律上有明确的权属关系,地产包含地面及其上下空间,地产与土地的根本区别也就是有无权属关系。
3、房地产
是房产和地产的总称。是指土地及附着在土地上的人工构筑物和建筑物及其附带的各种权利(所有权、管理权、转让权等)。
4、房地产业
是以土地和建筑物为经营为对象,从事房地产开发、建设、经营、管理以及维修、装饰和服务的集多种经济活动为一体的综合性产业。
5、房地产开发
是指在依法取得土地使用权的土地上按照使用性质的要求进行基础设施、房屋建筑的活动。
6、土地开发
是将“生地”开发成可供使用的土地。
7、土地所有制
现行全部土地实行的是社会主义土地公有制,分为全民所有制(即国家所有)和劳动群众集体制(即集体所有)两种形式。其中,城市市区的土地全部属于国家所有;农村和城市郊区的土地法律规定属于国家所有的以外,属于集体所有;宅基地和自留地、自留山,属于集体所有;矿物、水流、森林、山岭、草原、荒地、滩涂等自然资源,属于国家所有,由法律规定属于集体所有,森林、山岭、草原、荒地、滩涂除外。但地上建筑物既可以为国家所有,也可以为集体、单位和个人所有。因此,同一宗房地产,其土地与地上建筑物的所有权往往是不一致的。
8、集体土地
是指农村集体所有的土地。
9、征用土地
指国家为了公共利益的需要,可依照法律规定对集体所有的土地实行征用。
10、土地的使用年限是如何确定的?
凡与省市规划国土签订《土地使用权出让合同书》的用地,其土地使用年限按国家规定执行。即:居住用地七十年;工业用地五十年;教育、科技、文化、卫生、体育用地五十年;商业、旅游、娱乐用地四十年;综合用地或者其他用地五十年。另外,加油站、加气站用地为二十年。
11、房子的居住时间是多少,土地使用年限届满后,该怎么办?
房屋一经购买并取得产权后,即作为业主个人所有的财产,并无居住年限的限制,担对该房屋所占用范围内的土地来说,因为土地除属于集体所有的外,均属于国家所有。业主所取得的为该土地的一定年限的使用权。住宅用地的土地使用时间为50—70年,自开发商取得该土地使用证书之日起计算。在该土地使用年限届满后,土地将由国家收回。业主可以在继续交纳土地出让金或使用费的前提下,继续使用该土地。
12、合作建房
是指以一方提供土地使用权,另一方或多方提供资金合作开发房地产的房地产开发形式。
13、土地所有权
土地所有权是指国家或集体经济组织对国家土地和集体土地依法享有的占有、使用、收益和处分的权能。
14、土地使用权的出让
指国家以协议、招标、拍卖的方式将土地所有权在一定年限内出让给土地使用者,由使用者向国家支付土地使用权出让金的行为。
15、土地使用权转让
是指土地使用者通过出售、交换、赠与和继承的方式将土地使用权再转移的行为。
16、土地使用权划拨
是指政府无偿将土地拨发给使用者使用,一般没有使用期限的限制。以无偿划拨取得的土地使用权,其出让须经政府及土地管理部门同意,交补交出让金后方可进行转让、出租和抵押。
17、什么是地籍?什么是产籍?
我们通常所指的地籍、产籍、房地产籍是同一概念。它是指土地的自然状况、社会经济状况和法律状况的调查与登记,包括了土地产权的登记和土地分类面积等内容。具体来讲,是对在房地产调查登记过程产生的各种图表、证件等登记资料,经过整理、加工、分类而形成的图、档、卡、册等资料的总称。
18、生地
指空间地、田地、未开垦地等不具备使用条件的土地。
19、熟地
指三通一平或七通一平,具备使用条件的土地。
20、宗地
是地籍的最小单元,是指以权属界线组成的封闭地块。
21、宗地图
是土地使用合同书附图及房地产登记卡附图。它反映一宗地的基本情况。包括:宗地权属界线、界址点位置、宗地内建筑位置与性质、与相邻宗地的关系等。
22、证书附图
即房地产后面的附图,是房地产证的重要组成部分,主要反映权利人拥有的房地产情况及房地产所在宗地情况。
23、楼花
一词最早源自香港是指未完工的物业(即在建物业),另一说法即指未正式交付之前的商品房。
24、期房
是指消费者在购买时不具备即买即可入住的商品房,即房地产开发商品房预售许可证开始至取得房地产权证大产证为止,所出售商品房称为期房。消费者在购买期房时应签商品房预售合同。
25、现房
是指消费者在购买时具备即买即可入住的商品房,即开发商已办妥所售的商品房的大产证的商品房,与消费者签订商品详尽买卖合同后,立即可以办理入住并取得产权证。
26、毛坯房
房地产商交付屋内只有门框没有门,墙面地面仅做基础处理而未做表面处理的房叫毛坯房。
27、成品房
是指对墙面、天花、门套、地板实行装修。
(1)内墙面为普通仿瓷涂料
(2)客厅楼地板为普通瓷砖
(3)普通铝合金窗
(4)普通胶合板门
28、商品房
是指以完全的市场价格向购房者出售的房子。
29、空置商品房
指1998年6月30日以前建成尚未售出的商品住房(可免交契税)。
30、存量房
即二手房的书面称呼,是相对首次成交的商品房而言。
31、二手房
通常是指再次进行买卖交易的住房。个人购买的新竣工的商品房、经济适用住房及单位自建住房,办完产权证后,再次上市买卖,这些都称为二手房。
32、经济适用房
根据北京市人民政府办公厅京政发【1998】第54号文件,经济适用住房是面向中低收入家庭的普通住宅;要体现适用、经济、美观、安全、卫生、便利的原则;布局要符合城市规划的要求;使用功能要满足居民基本生活的需要;建设标准要根据北京市“九五”住宅建设标准,结合市场需求确定。
33、房改房
在房改政策出台后,国家机关、企事业单位的职工需要按规定将目前居住的房子购买下来,我们把为类公房称之为房改房。
34、安居房分为哪几种?
安居房包括按规定出售出租给国家机关、事业单位、企业单位职工的准成本房、全成本房、全成本微利房和社会微利房。
35、个人住房基金
有些单位建立了个人住房基金。职工个人住房基金是由个人的劳动收入积累而成的基金,其中一部分是根据政策规定从收入中提取得到(主要指公积金);另一部分则是自愿储蓄部分则采取存款自愿,取款自由的管理办法。
36、住房补贴
住房补贴是国家为职工解决住房问题而给予的补贴资助,即将单位原有用于建房、购房的资金转化为住房补贴,分次(如按月)或一次性地发给职工,再由职工到住房市场上通过购买或租赁等方式解决自己的住房问题。住房补贴发放的原则是:坚持效率优先,兼顾公平的原则,由各地政府根据当地经济适用住房平均价格、平均工资,以及职工应享有的住房面积等因素具体确定。
37、房屋的折旧
房屋折旧是逐步回收房屋投资的形式,即房屋的折旧费。折旧费是指房屋建造价值的平均损耗。房屋在长期的使用中,虽然保留原有的实物形态,但由于自然损耗和人为的损耗,客观存在的价值也会逐渐减少。这部分因损耗而减少的价值,以货币形态来表现,就是折旧费。确定折旧费的依据是建筑造价残值、清理费用和折旧年限。
38、房屋的所有权
是指对房屋全面支配的权利。房屋的所有权分为占有权、使用权、收益权和处分权四项权能,这也是房屋所有权的四项基本内容。
39、房屋的占有权
通常由所有权人来行使,但有时也由别人来行使,这就是使用权与所有权分离的情况。
40、房屋的使用权
是对房屋的实际利用权利。通过一定法律契约,非房屋所有权人也可获得房屋的使用权。
41、房屋的收益权
是指房主收取房屋财产所产生的各种收益。
42、房屋的处分权
是所有权中一项最基本的权能。房屋的处分权由房主行使。有时房屋处分权也受到一定的限制。
43、房地产交易形式
房地产市场的房地产交易形式主要有两种:地产交易形式与房产交易形式。
44、住宅的“全部产权”
是指按市场价和成本价购买的房屋,购房者拥有全部产权。经济适用房亦属于全部产权。
45、住宅的“部分产权”
是指职工按标准价购买的公有住宅。在国家规定的住房面积之内,职工按标准价购房后只拥有部分产权,可以继承和出售,但出售时原产权单位有优先购买权,售房的收入在扣除有关税费后,按个人和单位所占的产权比例分配。
46、房产互换
是房屋所有人或使用人之间,在相互自愿的基础上,采用等价不等价加补偿的方式相互交换住房的行为。一般分为所有权互换和使用权互换两种形式。
47、建筑物
是指人工建造而成的房屋和构筑物,如墙体、楼地层、楼梯、门窗基础。
48、构筑物
是指建筑物中除房屋以外的东西,人们一般直接在内进行生产和生活活动,如烟囱、水井、道路、桥梁等。
49、商品房的结构
售房的楼书常见用语,房屋架构可分为砖混结构、砖木结构和钢筋混凝土结构。
50、砖混结构
主要是砖墙承重,部分是钢盘混凝土承重的结构。
51、砖木结构
主要承重构件是由用砖和木两种材料制成的结构。
52、钢筋混凝土结构
主要承重构件是由钢筋和混凝土制成的结构。
53、住宅的开间
就是住宅的宽度。
54、住宅的进深
就是指住宅的实际长度。
55、住宅的层高
是指下层地板面或楼板面到上层楼层面之间的距离,也就是一层房屋的高度。
56、住宅的净高
是指下层地板面或楼板上表面到上层楼板下表面之间的距离。
57、居住小区总用地
是包括住宅总用地,公共建筑设施总用地,道路、广场用地、庭院、绿化用地的总和。
58、住宅总用地
指低层、多层、中高层、高层以及住宅用地面积的总和。
59、公建总用地
指小区内部公共建筑占地面积的总和。
60、房屋的基底面积
房屋的基底面积是指建筑物底层勒脚以上外围水平投影面积。
61、道路、广场用地
指小区内主次干道、支道、人行道、绿化带中间宽度大于1.5米的步行道及停车、回车广场和有铺砌地面的场地面积之和。
62、庭院、绿化面积
指小区内集中绿化带、小公园、住宅间集中种植花木、草地、假山、花架、水榭、水池,以及公共活动场所等为小区所有居住人员共同使用权的绿化面积的总和。
63、人均总占地面积(平均米/人)
人均总占地面积=建筑红线内总用地/本小区规划居住总人数。
64、人均住宅用地面积(平方米/人)
人均住宅用地面积=小区内总住宅用地/本小区规划居住总人数。
65、总建筑面积(平方米)
指小区内住宅、公共建筑、人防地下室面积总和。
66、住宅的建筑面积
亦称建筑展开面积,它是指住宅建筑外墙外围线测定的各层平面面积之和。它是表示一个建筑物规模大小的经济指标。它包括三项,即使用面积、辅助面积和结构面积。
67、结构面积
是指房屋建筑中外墙,内墙柱等结构构件所占面积的总和。
68、使用面积
是指建筑物各层平面中直接为生产或生活使用的净面积的总和。
69、辅助面积
指卧室以外的净面积,包括过道、卫生间、厨房、储藏室、阳台等。
70、公用面积
是指住宅楼内为住户方便出入,正常交往保障生自学成才而设置的公共走廊、楼梯、电梯间等所占面积总和,并按栋或单元户数按比率分摊。
71、套内建筑面积
房屋按套(单元)计算的建筑面积为套(单元)门内范围的建筑面积,包括套(单元)内的使用面积、墙体面积及阳台面积。
72、套内墙体面积
是套内使用空间周围的维护或承重墙体或其它承重支撑体所占的面积,其中各套之间的分隔墙和套与公共建筑空间的分割以及外墙(包括山墙)等共有墙,均按水平投影面积的一半计入套内墙体面积。套内自由墙体按水平投影面积全部计入套内墙体面积。
73、公用建筑面积
各产权主体共同占有或共同使用权的建筑面积,指各套(单元)以外为各户共同使用,不可分割的建筑面积。
74、公用建筑面积的分摊原则是什么?
如有面积分割的文件或协议,应按其文件或协议分摊计算;如无分割文件或协议,按规定的公用面积分摊原则进行分摊计算。
75、哪些公用面积应分摊?
应分摊的公用建筑面积包括套(单元)门以外的室内外楼梯、内外廊、公共门厅、通道、电梯、配电房、设备层、设备用房、结构转换层、技术层、空调机房、消防控制室、为整栋楼层服务的值班卫室、建筑物内的垃圾以及突出屋面有围护结构的楼梯间、电梯机房、水箱间等。
76、哪些公用面积不能分摊?
不能分摊的公用面积为底层架空层中作为公共使用的机动车库、非机动车库、公共开放空间、城市公共通道、沿街的骑楼作为公共开放使用的建筑面积、消防避难层;为多栋建筑物使用的配电房;公民防护地下室以及地面车库、地下设备用房等。
77、套内阳台建筑面积
套内阳台建筑面积均按阳台外围与房屋外墙之间的水平投影面积计算。其中封闭的阳台按水平投影全部计算建筑面积,未封闭的阳台按水平投影的一半计算建筑面积。
78、套内使用面积
指套内住户独自使用的面积,一般包括卧室、厨房、卫生间、过厅、起居室、内走道、阳台、壁柜等净面积的总和。
79、套外使用面积
指套外全体住宅的公共使用面积,如楼梯间、电梯间、公共走道、公共用房等。
80、建筑容积率
是指项目规划建设用地范围内全部建筑面积与规划建设用地面积之比。
81、建筑密度
即建筑覆盖率,指项目用地范围内所有基底面积之和与规划建设用地之比。
82、人口毛密度
人口毛密度=小区内总居住人数/小区内占地面积(公顷)。
83、平均每平方米造价(元)
平均每平方米造价建筑物总造价/建筑面积。
84、使用面积系数K1(%)
使用面积系数=总使用面积(平方米)/总建筑面积(平方米)×100%。
85、居住面积系数K2(%)
居住面积系数=总居住面积(平方米)/总建筑面积(平方米)×100%。
86、结构面积系数K3(%)
结构面积系数=总结构面积(平方米)/总建筑面积(平方米)×100%。
87、绿地率
是指规划建设用地范围内的绿地面积与规划建设用地面积之比。
88、绿化率
是指植被垂直面积与规划建设用地面积之比。
89、销售率
指售出的户数占可销的总户数的比例。
90、得房率
指套(单元)内建筑面积与套建筑面积的比率。
91、公共能耗费
是小区共用部位、共用设备和公共设施及在公共性服务中所发生的水、电、煤等能源消耗,被称为公共能耗,由此所产生的费用为公共能耗费。
92、商品房预售
俗称“卖楼花”,即在房地产尚未建成以前,房地产的经销商在取得受买人一定数量的定金后,将期房出售给受买人。
93、商品房现售
是指房地产开发企业将竣工验收合格的商品房出售给买受人,并由买受人支付房价款的行为。
94、外销房
是指房地产开发企业按政府外资工作主管部门的规定,通过实行土地批租形式,报政府计划主管部门列入正式项目计划,建成后用于向境内境外出售的住宅、商业用房及其它建筑物。
95、内销房
是指房地产开发企业通过实行土地使用权出让形式,经过政府主管部门审批,建成后用于在国内范围(目前不包括香港特别行政区、澳门和台湾)出售的住宅、商业用房及其它建筑物。
96、规划形态
是指这一项目的具体建筑构成,譬如一个项目一共由几栋楼宇组成,每栋楼宇的使用性质是什么,单栋楼宇的地上有几层,地下有几层,每一层的具体用途是什么。
97、住宅组团
是一种融合了中式四合院建筑模式的居住结构。
98、单元式住宅
是指在多层、高层楼房中的一种住宅建筑形式;通常每层楼面只有一个楼梯,住户由楼梯平台直接进入分户门,一般多层住宅每个楼梯可以安排24到28户。所以每个楼梯的控制面积又称为一个居住单元。
99、居住单元
是指一个单元里有几户。俗称:一梯两户、一梯四户等。
100、户型
是指一套住宅由多少卧厅、厨、卫组成。俗称:一室一厅、二室一厅、四室二厅二卫等。
101、套型
是指层住空间的大小范围。俗称:小套、中套、大套。
102、面积配比
指的是各种面积范围的单元在某一楼盘单元总数中各自所占比例的多少。
103、格局配比
是二房二厅、三房二厅等各种格局的单元在某一楼盘的单元总数中各自所占的比例的多少。
104、阁楼
是指位于房屋坡屋顶下部的房间。
105、假层
是指房屋的最上一层,四面外墙的高度一般不低于下式楼层外墙的高度,以内部房间利用部分屋架空间构成的非正式层。
106、普通住宅
是指按一般民用住宅标准造的居住用住宅,高级公寓、别墅、度假村等不属于普通住宅的范畴。
107、公寓
是指二层以上供多户人家居住的楼房建筑。
108、纯办公楼
是指专为各类公司的日常营运提供办公活动空间的大楼。
109、商场
是指规划为对外公开进行经营的建筑物。
110、综合楼
是指兼有住家、办公甚至商场的大楼。
111、商住住宅
是SOHO(居家办公)住宅观念的一种延伸,它属于住宅,但同时又融入写字楼的诸多硬件设施,尤其是网络功能的发达,使居住者在居住同时又能从事商业活动的住宅形式。
112、别墅
是指在郊区或风景区建造的供住宿休养用的花园住宅。其中三户或三户以上连体的别墅为连栋别墅,二户连体的别墅为双拼别墅,单楼独栋的则为独栋别墅。
113、TOWNHOUSE(联排别墅)
正确的译法应该为城区住宅,是从欧洲舶来的,其原始意义是指在城区房屋。目前是指建于城郊,高绿化率,住宅功能齐全的景观型联排别墅。
114、跃层式商品房
是指由上、下两层楼盘面、卧室、起居室、客厅、卫生间、厨房及其它辅助用房,并采用户内独用的小楼梯连接的房屋通风、采光较好,布局紧凑,功能分明,只是户内楼梯占去一定使用面积,上下两层只有一个出口,发生火灾时,人员不易疏散。
115、复式商品房
是由香港建筑师创造设计的一种经济型房屋,是在层高的一层楼中增建一个夹层,从而形成上下两层的楼盘房。实际层高要大大低于跃层式住宅。复式住宅下层供起居、餐饮、洗浴用,上层供休息、储藏用,户内设多处入墙式壁柜和楼梯。
116、错层式住宅
是指楼面高度不一致错开之处有楼梯联系的住宅。
117、SHOPPING MALL
直译为“步行街购物广场”,是目前国际上最流行、经营效果最佳的零售百货模式,它具有四大特征:开放性的公共休闲广场、强烈吸引人气;开放性的对外交通设计,广纳周边人气,相对闭合的内部通道回路,充分利用有效人流,购物与休闲良性互动,形成惊人的商业效应。
118、商品房的起价
是指商品房在销售时各楼层销售价格中的最低价格。
119、商品房的均价
是指商品房的销售价格相加以后的和除以单位建筑面积的和,即得出每平方米的价格。
120、基价
经过核算而确定的每平方米基本价格,商品房的销售价一般以基数增减楼层和朝向差价后得出。
121、定金
只是预付款的一部分,起不到担保债权的作用,在开发商违约不签订合同的情况下,无法得到双倍的返还。
122、订金
只是预付款的一部分,起不到担保债权的作用,在开发商违约不签订合同的情况下,无法得到双倍的返还。
123、共有房产
共有房产是指某一房产属于两个或两个以上的所有人共同所有。
124、《商品房预售许可证》
《商品房预售许可证》是市、县、人民政府房地产管理部门向房地产开发公司颁发的一项证书,用以证明列入证书范围内的正在建设中的房屋已经可以预先出售给承购人。
125、契税
契税是指房屋所有权发生变更时,就当事人所订契约按房价的一定比例向产权承受人征收的一次性税收。它是对房地产权变动征收的一种专门税种。(交易手续费经济适用房减半)
126、公共维修基金
公共维修基金是指住宅楼房的公共部位和共用设施、设备的维修养护基金。商品房的公共维修基金由购房人在购房时交纳,比例为购房款的2%。
127、印花税
印花税是对经济活动和经济交往中书立、领受凭证征收的一种税。它是一种兼有行为性质的凭证税,具有征收面广、税负轻、由纳税人自行购买并粘贴印花税票完成纳税义务等特点。
128、购买房地产的条件
成年人提供身份证明:未成年人提供户口簿及监护人证明书。
129、未成年人是否可以作为权利人办理《房地产证》?
未成年人可以作为权利人办理《房地产证》,但办理时须提交其监护关系证明和监护人身份证明,并在《房地产证》上备注其法定监护人姓名。由于未成年人为没有民事行为能力或限制民事行为能力的人,因此在处分该房地产时必须符合有关法律规定。
130、申办产权需具备哪些资料?
审核后购销合同一份、收件收据、产权申请登记表、产权登记发证审批表、房屋所有权情况调查表、测量后的正式图纸。
131、办理产权需交纳哪些费用?
产权登记费、勘丈测绘费、印花税、工本费。
132、房地产权初始登记
指对未经登记机关确认其房地产权利,领取房地产权利证书的土地使用权及建筑物、附着物的所有权进行的登记。
133、房地产登记
即房地产产权登记,它是国家为健全法制,加强城镇房地产管理,依法确认房地产产权的法定手续。城市房地产权属都必须向房地产所在地的房地产管理机关申请登记。经审查确认产权后,由房地产管理机关发给《房地产产权证》。产权登记是房地产管理的行政手段,只有通过产权登记,才能对各类房地产权属实施有效的管理。
134、房地产登记的种类有哪些?
房地产登记的种类分为初始登记、转移登记、抵押登记、变更登记、其它登记。
135、什么情形属于房地产变更登记?
下列情形属于房地产变更登记:
(1)地产使用用途改变;
(2)权利人姓名或名称发生变化的;
(3)房地产座落名称或房地产名称发生变化的;
(4)建筑物、附着物倒塌、拆除。
136、房地产登记是以什么单位进行登记的?
房地产登记是以一宗土地为单位进行登记的。所谓一宗土地,是指以权属界线组成的封闭地块。一宗土地存在两个或两个以上权利人的,各权利人分别对该宗土地上的建筑物、附着物的所有权和拥有的土地使用权份额申请登记。
137、申请房地产登记,可否委托他人代理?
申请房地产登记,申请人可以委托他人代理。由代理人办理申请登记的,应向登记机关提交申请人的委托书。境外申请人的委托书应按规定经过公证或认证。
138、确权
确权就是房地产登记机关对房地产权利的确认。即是依照法律、政策的规定,经过房地产申报、权属调查、地籍勘丈、审核批准、登记注册、发放权利证书等登记规定程序,确认某一房地产权利归属的过程。
139、房屋期权转让
房屋期权转让是指购房者在与房地产开发企业签订了预购商品房合同之后,在商品房尚未竣工交付使用之前,由于购房者一方原因,如对房屋需求的改变或是故意炒作,把原来因签订购房合同而获得的权利转让给他人。房屋期权转让,有的地方将其称为“楼花”转让或“炒楼花”。
140、房地产转让
是指合法拥有土地使用权及土地上建筑物、附着物所有权的自然人、法人和其他组织,通过买卖、交换、赠与将房地产转移给他人的法律行为。
141、房地产转让时,其他公用设施是否一起转让?
房地产转让时,转让人对同宗土地上的道路绿地、休闲憩地、空间余地、电梯、楼梯、连廊、天台或者其他公用设施所拥有的权益同时转移。房地产首次转让合同对停车场、广告权益没有特别约定的,停车场、广告权益随房地产同时转移;有特别约定的,经房地产登记机关初始登记,由登记的权利人拥有。
142、房地产抵押
指债务人或第三人(抵押人)以其合法拥有的房地产作为担保物向债权人(或押权人)提供债务履行担保的行为。房地产按揭于房地产抵押的一种形式。
143、申请抵押登记应提交什么资料?
(1)《房地产抵押登记申请书》;
(2)委托书;
(3)房地产证;
(4)夫妻双方身份证、户口簿、结婚证或未婚姻证明;
(5)商品房买卖合同和个人住房借款合同。
144、已抵押的房地产能否转让?
根据《中华人民共和国担保法》的规定,已抵押的房地产可以转让,但应由抵押人、转让人和受让人三方签订有关的公证书,即签订将原抵押转移给新的受让方的协议;抵押人未通知抵押权人或者未告知受让人的,转让行为无效。
145、以房地产抵押向银行贷款,是否一定要办理登记?
以房地产作为抵押物向银行贷款,一定要到房地产登记部门办理抵押登记手续。根据《中华人民共和国担保法》的规定,抵押合同自登记之日起生效,所以,只有办理了抵押登记,抵押合同才有法律效力。
146、借款人如何偿还银行贷款?
贷款期限在1年内(含1年)的,实行到期本息一次性清偿的还款方式。贷款期限在1年以上双方一般约定按等额本息还款法归还贷款,即借款人在借款期内每月以相等的月均还款额偿还银行贷款本金和利息。
147、贷款期如遇利息调整,如何处理?
根据人民银行的规定,贷款期间如遇国家调整利率,贷款期限在1年以内(含1年)的,实行合同利率,不分段计算;对一年期以上贷款,于下一年1月1日开始,按相应期限档次利率执行新利率。
148、贷款人提前偿还贷款时,本息如何计算?
借款人在提前归还贷款时,应提前10个工作日向贷款人提出书面申请,经贷款审核同意,贷款人可提前部分还本或提前清偿全部贷款本息,提前清偿的部分在以后期限不再计息,此前已计收贷款利息不作调整。
149、房屋租赁
是指房屋所有权人作为出租人将其房屋出租给承租人使用,由承租人向出租人支付租金的行为。
150、银行按揭
按揭是英语“Mongase”(抵押)一词的粤语音译,因此,银行按揭的正确名称是购房抵押贷款,是购房者以所购房屋之产权作抵押,由银行先行支付房款给发展商,以后购房者按月向银行分期支付本息。
151、加按揭
即对现有的工行房贷客户提供以原贷款抵押物为担保的贷款,资金用途限于购买新的住房及家居消费,也就是“原来按揭买下的房子,还款达到一定额度后,可以将其抵押出去,获得新的贷款的一种业务形式”。
152、转按揭
转按揭就是个人住房转按贷款,个人住房转按贷款是指已在银行办理个人住房贷款的借款人,向原贷款银行要求延长贷款期限或将抵押给银行的个人住房出售或转让给第三人而申请办理个人住房贷款变更借款期限、变更借款人或变更抵押物的贷款。
153、个人住房按揭需提交哪些资料?
购房身份证、户口簿、结婚证原件及复印件(若客户为未婚则提供户口所在地街办计生委出具的未婚证明原件);购房人及其配偶所在工作单位出具工资收入证明(若干个体户则提供营业执照及税票);购房人已首付购房款收据原件及复印件;已与开发公司签订的购房合同;在开户行开户的活期存折;贷款申请书、个人住房借款合同、借款借据、委托银行扣收购房还款协议书、住房抵押承诺书。
154、办理按揭贷款应交哪些费用?
保险费、公证费、抵押登记费。
155、等额本金还款法
等额本金还款法是一种计算非常简便,实用性很强的一处还款方式。基本算法原理是在还款期内按期等额归还本金,并同时还清当期未归还的本金所产生的利息。方式可以是按月还款和按季还款。
156、一次性还本付息法
现各银行规定,贷款期限在一年以内(含一年),那么还款方式为到期一次性还本付息,即初期的贷款本金加上整个内的利息综合。
157、权利质押贷款担保
银行可接受的质押物是特定的有价证券和存单,有价证券包括国库券、金融债券和银行认可的企业债券,存单只接收人民币定期储蓄存单。借款人申请质押担保贷款,质押权利凭证所载金额必须超过贷款额度,即质押权利凭证所载金额要至少大于贷款额度的10%。各种债券要经过银行鉴定,证明真实有效,方可用于质押,人民币定期储蓄存单要有开户银行的鉴定证明及免挂失证明,借款人在与银行签订贷款质押合同的同时,要将有价证券、存单等质押物交由贷款银行保管,并由贷款银行承担保管责任,如果借款人要求进行公证,双方可以到公证机关办理公证手续,公证费用由借款人承担。选择质押贷款担保方式,要求居民家庭有足额的金融资产,依靠这些金融资产完全可以满足购房消费的需要,只是购房时难于变现或因变现会带来一定损失而不想变现。因此,采取质押方式,只有少数人才能做到。
158、个人住房担保贷款?
中国人民银行于1997年4月颁布了《个人住房担保贷款管理办法》(该办法在1998年5月进行了修改)。按照该办法的定义,个人住房担保贷款是指借款人或第三人以所购住房和其他具有所有权的财产作为抵押物,或由第三人为其贷款提供保证,并承担连带责任的贷款;借款人到期不能偿还还贷款本息的,贷款银行有权依法处理其抵押物或要求保证的承担连带偿还本息责任。
159、住房公积金
是指国家机关、国有企业、城镇集体企业、外商投资企业、城镇私营企业及其他城镇企业、事业单位、民办非企业单位、社会团体及其在职职工缴存的长期住房储金。它是一种长期性的住房储金,具有社会保障性质,是住房实物分配向货币分配转化的一种形式。
160、公积金贷款
公积金贷款也就是个人住房担保委托贷款,是由城市住房资金管理中心及所属分中心运用房改资金委托银行向购买(含建造、大修)自住住房的公积金交存人和离退休职工发放的贷款。
161、申请住房公积金贷款的条件
凡住房公积金连续缴存6个月以上或累计缴存公积金一年以上,并且目前仍在缴存公积金,才有资格申请。
162、公积金贷款的办理程序
借款人填写《早班审核书》,并提交相关资料;资料报送住房资金管理中心受理、审核。
163、办理公积金贷款应提供哪些资料?
身份证、户口簿、结婚证、收入证明、审核后购房合同一份,首付款票据。
164、组合贷款
组合贷款是公积金贷款与商业贷款的合称。
165、住房抵押贷款
所谓抵押贷款就是抵押人(购房者)向抵押权人(银行)以所购房产作贷款抵押,并同时签定抵押合同,以不转移所有权方式作为按期归还贷款的担保,并持公证的商品房预售合同向有关房产登记机关进行抵押登记,当抵押人按合同约定还清全部本息后,便可收回贷款的担保,并持经公证的商品房预售合同向有关房产登记机关进行抵押登记,当抵押人按合同约定还清全部本息后,便可收回“房屋所有权证”与“土地使用证”。
166、商品房验收合格
指的是单体(即单幢楼盘)验收合格。
167、商品房综合验收合格
指的是包含所有配套设施在内的全部建筑物的验收合格。
168、在什么情况下,房地产开发项目可以交付使用?
房地产开发项目竣工,经验收合格后,方可交付使用;未经验收或者验收不合格的,不得交付使用。
169、在房屋交付时,发展商应提交哪些文件?
房屋交付时,房地产开发企业应当根据《商品住宅实行质量保证书和住宅使用说明书制度的规定》,向买受人提供《住宅质量保证书》、《住宅使用说明书》。
170、物业的竣工验收
是指从物业形态上说,建筑商完成了一项最终产品,开发商也完成了物业开发任务,这时他们之间所发生的一个法定手续。
171、何为“预售面积”和“竣工面积”?
预售面积是指全部按建筑设计图上尺寸计算的房地产建筑面积,它只供房地产预售时使用;竣工面积是指房地产竣工后实测的面积或用与竣工房地产尺寸相符的建筑设计图计算的建筑面积,它为房地产交易、租赁、抵押、竣工验收、产权登记等提供依据。
172、物业管理
泛指一切有关房地产开发、经营、商品房销售、租赁及售后服务。
173、入伙
指业主领取钥匙,接房入住。
174、业主委员会
业主委员会是在物业管理区域内代表全体业主实施自治管理的组织。业主委员会由业主大会从全体业主中选举产生,是经政府部门批准成立的代表物业全体业主合法权益的社会团体,其合法权益受国家法律保护。
175、后房型时代
是指当一批经典户型被大量复制,户型设计趋于同质化,合理的户型设计只是房地产产品的及格线时,小区的规模、位置、环境、系统设置、安全指数、增值潜力等综合因素构成决定购买的重要砝码。
176、健康住宅
是指能使居住者在身体上、精神上、社会以上完全处于良好状态的住宅。
177、违法建筑
是指未经规划土地主管部门批准,未领取建设工程规划许可证或临时建设工程规划许可证,擅自建筑的建筑物和构筑物。
178、空鼓
局部面局材料与基层没有胶合剂或胶合剂没有起作用,用小槌轻击有空壳声。如瓷砖与墙面间局部水泥砂浆不饱和,形成空鼓。
179、如何办理装修许可证?
首先由装修申请者填写申报材料进行申报,然后由房产管理局受理申报,经房管局光派人现场查勘后进行审批,最后是缴费和领取许可证;备齐如下材料:按要求填写房屋装修申请表一式二份,交验房屋所有权证,租赁的要提供房屋报有人同意装修的书面意见及租赁合同;装修设计方案和施工图;承诺因装修而造成邻里正常使用要负责维修或赔偿的承诺书;办理白蚁防治手续。
180、LOGO
即楼盘标识,楼盘独有的标志,多见于广告幅、旗、板牌以及外墙、售楼处。一般表现为图案、美术字、字母等。
181、商品房预售须符合哪些条件?
(1)交付全部土地使用权出让金,取得土地使用权证书;
(2)有建设工程规划许可证;
(3)按提供预售的商品房计算,投入开发建设资金达到工程建设总投资的25%以上,并已经确定施工进度和竣工交付日期;
(4)向县级以上人民政府房产管理部门办理预售登记,取得商品房预售许可证明。
182、哪些情况下,预售房购买者可以要求取消预售房合同?
(1)房屋开发公司不能按照原定日期交付预购房屋;
(2)建成后的房屋实际面积与预售房合同确定的面积不相符;
(3)建成后房屋建筑的材料与预售合同所列建材不相符。
183、预售房转让
是购房者将购买的预售房转让给他方的行为。
184、业主
是物业的所有人或物业的使用人。
185、房地产中介
是联结房地产生产经营者与消费者以及房地产经济内部的各种社会经济关系的纽带。
186、地基和基础
建筑物下面直接承受建筑物重量的土层称为地基。建筑物的最下端与土壤直接接触的部分称为基础。基础的作用是承受建筑物全部重量并将之分散传递给地基。
187、墙体
是维护分割构件,同时也可以是承重构件。在一般砖混结构房屋中,墙体是主要的承重构件。
188、建筑用地面积
指城市规划行政主管部门确定的建设用地位置和界线所围合的用地之水平投影面积,不包括代征的面积。
189、建筑基底面积
是指建筑物首层的建筑面积。
190、建筑高度
指建筑物室外地平面至外墙面顶部的总高度。
191、建筑间距
指建筑平面外轮廓线之间的距离。
192、停车场
指在建设用地内为停放机动车和非机动车须配置的场地。停车场面积小型汽车按每车位25平方米计算,自行车按每车位1.2平方米计算。
193、智能住宅
是将住宅内各种电气设施纳入计算机网络系统进行综合管理,使其具有高效率的服务功能,可提供安全、便利、舒适的住宅环境。
194、房地产市场调研
是以房地产为特定的商品对象,对相关的市场信息进行系统的收集、整理、记录和分析,进而对房地产市场进行研究与预测,为决策者了解房地产市场变动趋势,制定公司营业计划,拟订经营策略提供参考与建议。
195、单个楼盘的市场调查通常包括哪几项?
(1)产品分析
(2)价格组合
(3)广告策略
(4)销售执行
196、如何填写楼盘市调详表?
(1)产品:A、地段 B、公司组成 C、基本参数 D、建筑类别
E、面积与户型 F、建材装潢·公用设施 G、施工进度·交房日期
(2)价格:A、单价 B、总价 C、付款方式
(3)广告:A、接待中心 B、广告媒体 C、数量强制
D、主要诉求 E、来电来人
(4)销售:A、销售率 B、客源分析
(5)总结:A、成功点 B、失败点 C、建议
197、商品房销售面积
商品房销售面积=套内建筑面积+分摊的公用建筑面积
198、分摊公用建筑面积的计算方法
分摊公用建筑面积=套内建筑面积×公用建筑面积分摊系数
公用建筑面积分摊系数=公用建筑面积/套内建筑面积之和
公用建筑面积=整幢建筑的面积-套内建筑面积之和-不应分摊的建筑面积
199、“五证”包括什么?
商品房“五证”包括:建设用地规划许可证、建设工程规划许可证、国有土地使用证、建设工程开工证、商品房预售许可证。
200、“二书”
是指建设部为了加强对商品房的质量管理与监督,要求发展商必须提供的新建住宅质量保证书和新建住宅使用说明书。
声明:本文由入驻焦点开放平台的作者撰写,除焦点官方账号外,观点仅代表作者本人,不代表焦点立场。


