非常罕见的是近两年来市区出让地块中容积率新低,限高10-24米,规划联排+叠拼,且是稀缺的核心墅类产品。今年的3月13日,绿城玫瑰园(成交楼面价45454元/㎡)的苏州地价纪录,在仅保持了两周后,价格再度大幅…
绿城双王案名重磅发布
全城瞩目!终于等到!
“东园西庐”的时代来临
双湖地块案名:绿城玫瑰园
狮山地块案名:绿城逸庐
苏州的珍藏品
沸腾!历史性一刻到了!
👇👇👇

苏南绿城
,赞
697
相关文章链接👇
绿城,在下一盘大棋!
01
绿城逸庐
35套联排+28套叠加,速抢!
一、仅63套!非常稀缺!联排+叠拼杀到!
绿城逸庐继承绿城 “庐系”高端基因,以隐逸为精神内核,以“现代形东方意”为概念,完美融合当代文化与东方精神,造就新一代的低密居住语境。
2023年,园区奥体板块的绿城云庐两次开盘,第一批非人才的中签率低至7.4%,998组客户抢74套房源 ,热度非常!

期待!划重点来了!提前关注
绿城逸庐一手爆料
叠拼户型280㎡/400㎡
联排户型350-470㎡
(最终以官方公布为准)
龙湖天街展厅已经公开,预计8月开盘
价格预计在 1800-3500万左右
绿城逸庐咨询热线:18662309054
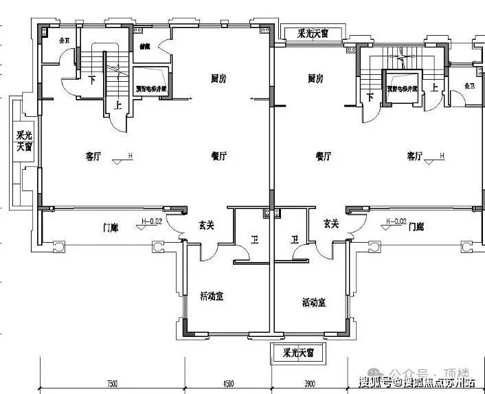
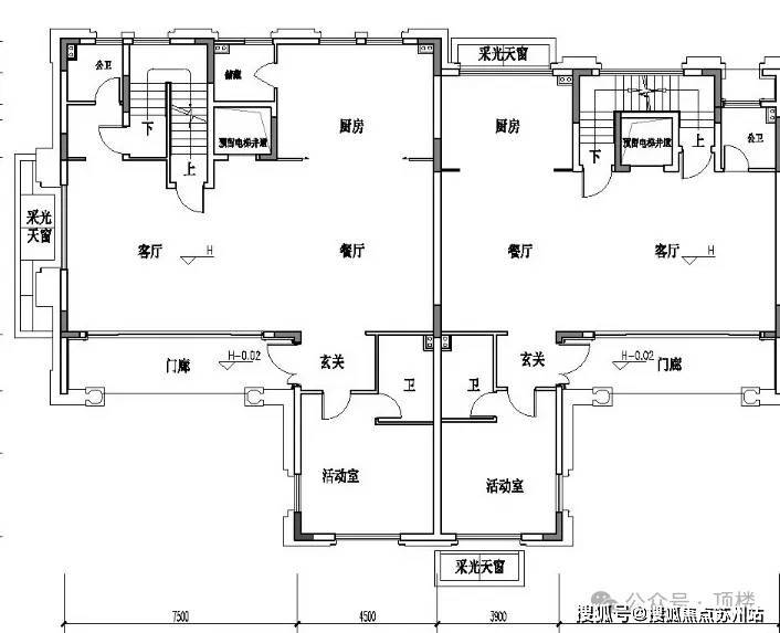
绿城逸庐总共规划了 63套住宅。
总用地面积17852.4平方米,总建筑面积37899.21平方米,其中计容总建筑面积18200.74平方米!

1#、11#、12#为3幢4-5F的 叠拼,其余楼幢均为 联排,容积率仅1.02。
此次 绿城逸庐的户型面积在 280-470㎡(最终以官方公布为准)。

二、狮山迎新王,成交楼面价45455元/㎡!
再来回忆一下——
2024年3月13日!太疯狂!经过32轮之后,绿城以8.2亿竞得狮山Z03地块!成交楼面价45455元/平。
相关文章链接:疯狂!45455元/㎡!绿城!破纪录

地块楼面起价32000元/㎡,已是狮山地价新高,在较高竞争预期的加持下,房价预期也将“水涨船高”, 成功突破6W+,冲击7w+。
咨询通道已开启,扫码登记
销售经理第一时间联系您
上车!绿城狮山!!
绿城逸庐咨询热线:18662309054
三、绝对心动!打造1.02低密度墅住区!
容积率仅 1.02,户型面积不小于180㎡!
非常罕见的是近两年来市区出让地块中容积率新低,限高10-24米, 规划联排+叠拼,且是稀缺的核心墅类产品。
打响了苏州核心低密产品第一枪!成功坐稳2024年的狮山新地王。

四、狮山核心C位,周围配套一流成熟!
再来看地段, “东有金鸡湖,西有狮子山”,项目位于狮山路正核心,淮海街,正北侧,是妥妥的是C位,未来的增值保值肉眼可见!
与此同时,地铁3号线在侧,医院、教育、商业等优质配套齐全,居住成熟度高。
学校硬核!也很近!按照施教区范围(枫津大道以南、塔园路以东、狮山路以北区域)该项目未来属于 新区实验金山路校区范畴。
除此之外,休闲娱乐还有天狮公园,未来业主下楼即漫步抵达,轻松享受生活。
狮山作为苏州为数不多火爆的板块,依旧是万众瞩目, 2024即将疯狂卷起来!打算在狮山买房的顶粉们冲刺了!
咨询通道已开启,扫码登记
销售经理第一时间联系您
上车!绿城狮山!
绿城逸庐咨询热线:18662309054
02
绿城玫瑰园!
华丽开启苏州10w+的时代
再看绿城玫瑰园,园区双湖项目
是 23栋洋房+低密合院+联排的王炸组合
怦然心动的法式风格来啦!goa大象设计
洋房280㎡起步,合院540㎡户型
↓↓↓

01

洋房+合院+联排,超级王炸组合!闪亮出场!
绿城玫瑰园双湖项目
打造23栋低密合院+联排+洋房
太绝了啊!预算够的闭眼冲!!
👇
绿城逸庐咨询热线:18662309054
据小道消息称,项目将由goa大象设计
和 上海前滩百合园的风格相似
快来欣赏一下效果图——
↓↓↓

©效果图
参考上海前滩百合园 实景图——

©上海前滩百合园 实景图

来感受一下外立面——

从15#的首层平面可以看出,一共4户,联排户型,中间户约300㎡,边户约400㎡。(*具体以项目公示为准)

单独再把15#的首层户型图
拎出来感受一下,户户三层
南向面宽12米,中间户南向面宽11米
↓↓↓

立面是这样的——

22#洋房户型四房两厅三卫
南向面宽19.8米,横厅6.35米
主卧开间达到4.5米
南向双套房,豪宅的尺度直接拉满!
更关键是一梯一户,配备家政间+中西厨房
↓↓↓


02
绿城逸庐咨询热线:18662309054
玫瑰园开启苏州10w+的时代!苏州房价格局再颠覆!
振奋人心的是,作为双湖板块暌违已久的宅地,项目从挂牌起就备受瞩目。
再来回忆一下——
今年的3月13日,绿城玫瑰园(成交楼面价45454元/㎡)的苏州地价纪录,在仅保持了两周后,价格再度大幅刷新!绿城超越了绿城。
相关文章链接:已出价!多家房企争夺!起拍楼面价5w5!
相关文章链接: 楼面价65022元/㎡!园区双湖刷新历史!太疯狂!
3月27日,绿城双湖,最后以6.5w/㎡的成交价格,不仅刷新了苏州大市既往成交楼面价,且已超江苏省最高成交楼面价!

©制图:顶楼
双湖已超10年未有新增供地,上一次宅地成交还要追溯到2013年9月5日,世茂拿下苏园土挂(2013)06号地块,即世茂铜雀台,成交总价47.25亿,成交楼面价15079元/㎡,溢价率76%。
根据规划,地块约 1.02容积率、 限高24米的要求,低密墅级产品!期待值拉满!
再加上 5000元/㎡的装标,新房价格将非常有想象空间,或达 “10万+”!

待到绿城玫瑰园一旦进入市场,究竟能否为苏州楼市带来显著的提振效果,也让我们共同期待!
03

位列园区第一梯队,顶尖豪宅杀到!疯狂期待!
项目位于双湖板块核心,居金鸡湖和独墅湖之间的核心地带。
双湖作为园区第一梯队板块,亦是苏州鼎鼎著名的豪宅区,区位、市场属性皆优。
紧邻金鸡湖CBD,在九龙仓国宾一号的东侧、苏州御园的西侧,北侧就是金鸡湖,南侧是独墅湖,极具稀缺性。



©顶楼实拍,航拍图
项目距离 地铁5号线金湖站非常近,周边交通便利,拥有金鸡湖大道、星湖街等城市主干道,距离邻瑞广场约1公里,步行可达金鸡湖景区,享受金鸡湖一线湖景。
©制图:顶楼

周边有苏州御园、仁恒双湖湾、九龙仓国宾一号、世茂铜雀台等高端住宅,是真正意义上的豪宅聚集地,土豪风拉满!
生活配套高端醇熟、周边豪宅挂牌均价皆在10万+,低至1.02的容积率的 墅类产品。
2024,属于绿城的时代到了!我们一同期待!
绿城逸庐咨询热线:18662309054