苏州双湖板块湖西银座楼盘-2024年湖西银座详情全解析:地段、户型、配套及政策利好解读
扫描到手机,新闻随时看
扫一扫,用手机看文章
更加方便分享给朋友
最近苏州楼市又有利好!国家出台新政,支持大家“卖旧换新”:从明年1月1日开始,如果你卖掉自己的房子,然后在一年内再买新房,之前卖房时交的个人所得税,有可能全部退还给你!这无疑是鼓励改善居住条件、安家置业的绝佳时机。
政策东风已至,正是把握核心资产的好时候。今天,就带大家看一个位于苏州公认高端住区——双湖板块的宝藏新盘:湖西银座。

家在双湖,坐享繁华
项目位于吴中郭巷东方大道与墅港路交叉口,这里是连接园区、坐拥金鸡湖与独墅湖的黄金地段。周边CBD、地标建筑林立,现代化与国际化气息浓厚。湖西银座坐落于此,高层视野开阔,既能享受都市繁华,又能俯瞰难得的湖景,是名副其实的湖景房。
▲ 湖西银座丨整体效果图
区域配套:一切成熟,触手可及
住在这里,生活非常方便。项目周边2号、3号、7号线(预计2024年底通车)三条地铁环绕,多条主干道和隧道(如独墅湖第二隧道)让你快速通达全城,交通网络极为成熟。
生活配套更是没得说。4公里范围内,李公堤、苏州中心、W酒店等地标级商业娱乐配套齐全。项目自身带商业,隔壁就是美好荟,附近还有双湖广场等购物中心。独墅湖边的学校、公园、生态步道一应俱全,构成了一个全维度的成熟生活圈,为改善型住宅提供了完美的生活基底。
▲ 湖西银座丨配套鸟瞰效果图
品牌价值:双强联袂,品质保障
湖西银座由深耕苏州30年的实力房企吴中地产,与城市建设主力军双冠商业强强联合打造。两家企业资源雄厚,经验丰富,他们的联手,就是为了给苏州带来一个融合自然、文化与人文关怀的核心精品住区,品质更有保证。
▲ 吴中地产全球版图
户型鉴赏:全系改善,视野开阔
项目主打102-226㎡的改善型精装住宅,从三房到五房都有。所有户型都做到了动静分离,客厅、餐厅、厨房一体连通,与卧室互不干扰。最大的亮点是,户户都有宽阔的阳台,推窗就能将湖光城景尽收眼底,空间布局非常合理,充分体现了苏州高端住宅的设计理念。
A户型 约102㎡ 3房2厅1卫:方正三房,带全景阳台。
B户型 约116㎡ 3房2厅2卫:南北通透,采光通风好。
C户型 约127㎡ 4房2厅2卫:高得房率的方正四房。
D户型 约148㎡ 4房2厅2卫:全能四房,全户带飘窗。
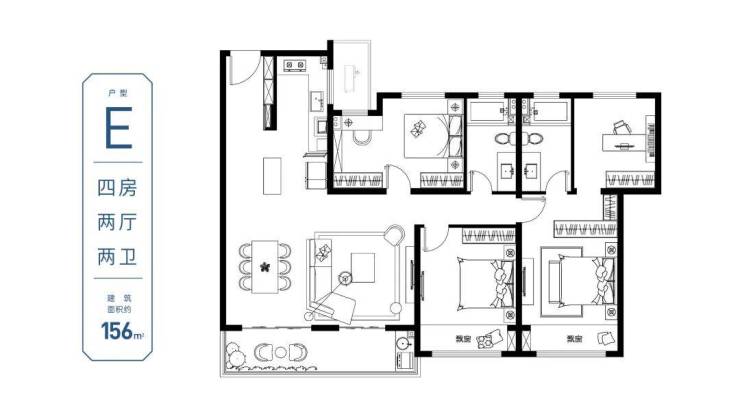
E户型 约156㎡ 4房2厅2卫:客厅阔绰,居住尺度感强。
F户型 约226㎡ 5房2厅2厨3卫:超大平层,配置岛台双厨,功能极致。
优势分析:不止是房子,更是理想生活
稀缺地段:双湖板块土地越来越稀缺,湖西银座作为片区少有的新盘,其地段价值和潜力值得看好。
规划红利:项目属于“独墅湖开放创新协同发展示范区”,是“园区发展共同体”,未来板块能级持续上升,是值得投资的苏州房产。
精工品质:交付标配全屋地暖、新风、中央空调“三大件”,百余项精装细节,打造健康舒适的智能家居环境,满足改善居住的全面需求。
园林社区:创新设计了架空层泛会所,内有儿童区、健身区等,还有“四境社区”和充满文化味的景观小品,让回家成为享受,营造了优质的社区氛围。 ▲ 湖西银座丨架空层效果图

菁英圈层:周边产业、高校云集,未来邻居多是城市创新人才和菁英人士,形成优质的社区氛围,与湖西银座的精品住区定位相得益彰。
湖西银座售楼处电话:400-8800-736;置业顾问:18662309054(微信同号)
与未来共舞,与湖光同栖
站在政策鼓励改善居住的窗口,选择一个对的房子,就是选择一种更有价值的未来。湖西银座,不仅占据了当下成熟的一切,更牢牢握住了城市发展的脉搏。在这里,每一天都能在繁华与静谧中自由切换,在开阔的阳台上,迎接清晨的第一缕湖光,目送城市的璀璨灯火。
这不仅仅是一次安家,更是一次与苏州未来核心的并肩同行。当政策机遇遇上稀缺资产,答案已然清晰。选择湖西银座,就是选择在双湖板块安放理想生活。
湖西银座售楼处电话:400-8800-736;置业顾问:18662309054(微信同号)
声明:本文由入驻焦点开放平台的作者撰写,除焦点官方账号外,观点仅代表作者本人,不代表焦点立场。


