秉持“让城市生活更美好”的品牌理念,深耕苏州,自2015年首个“澜”系作品至今已打造山水樾澜院、狮子山澜院等标杆项目。狮山文化广场,苏州博物馆西馆、苏州科技馆、狮山大剧院等世界大师执笔地标林立,城市厚蕴与国际…
—— · 澜庭壹号院 · ——
百墅狮山 壹号藏品
苏高新集团|绿城管理 狮山核心 低密墅区

【项目基础信息】
◆总 户 数:约205户
◆容 积 率:1.2
◆绿 地 率:30%
◆项目规划:17栋3F联排,2栋6F叠加,2栋10F洋房
◆建筑面积:约115㎡/135㎡墅境洋房,约215㎡/236㎡/259㎡见山叠墅,约271㎡/325㎡/369㎡山水和院
◆装修状态:洋房精装修、墅类毛坯
◆开发公司:苏州新高项阳建设发展有限公司
澜庭壹号院售楼处电话:18662309054
——苏高新集团有限公司 ——
苏州苏高新集团有限公司(“苏高新集团”)是苏州高新区管委会直属的重点国有企业,成立于1990年。
秉持“让城市生活更美好”的品牌理念,深耕苏州,自2015年首个“澜”系作品至今已打造山水樾澜院、狮子山澜院等标杆项目。“澜院”系是由苏高新集团匠心筑造的低密墅境序列,着力塑造高品质低密标杆作品。

—— 绿城管理控股有限公司 ——
绿城管理控股有限公司及其附属公司(合称“绿城管理”),是中国房地产轻资产开发模式的先行者、引领者。绿城管理成立于2010年,2024年绿城管理稳居行业榜首,2024年新拓代建面积达到3649万平方米,领先第二名多达一倍。
涵盖128个城市,总建筑面积122.8万平米(其中商业代建90.1万平米、政府代建32.7万平米),在建面积3.2万平米(数据截止2024年6月30日)。
◆狮山芯 国际会客厅
落子狮山核心区,狮山商务创新区聚焦世界目光,交通、教育、产业、商业等国际化生活配套环伺,城市顶豪人居聚集地。

澜庭壹号院售楼处电话:18662309054
◆5大名校云集 书香涵养
苏州外国语学校、高新区第一中学,外国语幼儿园(在建)、狮山实验小学、高新区第一初级中学等优质学府。
◆六大商业 繁盛万象
新区美罗、泉屋百货、狮山天街、山姆会员商店、金鹰百货、悠方购物中心、等大型城市综合体环伺,日常购物、社交聚会、娱乐休闲、品牌餐饮等一站式繁华。

澜庭壹号院售楼处电话:18662309054
◆城市坐标 1%先进文化生产力
狮山文化广场,苏州博物馆西馆、苏州科技馆、狮山大剧院等世界大师执笔地标林立,城市厚蕴与国际潮流在此握手,推动狮山迈向世界舞台。
◆智慧城央 科创企业活力区
板块内累计集聚外资企业超1300家,吸引了近30家总部认定企业入驻,拥有市场主体达8.5万家。

◆人才引力 撬动未来潜力
吸引25000+本科以上人才进驻,同时随着“一心”狮山路发展30余年,从城市地理空间上来看已然饱和。未来将依托“五园”,即从狮山路向长江路形成十字发展轴,上市企业总部园将成为狮山跃进下一站。

◆绿色产业 城市总部地标群
上市企业总部园,与本案仅一路之隔,总投资约13.9亿,产、学、研一体化发展定位为上市公司企业总部和数字经济企业总部园,2023年已交付竣工,2024年3月陆续入驻,目前总部园已吸引多家企业。

◆现代美学的东方意志
【兴造墅学】园冶为魂苏作为艺营墅境
【现代美学】几何构图传承与横向舒展
【东方屋檐】再现身份华贵的官帽符号
【雅灰流金】演绎奢而有度的色彩美学



◆部分项目户型
合院265㎡4房3厅4卫户型

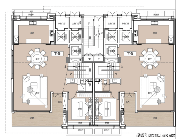
下叠一层平面图

下叠二层平面图

洋房135㎡3+1房2厅2卫

澜庭壹号院售楼处电话:18662309054