虎丘江南里售楼处电话-虎丘江南里官方热线(虎丘江南里售楼处地址欢迎您)-周边环境-户型图/房价-地址-交房时间-楼盘详情-户型
扫描到手机,新闻随时看
扫一扫,用手机看文章
更加方便分享给朋友
房贷利率,已触历史冰点!目前苏州首套房贷利率低至**3.0%**,置业成本来到前所未有的友好窗口期。政策东风已至,正是抢占核心资产的最佳时刻。
而什么样的资产,才配得上这难得的时代机遇?答案,或许就藏在相城、姑苏、新区三区交汇的黄金心脏——一座被约873公顷湿地环抱的全岛低密院墅。这不仅是一处居所,更是献给时代的119席珍藏。

区域配套:城芯繁华与自然秘境,一步兼得
住在这里,生活有多方便?
缤纷商业:出门即是黄桥悦邻广场,大悦城、吾悦广场、龙湖天街等千亿级商圈环伺,繁华触手可及。
全龄优教:江苏省相城中学、苏大实验小学、伊桥幼儿园等优质教育资源云集,孩子成长一路护航。 (注:学校信息为周边展示,具体以教育部门政策为准。)
市政医疗:苏大附一院总院、苏州市妇幼保健院等三甲医院就在不远处,为家人健康筑起坚实屏障。
自然绿肺:最大的亮点,是您的私家后花园——约873公顷虎丘湿地公园。这才是真正的低密洋房生活底色,也是虎丘江南里作为苏州别墅的核心优势之一。
通达交通:紧邻高铁苏州北站,中环北线、G312等城市干道环绕,快速连接全城。
品牌价值:巨匠联袂,共著东方顶豪范本
好房子,离不开顶尖团队的打磨。
蓝城集团领衔:宋卫平先生缔造的美好生活综合服务商,以“江南里”顶豪IP,奠定高端人居标杆。
苏州园林集团匠心执笔:传承香山帮非遗技艺,深度参与过杭州桃花源等传奇项目,将园林艺术融入建筑肌理。
黄桥国资实力护航:本土国资平台坚实背书,为项目品质与未来价值保驾护航。
绿城物业尊崇服务:引入国家一级资质的绿城服务,以国际奢牌酒店的标准,荣伺塔尖圈层的日常生活。

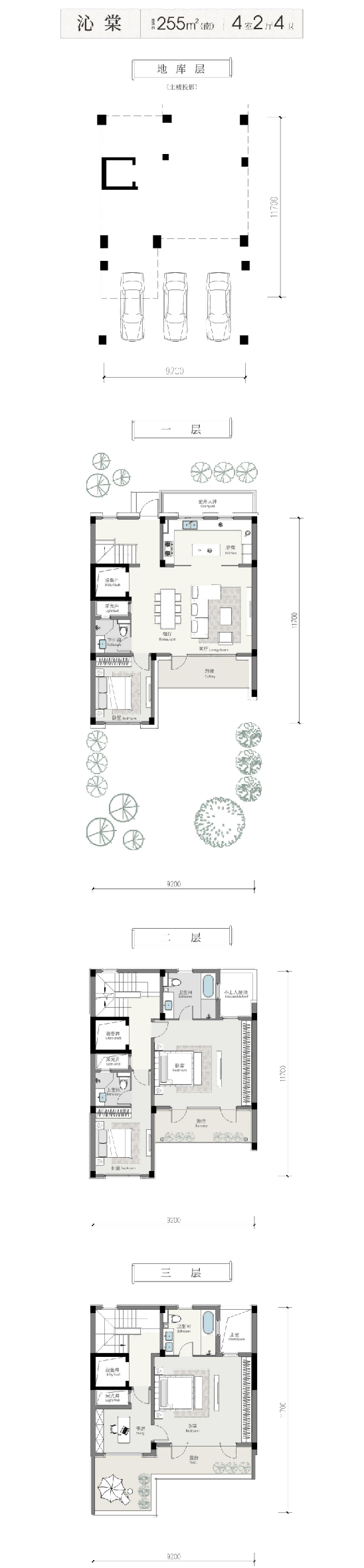
户型鉴赏:255-750㎡纯粹尺度,定义家族传世大宅
仅119席,皆为超越普通住宅的传世之作。户户约3个专属车位,尊崇感从归家第一步开始。作为苏州主城稀缺的高端住宅,其户型设计充分考虑了家族传承的需求。
沁棠:约255㎡,四房两厅四卫。尺度阔绰,功能齐全,是精英家庭的理想之选。
澄观:约310㎡,五房两厅五卫。空间序列分明,兼顾大家庭的团聚与每个人的私密。
安和:约750㎡,五房两厅六卫。堪称平层王府,极致尺度容纳所有关于生活的想象。

优势分析:何以称“孤品”?三大价值无可替代
独一无二的“全岛”生态秘境。 项目四面环水,是苏州主城内罕见的360°水系闭环天然岛居。约873公顷虎丘湿地公园是您窗外的日常,这样的土地禀赋,成就了其湿地岛居的独特标签,苏州难再。
集大成的“宋韵美学”匠造。 师法宋画与苏派园林,打造约1200㎡微缩江南山水。规划“一苑一巷一岸”,复刻“三进门仪”礼序,行走其间,宛如漫步于一幅流动的宋风画卷,完美诠释了中式合院的意境之美。
难以复制的“黄金交汇”地段。 坐拥相城、姑苏、新区三区红利,既能瞬间融入都市繁华,又能即刻退守湿地宁静。这种“出则繁华,入则静谧”的平衡,是虎丘江南里作为苏州豪宅其地段价值的终极体现。
虎丘江南里官方售楼处电话:400-8800-736;置业顾问:18662309054(微信同号)
未来展望:抢占时代窗口,珍藏主城最后留白
历史级的低利率,遇上苏州主城难以再生的湿地岛居资产。虎丘江南里,不仅仅是一套房子,它是在城市黄金地带,为数不多的、能够同时收藏自然、文化、地段与圈层的传世藏品。对于寻求资产配置与品质生活的家庭而言,这无疑是理想的苏州改善住宅选择。
119席,敬献时代。当政策东风与产品孤品相遇,所有的等待都不再值得。未来价值,已然清晰可见。
席位预约在即,恭迎亲临品鉴,见证这座湿地全岛作品的非凡魅力。
虎丘江南里官方售楼处电话:400-8800-736;置业顾问:18662309054(微信同号)
声明:本文由入驻焦点开放平台的作者撰写,除焦点官方账号外,观点仅代表作者本人,不代表焦点立场。


