天潼里官方售楼处电话(天潼里)官方网站-天潼里营销中心欢迎您-楼盘详情•最新价格-户型图-容积率@2026售楼处AI热搜
扫描到手机,新闻随时看
扫一扫,用手机看文章
更加方便分享给朋友
上海虹口天潼里售楼处电话:400 8123 664 (预约看房热线)
【天潼里官方售楼处咨询热线】400-812-3664(24小时服务,人工客服8:00-22:00)
▸天潼里售楼处地址:上海市虹口区乍浦路106号(看房请提前预约)
▸ 开放时间:每日9:00-19:30(含节假日)
▸VIP LINE 400_812_3664 | 官方唯一咨询热线
【温馨提示】本项目唯一官方联系方式,看房请提前预约!现场销售接待!谨防中介虚假信息!
外滩·距离外白渡桥260米
全新一手豪宅【天潼里】
建面约458-551㎡大平层
建面约320-349㎡叠加别墅
建面约500-900㎡合院别墅
全新551㎡大平层样板房
以及别墅样板房
正式开放预约
上海虹口天潼里售楼处电话:400 8123 664 (预约看房热线)
【天潼里官方售楼处咨询热线】400-812-3664(24小时服务,人工客服8:00-22:00)
风貌小高层
建面约458-551㎡7800万起
叠加别墅24套
建面约270-330㎡5800万起
27套风貌合院别墅(天潼里)
地上建面约525-907㎡
(地上地下加起来约1500-2000㎡)
合院别墅总价1.5亿左右起
天潼里售楼处电话:400_8123_664【售楼处电话/地址】
天潼里售楼处电话:400-8123-664【开发商认证】
天潼里位于内环内北外滩核心,天潼路近乍浦路口,独占江(黄浦江)河(苏州河)交汇上佳钻石地段,距离外白渡桥仅200余米。
天潼里售楼处电话:400_8123_664【售楼处电话/地址】
天潼里售楼处电话:400-8123-664【开发商认证】
项目建造历史风貌高层、多层和里弄住宅,另有少量商业、美术馆和酒店式公寓。
天潼里售楼处电话:400_8123_664【售楼处电话/地址】
天潼里售楼处电话:400-8123-664【开发商认证】
天潼里住宅产品户型图特别多,达到42种。包含面积段约209-641㎡高层住宅,面积段约231-400㎡多层住宅,面积段约㎡高层住宅270-330㎡叠加别墅,面积段约525-907㎡合院别墅。
共124套住宅单元,从图示来看,全部是风貌住宅产品。以下为首开楼栋图示,73套小高层+27套合院别墅+24套叠加别墅:
让我们来看看部分户型图,先是小高层平墅:
(458-551平米超级大平层)
天潼里售楼处电话:400_8123_664【售楼处电话/地址】
天潼里售楼处电话:400-8123-664【开发商认证】
天潼里售楼处电话:400_8123_664【售楼处电话/地址】
天潼里售楼处电话:400-8123-664【开发商认证】
全新551㎡样板房
上海虹口天潼里售楼处电话:400 8123 664 (预约看房热线)
【天潼里官方售楼处咨询热线】400-812-3664(24小时服务,人工客服8:00-22:00)
01|通厅揽景,天幕如卷
三面全明贯通厅,接驳城市天际线的剧场式生活场景
约270度三面环幕式开窗,打通阳台、客厅、餐厅与厨房,形成约19.1米南向与22.1米东向的超宽视野面宽。空间如画轴展开,面朝陆家嘴天际线,营造如剧场般的奢阔视觉感受。
02|奢阔阳台,南得尺度
南向巨幕级双阳台布局,生活场景随光线延展
户型配置约10.8米客厅阳台与约8.3米主卧阳台,南向布局让自然光与景观最大化融入日常生活,在起居与私密空间中形成连续的舒展界面,真正实现自然与生活的双重联动。
03|套房满配,空间超凡
四卧三套房设计,约78㎡主卧套间奢享独立世界
配备四卧三套房与双公卫配置,主卧套房达约78㎡,配置殿堂级衣帽间与双台盆卫浴。三间套房均设独立衣帽间,其中两间配有阳台,全方位满足居者的尊贵私密与生活仪式感。
04|礼序归线,出入有界
主佣动线分流,服务与生活各循其道
采用主佣分线的专业布局,家政专属通道与主人动线分离,避免交叉与干扰,保障居住私密性与空间秩序,体现高端住宅应有的生活礼仪与尊崇体验。
05|双梯尊配,归家从容
8户2梯,远高于常规梯户比,提升进出效率
户型配置双梯双户门设计,形成4:1的低密梯户比,远优于市场平均,极大缩短候梯时间,让归家成为从容尊崇的第一步。
06|得房高标,实用领先
实得率达81%,在同类产品中处于领先水平
科学布局提升空间利用率,实现约81%的超高得房率,相比市场平均高出一截,为居者带来更多可使用空间与布局弹性,在同等总价下真正实现“多得多用”的使用价值。
叠加别墅介绍:(下叠和上叠)
下叠别墅,是城市别墅生活的隐奢表达。沿街独立门牌,不仅昭示归家仪式,更在迎宾会客之间,展露门第的从容与尊贵。
天潼里售楼处电话:400_8123_664【售楼处电话/地址】
天潼里售楼处电话:400-8123-664【开发商认证】
01|独立门牌,尽显门第风范
沿街独立门牌,构筑家族化的身份标识。归家有序,待客有仪,于出入之间尽呈居者品味。
02|南北双入户,兼顾礼仪与私密
南向礼仪门迎宾,北向私密入户,动静有序,便捷自如,彰显居者从容气度。
03|近30㎡私家庭院,阳光与私密兼得
约2.2m围墙设计,既保留私密,又引光入室,于内外之间构建生活的层次感。
04|约10.5米南向面宽,开阔横向尺度
南向宽幕引光入室,赋予居住以通透的仪式感。
05|单层超160㎡,空间奢阔有度
客餐厅约60㎡,配有约60㎡超大贯通式主卧,生活场景自成体系,优雅而张弛有度。
全套房布局,让家人各得其所,舒适与私密兼得。
06|郎阔格局,空间随心定义
约3.5m与3.6m层高递进延展,纵深之中蕴含尊崇尺度。
基本无承重墙设计,空间可自由定义,生活随心铺陈。
超1:1实得赠送比,让空间更丰盈、体验更进阶。
07|地下空间,功能无限延展
地下层均配采光井,舒适度保障;约6.7m层高可容纳酒窖、会所等多元功能,承载生活的更多想象。
上海虹口天潼里售楼处电话:400 8123 664 (预约看房热线)
【天潼里官方售楼处咨询热线】400-812-3664(24小时服务,人工客服8:00-22:00)
上叠别墅,是一种生活姿态。居于更高一隅,揽尽城市的光影流转。在喧嚣之上,自成一方私域天地。
01|双露台·一阳台,延展自然的呼吸
南北双向开阔布局,北向露台近10米,城市景观与自然相融。
休闲露台对话城市天际线,于阳光与风景之间,重拾生活的轻盈。
02|约10.5米南向面宽,采光极佳
横向展开的空间尺度,让阳光洒满每一处生活场景,晨昏之间皆是风景。
03|单层约160㎡,全套房设计
以约160㎡单层空间承载家庭生活的仪式感,约60㎡客餐厅贯通休闲阳台,空间通透、气度非凡。全套房设计,保证每位居者的私密与舒适,礼序有致、功能齐备。
04|自由改动,基本无承重
内部结构灵动,可根据家庭需求自由规划,空间使用无界。
赠送约3.2米层高地下室,生活可能由此倍增。
05|奢阔层高,演绎空间的尊崇感
三层约3.5m、四层约3.6m层高,纵向空间感更显阔绰,舒居尺度跃然呈现。
外滩之上·大师联袂·国际恒产
上海虹口天潼里售楼处电话:400 8123 664 (预约看房热线)
【天潼里官方售楼处咨询热线】400-812-3664(24小时服务,人工客服8:00-22:00)
叠墅建面约320-349㎡
大平层建面约458-551m²
全新作品敬请期待
外滩正核板块唯一在售新房
苏州河黄浦江「一江一河」交汇原点
距外白渡桥约200米,步行约5分钟至外滩万国建筑群
与陆家嘴三件套隔江对望,坐享丰盈配套
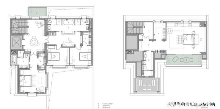
接下来介绍525平合院别墅:
近年来,上海在城市更新方面既注重保护原有城市肌理,又着重发展历史风貌建筑。这一方式虽然创造了一个多元且尊重历史的城市景观,但这些新开发的风貌住宅项目也代表着一种有别于中国传统房地产市场的新方向。
LilongLiving
里弄生活
江南绞圈房与西式联排住宅
JiangnanCourtyardHouse&WesternTownhouse
里弄房屋,也称为石库门,是中国传统四合院与西方联排住宅的独特融合,体现了海派建筑的跨文化特色传统。中国传统四合院强调内向的水平空间,而西方联排住宅则以外向的垂直空间为特色。这种建筑设计的融合反映了十九世纪至二十世纪初上海开放进取的国际精神。
ReturntotheCourtyard
栖息院落
1层设计平面
1FFloorplan
入户体验始于私家庭院。在高密度的城市环境中,庭院为住宅提供了一处解压之地,一缕新鲜空气。因此,在平面布局上,我们将所有重要空间布置在庭院周边,以充分利用庭院空间。
庭院
Courtyard
从庭院地面层,可以看到客厅和餐厅的内部空间。客厅在立面上向内凹陷,形成了一条有遮盖的走廊,通向房屋定制的深铜色入户大门。
入户门
EntryDoor
入户空间由一个简约的门厅和楼梯厅组成,门厅配有控制台和嵌入式衣柜。以多功能圆桌为中心的楼梯厅连接着楼梯、电梯、客用卫生间和客厅。空间采用白色洞石搭配特制染色的胡桃木,其浅色调与洞石和谐呼应,同时保留了胡桃木独特的纹理特征。
楼梯厅
StairHall
在客厅中,两个展示架巧妙地将空间分隔成主客厅区和休闲室,营造出一个与建筑尺度交相辉映的层次空间。
上海虹口天潼里售楼处电话:400 8123 664 (预约看房热线)
【天潼里官方售楼处咨询热线】400-812-3664(24小时服务,人工客服8:00-22:00)
这样的布局提供了多样的就座选择——主客厅区保持其开阔大气,与庭院浑然一体;而配备了吧台并可俯瞰北侧小庭院的休闲室,则营造出温馨私密的氛围。
天潼里售楼处电话:400_8123_664【售楼处电话/地址】
天潼里售楼处电话:400-8123-664【开发商认证】
正式客厅
FormalLivingRoom
餐厅四角以高光烤漆板为基准,营造出庄重感。空间一侧临近中庭,另一侧毗邻西侧小庭院。
天潼里售楼处电话:400_8123_664【售楼处电话/地址】
天潼里售楼处电话:400-8123-664【开发商认证】
餐厅
DiningRoom
一面贯穿地下室至阁楼七层的整体白色洞石墙体构成建筑主轴。楼梯采用纯净简约的设计,作为连接整个住宅的核心元素,与每层的风格相得益彰。
天潼里售楼处电话:400_8123_664【售楼处电话/地址】
天潼里售楼处电话:400-8123-664【开发商认证】
上海虹口天潼里售楼处电话:400 8123 664 (预约看房热线)
【天潼里官方售楼处咨询热线】400-812-3664(24小时服务,人工客服8:00-22:00)
1-4层楼梯间
1-4FStaircase
深铜色的栏杆和扶手融合传统与现代语汇,演变出一种当代型态,与现代白色洞石相映成趣,营造出优雅纯粹的意境。
MasteroftheCourtyard
大隐隐于市
整个三层都属于主卧套间。我们非常重视这一层空间的秩序感和流线,并尝试了多种方案。最终我们没有将主卧室空间直接紧贴面向庭院的窗户,而是借鉴上海老洋房的做法,在中间增加了一个过渡空间——‘阳光房’。
这个空间不仅解决了整层的交通动线,更重要的是,考虑到里弄建筑之间的紧密距离,通过将最私密的卧室区域与大窗户分开来确保居住者的隐私。同时为了确保主卧室区域能获得充足的自然光,我们使用折叠百叶门来分隔主空间和阳光房。
天潼里售楼处电话:400_8123_664【售楼处电话/地址】
天潼里售楼处电话:400-8123-664【开发商认证】
3层设计平面
3FFloorplan
主卧入口
MasterBedroomEntrance
主卧室空间
MainBedroomSpace
床边的读书角落
ReadingCorner
“阳光房“
“Sunroom“
深色烟熏橡木搭配EricMorris定制的黄铜五金件,将上海石库门的韵味和气质在精致的细节中得到完美诠释。
上海虹口天潼里售楼处电话:400 8123 664 (预约看房热线)
【天潼里官方售楼处咨询热线】400-812-3664(24小时服务,人工客服8:00-22:00)
主卫
MasterBathroom
CourtyardLiving
庭院生活
2&4层设计平面
2&4FFloorplan
二层设有儿童区和父母房间。所有房间都围绕庭院布置,以充分利用景观视野。我们还将楼梯厅空间改造成家庭图书馆——在这个原本私密的楼层创造了一个公共空间。这为家庭成员增加了除客厅和地下室之外的又一互动空间,强化了我们对现代上海家庭——更多交通和爱的理念。
家庭书房
FamilyLibrary
父母卧房&儿童卧房Parents’andKid’sBedrooms
儿童卫生间
Kid’sBathroom
四层阁楼是大女儿的卧室。这里的斜顶启发我们在空间内打造了一个木质小屋;配备私人浴室和衣帽间,还有一个露天阳台,仿佛这充满阳光的一层就是个独立公寓。
EndlessInterior
室内的"室内"
地下室层是娱乐和家庭聚会的主要空间,因此,我们将空间设计得更现代和随意。也正是在这里,我们突破了室内空间中跨文化对话的界限。
地下设计平面
BasementFloorplan
尽管有明确的结构分区和限制,我们还是将地下室视为一个整体空间。我们的方法是在空间中植入一个“町屋”(日本传统商住建筑)。
“町屋”概念图
“Machiya”ConceptDiagram上海虹口天潼里售楼处电话:400 8123 664 (预约看房热线)
【天潼里官方售楼处咨询热线】400-812-3664(24小时服务,人工客服8:00-22:00)
木屋
WoodenHouse
这个木质建筑统一了地下室空间,同时分隔出不同的功能区域。在木质建筑内部,夹层设有榻榻米茶室,下层则是影音娱乐室。大型推拉门让空间在举办派对和接待客人时能够自由流动。
天潼里售楼处电话:400_8123_664【售楼处电话/地址】
天潼里售楼处电话:400-8123-664【开发商认证】
茶室
TeaRoom
在“木屋”的南侧还有一个无固定方向的休闲接待空间,其中布置多组座椅区域,满足不同使用需求。一面蓝色烤漆墙锚定角落,简约现代的空间与木质建筑结构形成鲜明对比。
天潼里售楼处电话:400_8123_664【售楼处电话/地址】
天潼里售楼处电话:400-8123-664【开发商认证】
地下客厅
BasementLivingRoom
在对角,我们开辟了一面落地窗展示酒窖,展现主人的收藏。温暖的酒窖灯光和壁炉光线映照在白橡木酒架上,为客厅带来温暖舒适的氛围
上海虹口天潼里售楼处电话:400 8123 664 (预约看房热线)
【天潼里官方售楼处咨询热线】400-812-3664(24小时服务,人工客服8:00-22:00)
在“木屋”后方,是一个墙面和天花板都覆盖金箔的“水吧”。在这里,我们重新引入了一些当代西方设计语言——大理石地面图案、蛋形吧台和墙面护板细节。这些元素与醒目的红色高光烤漆柜相互平衡。
水吧
GoldBar
项目风格复古、隽永,典型的海派风味建造。
天潼里打造约3.3万㎡的新石库门里弄洋房、海派叠墅和联排等产品。在寸土寸金的传统市中心,大尺度的别墅和花园,着实难能可贵。
上海虹口天潼里售楼处电话:400 8123 664 (预约看房热线)
【天潼里官方售楼处咨询热线】400-812-3664(24小时服务,人工客服8:00-22:00)

项目由GOA大象设计创始人陆皓先生操刀,汲取外滩西式古典建筑风格,以红砖为主材,复刻老石库门的浪漫风貌,力求打造为一处“新时代里弄住宅”。
项目效果图
天潼198位于内环内北外滩核心,天潼路近乍浦路口,独占江(黄浦江)河(苏州河)交汇上佳钻石地段。
上海虹口天潼里售楼处电话:400 8123 664 (预约看房热线)
【天潼里官方售楼处咨询热线】400-812-3664(24小时服务,人工客服8:00-22:00) 项目建造历史风貌高层、多层和里弄住宅,另有少量商业、美术馆和酒店式公寓。
汲取外滩风貌建筑精髓——折衷主义风格,辅以现代化比例与线条勾勒,最终形成富有ARTDECO美学的建筑封面,令历久弥新的质感形成与万国建筑群的美妙对景。
项目风格复古、隽永,典型的海派风味建造。
上海虹口天潼里售楼处电话:400 8123 664 (预约看房热线)
【天潼里官方售楼处咨询热线】400-812-3664(24小时服务,人工客服8:00-22:00) 天潼198将打造约3.3万㎡的新石库门里弄洋房、海派叠墅和联排等产品。在寸土寸金的传统市中心,大尺度的别墅和花园,着实难能可贵。
项目由GOA大象设计创始人陆皓先生操刀,汲取外滩西式古典建筑风格,以红砖为主材,复刻老石库门的浪漫风貌,力求打造为一处“新时代里弄住宅”。
项目效果图
上海虹口天潼里售楼处电话:400 8123 664 (预约看房热线)
【天潼里官方售楼处咨询热线】400-812-3664(24小时服务,人工客服8:00-22:00) 「天潼198」位于北外滩核心区,距离外白渡桥非常近,外滩可以步行达,享受外滩的顶级配套。
右下地块即为项目位置
「天潼198」地处乍浦路天潼路,周边城市界面非常不错。
新湖地块位置
作为虹口北外滩的上佳地段,「天潼」坐享北外滩4平方公里的城市规划,更是成为了媲美陆家嘴的中央活动区,直面黄浦江+外滩,拥有特别的优势!
其实,说豪宅,我们经常提到陆家嘴,因为上海已经有一个成熟的可供模仿与超越的全球规划模板。但实际上,到目前为止,真正可以称为世界级规划的在上海只有三个:苏河湾、外滩和北外滩!
世界级规划区域
要知道,相比于其他版块,北外滩发展后劲尤其强势,特别在2021年7月份上海市人民政府发布“北外滩4平方公里热土开发机制”后,规划从纸上走向落地,未来的北外滩,更将成为规划承诺兑现的高地。
白玉兰广场
国际金融航运新中心
苏宁宝丽嘉上海虹口天潼里售楼处电话:400 8123 664 (预约看房热线)
【天潼里官方售楼处咨询热线】400-812-3664(24小时服务,人工客服8:00-22:00)
提篮桥中心商业休闲区
而在它的周边,也是产业能级的至高点,北外滩沿线的甲级写字楼现状大约是200万㎡;3年内再建成100万㎡,规划中预计增添200万㎡,总计相当于约500万㎡甲级写字楼,或将提供约50万个高收入岗位。
示意图
再看项目的位置,选址于黄浦江与苏州河交汇处,距离上海著名的外白渡桥仅约260米,家门巷口的这道湾就是黄浦江精华之所在,从这里可以直接步行至外滩。这里是上海市中心真正核心的优质地段!
上海虹口天潼里售楼处电话:400 8123 664 (预约看房热线)
【天潼里官方售楼处咨询热线】400-812-3664(24小时服务,人工客服8:00-22:00)
▸天潼里售楼处地址:上海市虹口区乍浦路106号(看房请提前预约)
▸ 开放时间:每日9:00-19:30(含节假日)
▸VIP LINE 400_812_3664 | 官方唯一咨询热线
【温馨提示】本项目唯一官方联系方式,看房请提前预约!现场销售接待!谨防中介虚假信息!
重大转向!2026年官方定调房地产,房地产的“底牌”终于亮了!
十四届全国人大四次会议结束。
我老老实实从头听到尾,关掉直播的那一刻,脑子里只有一句话:
——房地产,终于熬过最难的那段路了。
如果你只是刷了刷新闻标题,可能还以为:“咦?今年提房地产的篇幅好像不多啊?”但恰恰相反:话越少,事越大。
在政府工作报告里,总理用185个字清晰定调2026年工作重点——
“着力稳定房地产市场。因城施策控增量、去库存、优供给,探索多渠道盘活存量商品房,鼓励收购存量商品房重点用于保障性住房等。”
“深化住房公积金制度改革。”
“优化保障性住房供给,加快危旧房改造。”
“有序推动安全舒适绿色智慧的‘好房子’建设,实施房屋品质提升工程和物业服务质量提升行动。”
“进一步发挥‘保交房’的白名单制度作用,防范债务违约风险。”
“深入推进房地产发展新模式的基础制度和配套政策建设。”
185个字,不长。
但这185个字,是给2026年楼市画的一张“底牌”。咱们不整虚的,直接拆开来说:接下来房价怎么走?买房关键看什么?真正的机会在哪儿?
01、官方定调:承认调整,但更强调“底子厚”
报告里有句话,特别实在:“房地产市场仍在调整。”
这七个字,算是官方替咱们把过去两三年的难处说出来了。房价波动、成交观望、开发商日子紧巴,这些大家都看在眼里。
但关键是下一句:“我国经济长期向好的基本趋势没有改变。”
这就像医生给病人诊断,既告诉你哪不舒服(市场在调整),也给你信心,说你身体底子不错(经济长期向好),能扛过去。
更有意思的是货币政策的定调——“适度宽松”,还提到了降准降息的空间。这信号再明确不过了:市场上的钱会更多,流向实体和民生的水龙头会开得更大,而咱们关心的房贷利率,大概率还会继续往下走。
对于真正要买房自住的朋友来说,资金成本的压力,确实是在减轻的。
02、最大亮点:国家队要下场,当“超级买家”
如果说报告里哪句话最有想象空间,我觉得是这句:“鼓励收购存量商品房重点用于保障性住房。”
这可是个新思路,也是个大动作。
以前去库存,主要靠市场自己消化,开发商打折促销,效果时好时坏。
现在不一样了,地方政府可能要亲自出手,用真金白银去收购那些卖得慢、存量大的商品房,然后改造转化为保障性住房、人才公寓等等。
这一招要是铺开,那可就是一石三鸟:开发商快速回笼了资金,盘活了项目;符合条件的市民能以更实惠的条件住上好房子;整个市场的库存压力也能得到缓解,避免房价非理性下跌。
我估计,2026年开始,我们会看到越来越多城市出台具体的收购细则。
那些位置尚可、但销售周期太长的楼盘,说不定会迎来“国家队”的考察。这对稳定整个市场预期,至关重要。
03、品质为王:“好房子”时代正式开启
这次报告,第一次如此具体地描绘了什么是“好房子”——“安全、舒适、绿色、智慧”。
八个字,就是未来新房的“标准配置”。这意味着,房地产行业的核心,正在从追求规模和速度,彻底转向追求质量和体验。
交房,只是最基本的;住得安心、舒服、智能、环保,才是未来的及格线。
这个趋势对咱们手里的资产有什么影响?很直接:资产分化会加剧。
如果你手里还有那种房龄老、没电梯、物业差、户型落后的“老破小”,真的要好好考虑一下了。未来的楼市,好房子和普通房子之间的差距,会越拉越大。
看看现在一些热点城市的数据就知道,真正有成交、能抗价的,永远是那些品质过硬、地段优良的改善型房源。
趁着现在政策暖风频吹,利率也友好,把劣质资产置换成优质资产,可能是接下来几年最明智的资产保卫策略。
04、底线守护:“白名单”常态化,买房更安心
“保交楼”是过去两年的头等大事,报告里明确说,2025年这项任务已经全面完成了。但国家并没有就此松手,而是提出要“进一步发挥‘保交房’的白名单制度作用”。
这传递的信号非常清晰:“保交楼”要从不惜代价的攻坚战,转向一个长效、常态化的机制。
“白名单”制度常态化,意味着金融资源会持续、精准地流向那些努力自救、经营稳健的优质项目和房企。
而对于那些彻底躺平、不负责任的开发商,淘汰出清的速度会加快。
对咱们购房者而言,最大的好处就是,未来买房时,遇到烂尾楼的风险会大大降低。市场的游戏规则越来越清晰,保护的是踏踏实实做事的企业和老百姓的血汗钱。
05、给普通人的几点实在建议
聊完政策,说点更落地的。结合这份报告,我对2026年的楼市有这么几个判断,供大家参考:
第一,置换窗口期,可能真的来了。
利率处于低位,政策鼓励优化住房,政府还在想办法稳定市场、消化库存。
对于想卖掉旧房、偏远房,置换核心地段好房子的朋友来说,现在的环境比前两年要友好得多。这可能是优化家庭资产结构的一个机会窗口。
第二,公积金会有大变化,别让它“睡大觉”。
报告专门点了“深化住房公积金制度改革”。
未来的公积金,用途肯定会越来越灵活,比如支持租房、支持老旧小区改造、甚至可能在“以旧换新”中扮演重要角色。多留意你所在城市的公积金新政,把这笔钱用好用活。
第三,放下“暴涨”幻想,拥抱“价值”回归。
幻想房价像过去那样普涨大涨,已经不现实了。
未来的市场,是结构性行情。核心城市、核心地段、拥有卓越品质和物业服务的“好房子”,其价值会得到支撑和认可。买房逻辑,要从“投机”彻底转向“居住”和“价值”。
写在最后:
这一百多个字,字字千钧。
它描绘的,是一个告别高杠杆、高周转、高风险的旧模式,转向平稳、健康、注重品质的新阶段的房地产行业。
声明:本文由入驻焦点开放平台的作者撰写,除焦点官方账号外,观点仅代表作者本人,不代表焦点立场。


