上润璟庭!注定被抢!刚刚!狮山核心改善神盘案名正式曝光
扫描到手机,新闻随时看
扫一扫,用手机看文章
更加方便分享给朋友
狮山再添改善住宅!
刚刚狮山腾聪63号地块案名曝光
就叫:上润璟庭!
根据规划出炉
拟建11栋洋房+小高+高层产品
楼面积仅13030元/平
想在狮山改善置业的提前关注起来
咨询热线:18662309054
近日,狮山63号地块案名正式曝光,就叫:上润璟庭!
从案名来看,很有苏高新特色,与隔壁上华璟庭仅一字之差。
根据规划!项目拟打造11栋高层+洋房+小高产品,同时曝光高层户型。
地块建设单位为苏州新晨捷置地有限公司,其中腾聪置业占股51%,苏高新占股49%。

苏地2023-WG-63号地块位于苏州高新区狮山商务创新区长江路东、何山路北。是2023年11月9日,腾聪置业以底价11.9亿竞得,成交楼面价13030元/平。

该地块共分为A、B区两个部分。其中A区为住宅,B区为商服用地。A、B区总用地面积41682.9㎡;A、B区总建筑面积132845.26㎡;A、B区计容总建筑面积:91319.2㎡。
A、B区容积率2.19,A、B区建筑密度21%,A区绿地率30%。
根据规划,项目拟打造11栋洋房、小高、高层产品,共376户。
8F洋房:1#、2#;
10F洋房:5#、7#
15F小高层:6#、
17F小高层:3#、10#;
25F高层:4#、8#、9#、11#;
|鸟瞰图
从总平图来看,每栋楼之间的间距大,采光充足,部分楼栋可观河景。除了3#楼,其他楼幢一层均为架空层。

|总平图
项目同步公示了高层的立面图,高层立面为简约风,南向大面玻璃,标准层高3.1m。

|外立面效果图
根据土拍要求:63号地块户型不小于140㎡,装标不低于2000元/㎡,不高于4000元/㎡。

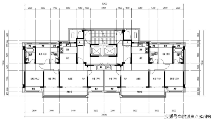
项目此次公示了25F高层户型标准层示意图,两梯两户设计。
25F高层标准层示意图

四开间朝南,客厅开间约5.4m,空间足够再容纳一个开放式书房或者作为家庭活动区。
南向双联大阳台,开间为8.4米,主卧套房设计,开间约3.6m,带有独立的卫生间。
从高层户型来看,全屋飘窗设计,赠送面积多,空间合理布局,再加上项目精装交付,起步140㎡,全线大户型,想要在狮山入手的重点关注!
项目位于狮山板块,北面是枫津河,东面也是河流,隔河相望的是枫舟苑,南面是何山路,东面是长江路和轨交3号线,周边配套齐全。
交通上:靠近3号线何山站,还有长江路、何山路,出行便利。
商业上:距离绿宝广场,港龙城都不远,满足日常购物所需。
教育上:周边有枫桥中心小学、狮山实验小学、苏州实验中学、高新区第二中学等优质教育资源。
医疗方面,新区人民医院也在附近。
而且何山公园就在家门口,休闲娱乐近在咫尺,非常方便。
整体来说,项目周边商业氛围浓厚,配套充足,交通便利。

区位图
周边新房
板块内目前在售的新房有建发缦云华庭、建发朗云、览月阁,均价在3.6-4.8万/㎡之间。
板块内待售洋房中海建发禧宸,将于本月中旬公开建面约125/143㎡两大样板间。
周边二手房
周边二手房价格最高的荷澜庭,以洋房、别墅为主,均价约6.9w/㎡。

根据周边二手房和新房来看,项目虽然是商住混合用地,但是成交楼面价对比周边具有优势,未来入市价格或许会有惊喜。
总体来看,项目周边居住氛围浓厚,优质教育资源环伺,还自带商业,日常生活很便利。
咨询热线:18662309054
声明:本文由入驻焦点开放平台的作者撰写,除焦点官方账号外,观点仅代表作者本人,不代表焦点立场。


