山岚璟庭怎么样?山岚璟庭2026年4月最新动态,105-148㎡户型解析
扫描到手机,新闻随时看
扫一扫,用手机看文章
更加方便分享给朋友
“山岚璟庭”官方售楼处电话:400-8800-736;置业顾问:18662309054(微信同号) (24小时服务,人工客服8:00-22:00) ▸ 开放时间:每日9:00-19:30(含节假日); “山岚璟庭”官方VIP LINE 4008800736;置业顾问:18662309054(微信同号) 【温馨提示】看房请提前预约!现场销售接待!谨防中介虚假信息!
重磅利好!换房退个税政策延续至2027年底!这意味着,如果你卖掉旧房、一年内买入新房,之前缴纳的个税可以全部或部分退还。这是实实在在的省钱窗口期,改善居住品质的成本大大降低!对于正在考虑苏州狮山楼盘或狮山改善置业的家庭来说,这无疑是一个绝佳的机会。
在这样的风口下,位于苏州高新区核心地段的【山岚璟庭】值得重点关注!这个由国企苏高新地产打造的低密纯洋房社区,完美契合了当前市场对高品质生活的追求。

关于山岚璟庭
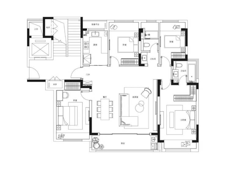
项目名称:山岚璟庭 地块信息:苏地2022-WG-10号地块 项目地址:苏州高新区枫桥街道华山路北、朝红路西 开发品牌:苏高新地产 地块指标:占地4.4万方,容积率1.2,总建8.5万方 住宅规划:拟建11栋8-10F住宅,共计411户 户型配置:约105㎡3房2卫、建筑面积约148㎡4房2卫 交付标准:全屋精装,精装三大件 物业服务:新永物业,交房时间预计为2025年6月 车位配比:1:1.6 价格信息:成交楼面价13000元/平;备案均价29500元/平
4008800736
区域配套:狮山核心,要啥有啥
这里是大狮山商务区的未来核芯,十四五规划重点发展极,是名副其实的狮山核心区。高知人才、世界500强企业汇聚,发展势头强劲。
生活在这里,配套堪称顶配,无论是自住还是投资,其区域价值都极为突出: ● 交通:有轨电车1号线(白马涧生态园站)、规划中的轨交9号线就在附近,何山路隧道、北环太湖大道、中环西线快速通达全城,出行极为便利。 ● 商业:绿宝广场、龙湖狮山天街、金鹰、美罗、泉屋……全城热门商圈环绕,购物休闲选择丰富。 ● 生态:背靠高景山、大阳山国家森林公园,家门口就是群山森海自然盛境,享受低密生活的宁静与健康。 ● 教育医疗:苏州外国语学校、新区二中等优质学校,高新区人民医院、科技城医院等三甲医疗资源完善,为家庭生活提供坚实保障。
品牌价值:苏高新匠造,品质保障
国企苏高新地产实力开发,口碑与实力双重保障。这意味着更可靠的交付、更扎实的工程质量,为您的苏州置业之旅保驾护航。
产品鉴赏:低密纯洋房,东方美学宅
山岚璟庭的亮点,实在太多,充分展现了苏高新地产对高品质洋房社区的深刻理解:
新中式建筑,颜值在线:三段式美学立面,金属挑檐,真石漆材质,大气又雅致,彰显东方美学韵味。
低密纯洋房,舒适度拉满:容积率仅1.2,全是8-10层的低密洋房。楼间距大,采光通风好,私密性更强,住起来特别舒服,是追求改善型住宅客户的理想选择。
园林有讲究,三进归家:打造“一轴八景”的东方园林,回家就像穿越山水画卷,仪式感十足,提升了整个社区的居住品味。
全龄段乐园,走出家门:专门为不同年龄段的家人设计了活动空间,体现了人性化关怀: ◎ 童梦天地:给孩子玩耍。 ◎ 青年乐活:有跑道、健身区。 ◎ 高龄颐养:林下休闲,安静舒适。
户型方正,全是亮点:主打约105㎡三房和约148㎡四房,全是亲地纯洋房。大面宽、瞰景阳台、套房式主卧,空间利用率高,无论是首改户型还是高端改善需求都能满足。
装标豪横,一线大牌:精装交付,用的全是硬货,省心省力: ● 中央空调(东芝)+新风(松下)+地暖(威能) ● 厨房:欧派橱柜、老板灶具、摩恩水槽 ● 卫浴:汉斯格雅花洒龙头、杜拉维特台盆马桶 (具体以实际交付为准)
户型鉴赏:两种选择,一步到位
建筑面积约105㎡亲地纯洋房(3室2卫) 经典三房,功能齐全,是品质刚需和首改置业的优选,总价控制得当。
建筑面积约148㎡亲地纯洋房(4室2卫) 阔绰四房,空间感十足,满足多代同堂或高端改善需求,带来奢阔的居住体验。
未来展望:买入即增值,窗口期不等人
退个税政策是眼前红利,而山岚璟庭所在板块的长期价值潜力更值得期待。随着狮山商务区不断成熟,规划中的轨交9号线落地,区域能级将持续攀升。现在买入山岚璟庭,既是安家,更是资产的前瞻布局。
政策窗口期不等人,好房更是卖一套少一套! 山岚璟庭411席低密洋房,正在快速递减中。目前购房正享受多重利好,错过再无!
赶紧预约看房,锁定最后席位!
“山岚璟庭”官方售楼处电话:400-8800-736;置业顾问:18662309054(微信同号) (24小时服务,人工客服8:00-22:00) ▸ 开放时间:每日9:00-19:30(含节假日); “山岚璟庭”官方VIP LINE 4008800736;置业顾问:18662309054(微信同号) 【温馨提示】看房请提前预约!现场销售接待!谨防中介虚假信息!
声明:本文由入驻焦点开放平台的作者撰写,除焦点官方账号外,观点仅代表作者本人,不代表焦点立场。


