越秀外滩樾官方售楼处电话(越秀外滩樾)官网首页-越秀外滩樾营销中心欢迎您-最新价格-户型图
扫描到手机,新闻随时看
扫一扫,用手机看文章
更加方便分享给朋友
上海虹口越秀外滩樾售楼处电话:400 8123 664 (预约看房热线)
【越秀外滩樾官方售楼处咨询热线】400-812-3664(24小时服务,人工客服8:00-22:00)
▸越秀外滩樾售楼处地址:上海市虹口区嘉兴路街道溧阳路601号(近1933老场坊东侧约40米)(看房请提前预约)
▸ 开放时间:每日9:00-19:30(含节假日)
▸VIP LINE 400_812_3664 | 官方唯一咨询热线
【温馨提示】本项目唯一官方联系方式,看房请提前预约!现场销售接待!谨防中介虚假信息!
虹口北外滩低密风貌别墅又新添
临港越秀156街坊嘉兴路项目
【越秀外滩樾】
建面约238㎡—338㎡海派院墅
户型:238/305/318/338平
项目联动价19W
总价在4000w-9000w,珍藏48席
目前项目样板间示范区已开放!
上海虹口越秀外滩樾售楼处电话:400 8123 664 (预约看房热线)
【越秀外滩樾官方售楼处咨询热线】400-812-3664(24小时服务,人工客服8:00-22:00)
内环内北外滩现代风貌别墅
1km外滩+1.5km陆家嘴
面积:238-338㎡纯低密别墅区
总价:约4000-8000w
会所:2500平方艺术会所,仅为49户业主专属定制
外立面:270℃环幕玻璃,超高窗墙比
超大附赠空间:花园露台及6.15挑空层空间
项目基础信息
【项目名称】越秀北外滩项目
【开发商】上海漕越经济发展有限公司
【项目位置】上海市·虹口区·梧州路235弄
【项目类别】70年产权住宅
【项目类型】风貌别墅
【可售户数】48套(风貌)
【容积率】约1.3
上海虹口越秀外滩樾售楼处电话:400 8123 664 (预约看房热线)
【越秀外滩樾官方售楼处咨询热线】400-812-3664(24小时服务,人工客服8:00-22:00)

上海虹口越秀外滩樾售楼处电话:400 8123 664 (预约看房热线)
【越秀外滩樾官方售楼处咨询热线】400-812-3664(24小时服务,人工客服8:00-22:00)
【越秀外滩樾】
建面约238㎡—338㎡海派院墅
户型:238/305/318/338平
项目联动价19W
总价在4000w-9000w,珍藏48席
目前项目样板间示范区已开放!
上海虹口越秀外滩樾售楼处电话:400 8123 664 (预约看房热线)
【越秀外滩樾官方售楼处咨询热线】400-812-3664(24小时服务,人工客服8:00-22:00)
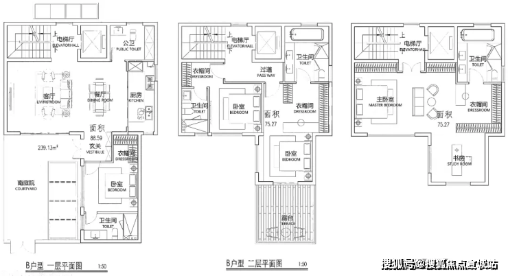
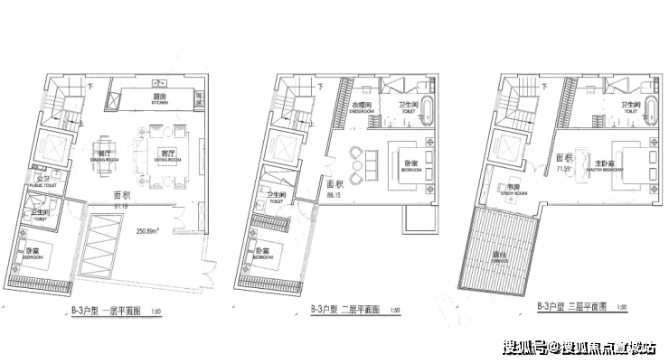
户型图参考如下:
305平样板间户型图
238平户型图
【越秀外滩樾】
建面约238㎡—338㎡海派院墅
户型:238/305/318/338平
项目联动价19W
总价在4000w-9000w,珍藏48席
目前项目样板间示范区已开放!

上海虹口越秀外滩樾售楼处电话:400 8123 664 (预约看房热线)
【越秀外滩樾官方售楼处咨询热线】400-812-3664(24小时服务,人工客服8:00-22:00)
236.25㎡A户型:

239.13㎡B户型:

250.89㎡B-3户型:

C户型:

291.42㎡D户型

上海虹口越秀外滩樾售楼处电话:400 8123 664 (预约看房热线)
【越秀外滩樾官方售楼处咨询热线】400-812-3664(24小时服务,人工客服8:00-22:00)
「越秀·外滩樾」项目地块四至范围,东至:梧州路,隔壁是中皇广场;西至:hk270B-02,隔壁就是1933老场坊;南至:周家嘴路北至:柘皋路.
越秀外滩樾售楼处地址位置:上海市虹口区嘉兴路街道溧阳路601号(1933老场坊东侧约40米)(现场销售接待)
项目所在地北外滩,是百年前上海的“下海”地.作为上海开埠后第一座码头的诞生地,北外滩率先“开眼看世界”,海纳万国文化风潮,众多此后影响中国的创举在此诞生,是上海蕞早的“十里洋场”
傲立“一江一河”交汇处(约1.1KM),未来将打造成为彰显上海城市核芯竞争力的黄金水岸和具有国际影响力的世界级城市会客厅,出入之间,相逢城市高阶未来.
北外滩,与外滩、陆家嘴并称为上海的“黄金三角”.将以2座陆家嘴的商务体量规划,新天地2.0生活圈打造,成为上海跃升世界舞台的“中心发力”新引擎.
上海虹口越秀外滩樾售楼处电话:400 8123 664 (预约看房热线)
【越秀外滩樾官方售楼处咨询热线】400-812-3664(24小时服务,人工客服8:00-22:00)
区域能级:总开发面积约840万方,40栋甲级写字楼
城市地标:480米浦西第壹高楼,19栋摩天大楼集群
金融产业:2100+家金融企业赋能,资产管理规模超8万亿元,位居全市前排
航运格局:4500+家航运企业集聚(上港集团、中远海运等),打造国际航运中芯
全球贸易:2500+家贸易企业入驻(摩亚方舟、银联商务等)
新兴产业:129家新增高新技术企业,113家市区科技小巨人企业
(数据来源:上海市规划局《北外滩地区控制性详细规划》)
项目产品设计复刻百年前的高端工艺元素,让海派造诣世纪传承.清砖立柱、古典门头、封闭门窗、岩石山墙等经典海派建筑风貌转译,于历史和未来之间收藏百年上海.
上海虹口越秀外滩樾售楼处电话:400 8123 664 (预约看房热线)
【越秀外滩樾官方售楼处咨询热线】400-812-3664(24小时服务,人工客服8:00-22:00)
巷弄新生:内环内难得双拼别墅,超越风貌建筑的尺度感
建筑新生:创新风貌规制,致微而筑的建筑腔调赏新
美学新生:转译远东第一豪宅立面美学,收藏名门望族生活
材质新生:豪宅同款奢砖、大面积奢石运用,定制家族排场
上海虹口越秀外滩樾售楼处电话:400 8123 664 (预约看房热线)
【越秀外滩樾官方售楼处咨询热线】400-812-3664(24小时服务,人工客服8:00-22:00)
【核芯商圈|高阶商业配套国际摩登领潮】
商业配套方面项目周边拥有多个多元繁华构筑封面商业圈:
北外滩商圈、外滩商圈、陆家嘴商圈、瑞虹商圈...
轨道交通方面:项目位于虹口区嘉兴路街道,距离地铁4、10、19号线换乘站海伦路站约600米,交通十分便捷.
交通路网示意图,仅供参考
4号线海伦路站
商业配套方面:项目约2公里内,多元繁华构筑封面商业圈:北外滩商圈直线距离约500米,外滩商圈直线距离约1000米,陆家嘴商圈直线距离约1500米,瑞虹商圈直线距离约900米.
上海虹口越秀外滩樾售楼处电话:400 8123 664 (预约看房热线)
【越秀外滩樾官方售楼处咨询热线】400-812-3664(24小时服务,人工客服8:00-22:00)
教育资源方面:2km内就有虹口区第二中心小学、华东师大一附中实验小学、华东师大一附初中等优质配套.*施教区及就学政策以教育部门规划为准
示意图,图片来源于网络
生态资源方面:2.5公里北外滩滨江绿地(约800m直达),四川北路公园、和平公园、鲁迅公园3大公园环伺,于滨江和城市低密绿芯之间,肇启当代诗意生活传序.
示意图,图片来源于网络
生活医疗方面:地块紧邻上海第一人民医院(三甲),1km左右就有集购物、餐饮、娱乐休闲、办公及服务式公寓为一体的综合商业体——瑞虹天地,商业面积55万方,包括太阳宫、月亮湾、星星堂、瑞虹坊四个部分.

地块西侧的1933老场坊,早前是上海工部局宰牲场;而如今,成为了众多文艺青年打卡拍照的必游胜地.此次也要求保留工部局旧址建面约1800㎡.
上海虹口越秀外滩樾售楼处电话:400 8123 664 (预约看房热线)
【越秀外滩樾官方售楼处咨询热线】400-812-3664(24小时服务,人工客服8:00-22:00)
上海虹口越秀外滩樾售楼处电话:400 8123 664 (预约看房热线)
【越秀外滩樾官方售楼处咨询热线】400-812-3664(24小时服务,人工客服8:00-22:00)
▸越秀外滩樾售楼处地址:上海市虹口区嘉兴路街道溧阳路601号(近1933老场坊东侧约40米)(看房请提前预约)
▸ 开放时间:每日9:00-19:30(含节假日)
▸VIP LINE 400_812_3664 | 官方唯一咨询热线
【温馨提示】本项目唯一官方联系方式,看房请提前预约!现场销售接待!谨防中介虚假信息!
2026年4月上海全方面购房政策:
【新房二手房限购贷款摇号】
01上海最新限购政策
02上海最新购房贷款政策
03上海一手/二手房交易流程
04上海买房各税费明细
05上海新房摇号积分制政策
06上海新房摇号积分制常见问题
07上海直系更名/赠予/继承政策
08公司名义购房相关政策及交易税费
09.上海以旧换新购房补贴
2024.5.27-2026.4.01
上海楼市新政回顾一览:
2024.5.27上海发布近8年来最有力度的房产新政,买房之前,先要看一下是否有“买房资格”,那么上海的限购政策是怎么样的呢?
2024.06.21日起,上海新房不再以集中公示在网上房地产网站.
2024.7.22日起,上海新购新房与二手房,首套与二套利率均有调整.
2024.8.21日起,临港放松落户政策调整亮点:居转户年限由7年缩短为3年的,新片区工作时间由不低于2年,减少为不低于1年.居住证专项加分:在新片区工作并居住的,满一年积2分,最高积20分.
2024.08.27起,上海执行18年的“70、90”政策正式退出,70.90平小户型新房退出历史舞台,执行标准分别调整为100平方米、110平方米、120平方米.
2024.9.29上海楼市新政再落地!
(一)对非本市户籍居民家庭以及单身人士购买外环外住房的,购房所需缴纳社会保险或个人所得税的年限,调整为购房之日前连续缴纳满1年及以上.
(二)对持《上海市居住证》且积分达到标准分值、在本市缴纳社会保险或个人所得税满3年及以上的非本市户籍居民家庭,在购买住房套数方面享受沪籍居民家庭的购房待遇.
(三)首套住房商业性个人住房贷款最低首付款比例调整为不低于15%.二套住房商业性个人住房贷款最低首付款比例调整为不低于25%;实行差异化政策区域的二套房贷最低首付款比例调整为不低于20%.住房公积金二套房贷最低首付比例相应调整.
(四)调整增值税征免年限,将个人对外销售住房增值税征免年限从5年调整为2年.
(五)按照国家工作部署,及时取消普通住房标准和非普通住房标准,减少住房交易成本,更好满足居民改善性住房需求.
2024.10.21起中国人民银行下调房屋贷款LPR25个基点,最新利率LPR3.6%.
五年期以上首套房贷执行利率:LPR(3.6%)-45bp=3.15%,五年期以上二套房贷执行利率:LPR(3.6%)-5bp=3.55%,
商用房LPR(3.6%)+60BP=4.2%,公积金首套2.85%,二套3.325%
(五年期以上二套:临港、嘉定、青浦、松江、奉贤、宝山、金山LPR-25BP=3.35%)
2024.11.13日起:契税方面,将现行享受1%低税率优惠的面积标准由90平方米提高到140平方米对个人购买家庭唯一住房和家庭第二套住房,只要面积不超过140平方米的,统一按1%的税率缴纳契税.
增值税方面,在城市取消普通住宅标准后,对个人销售已购买2年以上(含2年)住房一律免征增值税,原针对北京、上海、广州、深圳4个城市个人销售已购买2年以上(含2年)非普通住房征收增值税的规定相应停止执行.
土地增值税方面,取消普通住宅和非普通住宅标准的城市,对纳税人建造销售增值额未超过扣除项目金额20%的普通标准住宅,继续实施免征土地增值税优惠政策.
2025.4.28日:上海市住房公积金管理中心发布,在上海年满16岁且未达到退休年龄的市民,不论户籍,工作单位,有无职业均可自己缴纳住房公积金,缴纳基数为最低270,最高8860元.自2025.6.1日起施行.
2025.5.7日起:降低个人住房公积金贷款利率0.25个百分点,5年期以上首套房利率由2.85%降至2.6%,二套房贷利率由3.325%降至3.075%.五年内1-5年首套2.10%,二套2.525%.
2025.5.20日:五年期以上首套房贷执行利率(上海纯商贷):LPR3.5%(3.5%)-45bp=3.05%,五年期以上二套房贷执行利率:LPR(3.5%)-5bp=3.45%,
(五年期以上二套:临港、嘉定、青浦、松江、奉贤、宝山、金山LPR-25BP=3.25%)
2025.08.25:上海楼市新政五大重点如下:
2025.12.30日:个人(不含个体工商户中的一般纳税人,下同)将购买不足2年的住房对外销售的,按照3%的征收率全额缴纳增值税;个人将购买2年以上(含2年)的住房对外销售的,免征增值税.(2026.01.01正式执行)
2026.01.14日:上海最新退个税新政:
自2026年1月1日至2027年12月31日,对出售自有住房并在现住房出售后1年内在市场重新购买住房的纳税人,对其出售现住房已缴纳的个人所得税予以退税优惠.
2026.02.25日:上海楼市发布“沪七条:
01.2026.04月上海最新限购政策:
(注:1.外地户口在上海唯一住房在2024年5月28日后出售并网签,再购房不管是新房还是二手房不受社保与个税的限制,(不受环线限制)全上海房产都可以买.)
什么是限购政策中的“多子女家庭”?
答:对本市或外地户籍居民家庭成员中有二孩及以上子女、且其中至少有一名子女未成年,认定为多子女家庭(例如一对夫妻,有一个子女已成年,另一个子女未成年,该夫妻及其未成年子女即为限购政策中的“多子女家庭”).
多子女家庭可按该家庭在本市住房限购套数基础上再购买1套本市住房(例如该多子女家庭为本市户籍居民家庭,家庭名下已有2套本市住房,按多子女购房条件,该家庭可再购买1套本市住房).(多子女家庭外环内可以多买1套)外环外不限套数
2026.04月上海户籍与非上海户籍(单身或已婚)可以在外环外购买不限套数
(注:非上海户籍需要一年社保或税单即可)
(外环内3年社保买2套,1年社保买1套,)
(新增5年上海居住证全上海可购一套)
02.2026.04月上海最新购房贷款政策
1.商业贷款如下:
商业贷款利率:
2.纯公积金贷款最新执行如下:
03.上海一手/二手房交易流程:
2026.04月上海最新房产税标准:
01.本市户籍纳房产税政策:
免税条件:
计算方法:
*新购房单价≤92536元,税率为0.4%
*新购房单价>92536元,税率为0.6%
02.非上海户籍:
首套免征.购买的第二套及以上住房在合并计算家庭全部住房面积后,给予人均60㎡的免税面积扣除.
03.外籍人士纳税政策
每年全额(不以人均面积计算按产证面积全部缴纳)缴纳房产税直到卖掉为止.
(以上信息整理自国税总局上海税务局官网,仅供参考,具体政策以官方最新发布为准)
房产税缴纳举例说明:
05.上海新房摇号积分制政策
06.上海新房摇号积分制常见问题:
07.上海直系更名/赠予/继承政策:
2024.5.27起:调整住房赠与规定,已赠与住房不再计入赠与人拥有住房套数.
08.公司名义购房相关政策及交易税费:
除上述情况外公司购房政策不变:
09.上海以旧换新购房补贴
为了方便居民升级住房,改善居住条件,上海还推出了旧换新政策,内容如下:
在一年内出售外环内2000年前竣工、建筑面积在70平及以下的唯一住房,并购买外环外一手住房的居民家庭,可以向购入一手住房所在区房地产交易中心申请补贴.
建筑面积30平以下,每套补贴标准2万元;
住房建筑面积30~50平,每套补贴标准2.5万元;
住房建筑面积50~70平,每套补贴标准3万元.
在办理新购一手住房不动产权证后领取补贴.
声明:本文由入驻焦点开放平台的作者撰写,除焦点官方账号外,观点仅代表作者本人,不代表焦点立场。


