金融街融悦沁庭-苏州吴中太湖新城纯洋房社区-金融街融悦沁庭户型解析-价格-交通-学区
扫描到手机,新闻随时看
扫一扫,用手机看文章
更加方便分享给朋友
好消息!苏州楼市再迎政策东风。根据最新公告,从明年开始,卖旧房买新房,可以享受个人所得税退税优惠。这意味着,改善居住条件不仅更划算,也迎来了更好的时机。当您开始规划“以旧换新”的升级之路时,一个匹配您新生活愿景的家,就显得尤为重要。
此刻,在苏州炙手可热的吴中太湖新城,一个纯粹的洋房社区——金融街融悦沁庭,正以其稀缺的产品形态和醇熟的配套,成为改善家庭的焦点。项目目前主推建面约115-152㎡的纯洋房产品,备受市场关注。
金融街融悦沁庭官方售楼处电话:400-8800-736;置业顾问:18662309054(微信同号),预约看房,专车接送,专享优惠
【一座纯粹的洋房社区】
在遍地高楼的今天,低密、舒适的洋房显得尤为珍贵。金融街融悦沁庭整个社区仅规划7-10层的纯洋房,容积率低至1.6。这意味着更少的住户、更宽敞的楼间距、更亲近自然的居住体验,以及更高的得房率。在吴中太湖新城,这样的纯洋房住区非常稀缺。
【双地铁护航,出行快人一步】
家门口就是“双地铁”口!项目距离4号线与在建的7号线(预计2026年开通)换乘站——木里站仅约150米。无论是去园区、新区,还是通过友新高架、东太湖大道快速通往全城乃至长三角,都异常便捷,真正实现了“出则繁华,入则宁静”,为苏州买房的您提供了极大的交通便利。

【名校就在家门口,孩子成长无忧】
教育是家庭的头等大事。项目与华中师范大学苏州湾实验小学仅一路之隔,孩子上学安全又方便。此外,周边还汇聚了华中师范大学苏州实验中学、北美国际高级中学等优质教育资源,全龄段教育配套齐全,为孩子的未来保驾护航,是改善家庭选择苏州新房时的重要考量。

【繁华与生态兼得,生活全维丰盈】
生活在这里,繁华与诗意可以兼得。逛街有永旺梦乐城、歌林小镇;看剧有橙天嘉禾360剧场;休闲有天鹅湖公园、太湖生态大堤。未来,还有金融街融悦湾中心(在建)、市立医院总院(在建)等重磅配套陆续兑现,区域价值持续攀升,为您的苏州置业提供了坚实的保障。
【看得见的品质,匠心筑就的家】
房子的“面子”和“里子”都经得起考究。外立面采用干挂铝板搭配大面积三玻两腔LOW-E玻璃,不仅现代美观,更具卓越的保温隔热性能。室内则精装交付,中央空调、新风、地暖“三大件”齐备,还罕见地配备了全屋软水系统,细节之处尽显品质住宅的匠心。
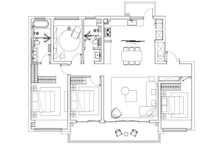
【户型鉴赏:高得房率下的阔绰空间】
目前项目在售建面约115㎡、130㎡、152㎡三种户型,设计都非常出色。
约115㎡三房:三开间朝南,约5.5米宽厅连接大阳台,主卧套房设计,空间利用率高,是理想的改善型住宅入门之选。
约130㎡四房:创新LDKB一体化设计,双联阳台,三卧朝南,可灵活改造为“3+1”房,功能性强,满足多口之家的居住需求。
约152㎡四房:四开间朝南,拥有LDBK家庭聚厅、独立中岛厨房及南北双阳台,尺度阔绰,是改善家庭的终极之选。
【实力品牌,安心之选】
项目由“中国华尔街缔造者”金融街控股,与吴中太湖新城开发主体苏州国太发展联袂打造。这是金融街在苏州的第三座“融悦系”作品,此前打造的融悦湾、融悦时光已成为区域标杆,实力与口碑兼具,为您的资产保驾护航,是您在苏州买房时可以信赖的品牌开发商。
金融街融悦沁庭官方售楼处电话:400-8800-736;置业顾问:18662309054(微信同号),预约看房,专车接送,专享优惠
【未来展望:政策与价值的双重机遇】
当下,换房退税政策降低了您的改善成本,而选择像金融街融悦沁庭这样占据城市核心发展板块、拥有稀缺产品力和硬核配套的项目,则是为家庭资产上了一道“双保险”。吴中太湖新城的蓝图正在加速兑现,现在入住,即是抢占未来价值高地的最佳时机。
好房不等人,尤其是如此稀缺的纯洋房。诚邀您亲临现场,感受低密社区的静谧与开阔,体验户户朝南的温暖阳光。立即致电预约,专车接送,亲鉴未来家的模样。
声明:本文由入驻焦点开放平台的作者撰写,除焦点官方账号外,观点仅代表作者本人,不代表焦点立场。


