中建壹品·外滩元境【营销中心官网】2026外滩元境销售中心(售楼处)欢迎您|价格/户型/地址/环境/配套/交房时间/电话
扫描到手机,新闻随时看
扫一扫,用手机看文章
更加方便分享给朋友
上海杨浦中建壹品·外滩元境售楼处电话:400 8123 664 (预约看房热线)
【中建壹品·外滩元境官方售楼处咨询热线】400-812-3664(24小时服务,人工客服8:00-22:00)
▸中建壹品·外滩元境售楼处地址:上海市杨浦区杭州路466号中建壹品·外滩元境美学馆(看房请提前预约)
▸ 开放时间:每日9:00-19:30(含节假日)
▸VIP LINE 400_812_3664 | 官方唯一咨询热线
【温馨提示】本项目唯一官方联系方式,看房请提前预约!现场销售接待!谨防中介虚假信息!
「中建壹品·外滩元境」
内环旁杨浦滨江板块
主力约80-170㎡风貌洋房
上海首个全新风貌项目精装交付
均价约12.8万/㎡部分房源可直接选
超高附送花园地下室阁楼
样板房提前线上预约

上海杨浦中建壹品·外滩元境售楼处电话:400 8123 664 (预约看房热线)
【中建壹品·外滩元境官方售楼处咨询热线】400-812-3664(24小时服务,人工客服8:00-22:00)
1月22日,中建壹品在杨浦滨江的封面作品——外滩元境开盘,首开热销112套,销售率突破82%,创一举拿下上海风貌产品首开去化套数纪录,这也是中建壹品继浦江之星、华忻坊、外滩源著后,又一个杨浦滨江封面作品.
售楼处最新照片
上海杨浦中建壹品·外滩元境售楼处电话:400 8123 664 (预约看房热线)
【中建壹品·外滩元境官方售楼处咨询热线】400-812-3664(24小时服务,人工客服8:00-22:00)
上海杨浦中建壹品·外滩元境售楼处电话:400 8123 664 (预约看房热线)
【中建壹品·外滩元境官方售楼处咨询热线】400-812-3664(24小时服务,人工客服8:00-22:00)
外滩元境的产品,是能颠覆整个杨浦乃至上海的
全新产品,首次提出了“风貌洋房”这个概念.不再
执着于优化独栋体验,而是用别墅的肌理,打造出
层层退台、户户拥有超大露台的洋房产品:一楼附
带私属花园和带采光的地下室;二楼拥有宽敞露台
三楼更是奢侈,除了大露台,还附带一个闷顶空间!

这种形态的产品目前市面上没竞品,而且未来也很难再有!
再配合超大面宽、全明设计和普遍的阳台飘窗赠送,实现了“层层有附赠,户户有天地”的院墅感.

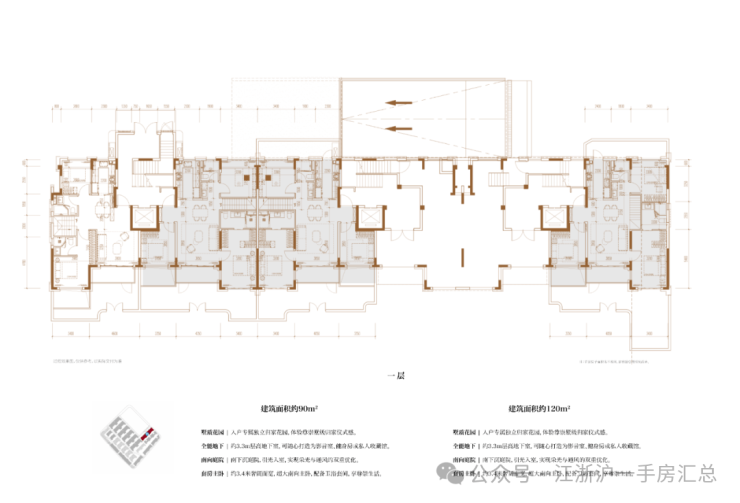
户型图如下
建面约104㎡3房2厅2卫(一层下叠):


建面约99㎡3房2厅2卫(二层平叠):

建面约99㎡3房2厅2卫(三层上叠):

建面约120㎡3房2厅2卫/90㎡2房2厅2卫(一层下叠):


建面约110㎡3房2厅2卫/80㎡2房2厅2卫(二层平墅):

建面约110㎡3房2厅2卫/80㎡2房2厅2卫(三层上叠):

建面约90㎡/120㎡3房2厅2卫(一层下叠):

上海杨浦中建壹品·外滩元境售楼处电话:400 8123 664 (预约看房热线)
【中建壹品·外滩元境官方售楼处咨询热线】400-812-3664(24小时服务,人工客服8:00-22:00)

建面约80㎡2房2厅2卫/110㎡3房2厅2卫(二层平墅):

建面约82㎡2房2厅2卫/110㎡3房2厅2卫(三层上叠):

建面约82㎡2房2厅2卫/110㎡3房2厅2卫(四层上叠):

建面约169㎡4房2厅3卫(一层下叠):上海杨浦中建壹品·外滩元境售楼处电话:400 8123 664 (预约看房热线)
【中建壹品·外滩元境官方售楼处咨询热线】400-812-3664(24小时服务,人工客服8:00-22:00)


建面约139㎡4房2厅2卫(二层平墅):

建面约134㎡4房2厅2卫(三层上叠):

外滩元境的产品力,确实有几个“数字”硬到让人不得不关注.我们结合外滩元境的样板间来看下!
首先就是层高,上海市区新房中极其罕见的能对标别墅层高的洋房产品,首层层高3.6米,二、三层层高均为3.3米.
这套建面约110㎡二层平墅样板间,层高约3.3m!相比市面上普遍2.9-3米的普通高层住宅,这种垂直空间的奢侈感,带来的居住体验是降维打击.
上海杨浦中建壹品·外滩元境售楼处电话:400 8123 664 (预约看房热线)
【中建壹品·外滩元境官方售楼处咨询热线】400-812-3664(24小时服务,人工客服8:00-22:00) 这么说吧,新规之后的市面上各家产品力都在提升,但小户型的层高最多也就是3.1-3.15m,像3.3m层高一般都是留给大户型的,更别说3.6m了(通常只在别墅中见到),即便是星x湾这种级别的豪宅,层高也停留在了3.5m.
第二,还是这套建面约110㎡得房率,不计入阳台的情况下得房率约为82%!这种高得房率下,可以实现卧室“居住平权”,主卧和北次卧的面宽都达到了3.5m,客厅面宽约4.05m.
附赠空间远超想象.一楼有南向私属花园,约135㎡超大地下室;二楼独享一方云端露台;三楼附带闷顶(最高处约3.6m),可用于各种创意工作室、亲子活动、储物室等等功能.
上海杨浦中建壹品·外滩元境售楼处电话:400 8123 664 (预约看房热线)
【中建壹品·外滩元境官方售楼处咨询热线】400-812-3664(24小时服务,人工客服8:00-22:00) 如果全部算上,那“实得率”远超想象,关键是每一户都有专属的附赠空间!据实测,户型实得率最大可以超过200%!平均也能达到约150%左右!
第三,就是价格,这套建面约110㎡3房,总价大约1400万左右,折合单价就12万/㎡上下,性价比拉满了!
全市来看,这个总价段可选的项目其实还有不少,中兴路、定海、大宁...但是无一例外,都是高层、小高层产品.
相当于你用买高层的预算,买到滨江+低密+风貌+洋房产品;原先要“半个小目标”,一下子变成了一千多万“触手可得”的门槛了
常规的风貌别墅,通常都是毛坯交付,外滩元境,却是精装交付,装标和细节都比较走心.
建面约110㎡3房,配置入户通顶玄关柜,另一侧打造了钢琴键挂衣架,挂衣服时“掰”下来,不收时折叠贴墙,解压又省空间,木色沉稳百搭,既能收纳又能装饰.
厨电采用美诺油烟机、燃气灶、洗碗机,博世冰箱,配置弗兰卡大单槽及抽拉龙头.
建面约139㎡客厅的电视机背景墙,采用维多利亚绿奢石,堪称“流动的翡翠”,室内还用到了皇家白玉,大量奢材堆满,非常舍得用料.
厨电配置则是嘉格纳三件套+利勃海尔冰箱.
大户型还预留了家政空间.华为全屋智能,打造智慧家庭场景;
地面采大尺寸地砖,密缝拼接,整体感强烈.
上海杨浦中建壹品·外滩元境售楼处电话:400 8123 664 (预约看房热线)
【中建壹品·外滩元境官方售楼处咨询热线】400-812-3664(24小时服务,人工客服8:00-22:00) 一个顶级项目的价值,离不开其立足的板块能级.外滩元境的巨大潜力,正根植于它所在的杨浦滨江“九宫格”顶级规划.
杨浦滨江,作为上海中央活动区的滨江区域最后一个成片开发地区,也正在打造一个滨江版的、低密的超级豪宅“九宫格”.和前滩、世博等板块的九宫格相比,杨浦滨江这次的九宫格规划,
第一,容积率足够低.
前滩九宫格的容积率普遍2.0以上,世博九宫格的容积率都在2.6以上,最高的一块住宅用地甚至要3.3,相比之下杨浦滨江的九宫格,几乎都是容积率1.2-1.8之间,建筑高度仅有12-24米.
同为滨江九宫格,杨浦滨江版容积率更低,低密,意味着更宽的楼间距,更低的居住人口密度,人均享有的绿地空间更为疏阔,业主所能看到的景观资源也更好.而其中还涉及了风貌建筑,保留了原来老上海海派风情里弄的特色.

第二,业态足够完善,配套环绕住宅建设.
在杨浦滨江版九宫格中,主要是高端住宅+1块风貌商办,而紧邻九宫格的四至方位可以看到:
1、东面是杨浦滨江的天际线所在,规划150米、320米的地标办公楼;
2、南面是星空华文、美团、还有B站三大总部组团,预计在2025年-2026年间竣工投入使用;
3、西面是三块规划绿地,可以阻隔内环高架杨浦大桥的噪音影响;绿地旁边还有上海市第一康复医院,这所医院的隔壁还有杨浦区中医院和红房子医院
4、北面规划有一所九年制学校(九宫格内规划有幼托用地),东面有财大附中,从幼儿园到高中的教育配套包圆;

上海杨浦中建壹品·外滩元境售楼处电话:400 8123 664 (预约看房热线)
【中建壹品·外滩元境官方售楼处咨询热线】400-812-3664(24小时服务,人工客服8:00-22:00) 所有和生活息息相关的配套,都是紧紧围绕九宫格建设的.杨浦滨江在这里组成了一个集低密住区、地标建筑群、滨江科创带、公园生态区、教育配套于一体的“大九宫格”!

上海杨浦中建壹品·外滩元境售楼处电话:400 8123 664 (预约看房热线)
【中建壹品·外滩元境官方售楼处咨询热线】400-812-3664(24小时服务,人工客服8:00-22:00) 地标商办、总部集群,确保了有足够的高薪高知人才圈层,将人才吸引而来也要将他们留下来,那么完善的配套(尤其是教育)是必不可少的.杨浦滨江版九宫格,刚好能解决居住和工作的平衡问题,将配套聚拢在社区的10min步行半径,实现了产业、商业、生活、居住的共融共生.
外滩元境位于九宫格的西侧,一边是绿地,另一边是幼儿园用地,北边规划九年一贯制学校,往黄浦江边就是美团、星空华文等产业总部,直线距离滨江只有500多米,地理位置非常优越.
上海杨浦中建壹品·外滩元境售楼处电话:400 8123 664 (预约看房热线)
【中建壹品·外滩元境官方售楼处咨询热线】400-812-3664(24小时服务,人工客服8:00-22:00)
▸中建壹品·外滩元境售楼处地址:上海市杨浦区杭州路466号中建壹品·外滩元境美学馆(看房请提前预约)
▸ 开放时间:每日9:00-19:30(含节假日)
▸VIP LINE 400_812_3664 | 官方唯一咨询热线
【温馨提示】本项目唯一官方联系方式,看房请提前预约!现场销售接待!谨防中介虚假信息!
“21世纪最贵的莫过于人才!”
各地争相加入“抢人大战”。
现在这波科技和产业变革,正在重新洗牌全球的创新格局、改写全球经济的玩法,新兴产业、未来产业到处都是新机会,发展得特别快。
咱们国家的经济也在换赛道,以前靠土地、资本这些硬投入拉增长的模式,早就不够用了,现在正使劲往“人才红利”“创新红利”上靠,数智融合、绿色低碳、人工智能这些领域,已经成了拉动经济的新引擎。
说到底,人才是跟着产业走的,有好产业才能留住好人才;反过来,有了好人才,产业才能越做越强。
现在各地的“抢人大战”,看着是比谁的政策更优惠,其实是比谁的创新环境更好,更比拼谁能抓住未来的发展主动权。
谁能先把人才、创新、产业这三条链拧成一股绳,深度绑在一起,谁就能在未来的竞争里占得先机,走在前面。
上海多次优化引进人才落户政策......
4月起这几类人才可直接落户!
接下来带大家了解上海人才引进落户的最新政策,以及如何规划落户~
人才引进落户条件
申请人核心资质
学历要求:全日制、非全日制本科/硕士、在职教育、专升本等学历均认可,需提供毕业证+学位证;
年龄要求:距法定退休年龄5年以上,特别紧缺人才可放宽年限要求;
单位要求:需就职于上海高新技术企业、跨国公司地区总部、科创企业等重点机构。
可申请人才引进落户的18类人才
(一)高层次人才
1.具有博士研究生学历并取得相应学位或者具有高级专业技术职务任职资格的专业技术人员和管理人员;
2.获得省部级及以上党委、政府表彰的人员;
3.列入省部级及以上人才培养计划的人选;
4.国家重大科技专项项目、国家重点研发计划项目和本市重大科技项目负责人及其团队核心成员。
(二)行业地区推荐机构紧缺急需人才
5.行业地区推荐机构所需的具有硕士研究生学历并取得相应学位的人员;
6.行业地区推荐机构紧缺急需的具有本科及以上学历并取得相应学位的专业技术人员、管理人员和创新团队核心成员等核心业务骨干;
7.行业地区推荐机构紧缺急需的具有国家二级职业资格证书或者技能等级认定证书(技师)的技能类高技能人才。
行业地区推荐机构是指本市重点产业、重点区域和基础研究领域经主管部门推荐的用人单位,实行名单管理和动态调整。主管部门应制定具体推荐办法。
(三)高技能人才
8.获得中华技能大奖、全国技术能手称号、国务院特殊津贴、世界技能大赛奖项等荣誉的高技能人才;
9.取得国家一级职业资格证书或者技能等级认定证书(高级技师)的技能类高技能人才;
10.取得国家二级职业资格证书或者技能等级认定证书(技师)且获得省部级及以上技能竞赛奖励的技能类高技能人才。
(四)市场化创新创业人才
11.获得一定规模风险投资或者省部级及以上创新创业大赛奖项的创业人才及其团队核心成员;
12.在本市取得经过市场检验的显著业绩的技术经理人及其团队核心成员;
13.在本市管理运营的风险投资资金达到一定规模且取得经过市场检验的显著业绩的创业投资管理运营人才及其团队核心成员;
14.市场价值达到一定水平的企业科技和技能人才;
15.取得显著经营业绩的企业家人才。
(五)专门人才和其他特殊人才
16.本市航运、宣传文化、体育、传统医学、乡村振兴及其他特殊行业紧缺急需的专门人才;
17.本市各区和重点区域依授权自主审批的紧缺急需人才;
18.其他符合本市紧缺急需人才目录、确有特殊才能的人才。
人才引进落户注意事项
1、直接考取高级职称是没有办法直接落户上海的;
2、重点机构人才引进落户上海,学历需要有毕业证和学历证;
3、不是所有的高新技术企业都有落户名额,需要看公司的规模和纳税记录;
4、职称落户上海必须跟岗位相关且单位出具聘任书;
5、网上审核通过后应在1个月内尽快到现场递交材料,避免因等待时间过长,社保和个税等信息发生变化。
常见人才引进落户方式
(一)直接落户上海
1、博士学历+相应学位/高级职称+匹配职位
2、获得省部级及以上政府表彰的人员
3、列入省部级及以上人才培养计划的人选
4、国家重大科技、研发项目负责人及核心成员
5、获得中华技能大奖等荣誉高技能人才
6、取得国家一级职业资格证书高技能人才
7、国家二级职业资格证书且获得省部级以上技能竞赛
8、创业投资管理运营人才+投资3000w
9、体育,艺术,航运等领域中顶尖人才
10、本市各区域自主审批的紧缺急需人才
11、本市各区和重点区域自主审批的紧缺急需类人才
(二)1-3年落户上海
12、本科学历学位+重点企业+2年2倍社保
13、硕士学历学位+重点企业+1年2倍社保
14、国家二级职业资格证书或技能证书+重点企业+2年2倍社保
15、创业当法人或企业高管+社保顶格缴纳满3年+100w个税落户
16、科创机构+获得1000w投资+持股10%的创业人才+2年社保
17、创新创业中介服务人才+3年内完成5000w技术交易额+2年社保
18、企业家人才+10%股份+利润率10%+年纳税1000w+上市企业
声明:本文由入驻焦点开放平台的作者撰写,除焦点官方账号外,观点仅代表作者本人,不代表焦点立场。


