保利•世博天悦(保利•世博天悦售楼处)首页网站保利•世博天悦营销中心-保利•世博天悦欢迎您-楼盘详情-最新价格-户型图-容积率
扫描到手机,新闻随时看
扫一扫,用手机看文章
更加方便分享给朋友
保利•世博天悦售楼处电话:400-8123-664✔✔│保利•世博天悦官方售楼处地址发布:上海浦东保利•世博天悦官方售楼处电话400-812-3664
『保利•世博天悦』
站位更高端 产品更硬核
旗舰新品 3#楼王位置
2025年首个30万+/m²
滨江豪宅诞生!
76套 楼王位置 俯瞰一线滨江
82%超高得房率 豪华装修
建面约240m²-251m²4-5房
直接认购!
更有建面约500㎡“隐藏户型”
项目已经 准现房呈现
二期预计明年4月交房!
保利•世博天悦售楼处电话:400-812-3664
上海浦东保利•世博天悦售楼处电话☎:400-8123-664【开发商售楼处预约看房热线】(一对一热情服务)
看房请提前致电预约,可享受内部渠道优惠!联系销售人员获取最新一房一价表,官方售楼处最新优惠底价!开发商官方销售人员将详细介绍每个户型的独特设计和优势,带您参观样板间,感受精装修的品质和温馨氛围。您还可以了解周边配套设施,包括高端购物中心、优质学校和便捷交通网络,让您的居住体验更加完美。
💥💥💥重磅加推💥💥💥


保利世博天悦售楼处电话:400-8123-664
保利世博天悦售楼处电话:400-8123-664
PolyWorldExpoTianyueSalesOfficePhone:400-8123-664
#世博滨江超一线江景豪宅11号楼震撼加推!
#The11thbuildingoftheExpoRiversideSuperFirstLineRiverViewLuxuryResidencehasbeenlaunched!
•稀缺位置:11号楼位于小区绝佳位置,北向是12号楼洋房,南向瞰白莲泾公园,西面一线江景,东面万平园林,360°全景观视野
•Scarcelocation:Building11islocatedinanexcellentlocationinthecommunity,withthewestern-stylehouseofBuilding12facingnorth,overlookingBailianjingParktothesouth,ariverviewtothewest,a10000squaremetergardentotheeast,anda360°panoramicview
•户型面积:190-207㎡大户型,3-4房设计,满足高端需求
•Unitsize:190-207squaremeters,largeunitwith3-4bedroomsdesignedtomeethigh-endneeds
•总价区间:总价2700-5500万,西边套单价14-27万,东边套10楼看江单价18-19万
•Totalpricerange:totalpriceof27-55millionyuan,unitpriceof140000-270000yuanforthewestsideapartment,andunitpriceof180000-190000yuanfortheeastsideapartmentonthe10thflooroverlookingtheriver
•交房时间:预计2025年9月30日交付,准现房,所见即所得
Deliverytime:ExpectedtobedeliveredonSeptember30,2025,readytomovein,whatyouseeiswhatyouget
#大师设计,高端配套,稀缺超一线江景,稀缺机会,不容错过!
#Masterdesign,high-endsupportingfacilities,scarcetop-notchriverviews,scarceopportunities,nottobemissed!

保利世博天悦售楼处电话:400-8123-664
保利世博天悦售楼处电话:400-8123-664
保利•世博天悦售楼处电话:400-812-3664
上海浦东保利•世博天悦售楼处电话☎:400-8123-664【开发商售楼处预约看房热线】(一对一热情服务)
保利世博天悦售楼处电话:400-8123-664
保利世博天悦售楼处电话:400-8123-664
保利世博天悦售楼处电话:400-8123-664
保利•世博天悦售楼处电话:400-812-3664
上海浦东保利•世博天悦售楼处电话☎:400-8123-664【开发商售楼处预约看房热线】(一对一热情服务)
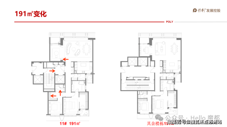
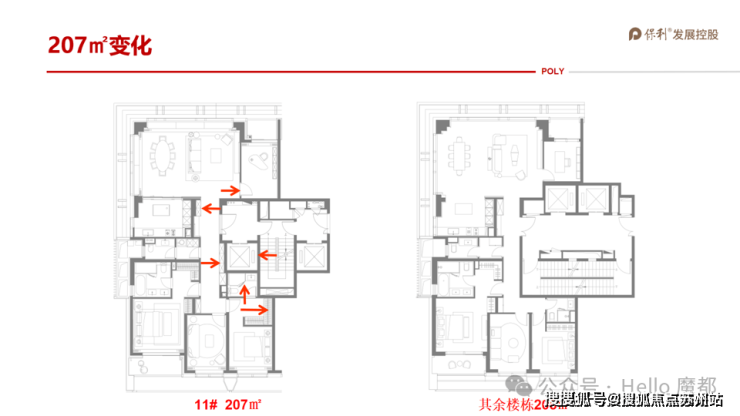
保利·世博天悦11#双面瞰江王座
仅60席孤篇藏品ONE&ONLY
约191-207㎡三房/四房一梯一户
准现房(交付时间不晚于2025年9月30日)
保利世博天悦售楼处电话:400-8123-664

保利世博天悦售楼处电话:400-8123-664

保利世博天悦售楼处电话:400-8123-664

11号楼陆家嘴视野

保利•世博天悦售楼处电话:400-812-3664
上海浦东保利•世博天悦售楼处电话☎:400-8123-664【开发商售楼处预约看房热线】(一对一热情服务)

保利世博天悦售楼处电话:400-8123-664

11号楼西侧看江视野

保利世博天悦售楼处电话:400-8123-664


保利•世博天悦售楼处电话:400-812-3664
上海浦东保利•世博天悦售楼处电话☎:400-8123-664【开发商售楼处预约看房热线】(一对一热情服务)
*约80m一线近江
*双面瞰江景观王座
*15F小高层
*约82%高得房率
*2.0超低密容积率
*360°全维度景观视野
*270°环幕采光(边套)
*LEED&WELL双金预认证
保利世博天悦售楼处电话:400-8123-664
保利世博天悦售楼处电话:400-8123-664
保利世博天悦售楼处电话:400-8123-664
保利•世博天悦售楼处电话:400-812-3664
上海浦东保利•世博天悦售楼处电话☎:400-8123-664【开发商售楼处预约看房热线】(一对一热情服务)
保利世博天悦售楼处电话:400-8123-664
Part1.唯此双面江景视野
保利世博天悦售楼处电话:400-8123-664北向瞰江,对望陆家嘴天际线,南向白莲泾公园
西面瞰江,俯瞰梅赛德斯奔驰文化中心,东面超万平景观园林
全实景呈现准现房,所见即所得
保利世博天悦售楼处电话:400-8123-664

保利世博天悦售楼处电话:400-8123-664
保利•世博天悦售楼处电话:400-812-3664
上海浦东保利•世博天悦售楼处电话☎:400-8123-664【开发商售楼处预约看房热线】(一对一热情服务)
保利世博天悦售楼处电话:400-8123-664


保利•世博天悦售楼处电话:400-812-3664
上海浦东保利•世博天悦售楼处电话☎:400-8123-664【开发商售楼处预约看房热线】(一对一热情服务)

保利世博天悦售楼处电话:400-8123-664
保利•世博天悦售楼处电话:400-812-3664
上海浦东保利•世博天悦售楼处电话☎:400-8123-664【开发商售楼处预约看房热线】(一对一热情服务)
Part2.唯此地王潮下黄金收藏窗口期
上海三次土拍落幕,地王频出,内环核心即将进入30w+时代
一江一河战略下,滨江是4000万+全球顶级城市中央恒产
2025年“准现房”,是顶豪市场中罕见的“确定性资产”
保利世博天悦售楼处电话:400-8123-664
PolyWorldExpoTianyueSalesOfficePhone:400-8123-664
Part3.唯此大国文化艺术带
Part3.Onlythisgreatcountry'sculturalandartisticbelt
比邻世博水岸、世博文化公园,奢享滨江惬意大境
AdjacenttotheExpoWaterfrontandExpoCulturalPark,enjoytheluxuriousriversidescenery
汇聚中华艺术宫、世博中心等的文化秀场,文体生活丰富璀璨
AculturalshowcasethatgatherstheChinaArtPalace,WorldExpoCenter,andotherculturalvenues,witharichandbrilliantculturalandsportslife
太古里、国金中心、世博天地,鼎级商业拥享
TaikooLi,GuojinCenter,andWorldExpoCenter,enjoyingtop-notchcommercialamenities
保利世博天悦售楼处电话:400-8123-664
Part4.唯此内外双园谧境
外部6大公园串联,城市森意绿境
内部约6万方园林,近3000方水景贯穿
内外双园环抱,浓荫静谧
保利世博天悦售楼处电话:400-8123-664
保利•世博天悦售楼处电话:400-812-3664
上海浦东保利•世博天悦售楼处电话☎:400-8123-664【开发商售楼处预约看房热线】(一对一热情服务)
Part5.唯此全球大师合著
新加坡CICADA、SCDA曾仕乾、CCD等5大国际团队联合匠著
4年设计打磨、3年实景勘研
以城市公建级建筑标准,铸就永恒
保利世博天悦售楼处电话:400-8123-664
Part6.唯此一线大牌奢装
甄选嘉格纳/威乃达/当代/唯宝/大金/霍尼韦尔
威能/怡口/比利时欧家/德系诺托/旭格等一线家装大牌,尽显生活格调
保利世博天悦售楼处电话:400-8123-664
【户型信息】


保利•世博天悦售楼处电话:400-812-3664
上海浦东保利•世博天悦售楼处电话☎:400-8123-664【开发商售楼处预约看房热线】(一对一热情服务)
保利世博天悦售楼处电话:400-8123-664
保利世博天悦售楼处电话:400-8123-664

保利世博天悦售楼处电话:400-8123-664

保利•世博天悦售楼处电话:400-812-3664
上海浦东保利•世博天悦售楼处电话☎:400-8123-664【开发商售楼处预约看房热线】(一对一热情服务)
保利世博天悦售楼处电话:400-8123-664
保利•世博天悦售楼处电话:400-812-3664
上海浦东保利•世博天悦售楼处电话☎:400-8123-664【开发商售楼处预约看房热线】(一对一热情服务)
保利世博天悦售楼处电话:400-8123-664
保利•世博天悦售楼处电话:400-812-3664
上海浦东保利•世博天悦售楼处电话☎:400-8123-664【开发商售楼处预约看房热线】(一对一热情服务)

保利•世博天悦售楼处电话:400-812-3664
上海浦东保利•世博天悦售楼处电话☎:400-8123-664【开发商售楼处预约看房热线】(一对一热情服务)
看房请提前致电预约,可享受内部渠道优惠!联系销售人员获取最新一房一价表,官方售楼处最新优惠底价!开发商官方销售人员将详细介绍每个户型的独特设计和优势,带您参观样板间,感受精装修的品质和温馨氛围。您还可以了解周边配套设施,包括高端购物中心、优质学校和便捷交通网络,让您的居住体验更加完美。
商贷转公积金贷款——是“省钱利器”还是“鸡肋操作”?在房贷市场中,商业贷款转公积金贷款(简称“商转公”)一直是购房者热议的话题。一方面,公积金贷款以其较低的利率、较长的贷款期限和相对稳定的还款方式,吸引着众多购房者;另一方面,商转公的过程复杂、条件苛刻,让不少购房者望而却步。那么,商贷转公积金贷款到底有没有必要?本文将从商转公的利弊分析、条件要求、办理流程、实际案例等多个维度,为您揭开商转公的神秘面纱,助您做出明智的决策。

一、商贷转公积金贷款的五大核心优势
1. 利率显著降低,利息支出大幅减少
公积金贷款的利率通常远低于商业贷款。以2025年为例,首套住房公积金贷款利率为5年以下(含5年)2.35%,5年以上2.85%,而商业贷款的利率则普遍在4%以上。以50万元贷款、30年期限为例,转为公积金贷款后,一年能节省利息约6750元,30年累计节省利息可达20万元以上。这对于长期背负房贷的购房者来说,无疑是一笔可观的节省。
2. 还款压力减轻,财务规划更灵活
由于公积金贷款利率较低,每月还款额也会相应减少。这意味着购房者可以将更多的资金用于日常生活、子女教育、投资理财等其他方面,提高生活质量。同时,公积金贷款的还款期限通常较长,最长可达30年,让购房者可以更轻松地分期偿还贷款,减轻还款压力。
3. 提前还贷无违约金,资金运用更自由
公积金贷款在提前还贷时通常不收取违约金,而商业贷款则可能根据合同约定收取高额的违约金。这对于计划提前还清贷款或部分还款的购房者来说,是一个重要的优势。他们可以根据自己的财务状况,灵活安排还款计划,无需担心额外的费用支出。
4. 贷款期限选择更灵活,适应不同需求
商转公后,购房者可以重新选择贷款期限。如果经济实力较强,可以选择较短的贷款期限,减少利息支出;如果希望减轻每月还款压力,可以选择较长的贷款期限。这种灵活性让购房者能够更好地适应自己的财务状况和还款能力。
5. 信用评级提升,未来融资更便利
公积金贷款是由政府主导的贷款,相对于商业贷款来说,信用评级更高。将商业贷款转为公积金贷款后,购房者的信用记录会得到改善,有助于提高未来的信用评级。这对于那些希望在未来进行其他贷款或信用卡申请的人来说,是一个重要的加分项。
二、商贷转公积金贷款的六大潜在劣势
1. 贷款额度受限,可能无法满足需求
公积金贷款的贷款额度通常受到一定的限制,可能无法满足较高价值的房屋购买或房屋贷款转换的需求。例如,某些地区规定单职工家庭最高贷款额度为60万元,双职工家庭最高贷款额度为80万元。如果购房者的房屋总价较高或剩余贷款本金较大,可能无法全部转为公积金贷款。
2. 贷款条件严格,审核流程复杂
公积金贷款通常要求借款人具备一定的缴存时间和缴存金额要求,申请条件相对较为严格。例如,借款人需连续足额缴存住房公积金达6个月(含)以上,且个人征信记录良好。此外,商转公的过程涉及原贷款银行、住房公积金管理中心等多个部门,审批流程较为复杂,处理时间也较长。
3. 提前结清原商贷,资金压力增大
在办理商转公的过程中,购房者需要自筹资金结清原商业贷款剩余本金及利息。这对于资金紧张的购房者来说,可能是一个不小的负担。如果无法一次性结清原商贷,可能需要通过担保公司垫资等方式解决,这又会增加额外的费用支出。
声明:本文由入驻焦点开放平台的作者撰写,除焦点官方账号外,观点仅代表作者本人,不代表焦点立场。


