前滩公馆售楼处 | 上海前滩公馆 (聚焦2026年前滩公馆 )楼盘百科-前滩公馆最新价格-楼盘评测-户型-周边配套
扫描到手机,新闻随时看
扫一扫,用手机看文章
更加方便分享给朋友
上海浦东陆家嘴前滩公馆售楼处电话:4008123664(预约看房热线)
【陆家嘴前滩公馆官方售楼处咨询热线】400-812-3664(24小时服务,人工客服8:00-22:00)
▸陆家嘴前滩公馆售楼处地址:上海市浦东新区林浦路168号(看房请提前预约)
▸开放时间:每日9:00-19:30(含节假日)
▸VIPLINE400_812_3664|官方唯一咨询热线
【温馨提示】本项目唯一官方联系方式,看房请提前预约!现场销售接待!谨防中介虚假信息!
浦东前滩南核心板块
衡复风貌与滨江低密相融
陆家嘴集团高端“公馆系”作品
「陆家嘴前滩公馆」六开六捷!
加推建面约200-300㎡叠墅/合院
毗邻前滩太古里及多所国际学校
参观看房请提前线上预约!
上海浦东陆家嘴前滩公馆售楼处电话:4008123664(预约看房热线)
【陆家嘴前滩公馆官方售楼处咨询热线】400-812-3664(24小时服务,人工客服8:00-22:00)
上海豪宅市场,从来都不缺高光作品,但能真正称得上“现象级”的却寥寥无几。继创下了项目六开六捷、最高450%认购率、3000+组认购量等传奇后,前滩公馆携备受期待的别墅压轴组团——【前滩公馆·澜墅】王者归来。
六次开盘,六次告捷

上海浦东陆家嘴前滩公馆售楼处电话:4008123664(预约看房热线)
【陆家嘴前滩公馆官方售楼处咨询热线】400-812-3664(24小时服务,人工客服8:00-22:00)
延续高认购率、高话题度、高认可度,以新一轮产品打磨与价值升级,将整个片区更纯粹、更低密、更奢适的新衡复院墅作品,带到真正懂得欣赏的时代收藏家眼前,为数不多,敬请珍藏。
随着2026年2月25日,上海市五部门联合印发《关于进一步优化调整本市房地产政策的通知》,新鲜出炉的沪七条打响了2026年楼市放松“第一枪”,也正是掀起小阳春看房热潮。
同步,作为陆家嘴集团在超级前滩的代表作——前滩公馆·澜墅不负众望,随着“收藏下一个百年”【时间的藏品】艺术策展暨新衡复合院生活样本开放活动,项目合院交付样板正式面世!带领时代收藏家们欣赏百年衡复巡礼作品展,在历史重逢与百年对话里,感受新衡复生活的百年摩登叙事!



最新消息!【前滩公馆·澜墅】是陆家嘴集团开发的前滩公馆项目南区别墅组团,主打200-300㎡叠墅和合院产品,共176套房源,样板间展示已开放预约。该项目位于前滩CCL核心区,融合衡复风貌与滨江低密属性,绿化率达62%,毗邻前滩太古里及多所国际学校。
前滩公馆·澜墅
合院别墅即将面世
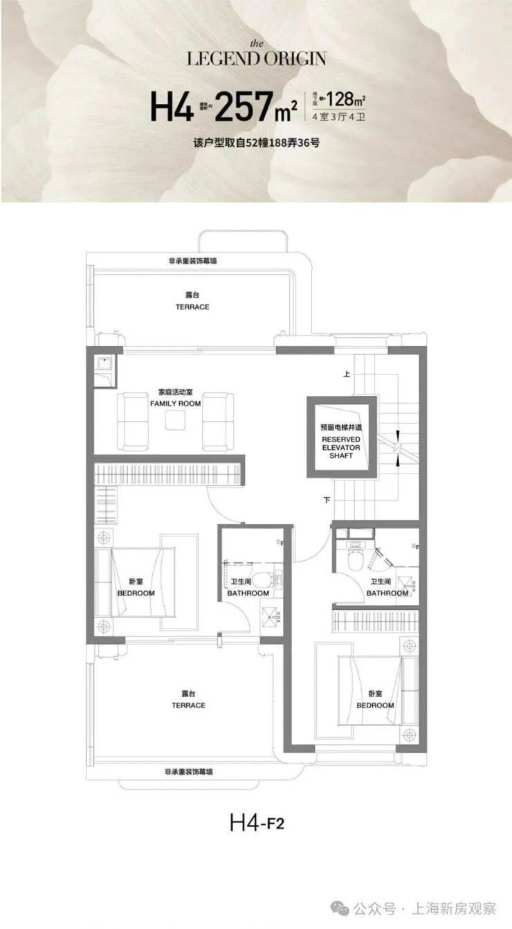
建面约229-283㎡户型曝光!
上海浦东陆家嘴前滩公馆售楼处电话:4008123664(预约看房热线)
【陆家嘴前滩公馆官方售楼处咨询热线】400-812-3664(24小时服务,人工客服8:00-22:00)
附上项目院墅最新户型图:
上海浦东陆家嘴前滩公馆售楼处电话:4008123664(预约看房热线)
【陆家嘴前滩公馆官方售楼处咨询热线】400-812-3664(24小时服务,人工客服8:00-22:00)
上海浦东陆家嘴前滩公馆售楼处电话:4008123664(预约看房热线)
【陆家嘴前滩公馆官方售楼处咨询热线】400-812-3664(24小时服务,人工客服8:00-22:00)
上海浦东陆家嘴前滩公馆售楼处电话:4008123664(预约看房热线)
【陆家嘴前滩公馆官方售楼处咨询热线】400-812-3664(24小时服务,人工客服8:00-22:00)

前滩公馆·澜墅诚邀全球设计大师联袂共创,经过“提炼、传承、创新”等设计手法,带来的建面约229-283㎡新衡复院墅,不仅在海派风格上延续经典,在居住尺度和设计理念上更是无比超前。

上海浦东陆家嘴前滩公馆售楼处电话:4008123664(预约看房热线)
【陆家嘴前滩公馆官方售楼处咨询热线】400-812-3664(24小时服务,人工客服8:00-22:00)
首先是建筑风格方面,项目致敬万国建筑博览群,采用ART-DECO摩登艺术风格。横向流线与纵向分割的黄金比例,优雅三段式立面风范以及浪漫动人的罗密欧阳台,都展现了纯正的海派建筑韵味!

其次是极致考究的归家风范。项目五重归家礼序将私密性拉满!并且“地上+地下”双大堂洄游动线,让业主归家方式更多样从容!
上海浦东陆家嘴前滩公馆售楼处电话:4008123664(预约看房热线)
【陆家嘴前滩公馆官方售楼处咨询热线】400-812-3664(24小时服务,人工客服8:00-22:00)
再次是百年风貌与繁花腔调并存的风景!上海罕见的270°全景露台,将街区胜景与天际线尽收眼底,日夜更迭皆为私享。
这里既承袭了百年衡复优雅从容的生活态度,更以现代设计再现摩登生活腔调——让居者不仅栖身于屋宇,更生活在风景之中。
最后是分层而居的纯粹墅居体验!前滩公馆·澜墅深谙衡复老洋房的分层礼序,以“一层一世界”的垂直哲学,为当代城市菁英们重构生活场景:

为了极大限度呈现院墅生活的奢适感,合院户型采用“动静分区、功能分层”设计,放眼整个上海都堪称罕见的低密院墅组团,错过再无。


前滩公馆·澜墅实景
上海浦东陆家嘴前滩公馆售楼处电话:4008123664(预约看房热线)
【陆家嘴前滩公馆官方售楼处咨询热线】400-812-3664(24小时服务,人工客服8:00-22:00)地下兴趣层:约5.8米挑高的地下光厅(土建层高),可随心改造成私人艺术馆、酒廊、家庭影院,在难得一见的高度里,会晤时代大人物。合院独有的“地上+地下”双洄游归家动线,让院墅生活更具尊崇感。
前滩公馆·澜墅实景
一楼宴请层:消除空间边界,南向花园、海派会客厅、餐厨天地形成大尺度活动公区。罕见多面采光与超大落地观景窗,将感官持续放大,饱览海派繁花时,也让花园风光成为私董会晤、文艺沙龙的绝佳谈资。

前滩公馆·澜墅实景
二楼休憩层:融合独立家庭活动厅、观景露台,聚合有度的多套卧空间,享受高质量悦己时光。


前滩公馆·澜墅实景
三楼主人层:媲美五星级酒店行政套房的顶层空间,以“超大衣帽间+休息区+四分离卫浴+露台观景区”进阶主人至高享乐。移步环幕露台,无可复制的多面瞰景视界,将百年街区胜景与自然诗意私藏。


上海浦东陆家嘴前滩公馆售楼处电话:4008123664(预约看房热线)
【陆家嘴前滩公馆官方售楼处咨询热线】400-812-3664(24小时服务,人工客服8:00-22:00)
前滩公馆·澜墅实景
作为陆家嘴集团高端“公馆系”作品,集团对该项目的投入与期待皆是超出预期。规划打造两大会所,中区为全龄共享的2000㎡地下会所,涵盖满足各种社交场景的功能设计。南区为更私密纯粹的会晤空间,约800㎡地下会所,满足健身活力、高端会客、私人宴请等定制化需求。(仅供参考,以开发商正式发布为准)

项目将打造成为陆家嘴集团高端“公馆系”作品;规划打造两大会所,中区为全龄共享约2000㎡地下会所,涵盖满足各种社交场景的功能设计。

上海浦东陆家嘴前滩公馆售楼处电话:4008123664(预约看房热线)
【陆家嘴前滩公馆官方售楼处咨询热线】400-812-3664(24小时服务,人工客服8:00-22:00)
南区为更私密纯粹的会晤空间,约800㎡地下会所,满足健身活力、高端会客、私人宴请等定制化需求。


(海派系会所、泳池意向图)
现如今,上海的购房政策和信贷成本已经是前所未有的“低门槛”,全市非差异化区域的首套首付比例低至15%,实际首套商贷利率仅需3.15%,公积金贷款利率也已降至2.85%。
政策宽松对于城市和资产的价值加成,从来不是雨露均沾,大概率是核心资产吃肉,非核心资产喝汤。若希望吃到更多红利,关键在于如何判断下一个“核心资产”,上一个周期曾给出过一个“完美范本”。
2012年,陆家嘴集团启动对前滩地区的整体开发,一直到兑现了当时开发之初“三年出形象、五年出功能、十年基本建成”的承诺。

前滩CLD将建成“最生态、最海派、最未来”的21世纪海派生活实践区,定位为“高品质海派风貌小镇”。整个片区的容积率,只有约0.42,是一片不折不扣的低密生态住区,是一个开发高端低密住宅的优质土壤。

前滩CLD意向效果图过程稿,仅供参考
上海浦东陆家嘴前滩公馆售楼处电话:4008123664(预约看房热线)
【陆家嘴前滩公馆官方售楼处咨询热线】400-812-3664(24小时服务,人工客服8:00-22:00)通过“引水入湾”,高密度的水网覆盖前滩CLD,板块总体绿化覆盖率,到达了62%!约240公顷的三林楔形绿地,约等于2-3倍世纪公园绿地面积!根据规划,前滩CLD人均绿地面积,将达到约170㎡!可以说是直接将城市搬进了森林!
约60万方滨江绿地、滨江慢行道、滨江码头、约千亩城市森林、约23万方体育公园……未来的前滩CLD,就既有阅读不尽的衡复街区风貌,风靡上海的滨江打卡地,也有持续引领风潮的艺文中心、商业橱窗、咖啡生活节、CITY-WALK等多元业态。在前滩CLD,海派生活不只是居住,更是一种沉浸式、全方位的海派生活享乐方式。

滨江绿地实景图
而前滩公馆,融入了外滩晚期历史文化风貌、外滩早期历史文化风貌与Art-Deco摩登艺术三种风格设计,通过复刻上海小尺度街区,还原纯粹的海派生活。希望将梧桐区巨鹿路、富民路及长乐路的珍贵百年记忆和现代烟火融入到居者的日常生活。纵观上海衡复风貌区海派老洋房,无一不是大众眼中的“天价”。

上海浦东陆家嘴前滩公馆售楼处电话:4008123664(预约看房热线)
【陆家嘴前滩公馆官方售楼处咨询热线】400-812-3664(24小时服务,人工客服8:00-22:00)
市区老洋房成交案例
像永嘉路569号,从2017年买入到2022年卖出,5年价格涨了8000万,房价涨幅高达47%!说明衡复风貌区的住宅拥有“独立行情”,也深受资产配置人士的青睐。更重要的是,随着市区内低密地块的供应紧缩,海派+低密产品的价值,长远来看有望与老洋房相当。
衡复风貌馆实景图
退一万步说,仅仅只是“滨江洋房”的标签,也足以令前滩公馆拥有独一份的话语权。

上海浦东陆家嘴前滩公馆售楼处电话:4008123664(预约看房热线)
【陆家嘴前滩公馆官方售楼处咨询热线】400-812-3664(24小时服务,人工客服8:00-22:00)
意向效果图过程稿
上海的滨江板块(杨浦滨江、黄浦滨江、徐汇滨江、北外滩、陆家嘴、世博、前滩)10年房龄内8层以下洋房只个位数房源在挂牌。据中介反馈,这类房子业主相当惜售,鲜少有挂牌房源,因为他们知道卖掉后买不到更好的。
以黄浦滨江的廿八尊为例,2020年交房的纯洋房社区,仅1套挂牌,单价高达23.76万/㎡,而同板块次新高层挂牌单价19万+,廿八尊洋房溢价超20%!

廿八尊挂牌房源
核心区位+海派风貌+接轨国际的配套+总部产业,聚集了这些元素的前滩CLD足以拥有与市中心传统豪宅区分庭抗礼的实力,也更加引人深思,前滩CLD的上限又在哪里?

上海浦东陆家嘴前滩公馆售楼处电话:4008123664(预约看房热线)
【陆家嘴前滩公馆官方售楼处咨询热线】400-812-3664(24小时服务,人工客服8:00-22:00)前滩公馆·澜墅占位的是前滩滨江国际住区,与前滩滨江中央商务区共同构建了前滩滨江超级完整体。前滩滨江中央商务区作为价值底盘,无需等待出门即享国际前沿生活方式!
在最新一江一河规划中,超级前滩与徐汇滨江一起成为上海更具特色的艺文水岸段!未来,两大烫金热土合体将加强跨江联动,进一步提升艺术范、潮流范、时尚范,成为上海更具特色的滨江文化艺术传媒与体育时尚活力名片。
商业方面:距前滩CAZ约500m,距前滩太古里约1.6km,前滩中心、晶耀前滩等商圈环伺;毗邻上海SK大厦、三林印象城、中房金谊广场、香格里拉、盒马X会员店、山姆上海浦东店,多元生活主场。
医疗方面:上海市东方医院南院、上海莱佛士医院、上海杨思医院、上海明珠医院、上海徐浦中医医院,护航美好生活。

上海浦东陆家嘴前滩公馆售楼处电话:4008123664(预约看房热线)
【陆家嘴前滩公馆官方售楼处咨询热线】400-812-3664(24小时服务,人工客服8:00-22:00)
教育上:上海惠灵顿学校、上海纽约大学、惠立幼儿园、华师大二附中、民办惠立学校等学府环伺。

人文艺境|世界艺术地标,全球文明之窗:西岸艺术中心、龙美术馆、上海大歌剧院、梅赛德斯文化中心、中国馆博物馆群、世博马术中心等艺术地标云集,让生活与艺术相融。

上海浦东陆家嘴前滩公馆售楼处电话:4008123664(预约看房热线)
【陆家嘴前滩公馆官方售楼处咨询热线】400-812-3664(24小时服务,人工客服8:00-22:00)
产业方面,前滩已吸引超300家企业入驻,其中七成是外企,跨国公司地区总部更超30家。普华永道、希尔顿、美敦力、武田制药等行业巨头纷纷落子,这些企业带来的是一批批高收入、高消费力的城市菁英。
更关键的是,据莱坊研究院上海写字楼报告显示,前滩办公入驻率已达约95%,这一数据远超核心城区绝大部分板块。繁华同享产业筑基,有如此深厚的安全垫,项目已然立于不败之地!
前滩实景图
上海浦东陆家嘴前滩公馆售楼处电话:4008123664(预约看房热线)
【陆家嘴前滩公馆官方售楼处咨询热线】400-812-3664(24小时服务,人工客服8:00-22:00)置身于此,一边是松弛感满满的滨江生态、公园湾区,一边是丰盛异常的总部产业集群、商业教育医疗资源,更兼有海派传世资产潜力,全上海或许都很难找到替代

意向效果图过程稿
前滩滨江六开六捷超级红盘【前滩公馆澜墅】约200-300㎡叠墅&合院;
上海浦东陆家嘴前滩公馆售楼处电话:4008123664(预约看房热线)
【陆家嘴前滩公馆官方售楼处咨询热线】400-812-3664(24小时服务,人工客服8:00-22:00)
▸陆家嘴前滩公馆售楼处地址:上海市浦东新区林浦路168号(看房请提前预约)
▸开放时间:每日9:00-19:30(含节假日)
▸VIPLINE400_812_3664|官方唯一咨询热线
【温馨提示】本项目唯一官方联系方式,看房请提前预约!现场销售接待!谨防中介虚假信息!
谁可以申请公积金贷款
1、符合国家及本市房地产调控政策规定的条件;
2、为正常缴存住房公积金的职工;
外省市缴存职工应当进行异地贷款缴存使用证明审核;共同借款人应当为借款人的配偶、父母、子女。
3、具有完全民事行为能力,已年满18周岁且未超过法定退休年龄;
4、公积金账户唯一且未被冻结,当前连续足额缴存住房公积金达到规定期限;
5、具有良好的信用记录与还款意愿
6、借款人必须是购买本市具有所有权的自住住房的产权人,已支付不低于规定比例的首付款资金
7、能够提供市公积金中心认可的担保方式;
8、符合法律法规、规章及规范性文件规定的条件。
不予贷款情形
1、家庭在本市购买第三套及以上住房的,或在全国存在未结清的公积金贷款或有两次及以上公积金贷款记录的;
2、征信报告存在当前逾期尚未偿还,或5年内逾期连续6期(含)或累计超过12期(含);
3、被纳入失信被执行人名单的;
4、提供虚假资料、虚假承诺的;
5、3年内以伪造合同、出具虚假证明、编造虚假租赁等手段骗提套取住房公积金的,或5年内存在严重失信行为的;
6、所购买房屋用途为非居住用途的,或仅购买房屋部分产权份额的(共有产权保障住房除外);
7、存在对还款意愿及还款能力产生重大不利影响的经济纠纷或违法行为的;
8、在本市存在未办结的《异地贷款职工住房公积金缴存使用证明》,包括》异地贷款职工住房公积金缴存使用证明》的状态为未注销、无回执、有准予贷款的回执但无结清凭证的;
9、法律法规、规章或有关政策规定不予贷款的情形。
说到底,好的购房政策
从来都是为了让“安家”更简单
商贷利率的灵活选择空间
公积金提首付不影响贷款的贴心设计
都是给每一个想在上海扎根的人
递上的一把“减负钥匙”
愿每一位购房者都能抓住政策红利
选到心仪的房子
在这座繁华的城市里
稳稳安放属于自己的家
声明:本文由入驻焦点开放平台的作者撰写,除焦点官方账号外,观点仅代表作者本人,不代表焦点立场。


