城南再填低密社区!|苏地2024-WG-Z45号地块最新动态,打造联排和洋房产品
扫描到手机,新闻随时看
扫一扫,用手机看文章
更加方便分享给朋友
城南再填低密社区!
吴中建设城南45号地块项目,即,苏地2024-WG-Z45号地块,位于吴中经开区长桥街道宝带西路南侧、龙西路西侧,1月8日,吴中建设以底价23443万元竞得,成交楼面价15040元/平。

该项目的地块用途为商住混合用地,占地面积10391.2平,总建筑面积25919.37平,计容建筑面积15586.8平,容积率1.5。
根据规划,项目拟建6栋3-8F住宅,其中,4栋3F住宅、2栋8F住宅,其中,8F住宅中1-2F为商业;

1,项目是一个小型的住宅社区,自带商业;
2,项目的产品为联排、洋房;
3,其洋房为全装修交付,最低装标2000元/平;其联排鼓励为全装修交付;
4,项目的户型不低于120平,
4,项目总户数<100户;
咨询热线:18662309054

改善型的户型配置
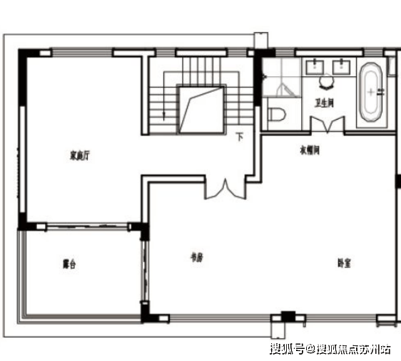
项目公示了2#、6#的户型标准层示意图。
2#,3F联排

1F

2F

3F


6#,8F洋房

4房2厅3卫

4房2厅3卫的房屋套型
4开间朝南
客厅是大宽厅设计
阳台3开间设计,超大阳台
南向双套房设计
主卧套房设计,有独立的衣帽间和卫生间
南向次卧套房设计,有独立卫生间,且为暗卫
多飘窗设计,有赠送面积
城南板块!双地铁盘
吴中建设城南45号地块项目,即,苏地2024-WG-Z45号地块,位于吴中经开区长桥街道宝带西路南侧、龙西路西侧,属于城南板块!
地块周边也是比较成熟的,居住氛围比较浓厚!
小区北面是主干道宝带西路,东面是龙溪路,一路之隔是住宅小区新吴苑,南面是河流,隔河相望的是吴中实验小学,西面则是住宅小区盘蠡南苑。
周边配套来说,也是比较齐全的的。
交通上面,小区西面是盘蠡路站,这是2号线和3号线的换乘站点,1站距离可以换乘4号线,往东4站可以换乘7号线!整体来看,轨道交通出行是比较便利的!
自驾上面,小区南面是宝带西路,连接吴东快速路,东面是靠近,连接南环,日常出行也是比较便利的!
商业上面,小区周边也是板块top级别!
往东一站地铁可以到达丽丰购物中心、吴中区公共文化中心和现代文体中心。南面2站可以去往龙湖东吴天街和海星生活广场,吃喝玩乐一站式补齐!往西一站就是世茂广场,西面还有友新综合市场、万达广场等。
教育资源上,周边有吴中实验小学、苏州外国语学校(吴中校区)和苏苑中学新校区等。
从整个城南板块的供应来看,今年也是颇多的。其中距离项目比较近的就是最近刚出规划的龙湖5号地块。
根据规划,项目拟建21栋3-11F住宅,其中,6栋3F住宅、9栋4F住宅、2栋8F住宅、1栋9F住宅、1栋10F住宅、2栋11F住宅。

此外,还有两个新项目,分别是鸿远置业吴中城南17号地块项目,即,苏地2024-WG-Z17号地块,项目根据规划,项目拟建29栋3-9F住宅,其中,23栋3F合院,6栋9F洋房。

另一个则是中铁&天鸿伟业吴中城南30号地块项目,即,苏地2024-WG-Z30号地块项目根据规划,项目拟建8栋4-11+1F住宅,其中,2栋4F叠墅、1栋6F住宅、5栋11+1F洋房。

配置上来看,三个项目都有洋房,此外墅类也是有叠墅、合院和联排三种,整体来看,板块内也是急速进入低密度时间
咨询热线:18662309054
声明:本文由入驻焦点开放平台的作者撰写,除焦点官方账号外,观点仅代表作者本人,不代表焦点立场。


