新政松绑,建屋·新棠玥:园区斜塘低密改善首选
扫描到手机,新闻随时看
扫一扫,用手机看文章
更加方便分享给朋友
近日,苏州楼市迎来重大利好政策——取消市区范围内新建商品住房2年限售限制。这一政策无疑为改善型住房需求打开了更广阔的空间,让更多家庭能够轻松实现"换房梦"。在这样的政策背景下,园区斜塘板块的建屋·新棠玥项目,以其独特的区位优势和产品品质,正成为众多购房者关注的焦点。
基本信息
建屋·新棠玥,作为新建元与苏州恒泰联袂打造的新一代玥系开篇作品,坐落在苏州工业园区独墅湖大道与星塘街交汇处西北侧。这个项目占地约4万㎡,容积率仅为1.7,建筑密度19.8%,由11栋13-17层的小高层住宅组成,户型面积段为165-225㎡的四房三卫设计。低密度的社区规划,让每一位业主都能享受到更舒适的生活空间。
18662309054
区域配套
斜塘板块可以说是园区发展的精华所在,这里汇聚了园区卓越的发展经验,从产城融合到人城境业全面融合,构建了卓越领先的园区盛景。住在建屋·新棠玥,您将享受到四大生活圈:
高浓自然圈:金鸡湖右岸客厅、独墅湖公园、弥陀泾,让您随时亲近自然,享受悠闲时光。
高效出行圈:独墅湖城市主干道、星塘街环绕,约4公里可达苏州东站(在建),出行便捷无忧。
高教创新圈:工业园区图书馆、独墅湖文体中心湾国际中心,文化氛围浓厚,教育资源丰富。
缤纷生活圈:湖东CBD、奥体中心、邻瑞广场(山姆店)、斜塘老街,购物、娱乐、餐饮一站式满足。
品牌价值
建屋·新建元,31载园本之心,在产城融合之下的人居在地新实践。新建元集团作为园区成立最早、规模最大的国资企业,以引领产业创新、推动城市繁荣为己任,代表项目有金鸡湖右岸客厅。
苏州恒泰则是中新合作苏州工业园区直属的大型国有企业,净资产138亿元,资产总规模365亿元,在商业地产、产业地产、租赁住房三大领域有着丰富经验,累计开发各类物业载体760万平方米。

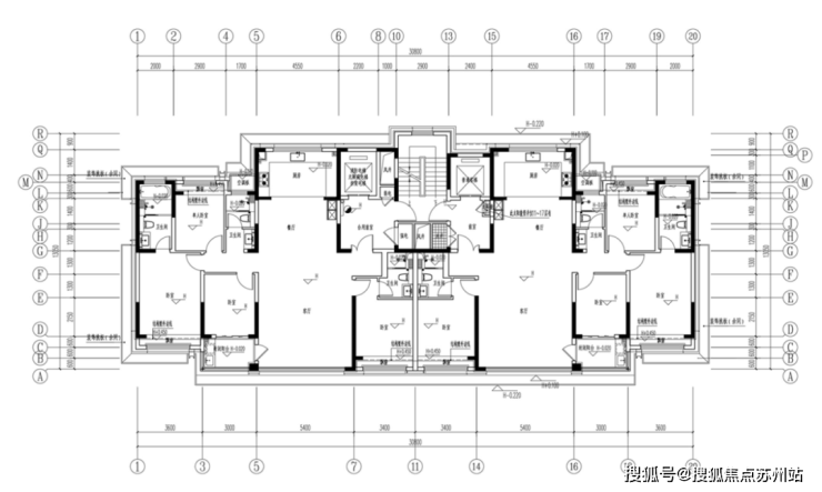
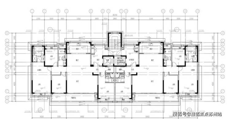
户型鉴赏
建屋·新棠玥提供165-225㎡的四房三卫户型,满足不同家庭的需求。从10#14F小高层标准层,到1#17F小高层标准层(建面约175平),再到6#16F小高层标准层(建面约215㎡),每一款户型都经过精心设计,空间布局合理,功能分区明确,让生活更加舒适便捷。


优势分析
建屋·新棠玥的优势可谓全方位:
区位优势:位于苏州园区"一主两副四片多点"战略格局的核心交汇处,连接金鸡湖中央商务区、独墅湖科教创新区、高端制造与国际贸易区和苏州园区东站副中心,享更高能级城市规划。
大师团队:由国际知名设计大师宋照青(日清设计创始人)领衔建筑设计,代表作品有上海新天地、上海中星美华村等。同时还有A&N尚源景观、Yan Design大研设计、bpi照明设计等知名团队参与。
产品定位:作为玥系高端产品线的开篇作品,传承苏式人居文脉,塑新时代符号大宅,以国际前瞻视野与在地文化开启全新作品。
未来可期,品质生活新篇章
随着苏州限售政策的取消,房产市场将迎来更加活跃的发展态势。建屋·新棠玥凭借其优越的地理位置、高品质的产品和强大的品牌背书,有望成为园区人居的新标杆。斜塘板块作为园区人居高地,承载着时代所向,未来发展潜力巨大。在这里,您不仅能享受到政策红利带来的便利,更能体验到高品质生活带来的幸福感。选择建屋·新棠玥,就是选择了一种更加美好的生活方式。
联系方式:18662309054
声明:本文由入驻焦点开放平台的作者撰写,除焦点官方账号外,观点仅代表作者本人,不代表焦点立场。


