中铁云璟外滩(售楼处)网址- 中铁云璟外售楼中心 -环境 - 户型 - 价格 - 地址 - 楼盘详情 - 配套 - 电话 - 交房时间 -配套 -电话 -中铁云璟外滩售楼处-地址
扫描到手机,新闻随时看
扫一扫,用手机看文章
更加方便分享给朋友
中铁云璟外滩
中铁云璟外滩售楼处电话:400-8673-567【售楼中心】
咨询高峰期请耐心等待,预约来电尊享内部优惠,专业一对一热情服务,让您用专业眼光去买房。
最新消息: 杨浦滨江低密九宫格项目之一,中铁云璟外滩售楼处开放,即将开放样板间,项目预计推出建面约97-110㎡3房、136㎡4房以及约180㎡叠加。
部分洋房户型图
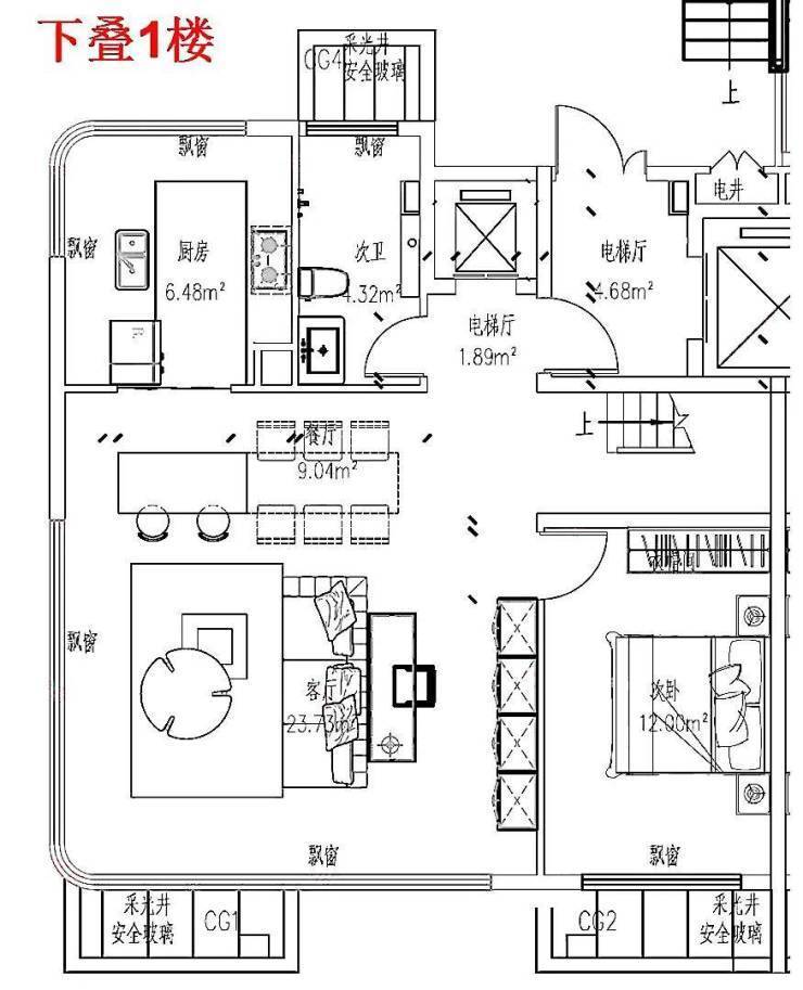
4层上下叠墅户型图
地块拟建12栋多层住宅,其中1栋6F、4栋7F、7栋4F住宅,另有1栋8F保障房位于地块西北角。
总体经济技术指标:
建设用地面积: 16482.71 平方米
容积率: 1.8
总建筑面积: 73000平方米
-地上建筑面积: 36000平方米
-计容建筑面积: 29668.87 平方米
-地下建筑面积: 37000 平方米
该地块就是2025年七批次土拍中,中铁置业拿下的杨浦滨江“九宫格”之一的I4-01地块!地块成交总价27.36亿,成交楼板价9.2万/㎡,溢价率封顶40%,装修标准不低于4000元/㎡,以及不低于40%的中小套比例。
块属于杨浦滨江“九宫格”之一,紧邻内环高架、12号线宁国路站,直线距离滨江约700米。地块北面是一所九年一贯制学校,南侧是中建壹品·外滩元境;周边还有已经售罄的海玥外滩序BUND98、中建壹品·浦江之星项目。
中铁置业在杨浦滨江“九宫格”还有一个别墅项目——中铁云绣外滩,距离滨江更近,容积率仅有1.4!

杨浦滨江“九宫格”是上海几个“九宫格”规划中,仅有的低容积率“九宫格”!这里的宅地容积率大多都在1.2-1.8之间,建筑高度仅有12-24米,其中还涉及了风貌建筑,要求保留老上海海派风情里弄的特色。
中铁云璟外滩
中铁云璟外滩售楼处电话:400-8673-567【售楼中心】
咨询高峰期请耐心等待,预约来电尊享内部优惠,专业一对一热情服务,让您用专业眼光去买房。
郑重承诺:此房源信息真实有效,开发商直属全程营销策划,中介勿扰如有问题欢迎来电咨询,来电即可享受买房优惠!
最新政策:
2026 年 2 月 26 日起,上海执行最新楼市 “沪七条”,核心是放宽非沪籍限购、大幅提高公积金贷款额度、优化房产税。
以下为最新政策要点:一、限购政策(核心变化)1. 沪籍家庭 / 单身家庭:限购 2 套;成年子女新购唯一住房,暂免房产税(2026.1.1 起)。
单身:限购 1 套。
2. 非沪籍家庭 / 单身(2026.2.26 起)外环内购房:社保 / 个税连续满 1 年可购 1 套(原 3 年)。
增购资格:社保 / 个税满 3 年,外环内可购2 套。
外环外购房:社保 / 个税满 1 年,不限套数。
居住证满 5 年:全市限购 1 套,无需社保 / 个税。
二、公积金贷款政策(大幅提升)首套家庭:最高240 万(原 160 万)。二套家庭:最高200 万。多子女家庭:首套 / 二套均上浮 20%。
绿色建筑:上浮 15%。最高可贷:240 万 ×(1+20%+15%)=324 万。
套数认定:已结清公积金贷款,上海无房 / 1 套,可再贷(认房不认贷)。
三、房产税政策(2026.1.1 起)沪籍成年子女新购唯一住房,暂免房产税。
未成年时与父母共有住房,成年后新购唯一住房,仍免征。
四、其他要点政策自2026 年 2 月 26 日起施行。
咨询:公积金12329、税务12366。
声明:本文由入驻焦点开放平台的作者撰写,除焦点官方账号外,观点仅代表作者本人,不代表焦点立场。


