03-苏州罕见的约3.6米户型层高0标准以“打造全行业最高人居标准”为理念,实现了从规划、设计、园林、装修、配套、服务等多个维度的创新升级。产品品质,坚持以满足客户不断升级的人居品质需求为目标;规划设计,则以…
苏州星河湾(星瑞雅庭)
地块信息:苏地2022-WG-51号地块
项目地址:吴中木渎金长路北侧、金枫路西侧
开发品牌:惠润置业 X 星河湾
地块指标:总建约11.4万方,容积率1.8
社区规划:11幢14-21F住宅(7栋14-19F小高层、4栋20-21F高层)
户型配比:建面约180-300㎡,最多为590户
精装标准:全装修交付,最低装标1500元/平
咨询热线:18662309054

◎项目鸟瞰图
地段配套
2022年10月31日的土拍中,苏州惠润置业有限公司拿下木渎51号地块,底价成交。而苏州惠润置业有限公司的大股东就是木渎集团,今年7月,木渎集团正式与星河湾集团签约合作,合作地块就是木渎51号地块。

地块紧邻地铁5号线大治桥站,出行便利;周边有南行实验中小学及附属幼儿园、木渎实验小学、木渎实验中学、木渎高级中学,大运城、花样城、东门町、天虹商场、悠方,木渎人民医院等各类配套。

豪宅教父星河湾
作为中国地产品质教科书以及中国房地产高质量发展企业,星河湾多年来始终保持品质初心,每到一座城市,都成为“代表性人居范本”,彰显卓越的品牌影响力。从政府为星河湾出书开创先河,到无数的奖项加冕,星河湾品质精神,已成为行业匠心的灯塔地标。

广州星河湾——星河湾高端人居的开山之作

◎广州星河湾实景
北京星河湾——全球唯一蝉联[国际花园社区]金奖品牌

◎北京星河湾实景
上海星河湾——首创一岛一栋的社区规划方式

◎上海星河湾实景

◎上海星河湾实景
在全国商品房还是毛坯交付的2000年,广州星河湾做出了商品房精装交付标准的雏形,并被全国房企沿用发展至今;在全行业推崇高周转,追求规模化的时代,星河湾坚持从拿地到交付保障36个月的施工期,保证其对产品品质的绝对把控。
项目核心看点
01-一字型楼栋排列,户户能瞰景
苏州星河湾全盘打造11幢14-21F住宅,围合式布局,仅有2排。
咨询热线:18662309054

◎苏州星河湾项目规划图
02-占小区约80%面积的中央景观
小区中央设置了大面积的水系以及绿化,同步还规划有室外游泳池、古轩亭子等设施,,中央景观带打造了巨大水系、一岛一栋。整体占了小区约80%面积。

◎苏州星河湾项目规划图
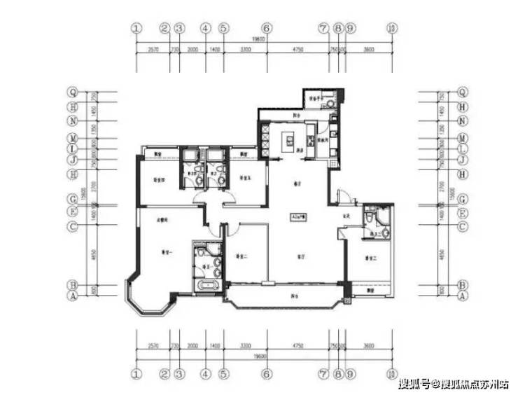
03-苏州罕见的约3.6米户型层高
10号楼单体楼栋立面图和剖面图,1楼约4.6m,标准层高3米6!

◎项目楼栋公示图
户型配置
建面180-300平,开创木渎大平层新时代
(具体面积以开发商公示为准)
A1户型:5房2厅4卫

四开间朝南约22m,客厅是宽厅设计,开间约6.2米。南北双阳台,南向双联阳台开间约9.5米。南向三个卧室中,其中两个卧室为套房设计,带独卫和衣帽间。北卧室均有独卫。
A2户型:5房2厅4卫

与A1结构相似,同样为四开间朝南约19.5m,南北双阳台,北向的两个卧室均带有独卫;南向的主卧配有独卫和衣帽间,次卧配有独卫。
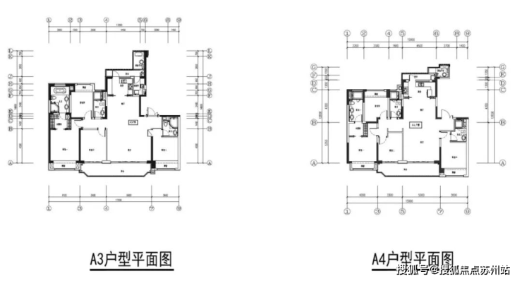
A3/A4户型:4房2厅3卫

A3:四开间朝南约17.2m,且三间卧室朝南;双联阳台约9.5m,双套房设计,主卧带衣帽间和独卫,南向次卧配有独卫,北向的独立家政间与阳台相连。
A4:与A3户型相似,南向四开间约15.9m,双套房均配有独卫,双联阳台约8.3m,主卧额外配有衣帽间。
A5户型:4房2厅2卫

咨询热线:18662309054
苏州星河湾项目最小户型,四开间朝南约15.05m,仅主卧配有独卫与与衣帽间。
星河湾4.0标准
2001年,广州星河湾是星河湾1.0产品系的典型代表,高起点、高定位;2005年,北京星河湾标志着星河湾产品迈入2.0时代,成为当时“中国好房子的标准”;2009年,上海浦东星河湾无论是品质还是规划都迈上了新的台阶,成为3.0匠心时代的代表作,并创下了一天销售40亿的骄人战绩。2019年,星河湾经过不断实践、探索推出“星河湾4.0标准”。4.0标准以“打造全行业最高人居标准”为理念,实现了从规划、设计、园林、装修、配套、服务等多个维度的创新升级。

01规划上-专精特新
产品品质,坚持以满足客户不断升级的人居品质需求为目标;规划设计,则以营造最舒适生活空间为标准;例如,星河湾在项目规划上,奉行“能高尽高、能宽尽宽”的原则,坚持楼距宽、层高高。在规划上,以低建筑密度为标准,绝大部分项目层高超过3.3米,外墙要求无明管明线,内外管线设备安装极尽优化;做到景观、采光、通风的最佳效果,将室内空间最大化留给业主。

02景观上-艺术品标准
在园林景观营造上,则以创造最美环境、最自然生态为标准。每一座园林景观均坚持自主设计,力求按照艺术品的标准来打造,创造最美环境和最自然生态。广州星河湾半岛五號,采用全水系园林景观,水系面积超4万平方米,为了营造最优的园林景观视觉,要在水面上建造340余个种植胸径半米大乔木的独立树池,施工要求特别严格。

03选材上-因材施艺
在选材用料上,以最具视觉艺术、最佳使用质感为标准。选材丰富、因材施艺,是星河湾一直奉行的用材之道。即使是小区道路,沥青的骨料及填充料必须是黑色玄武岩,要求项目部派人到石料场检验,然后随车至沥青搅拌站,再跟车运至工地现场,在施工现场用柴油、煤油或汽油清洁骨料检查,确保骨料完全不掺白。

04施工上-毫厘精神
星河湾对施工工艺要求也务求完美,以最精细美观、保证最长使用周期为标准。精细到“毫厘”的施工工艺是星河湾的核心特色之一,特别是装饰装修方面。在4.0标准中,涵盖了从图纸到施工、表面处理、成品保护、环境污染控制等数十个大项、数千小项各种材质的工艺、铺贴方法和要求。星河湾还采用工厂预制的室内装配式手法,一个户型的墙面施工大样图纸就可达到数百页。

咨询热线:18662309054