虎丘江南里|容积率1.01!约255-500平!爆仓板块再添新面孔
扫描到手机,新闻随时看
扫一扫,用手机看文章
更加方便分享给朋友
在拿地一年多之后,苏地2024-WG-Z14号地块案名正式发布,为虎丘江南里!
作为苏州比较少的岛居项目,虎丘江南里就在虎丘湿地公园旁边,容积率仅1.01,打造的是3F住宅,今年的改善会选这里吗?
案名出炉,城市展厅公开!
虎丘江南里,即苏地2024-WG-Z14号地块,位于相城区黄桥街道华元路南、虎丘湿地公园东,城镇住宅用地,2024年9月由黄桥国资&象屿底价竞得,成交总价64346万元,成交楼面价13500元/平。
项目在本周正式公开了案名,为虎丘江南里,同时城市展厅也正是开放,位于黄桥街道华元路1902号三角咀商务中心。
咨询热线:18662309054

从最新官宣来看,项目将由蓝城集团、苏州园林集团和黄桥国资联合打造!


从规划来看,项目出让面积47192平,建筑面积86109.27平,计容建筑面积47663.92平,容积率1.01。
根据规划,项目建设20栋3F住宅,分为联排和合院!


项目建筑风格上,汲取新宋风,以现代手法转译!复刻歇山顶、鱼鳞瓦、悬鱼、正脊等八大宋风建筑细节。

园林规划以“一苑一巷一岸”为格局,引水入园,引画入境,精心打造约1200㎡中央景观花苑。

每户均配备1:0.5-1:1赠送,超高得房率;建筑高度与楼间距更以约1:2的黄金比例。

119户!主力面积约255-500平
虎丘江南里目前还没有公开官方户型图,不过项目户型面积段已经出炉,据官方消息,项目共计119户,容积率金1.01,主力户型面积段在255-500平!
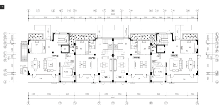
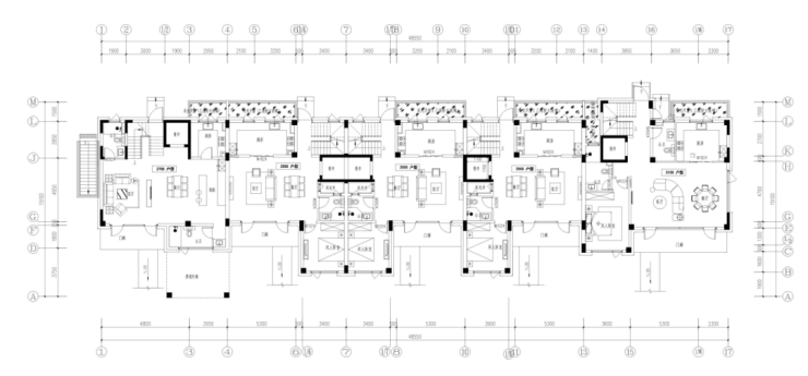
此前公示中,同样公布了两种一层平面图。

平面图上来看,6#是四联排,户型面积分别是310平和255平!

立面图上来看,6#的层高分别为3.5米、3.2米和3米!

平面图上来看,8#是五联排,户型面积分别是270平和255平!

立面图上来看,8#的层高分别为3.5米、3.2米和3米!
咨询热线:18662309054
全岛墅居!虎丘湿地公园在侧
虎丘江南里,位于相城区黄桥街道华元路南、虎丘湿地公园东,属于黄桥/虎丘湿地公园板块,位置上来说,其实还不错的,整个小区都在一座小岛上,东边连接华元路,西边连接虎丘湿地公园,生态环境非常棒!



从周边配套来看,项目周边还是不错的。
交通上来看,主要还是依赖自驾,项目东侧有路连接华元路,往东连接活力岛和元和板块!南侧靠近阳澄湖西路,也是相城区主干道。
此外北面的中环北线,连接园区和高新区,东面广济北路也是相城区南北向主干道!
商业配套商里看,比较近的就是北面的复悦荟,南面和东面有繁花中心和活力岛各类商业等。
教育设施上,比较近的就是黄桥中心幼儿园、黄桥实验小学和黄桥中学,整体来看,周边配套目前是比较齐全的,而且基本都已经投入使用。
值得关注的是,项目周边还有多个已拍地块且都是低密度,不过像虎丘江南里这样的岛居目前还没有!
声明:本文由入驻焦点开放平台的作者撰写,除焦点官方账号外,观点仅代表作者本人,不代表焦点立场。


