板块2022年上新的颐和源璟,当时成交楼面价27514元/m²;容积率1.8,打造17-25F小高层、高层,户型建面约143-248㎡。从目前曝光的面积来看建面约143/178m²两大户型,相比周边的超级大面…
刚刚!湖东招商永旺北项目解开神秘面纱。
立面图(过程图)长这样。

招商永旺北官方电话:4008800736;置业顾问:18662309054
河岸景观效果图(过程图)长这样。

超级公区会所效果图(过程图)长这样。

项目拟将打造 11F纯洋房社区,主力建面约 143/178m²两大户型!

约143㎡4房2卫 ,约178㎡4房3卫! 得房率非常高,面宽很大,“赠送”很多,全盘 仅299套!
配套方面有会所约3000平,带泳池!
最新消息:项 目展厅即将公开,今年即将开卖
招商永旺北官方电话:4008800736;置业顾问:18662309054
01
招商园区永旺北项目位于钟南街东,苏州大道南,家门口就是地铁1号线钟南街站及园区永旺。

去年12月中旬土拍中,招商以总价约12.6亿竞得该地块, 成交楼面价约27342元/㎡,溢价率2.02%。
项目从房企拿地开始,就备受关注。
1、拿地价比周边项目都低,未来有望惊喜价。
例如板块2022年上新的颐和源璟,当时 成交楼面价27514元/m² ;容积率1.8,打造17-25F小高层、高层,户型建面约143-248㎡。
作为当年的限价盘 (均价4.5万) ,项目首次开盘就吸引了2000多组客户抢购,之后每次开盘都靠抢。

例如,不远处的翡丽甲第, 成交楼面价39027元/平,打造6-9F纯低密洋房社区,在6w+/平,户型190㎡起步!
时隔多年,招商永旺北地项目与颐和源璟一路之隔,业态更加优秀,地价却比颐和源璟要低一些,未来上市价格值得期待。
2、户型相对小一点,给于很多人湖东上车机会
从目前曝光的面积来看建面约 143/178m²两大户型,相比周边的超级大面积,预算上会有好很多。
而且两款户型是4房2-3卫格局,适合更多中层改善家庭上车,也易于快速去化。
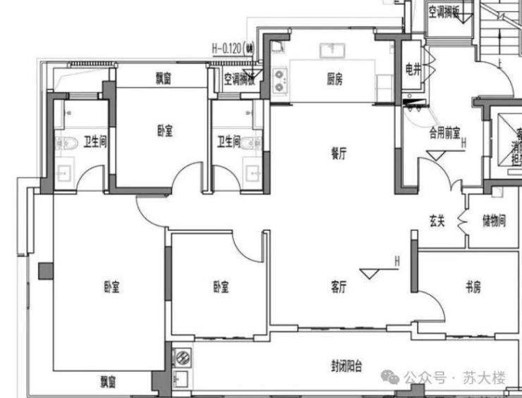
建面约143㎡4房2卫 西边户

两个户型统一层高约 3.15米 。
建面约143m²为4室2厅2卫设计,南向面宽可达约14.4米(中间套)至15米(边套);
整体采用传统竖厅布局,客厅面宽约4.5米,搭配约10.8米超大面宽阳台,南向书房可向阳台拓展,提升空间利用率;边套主卧配备 270度飘窗 ,采光与视野俱佳。
值得一提的是,电梯合用前室东西两侧各自独立,可作为两户专属拓展空间,增添户型附加值。
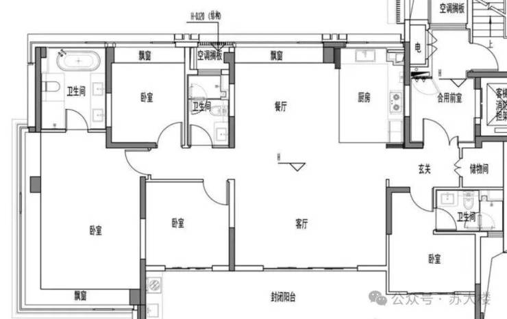
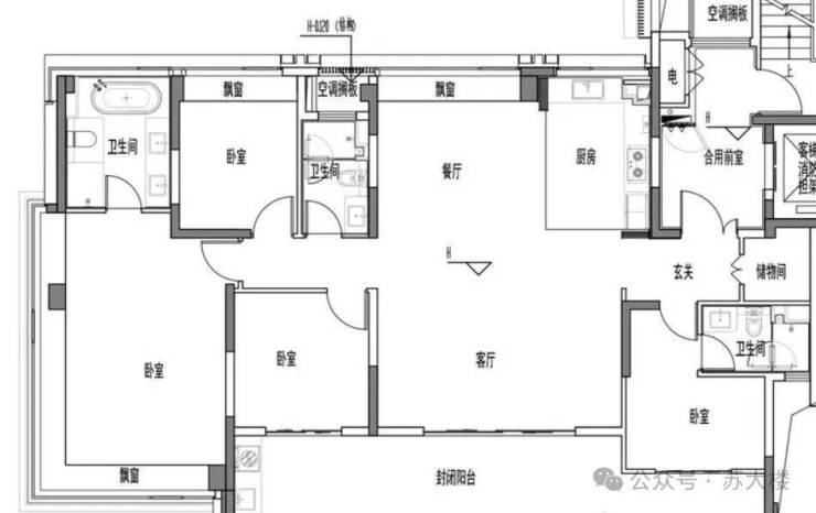
建面约178㎡4房3卫 西边户

建面约178m²为4室2厅3卫 设计, 双套房 ;南向面宽约 16.8米 ,三卧室朝南;
整体为竖厅布局,客厅面宽升级至约 6米 ,搭配约 12.8米“跑道型”阳台 ,主卧配备 270度飘窗 。
此外,项目还爆出自带会所配套!将打造 约3000㎡的豪华会所,并配备恒温泳池,向玫瑰园、晋墅等顶豪看齐。
价格方面,参考沁百合个人预测 均价5w+! *仅供交流参考,实际价格以政府备案为准 。
目前 项目展厅即将公开,即将开卖。
3、积率仅1.3-1.6,规划为纯洋房社区
4、地段更优越,更核心
招商园区永旺北项目位于钟南街东,苏州大道南,家门口就是地铁1号线钟南街站及园区永旺。

地块北侧为苏州大道,南侧为河流、永旺梦乐城、星汇学校,周边有儿童医院、丰茂幼儿园、邻里中心均有。休闲娱乐方面,方洲公园、白塘生态植物园都很近。


招商永旺北官方电话:4008800736;置业顾问:18662309054
项目不远处就是近几年园区热销盘颐和源璟、绿城云庐(之前备案均价4.995w/平),居住氛围浓厚。