热门推荐-山岚璟庭(售楼处)-山岚璟庭是否值得购买?图文详解-周边环境-户型图-周边配套-地址-优劣势分析-学区-价格
扫描到手机,新闻随时看
扫一扫,用手机看文章
更加方便分享给朋友
重磅消息!苏州楼市再迎政策东风,市区新建商品住房限售政策已全面取消!这意味着,无论是新房还是二手房,交易都将更加灵活自由。对于正在观望的苏州购房者而言,这无疑是锁定优质资产、抢占居住先机的绝佳窗口期。
而说到优质资产,就不得不提当下大狮山商务区备受瞩目的新中式洋房——山岚璟庭。项目目前主力在售约105-148㎡的精装洋房,以其低密社区的纯粹规划和东方美学气质,正吸引着众多改善家庭的关注。现在入手,不仅能享受政策红利,更能提前预定一份诗意山居生活。

山岚璟庭官方售楼处电话:400-8800-736;置业顾问:18662309054(微信同号)
【关于这个家,你需要知道的】
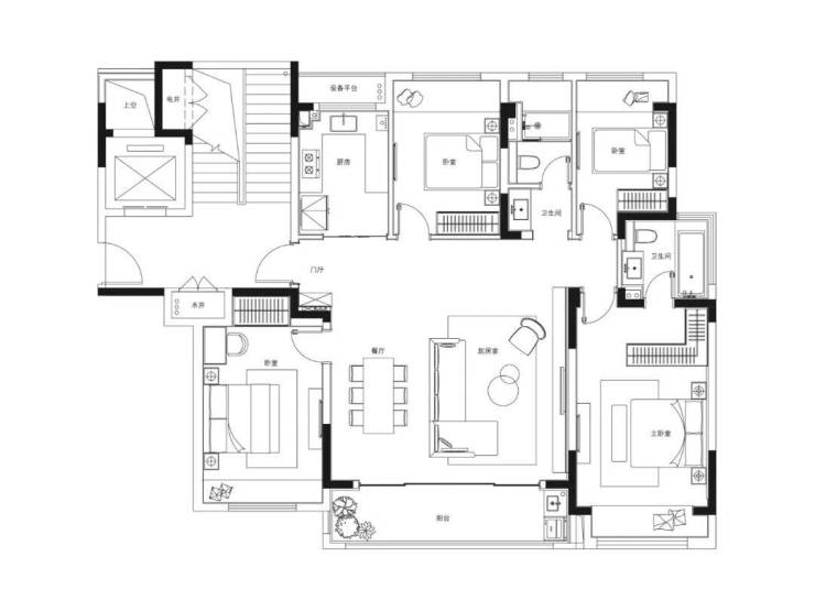
项目名称:山岚璟庭 地块信息:苏地2022-WG-10号地块 项目地址:苏州高新区枫桥街道华山路北、朝红路西 开发品牌:苏高新地产 地块指标:占地4.4万方,容积率1.2,总建8.5万方 住宅规划:拟建11栋8-10F住宅,共计411户 户型配置:约105㎡3房2卫、建筑面积约148㎡4房2卫 交付标准:全屋精装,精装三大件 物业服务:新永物业,交房时间预计为2025年6月 车位配比:1:1.6 价格信息:成交楼面价13000元/平;备案均价29500元/平
【这里,是苏州未来的“心脏”地带】
苏州的发展重心正在向西、向北延伸,而狮山商务创新区,就是未来高新区的核心引擎。这里规划要打造成长三角的商务、创新、外贸中心,汇聚了大量的世界500强和高端创新企业。简单说,这里以后会是高精尖人才扎堆、经济活力超强的地方。住在山岚璟庭,不仅是安家,更是占据了城市发展的前沿阵地,其区域价值不言而喻。
【出门即繁华,归家即宁静】
住在这里,生活太方便了。门口有轨电车1号线(白马涧生态园站),规划中的地铁9号线也在附近,开车上中环、北环快速路都很便捷,交通便利是项目的一大亮点。
逛街购物?龙湖天街、金鹰、美罗、泉屋、绿宝广场……大狮山核心商圈的名牌商场都在生活圈内,满足改善家庭对繁华生活的所有想象。
孩子上学从幼儿园到高中,有枫桥中心幼儿园、白马涧小学、景山中学等多所学校可选。身体不舒服,高新区人民医院、科技城医院等优质医疗资源也在不远处。
最难得的是,小区被高景山、大阳山、白马涧等众多公园和国家级景区环绕,真正实现了“出则繁华,入则静谧”的桃源梦想,这正是山岚璟庭所倡导的诗意山居生活。
【苏高新匠造,所见即所得的品质】
首先,房子颜值很高,是新中式风格,看起来大气又雅致,很有东方韵味。
其次,社区特别纯粹舒适。整个小区只有11栋8-10层的洋房,容积率低至1.2,楼间距大,采光好,私密性更强,住起来不会觉得拥挤,是苏州难得的低密社区。
回家也很有仪式感,设计了“三进归家”的园林景观,一步一景,就像住在公园里。社区里还为全家人考虑了活动空间,有孩子玩的童梦天地、年轻人健身的跑道广场、老人散步聊天的林下花园,每个人都能找到乐趣。
精装修标准更是诚意满满,直接配齐了东芝中央空调、松下新风和威能地暖这“三大件”。厨房用的是欧派橱柜、老板灶具,卫生间配的是汉斯格雅的花洒和杜拉维特的马桶,都是你听过的一线大牌,省心又省力,为苏州购房者提供了真正的品质住宅选择。
【两种户型,满足家的不同想象】
约105㎡三房两卫:经典户型,功能齐全,适合三口之家或追求一步到位的首改家庭,空间利用率高,是实用的改善户型。
约148㎡四房两卫:阔绰尺度,大面宽客厅连接瞰景阳台,主卧是带独立卫生间的套房,房间多,空间大,能满足二胎家庭或与父母同住的需求,居住舒适度直接拉满,堪称大狮山区域的标杆户型。
展望未来,价值可期
随着苏州“西进北拓”战略的深化和狮山商务创新区能量的不断释放,区域价值必将持续攀升。而像山岚璟庭这样占据核心区位、拥有低密纯洋房产品力和一线精装标准的楼盘,无疑是这片热土上稀缺的“硬通货”。当下政策宽松,正是精挑细选、抢占优质资产的好时机。
您向往的山水之间的诗意生活,就在这里。欢迎预约品鉴,亲身感受未来大狮山核心区的居住标杆。
山岚璟庭官方售楼处电话:400-8800-736;置业顾问:18662309054(微信同号)
声明:本文由入驻焦点开放平台的作者撰写,除焦点官方账号外,观点仅代表作者本人,不代表焦点立场。


