与绿城玫瑰园的命运相同,因为地处双湖核心核心位置,从土地征收到挂牌再到出让,荣域花园西项目的每一个动作都备受关注。晋合集团在苏州打造了一系列高端住宅项目,自金湖湾花园、水巷邻里,到晋园别墅,以及洲际酒店和凯悦…
终于等到!来了!来了!
荣域西地块规划公示——
园区双湖别墅上新!配置会所!
苏州改善一族速速围观!提前准备
联排+洋房的王炸组合
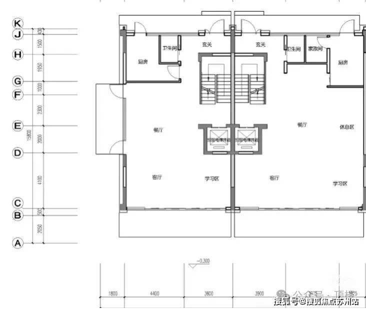
据悉 洋房面积220/250/280/350㎡
其中洋房一梯两户设计
大面积玻璃立面,景观视野开阔
咨询热线:18662309054
👇👇👇








@苏州千万级改善,速看一波
更多项目信息 扫码下方二维码
拿到一手资料!!冲冲冲
一对一咨询 助您安家园区
咨询热线:18662309054
2
接棒绿城玫瑰园!锁定园区双湖豪宅!
2025年,园区最具期待的别墅盘,当属 晋合(星合)荣域西项目。
与绿城玫瑰园的命运相同,因为 地处双湖核心核心位置,从土地征收到挂牌再到出让,荣域花园西项目的每一个动作都备受关注。

晋合集团在苏州打造了一系列高端住宅项目,自金湖湾花园、水巷邻里,到晋园别墅,以及洲际酒店和凯悦酒店等,均以其好品质赢得了园区顶尖客户群体的高度期待。
这些项目不仅代表了晋合对高端生活品质的追求,也展现了其在地产开发领域的深厚实力。
双湖板块近年宅地稀缺,叠加晋合品牌溢价,未来入市价格或对标周边豪宅。
3
双湖荣域花园西地块:星合拿下!
回顾拿地,去年9月
园区双湖荣域花园西地块出让
一线湖景+1.02容积率
位置上可媲美苏州桃花源
最终!劲爆!来了!
星合置地以总价 51.98亿元!
成交楼面价58000元/㎡拿下
再造一座晋合水巷邻里!

最新航拍实拍:顶楼

★相关文章:58000元/㎡!星合!荣域花园西拍出!
4
王炸!一线湖景+1.02容积率!
地块位于东延路南、西华林街东
出让面积87877.1㎡,起拍总价约51.99亿
无论是体量还是总价都远高于绿城玫瑰园
★ 相关文章:独家揭秘!园区双湖荣域花园西地块正征收
制图:顶楼

不得不说,地块位置超绝佳!!! 园区双湖荣域花园西地块杀入高端局!
西面一湖之隔为五星级金鸡湖大酒店,南侧为绿地和低矮建筑,几乎无遮挡。
周边还有 世茂铜雀台、仁恒观棠和水墨江南等多个品质小区。整体来看,地块是名副其实的一线临湖宝地。
地块占地8.79万方,容积率1-1.02,建筑密度≤40%,限高10-24米,绿地率≥30%。
板块新房断供多年,这两年动静较大。
从周边二手房来看,金鸡湖、独墅湖双湖沿线小区的挂牌价格皆为苏州房价天花板。

例如周边二手房世茂铜雀台的挂牌价格高达10万+/㎡,未来小区业主身价如何,看看周围的邻居就知道!

可以说荣域花园西地块是近几年园区“含金量”较高的一宗宅地!终于等到最新消息。
咨询热线:18662309054