黄埭又一个纯新盘来了|和堂墅|联排和叠墅,户型首次曝光
扫描到手机,新闻随时看
扫一扫,用手机看文章
更加方便分享给朋友
来了,黄埭又一个纯新盘来了,项目案名为和堂墅,这也是个纯别墅!项目已经在黄埭中翔广场公开城市展厅
和堂墅,即,苏地2024-WG-Z05号地块项目,位于相城区黄埭镇苏阳路西、黄埭塘南,是5月29日,和恒&联胜以底价22021万元拿下,成交楼面价11000元/平。

项目的地块用途为城镇住宅用地,占地面积19066平,总建筑面积35819.91平,计容建筑面积19996.48平,容积率1.05.
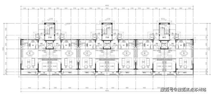
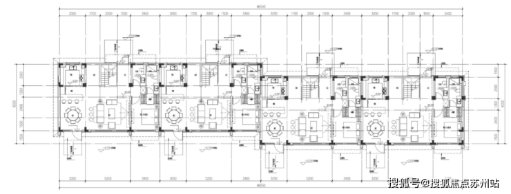
根据规划,项目拟建11栋3-4F住宅,其中3栋3F住宅,8栋4F住宅。
3F住宅:11#、12#、13#;
4F住宅:1#、3#、5#、6#、7#、8#、9#、10#;
咨询热线:18662309054



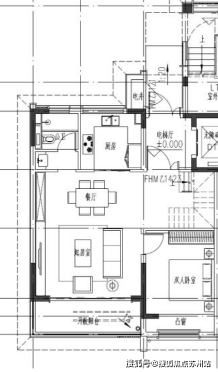
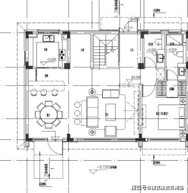
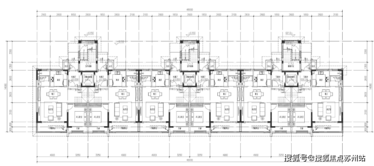
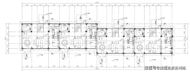
同时,项目公示了9#、11#的户型标准层示意图。
9#,1F


11#,1F


根据要求,
1,住宅部分总层数6层以上的,须建设成品住宅,装修标准≥2000元/平;
2,总层数6层及6层以下的,鼓励建设成品住宅,装修标准≥2000元/平。
3,住宅户型面积≥100平;
和恒&联胜黄埭5号地块项目,位于相城区黄埭镇苏阳路西、黄埭塘南。
从周边界面来看,项目北面是黄埭荡,一河之隔的是黄埭中心小学。
咨询热线:18662309054

和恒&联胜黄埭5号地块在黄埭板块来看,位置还算是非常不错的,项目周边教育、生态、商业等资源都比较齐全。

交通:春光路、中市路、7号线北延伸线;
教育:黄埭实验幼儿园、黄埭中心小学(东校区)、相城区春申中学、黄埭中学;
医疗:苏州市相城区第二人民医院;
商业:黄埭农贸市场、供销合作购物中心;
生态:春申湖;
黄埭板块来看,目前在售项目也是有的,但是墅类项目却没有在售的,主要依靠二手房市场,房龄也都比较老了,如果想在板块买别墅,这个项目还是比较值得期待的!
咨询热线:18662309054
声明:本文由入驻焦点开放平台的作者撰写,除焦点官方账号外,观点仅代表作者本人,不代表焦点立场。


